front - BASE MODEL - Bright family home plan with large upstairs primary suite, optional finished basement, garage & covered patio - Lauzon

front - BASE MODEL

1st level - Bright family home plan with large upstairs primary suite, optional finished basement, garage & covered patio - Lauzon

1st level

2nd level - Bright family home plan with large upstairs primary suite, optional finished basement, garage & covered patio - Lauzon

2nd level

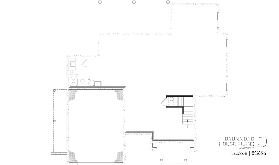
Unfinished basement - Bright family home plan with large upstairs primary suite, optional finished basement, garage & covered patio - Lauzon

Unfinished basement

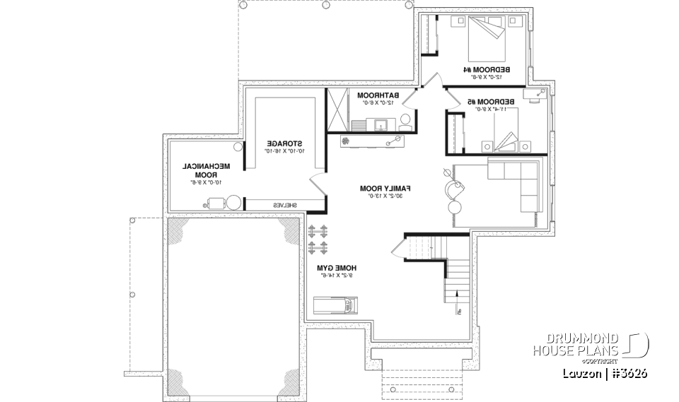
Finished basement (Optional $) - Bright family home plan with large upstairs primary suite, optional finished basement, garage & covered patio - Lauzon

Finished basement (Optional $)

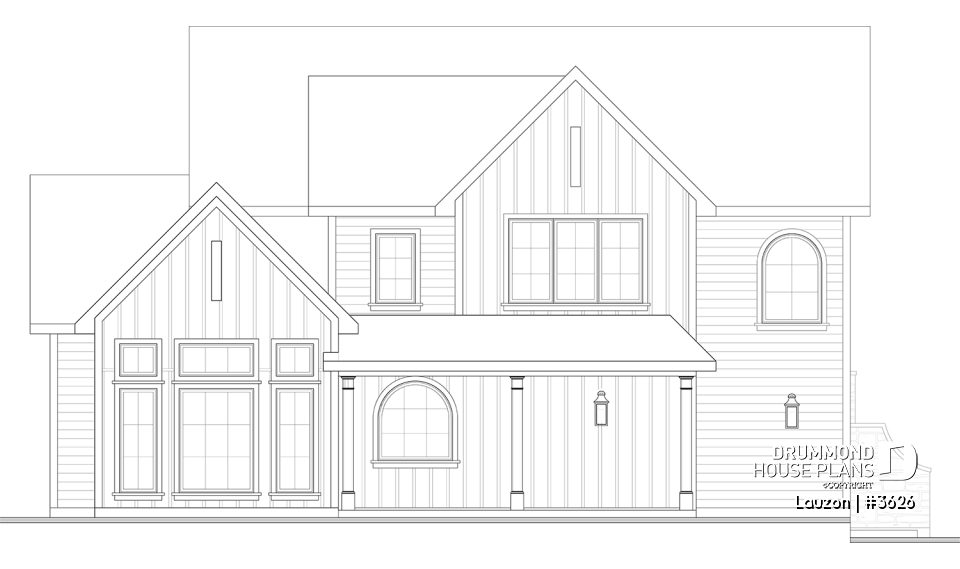
Rear view - BASE MODEL - Lauzon

Rear view - BASE MODEL

rear elevation - Lauzon

rear elevation

Lauzon House plan 3626

Bright family home plan with large upstairs primary suite, optional finished basement, garage & covered patio

Starting from

2200$

Technical details summary Plan #3626
Total living area 2701 sq.ft. Bedroom 3, 4, 5
Full baths 2 Half baths 1
Foundation included Unfinished Basement Garage One-car garage
Width 53'8" Depth 54'0"

Need help ?

Our experts are here to guide you to make your dream project come to life.

Contact us

Come see us

Visit one of our 30 regional offices.

Our offices

Need a home insurance ?

To get your price, it's just here

Get a quote Advertisement

Additional details

General specifications

Total living area
2701 sq.ft.
1st level
1530 sq.ft.
2nd level
1171 sq.ft.
Unfinished basement
1530 sq.ft.
Finished basement (Optional $)
1530 sq.ft.
Width
53'8"
Depth
54'0"
Ridge height from top of foundation
33'7"
Exterior wall
2 X 6
Other available foundations (a fee may apply)
Finished basement, Floating Slab, Crawl space, Monolithic Slab
Builder price code
H

Rooms specifications

Bedroom(s)
3, 4, 5
Full baths
2
Half baths
1
Garage type
One-car garage (480 sq.ft.)
Covered porch area
33 sq.ft.

Unfinished basement

Finished basement (Optional $)

1st level

Rooms
Sizes
Ceiling
Porch
11'0" x 3'4"
N/D
Foyer
13'8" x 10'10"
~ 19'6"
Home office
9'0" x 12'0"
~ 9'0"
Garage
18'0" x 24'2"
~ 10'10"
Living room
18'0" x 20'0"
~ 18'4"
Dining room
15'0" x 10'0"
~ 11'8"
Covered deck
24'0" x 11'0"
~ 9'4"
Kitchen
12'4" x 20'0"
~ 9'0"
Kitchen island
8'0" x 4'0"
N/A
Powder room
5'6" x 5'10"
~ 9'0"
Mud room
7'4" x 11'2"
~ 9'0"
Laundry room
8'0" x 9'8"
~ 9'0"
Pantry
11'4" x 6'0"
~ 9'0"
Closet
2'10" x 2'2"
~ 9'0"

2nd level

Rooms
Sizes
Ceiling
Bathroom
12'4" x 9'8"
~ 9'0"
Linen
2'0" x 1'2"
N/A
Bedroom
11'4" x 13'4"
~ 9'0"
Closet
7'0" x 2'0"
~ 9'0"
Bedroom
13'8" x 12'0"
~ 9'0"
Closet
7'0" x 2'0"
~ 9'0"
Closet
4'4" x 1'10"
~ 9'0"
Master suite
12'6" x 15'8"
~ 14'0"
Walk-in closet
8'2" x 15'8"
~ 9'0"
Full bathroom
12'4" x 9'0"
~ 9'0"
Shower
5'10" x 3'4"
N/A

Lauzon (#3626) European Family House Plan with Covered Terrace, Home Office & Up to 5 Bedrooms

Designed for today’s families, the LAUZON (#3626) blends timeless country european charm with modern functionality and abundant natural light. Its warm exterior, enhanced with stone accents and Board & Batten siding, sets the tone right away: every detail has been thoughtfully considered.

With over 2,700 sq. ft. across the main floor and second story, this home offers generous, well-organized living spaces. The dramatic two-story entry welcomes you inside, where a convenient home office near the foyer makes working from home effortless. Decorative arches highlight key transitions and add refined architectural character. The spacious single-car garage connects directly to the mudroom and pantry, an everyday convenience you’ll quickly appreciate.

The main floor features a bright open-concept layout combining the kitchen, dining area, and living room. The kitchen stands out with its large central island, walk-in pantry, coffee station, and smart storage solutions. The living room, with cathedral ceiling and fireplace, becomes a natural gathering space, while the rear dining area opens onto a 24’ x 11’ covered terrace, perfect for enjoying outdoor living in every season.

Upstairs, the primary suite impresses with its cathedral ceiling, cozy reading nook, and private bathroom. Two secondary bedrooms complete the level, connected by a shared Jack-and-Jill bathroom, ideal for family life.

The optional finished basement adds over 1,530 sq. ft. and allows for two additional bedrooms, a family room, home gym area, full bathroom, plus generous storage and a mechanical room, bringing the potential total to five bedrooms.

This house plan is the result of an inspiring collaboration with content creator Sarah Lauzon, combining thoughtful design with attention to detail to create a warm, functional, and truly human living environment.

A home designed to support real life moments, gathering, growing, and reconnecting, in a bright, timeless space.

Distinctive elements

• Country Classic style house plan with timeless charm
• 3 to 5 bedrooms
• 2.5 to 3.5 bathrooms
• Stone accents and Board & Batten siding for a warm exterior appeal
• Spacious 2-story home with single-car garage
• Covered front balcony
• Dramatic two-story front entry
• Functional home office located near the entrance
• Decorative arches thoughtfully placed at main transitions
• Garage with direct access to mudroom and pantry
• Large laundry room conveniently located on the main floor
• Open-concept layout connecting kitchen, living room, and dining area
• Kitchen featuring walk-in pantry, coffee station, and large central island
• Living room with cathedral ceiling and fireplace
• Bright rear dining area with direct access to the covered terrace
• Large 24’ x 11’ covered terrace for enjoying outdoor living in any weather
• Primary suite upstairs with cathedral ceiling, reading nook, and private bathroom
• Two secondary bedrooms upstairs with shared Jack-and-Jill bathroom
• Unfinished basement, included with the base plan
---
*Optional finished basement
• Two additional bedrooms for a total of five bedrooms
• Full bathroom
• Cozy family room
• Home gym area
• Large storage space and mechanical room
---
*If you wish to purchase the finished basement plan, as presented on this plan page, please select this option in the shopping cart, in the "Selection of foundation type" section. If you do not select this option, you will receive the unfinished full basement option, at no extra charge.

Plan feature(s)

Cathedral ceiling, Arch, Walk-in master bed., Mud room, Wash tank, Coffee bar, 2-Story foyer, Office / Study / Den, Pantry, Covered patios, Ceiling over 8', Open floor layout, Island, Fireplace, Built-ins, Gound floor laundry room, Jack & Jill bath, Separate bath and shower, Double sinks, Master suite upstairs, Panoramic view, Shelves, Plafond avec fausses poutres, Bench seat(s), Sloped ceiling, Laundry chute

Plan architectural style(s)

European, Country, Classic, Traditional

Similar plans
Logo Drummond House Plans image drummond house plans
The plan Lauzon is protected by the copyright law.

The illustrations shown may differ from the detailed construction plans you will receive, as plans are regularly updated to comply with current building codes.

Photos displayed on this page may reflect modifications made by homeowners and may vary from the original plan.

Learn more

A question or a comment on this plan ?

Contact information

Your request

Add your pictures or photos

To add one or more photos, click or drag your files into the area below. You may upload up to eight JPG or JPEG images. This step is optional.

Sorry, your browser does not support file uploads.