There are no shipping fees if you buy one of our 2 plan packages "PDF file format" or "5 sets of blueprints + PDF". Shipping charges may apply if you buy additional sets of blueprints.
House plan La Baie (90116)
Eco-friendly single-storey plan, 3 bedrooms, mudroom, open floor plan, sheltered terrace
Other useful information on this plan
Do you want to feel like you're on vacation every day? The abundance of natural light, the optimal organization of spaces and the lightness of this eco-friendly house will certainly give you this feeling!
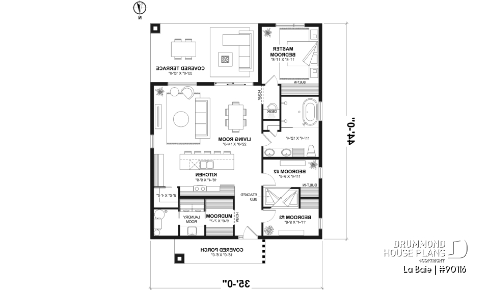
Created to be on a lot with the south facing at the back, the La Baie house (plan #90116) offers you everything a family needs in a maximized space. With its 9'-0'' high ceilings, you will never feel cramped in this house. At the entrance, you will find on your right the mudroom which includes a space for the washer and dryer. At the back of this room is the access to the mechanical room. Heading towards the back of the house, you will enter the open area which will be bathed in natural light. A large island will allow you to receive your family and friends while being the center of the action. From the dining room you can access the large covered terrace at the back of the house.
On the entire left side of the house, so to the east, you will find the bedrooms and the bathroom. The two children's bedrooms have a rather interesting particularity since they are designed to have a bunk bed, where each of the beds belongs to a different bedroom. You therefore benefit from all the advantages of the bunk bed while maintaining the privacy of each room. Then there is the full bathroom which is organized to allow several people to use it at the same time. And finally, the master bedroom is located at the back of the house with a large window overlooking the backyard.
This house also offers the possibility of adding a garage possibly on the right of the house. It would be possible to add a door from the mechanical room to access it. Also, you could decide to add a greenhouse adjacent to the living room on the right side of the house. By replacing the window with a door, you could access the greenhouse and enjoy fresh vegetables all year round.
ECO-FRIENDLY HOUSE PLAN
This house plan is part of our “Eco-friendly house plan collection” and here is what distinguishes all the plans included in this selection:
Sun:
The orientation of the house according to the sun’s daily path, combined with the thermal capture of the sun's rays using optimal fenestration, minimizing heating costs and maximizing the presence of natural light.
Simplicity:
A house with modest volumes ensuring simplified construction, while favoring the maximization of interior spaces, to reduce the number of square feet and the construction cost.
Sound Mind & Body:
A home designed to promote the well-being and health of its occupants by being well ventilated, using durable and non-toxic materials (steel, wood, lightweight cladding, fiber cement, among others) and maximizing natural light.
Distinctive elements
**Scandinavian style and eco-friendly house plan with 9' high ceiling on the entire ground floor.
The orientation proposal favors the entry of natural light throughout the day.
The layout of the mudroom room includes a washer and dryer.
The two secondary bedrooms, although compact, offer an original arrangement of single bunk beds, where each of the children has their own bedroom.
Beautiful large window in the parents' bedroom.
The organization of the bathroom is practical for a family.
The kitchen contains a 5' by 4' deep pantry, as well as a large central island.
The sheltered terrace is of good size.
This plan is designed to eventually receive a garage and a greenhouse, depending on what might suit the future needs of your family.
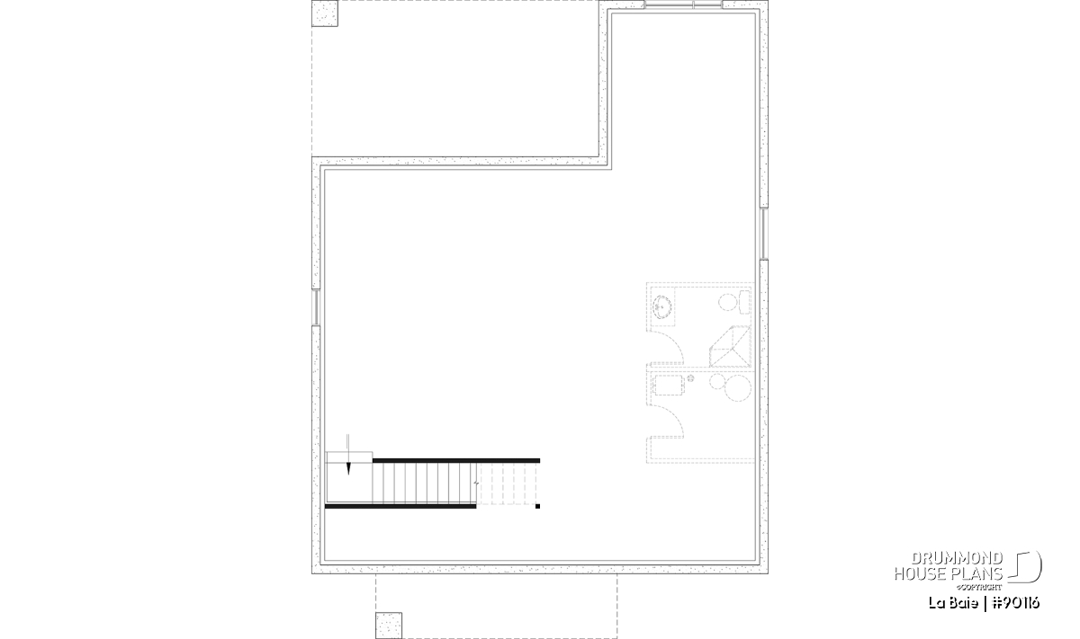
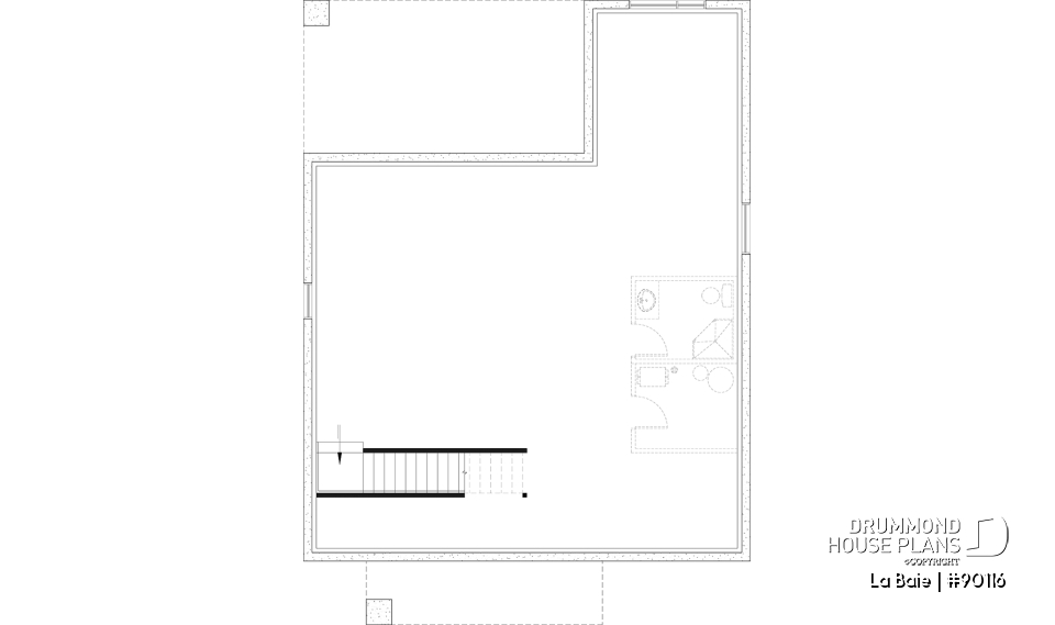
The foundation included in the plan is a floating slab. *Other foundation types are available for this plan.
--
*Unfinished Basement (optional $):
*If you wish to purchase the unfinished basement plan option ($), please select this option in the shopping cart, in the "Select your foundation" section. If you do not select this option, you will receive a floating slab as your foundation.
--
**This house plan is part of our “Eco-friendly house plan’ collection” and here is what distinguishes all the plans included in this selection:
SUN:
The orientation of the house according to the sun’s daily path, combined with the thermal capture of the sun's rays using optimal fenestration, minimizing heating costs and maximizing the presence of natural light.
SIMPLICITY:
A house with modest volumes ensuring simplified construction, while favoring the maximization of interior spaces, to reduce the number of square feet and the construction cost.
SOUND MIND & BODY:
A home designed to promote the well-being and health of its occupants by being well ventilated, using durable and non-toxic materials (steel, wood, lightweight cladding, fiber cement, among others) and maximizing natural light.
Plan feature(s)
Built-ins, Mud room, Open floor layout, Deck, Island, Arch, Gound floor laundry room, Planning desk, Bath in the shower, Double sinks, Pantry, Ceiling over 8', Self-Build, Builder
Plan architectural style(s)
. Scandinavian, . Contemporary, . Cottage, chalet, cabin, . Ranch, . Modern / Design
Previously Viewed Plans
Thank you for your comment! It must be approved before being put online, please allow a period of 24 hours.
Error with google reCaptcha! Try again
Here is a brief description of our different plan packages. Please select the plan package that suits your needs. You can change the package at the next step, if necessary.
PDF VERSION OF PLAN:
Complete digital version of plan (pdf format) sent by email (original plan format 18" x 24'' or 24" x 36'')
5 copies of plan + PDF:
Includes: 5 copies of plan, plan in PDF format (reduced size version), materials list.
Foundation type
Additional foundation types are available, a fee may apply. Please indicate your choice on the online order form, or to our customer service representative, when placing your house plan order.
If your desired foundation type is not available, please contact our customer service to receive your free plan modification quote.
Explanation of bonus space types
UNFINISHED BONUS ROOM
The bonus rooms are often planned above the garage and are accessible from the house. They are designed to be converted as an office, a laundry area, a bathroom, a library corner or even an additional bedroom for which homeowners must make sure to have a window that complies with current codes & standards.
STORAGE AREA
Often located above the garage, our storage areas are used only as storage and are usually accessible from the garage via a retractable staircase.
Do you like this plan but want it to be modified to suit your needs?
To add a garage, another bedroom, finish the basement or any other modification, click here and let us know about your desired changes and to get your free quote for the modification of your plan.
Conditions of use
Important copyright notice! Please take note of these copyright conditions before printing:
By printing this house plan, cottage or garage or the floorplan(s), you confirm being informed that every house plan on this website is the exclusive property of Drummond House
Plans and is protected by Canadian copyright law. You are aware that these prints cannot be used to build or even obtain a building permit. The graphic representations of these
models are offered by Drummond House Plans for the sole purpose of allowing you to notate modifications of a model and then take it to one of the Drummond House Plans Canadian dealers for
modification of the plan.
The purchase of a house plan, cottage or garage from Drummond House Plans is mandatory if you wish to build any of our models. The plan purchase allows you to build a single unit; you cannot resell or give your plan to anyone once the house, cottage or garage has been built. If you wish to build the same house, cottage or garage more than once, you need to obtain the licence to this effect. Please contact us for more details.
All plans from Drummond House Plans can only be modified by a licensed Drummond House Plan Canadian dealer. If any other business or individual with no affiliation to Drummond House Plans modifies a Drummond House Plan on your behalf, please ensure this business or individual has a licence to modify this specific plan or you will be subject to prosecution on the same level as the business or individual who modified or reproduced the plan.
For more details, do not hesitate to contact u by e-mail or by phone at 1-800-567-1413.
I agree to respect the conditions above to not reproduce, modify or build a model from Drummond House Plans without previously purchasing a complete house plan.


















