There are no shipping fees if you buy one of our 2 plan packages "PDF file format" or "5 sets of blueprints + PDF". Shipping charges may apply if you buy additional sets of blueprints.
House plan Homewood 2 (2078-V1)
Buy this planFrom 2415$ See prices and options
House plan Homewood 2 (2078-V1)
Semi detached, 3 bedroom, 2 bathroom house plan with laudry room on main, open concept, large kitchen
Buy this plan
Special: Free shipping!
Need help?
Come see us
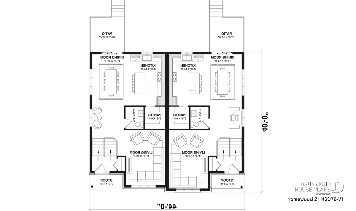
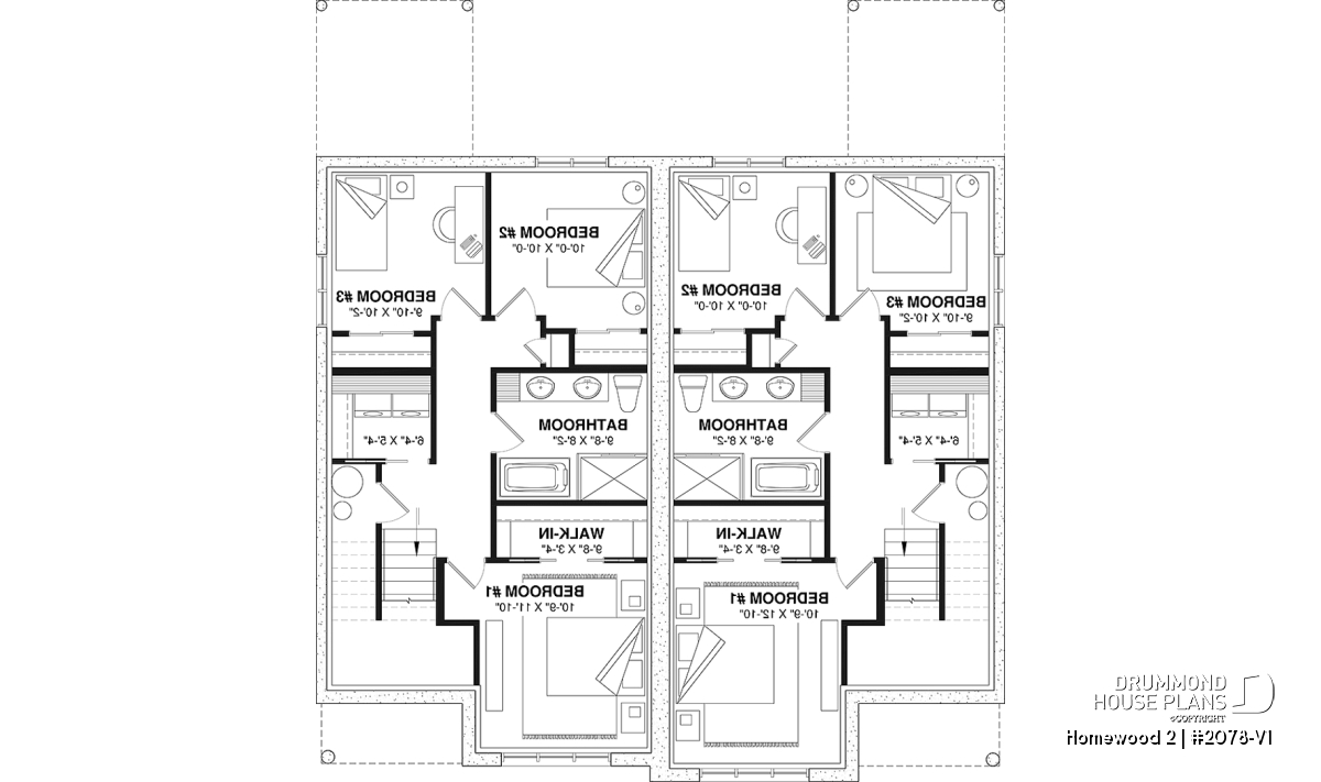
View the size of the rooms and height of the ceilings
| Basement | ||
|---|---|---|
| Rooms | Sizes | Ceiling |
| Bedroom | 10'9" x 12'10" | ~ 8'0" |
| Walk-in closet | 9'8" x 3'4" | ~ 8'0" |
| Bedroom | 10'0" x 10'0" | ~ 8'0" |
| Bedroom | 9'10" x 10'2" | ~ 8'0" |
| Full bathroom | 9'8" x 8'2" | ~ 8'0" |
| Shower | 4'6" x 3'0" | N/A |
| Linen | 1'6" x 1'10" | N/A |
| Bedroom | 10'9" x 11'10" | ~ 8'0" |
| Closet | 7'2" x 3'0" | ~ 8'0" |
| Walk-in closet | 9'8" x 3'4" | ~ 8'0" |
| Bedroom | 10'0" x 10'0" | ~ 8'0" |
| Closet | 4'8" x 2'0" | ~ 8'0" |
| Bedroom | 9'10" x 10'2" | ~ 8'0" |
| Closet | 6'4" x 2'0" | ~ 8'0" |
| Full bathroom | 9'8" x 8'2" | ~ 8'0" |
| Shower | 4'6" x 3'0" | N/A |
| Linen | 1'6" x 1'10" | N/A |
| Linen | 2'2" x 1'6" | ~ 8'0" |
| Linen | 2'2" x 1'6" | ~ 8'0" |
| Laundry room | 6'4" x 5'4" | ~ 8'0" |
| Laundry room | 6'4" x 5'4" | ~ 8'0" |
| 1st level | ||
|---|---|---|
| Rooms | Sizes | Ceiling |
| Dining room | 11'0" x 14'8" | ~ 8'0" |
| Reading/computer area | 9'2" x 9'4" | ~ 8'0" |
| Living room | 11'1" x 16'8" | ~ 8'0" |
| Living room | 11'1" x 15'8" | ~ 8'0" |
| Covered porch | 9'0" x 4'0" | ~ 10'10" |
| Reading/computer area | 9'2" x 9'4" | ~ 8'0" |
| Covered porch | 9'0" x 4'0" | ~ 10'10" |
| Dining room | 11'0" x 14'8" | ~ 8'0" |
| Foyer | 7'0" x 4'4" | ~ 12'2" |
| Closet | 4'0" x 2'0" | ~ 12'2" |
| Foyer | 7'0" x 4'4" | ~ 12'2" |
| Closet | 4'0" x 2'0" | ~ 12'2" |
| Terrace | 10'0" x 10'0" | N/A |
| Terrace | 10'0" x 10'0" | N/A |
| Kitchen | 9'9" x 14'8" | ~ 8'0" |
| Kitchen island | 6'0" x 3'0" | N/A |
| Kitchen | 9'9" x 14'8" | ~ 8'0" |
| Kitchen island | 6'0" x 3'0" | N/A |
| Pantry | 5'9" x 6'4" | ~ 8'0" |
| Pantry | 5'9" x 6'4" | ~ 8'0" |
| Powder room | 5'2" x 6'4" | ~ 8'0" |
| Powder room | 5'2" x 6'4" | ~ 8'0" |
General specifications
| Total living area | 3310 sq.ft. |
| 1st level | 1655 sq.ft. |
| Basement | 1655 sq.ft. |
| Width | 44'0" |
| Depth | 40'0" |
| Ridge height from top of foundation | 26'4" |
| Exterior wall | 2 X 6 |
| Foundation type included in the plan | Finished basement |
| Builder price code | MD |
Rooms specifications
| Bedroom(s) | 3 |
| Full baths | 1 |
| Half baths | 1 |
| Garage type | - |
| Living bonus space | - |
| Bonus storage | - |
| Covered porch area | 72 sq.ft. |
| UNIT 1 (LEFT) | UNIT 2 (RIGHT) | |
| Total living area | 1668 sq.ft. | 1640 sq.ft. |
| Basement | 834 sq.ft. | 820 sq.ft. |
| 1st level | 834 sq.ft. | 820 sq.ft. |
| Width | 22' 0" | 22' 0" |
| Depth | 40' 0" | 40' 0" |
| Ridge height from top of foundation | 26' 4" | 26' 4" |
| Exterior wall | 2 X 6 | 2 X 6 |
| Foundation type | Finished basement | Finished basement |
| Bedroom(s) | 3 | 3 |
| Full baths | 1 | 1 |
| Half baths | 1 | 1 |
| Garage type | - | - |
| Living bonus space | - | - |
| Bonus storage | - | - |
General specifications
| Total living area | 3310 sq.ft. |
| Basement | 1655 sq.ft. |
| 1st level | 1655 sq.ft. |
| Width | 44'0" |
| Depth | 40'0" |
| Ridge height from top of foundation | 26'4" |
| Exterior wall | 2 X 6 |
| Foundation type included in the plan | Finished basement i |
| Builder price code | MD |
Rooms specifications
| Bedroom(s) | 3 |
| Full baths | 1 |
| Half baths | 1 |
| Garage type | - |
| Living bonus space | - i |
| Bonus storage | - i |
| Covered porch area | 72 sq.ft. |
Units specifications
| UNIT 1 (LEFT) | UNIT 2 (RIGHT) | |
| Total living area | 1668 sq.ft. | 1640 sq.ft. |
| Basement | 834 sq.ft. | 820 sq.ft. |
| 1st level | 834 sq.ft. | 820 sq.ft. |
| Width | 22' 0" | 22' 0" |
| Depth | 40' 0" | 40' 0" |
| Ridge height from top of foundation | 26' 4" | 26' 4" |
| Exterior wall | 2 X 6 | 2 X 6 |
| Foundation type | Finished basement | Finished basement |
| Bedroom(s) | 3 | 3 |
| Full baths | 1 | 1 |
| Half baths | 1 | 1 |
| Garage type | - | - |
| Living bonus space | - | - |
| Bonus storage | - | - |
Half bath
Photos represent a modified version of the original plan and are not available for sale. We invite you to get your free plan modification cost estimate if you would like any changes to the original plan.
Kitchen
Photos represent a modified version of the original plan and are not available for sale. We invite you to get your free plan modification cost estimate if you would like any changes to the original plan.
Kitchen
Photos represent a modified version of the original plan and are not available for sale. We invite you to get your free plan modification cost estimate if you would like any changes to the original plan.
Dining room
Photos represent a modified version of the original plan and are not available for sale. We invite you to get your free plan modification cost estimate if you would like any changes to the original plan.
Dining room
Photos represent a modified version of the original plan and are not available for sale. We invite you to get your free plan modification cost estimate if you would like any changes to the original plan.
Sitting room
Photos represent a modified version of the original plan and are not available for sale. We invite you to get your free plan modification cost estimate if you would like any changes to the original plan.
Sitting room
Photos represent a modified version of the original plan and are not available for sale. We invite you to get your free plan modification cost estimate if you would like any changes to the original plan.
Other useful information on this plan
Great Northwest style semi-detached house plan with 3 beds and 2 baths per unit
Thanks to discreet placement of entrances, this semi-detached home assures privacy. Handsome stone cladding and pleasing gable details further enhance this home’s charm. The units are close to mirror images of one another.
The covered split entry provides an ideal welcoming point. Upstairs, the open activities area is well-organized, complete with forward living room, computer area, kitchen with island and eating bar and dining area. A powder room and laundry complete the main floor.
Downstairs, the raised basement allows ample light for the three bedrooms. A four-piece bathroom is centrally located and a 7’ x 8’ storage room will be appreciated by all.
Distinctive elements
Open activity area.
Suggested vaulted ceiling.
Privately located front and rear entrances.
Computer space located on the ground floor of each unit. ¸
Raised basement with windows large enough to accommodate bedrooms and bathroom with separate 3' x 3' shower .
Storage of 7 'x 8' provided in the basement of each unit.
Plan feature(s)
Island, Separate bath and shower, Walk-in master bed., Planning desk
Plan architectural style(s)
. Craftsman / Northwest, . Cottage, chalet, cabin, . Traditional, . Ski chalets, . Mountain, . Country
Similar plans
Previously Viewed Plans
Thank you for your comment! It must be approved before being put online, please allow a period of 24 hours.
Error with google reCaptcha! Try again
Want to modify this plan?
Free plan modification quoteNeed help?
Contact usCome see us
Our 31 regional officesYou may also like
Similar plans
Description
1st level: Entrance, living room, computer area, dining room, kitchen / dinette, bathroom, laundry.
Basement: Three bedrooms, bathroom and storage.
Awards and
Recognition
Here is a brief description of our different plan packages. Please select the plan package that suits your needs. You can change the package at the next step, if necessary.
PDF VERSION OF PLAN:
Complete digital version of plan (pdf format) sent by email (original plan format 18" x 24'' or 24" x 36'')
5 copies of plan + PDF:
Includes: 5 copies of plan, plan in PDF format (reduced size version), materials list.
Foundation type
Additional foundation types are available, a fee may apply. Please indicate your choice on the online order form, or to our customer service representative, when placing your house plan order.
If your desired foundation type is not available, please contact our customer service to receive your free plan modification quote.
Explanation of bonus space types
UNFINISHED BONUS ROOM
The bonus rooms are often planned above the garage and are accessible from the house. They are designed to be converted as an office, a laundry area, a bathroom, a library corner or even an additional bedroom for which homeowners must make sure to have a window that complies with current codes & standards.
STORAGE AREA
Often located above the garage, our storage areas are used only as storage and are usually accessible from the garage via a retractable staircase.
Do you like this plan but want it to be modified to suit your needs?
To add a garage, another bedroom, finish the basement or any other modification, click here and let us know about your desired changes and to get your free quote for the modification of your plan.
Conditions of use
Important copyright notice! Please take note of these copyright conditions before printing:
By printing this house plan, cottage or garage or the floorplan(s), you confirm being informed that every house plan on this website is the exclusive property of Drummond House
Plans and is protected by Canadian copyright law. You are aware that these prints cannot be used to build or even obtain a building permit. The graphic representations of these
models are offered by Drummond House Plans for the sole purpose of allowing you to notate modifications of a model and then take it to one of the Drummond House Plans Canadian dealers for
modification of the plan.
The purchase of a house plan, cottage or garage from Drummond House Plans is mandatory if you wish to build any of our models. The plan purchase allows you to build a single unit; you cannot resell or give your plan to anyone once the house, cottage or garage has been built. If you wish to build the same house, cottage or garage more than once, you need to obtain the licence to this effect. Please contact us for more details.
All plans from Drummond House Plans can only be modified by a licensed Drummond House Plan Canadian dealer. If any other business or individual with no affiliation to Drummond House Plans modifies a Drummond House Plan on your behalf, please ensure this business or individual has a licence to modify this specific plan or you will be subject to prosecution on the same level as the business or individual who modified or reproduced the plan.
For more details, do not hesitate to contact u by e-mail or by phone at 1-800-567-1413.
I agree to respect the conditions above to not reproduce, modify or build a model from Drummond House Plans without previously purchasing a complete house plan.















