There are no shipping fees if you buy one of our 2 plan packages "PDF file format" or "5 sets of blueprints + PDF". Shipping charges may apply if you buy additional sets of blueprints.
House plan Aspen Lodge (3057)
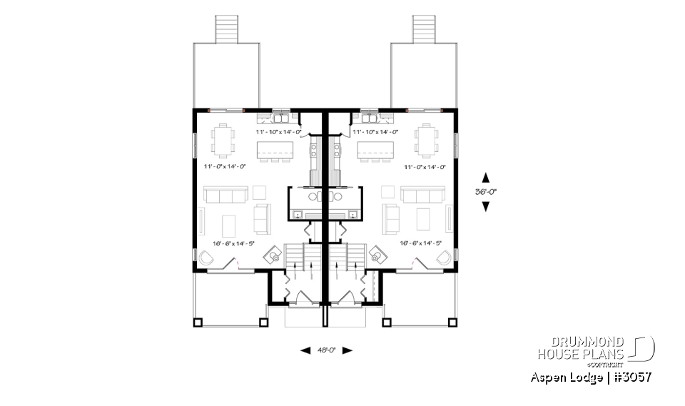
Split entry duplex house plan, great main floor open concept, pantry, kitchen island, 3 beds, 1.5 baths
Other useful information on this plan
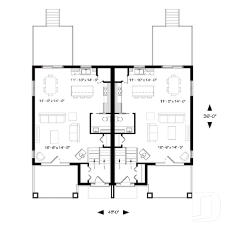
New semi-detached house plan with rustic charms and attracting covered front balconies !
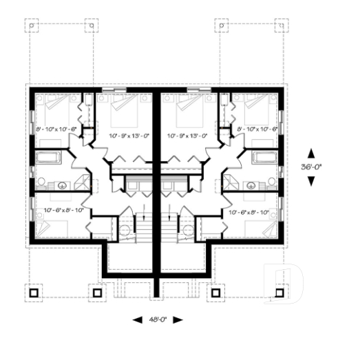
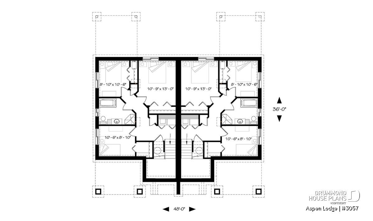
The element that first catches our attention is undoubtedly the magnificent front covered balconies, allowing the occupants to admire the outdoor view while sipping a cocktail or morning coffee, sheltered from the weather elements. This new duplex house plan no. 3057, also named Aspen Lodge by Drummond House Plans, proposes audacious floor plan layouts, especially with the location of its 3 bedrooms (per unit).
Once past the split entrance with a coat closet and over 12 feet ceiling, a staircase leads you to the split level daylight basement, maximizing natural light. There are 3 bedrooms, one with a walk-in closet. A full family bathroom is provided with separate bath and shower for added comfort. A closet with washer-dryer is also located in the basement. Two practical storage spaces complete this area of the house.
The ground floor is entirely open-plan with the exception, of course, of the half bath. The latter is located adjacent to the kitchen. The living room (or family room) is of good size and offers direct access to the sheltered balcony on the front of the house. Nice place to comfortably enjoy the panorama.
The kitchen offers a practical pantry and an island for 3 to 4 guests. It is open to the dining room with patio door and the living room. The latter is of a good size, making it possible to comfortably seat 6 people, depending on the layout of the furniture.
Do not hesitate to contact our customer service department if you wish to modify this model to better reflect the needs of your family, or future tenants!
Distinctive elements
Duplex house plan, Modern Rustic style.
Split entry with coat closet and over 12' ceiling.
Daylight basement with 3 bedroom, full family bathroom and laundry in closet.
Open kitchen / dining / living room concept.
Kitchen with pantry, kitchen island and near the half bath.
Dining and living room receiving lots of natural light.
Living room with access to front covered balcony, great spot for drinks!
Plan feature(s)
Island, Open floor layout, Wood stove, Pantry, Deck, Separate bath and shower, Inverted living
Plan architectural style(s)
. Modern rustic, . American, . Rustic, . Cottage, chalet, cabin, . Transitional, . Ski chalets, . Vacation and waterfront, . Country, . Mountain
Similar plans
Previously Viewed Plans
Thank you for your comment! It must be approved before being put online, please allow a period of 24 hours.
Error with google reCaptcha! Try again
Here is a brief description of our different plan packages. Please select the plan package that suits your needs. You can change the package at the next step, if necessary.
PDF VERSION OF PLAN:
Complete digital version of plan (pdf format) sent by email (original plan format 18" x 24'' or 24" x 36'')
5 copies of plan + PDF:
Includes: 5 copies of plan, plan in PDF format (reduced size version), materials list.
Foundation type
Additional foundation types are available, a fee may apply. Please indicate your choice on the online order form, or to our customer service representative, when placing your house plan order.
If your desired foundation type is not available, please contact our customer service to receive your free plan modification quote.
Explanation of bonus space types
UNFINISHED BONUS ROOM
The bonus rooms are often planned above the garage and are accessible from the house. They are designed to be converted as an office, a laundry area, a bathroom, a library corner or even an additional bedroom for which homeowners must make sure to have a window that complies with current codes & standards.
STORAGE AREA
Often located above the garage, our storage areas are used only as storage and are usually accessible from the garage via a retractable staircase.
Do you like this plan but want it to be modified to suit your needs?
To add a garage, another bedroom, finish the basement or any other modification, click here and let us know about your desired changes and to get your free quote for the modification of your plan.
Conditions of use
Important copyright notice! Please take note of these copyright conditions before printing:
By printing this house plan, cottage or garage or the floorplan(s), you confirm being informed that every house plan on this website is the exclusive property of Drummond House
Plans and is protected by Canadian copyright law. You are aware that these prints cannot be used to build or even obtain a building permit. The graphic representations of these
models are offered by Drummond House Plans for the sole purpose of allowing you to notate modifications of a model and then take it to one of the Drummond House Plans Canadian dealers for
modification of the plan.
The purchase of a house plan, cottage or garage from Drummond House Plans is mandatory if you wish to build any of our models. The plan purchase allows you to build a single unit; you cannot resell or give your plan to anyone once the house, cottage or garage has been built. If you wish to build the same house, cottage or garage more than once, you need to obtain the licence to this effect. Please contact us for more details.
All plans from Drummond House Plans can only be modified by a licensed Drummond House Plan Canadian dealer. If any other business or individual with no affiliation to Drummond House Plans modifies a Drummond House Plan on your behalf, please ensure this business or individual has a licence to modify this specific plan or you will be subject to prosecution on the same level as the business or individual who modified or reproduced the plan.
For more details, do not hesitate to contact u by e-mail or by phone at 1-800-567-1413.
I agree to respect the conditions above to not reproduce, modify or build a model from Drummond House Plans without previously purchasing a complete house plan.






