There are no shipping fees if you buy one of our 2 plan packages "PDF file format" or "5 sets of blueprints + PDF". Shipping charges may apply if you buy additional sets of blueprints.
House plan Hazel 2 (3513-V1)
Charming story book cottage plan w/ 3 to 4 bedrooms, 3.5 baths, fireplace, sheltered terrace and home theater.
Other useful information on this plan
Classic Storybook Style House Plan with Covered Porch, 3 Bedrooms, and Optional Finished Basement
This classic and timeless Storybook style house plan captures all the charm of traditional architecture while offering a layout perfectly suited for today’s families. With its covered front porch and rear terrace, this home invites you to enjoy the outdoors in comfort all year long.
From the moment you step inside, the home reveals its elegance. A graceful arched ceiling entryway leads to a practical coat closet and built-in bench, designed for both functionality and style. The 9-foot ceilings throughout the main floor enhance the sense of space and light. In the living room, a cozy bench nook and fireplace create a warm centerpiece, while triple French doors flood the space with natural light and open directly to the rear covered terrace—perfect for seamless indoor-outdoor living.
At the heart of the home, the kitchen combines function and charm. A large central island and walk-in pantry provide plenty of space for cooking and storage, while the open layout connects directly to the dining room. Bright and airy, this space is ideal for family meals or entertaining guests, blending modern convenience with classic character.
Upstairs, the primary suite offers a true retreat. With its cathedral ceiling, generous walk-in closet, and private bathroom with shower, it balances luxury and comfort. A dedicated home office nook near the laundry room ensures a quiet space for remote work or study. The upper level also features two additional bedrooms and a spacious full bathroom, making it perfect for a growing family.
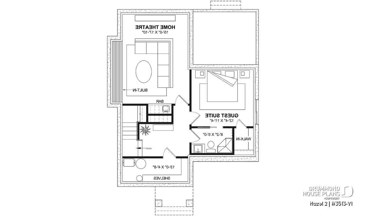
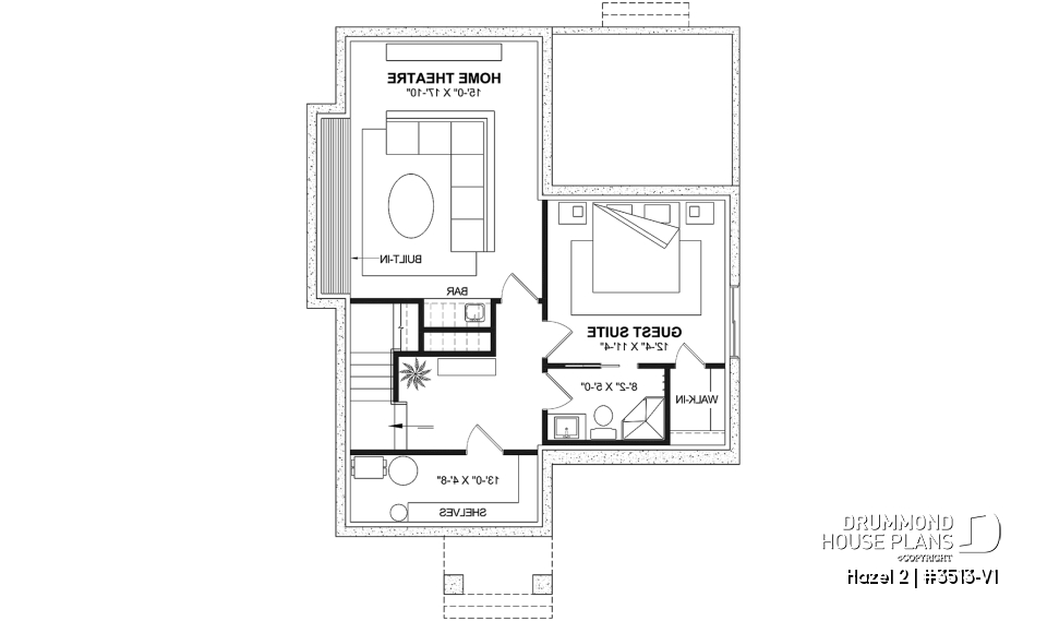
For those who desire more living space, the *optional finished basement ($) adds exceptional value. It includes a home theater with built-in furniture, creating the ultimate entertainment hub. A large guest bedroom with private bathroom and walk-in closet provides comfort and privacy, making it ideal for extended family or visitors.
Blending storybook charm, timeless design, and practical modern features, this 3-bedroom home plan with garage is a perfect choice for families who dream of a home that feels both elegant and welcoming. With its optional finished basement and flexible spaces, it adapts easily to your lifestyle and future needs.
---
*If you wish to purchase the finished basement plan, as presented on this plan page, please select this option in the shopping cart, in the "Selection of foundation type" section. If you do not select this option, you will receive the unfinished full basement option, at no extra charge.
Distinctive elements
Classic and Timeless “Storybook Home” with Covered Front Porch and Rear Terrace.
Elegant entry with arched ceiling leading to a practical coat closet and built-in bench.
9-foot ceilings throughout the main floor, creating a spacious and airy feel.
Inviting living room with cozy bench nook and warm fireplace.
Triple French doors opening to the covered rear terrace, filling the space with natural light.
Functional kitchen with central island and pantry, open to the bright dining area.
Primary suite upstairs with cathedral ceiling, private bathroom, and spacious walk-in closet.
Convenient home office nook on the upper floor, located near the practical laundry room.
Two additional bedrooms and a large full bathroom complete the upper level.
---
Optional Finished Basement ($):
Home theater with built-in furniture, perfect for family movie nights
Large guest bedroom with private bathroom and walk-in closet
---
*If you wish to purchase the finished basement plan, as presented on this plan page, please select this option in the shopping cart, in the "Selection of foundation type" section. If you do not select this option, you will receive the unfinished full basement option, at no extra charge.
Plan feature(s)
Media Room, Pantry, Second floor laundry room, Master suite upstairs, Entrance hall, Walk-in master bed., Guest suite, Built-ins, Bench seat(s), Deck, Bath in the shower
Similar plans
Previously Viewed Plans
Thank you for your comment! It must be approved before being put online, please allow a period of 24 hours.
Error with google reCaptcha! Try again
Here is a brief description of our different plan packages. Please select the plan package that suits your needs. You can change the package at the next step, if necessary.
PDF VERSION OF PLAN:
Complete digital version of plan (pdf format) sent by email (original plan format 18" x 24'' or 24" x 36'')
5 copies of plan + PDF:
Includes: 5 copies of plan, plan in PDF format (reduced size version), materials list.
Foundation type
Additional foundation types are available, a fee may apply. Please indicate your choice on the online order form, or to our customer service representative, when placing your house plan order.
If your desired foundation type is not available, please contact our customer service to receive your free plan modification quote.
Explanation of bonus space types
UNFINISHED BONUS ROOM
The bonus rooms are often planned above the garage and are accessible from the house. They are designed to be converted as an office, a laundry area, a bathroom, a library corner or even an additional bedroom for which homeowners must make sure to have a window that complies with current codes & standards.
STORAGE AREA
Often located above the garage, our storage areas are used only as storage and are usually accessible from the garage via a retractable staircase.
Do you like this plan but want it to be modified to suit your needs?
To add a garage, another bedroom, finish the basement or any other modification, click here and let us know about your desired changes and to get your free quote for the modification of your plan.
Conditions of use
Important copyright notice! Please take note of these copyright conditions before printing:
By printing this house plan, cottage or garage or the floorplan(s), you confirm being informed that every house plan on this website is the exclusive property of Drummond House
Plans and is protected by Canadian copyright law. You are aware that these prints cannot be used to build or even obtain a building permit. The graphic representations of these
models are offered by Drummond House Plans for the sole purpose of allowing you to notate modifications of a model and then take it to one of the Drummond House Plans Canadian dealers for
modification of the plan.
The purchase of a house plan, cottage or garage from Drummond House Plans is mandatory if you wish to build any of our models. The plan purchase allows you to build a single unit; you cannot resell or give your plan to anyone once the house, cottage or garage has been built. If you wish to build the same house, cottage or garage more than once, you need to obtain the licence to this effect. Please contact us for more details.
All plans from Drummond House Plans can only be modified by a licensed Drummond House Plan Canadian dealer. If any other business or individual with no affiliation to Drummond House Plans modifies a Drummond House Plan on your behalf, please ensure this business or individual has a licence to modify this specific plan or you will be subject to prosecution on the same level as the business or individual who modified or reproduced the plan.
For more details, do not hesitate to contact u by e-mail or by phone at 1-800-567-1413.
I agree to respect the conditions above to not reproduce, modify or build a model from Drummond House Plans without previously purchasing a complete house plan.
























