There are no shipping fees if you buy one of our 2 plan packages "PDF file format" or "5 sets of blueprints + PDF". Shipping charges may apply if you buy additional sets of blueprints.
House plan Dumont 2 (3897-V1)
Modern Farmhouse Plan featuring 3 Bedrooms plus Office, Fireplace, Walk-In Pantry and More!
Virtual visit
Other useful information on this plan
Your modern Farmhouse dream home, designed for family living!
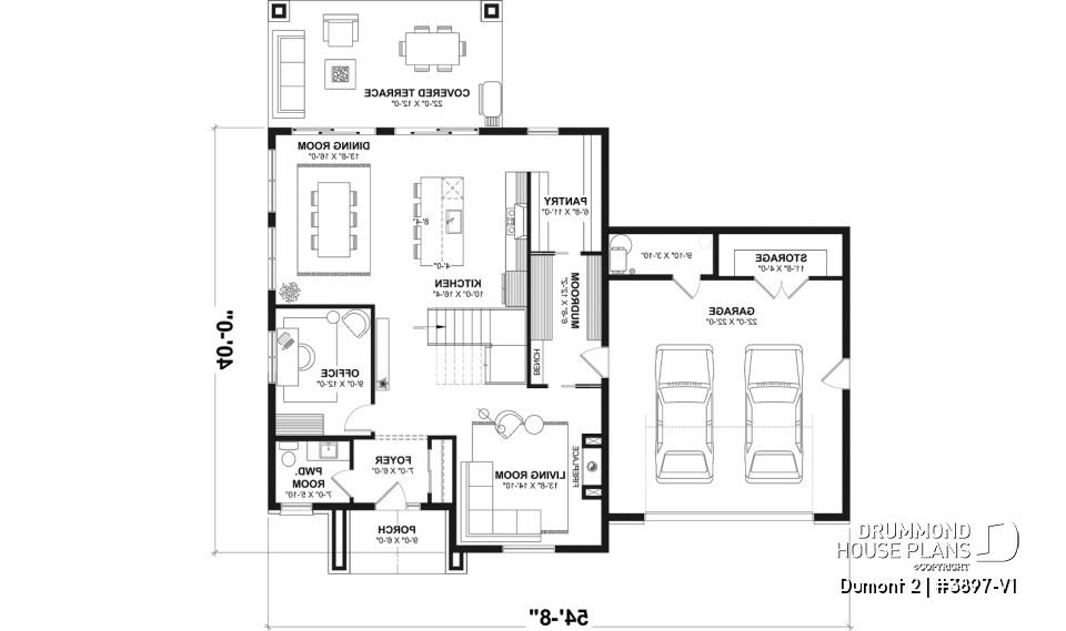
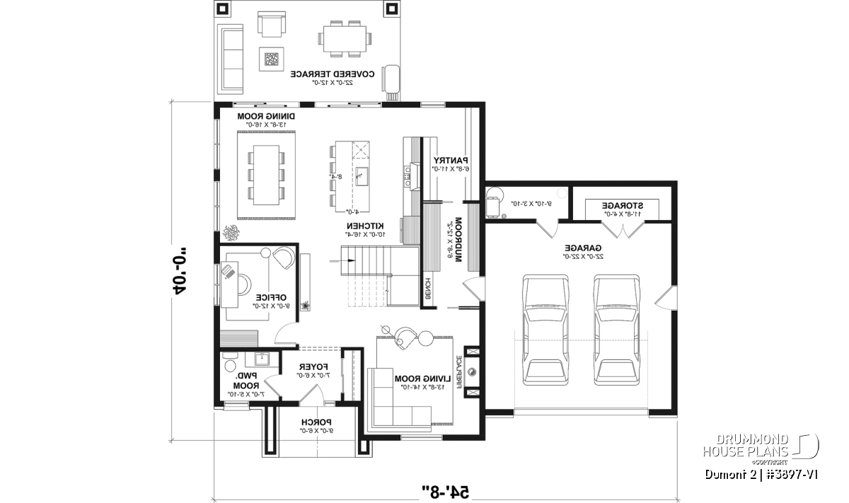
This modern home with Farmhouse-inspired accents perfectly blends the timeless charm of yesterday with the comfort and convenience of today. From the very first glance, its distinguished design and balanced architecture create a welcoming atmosphere that instantly feels like home. Expansive windows along the back and side flood the interiors with natural light, filling every room with a warm and inviting glow.
Step outside and you’ll find a covered terrace that feels like a private retreat. It’s the perfect place to sip your morning coffee in the sunshine, host family gatherings, or simply relax while watching the kids play in the yard. No matter the season, this outdoor haven extends your living space and becomes a cherished spot for joy and connection.
Inside, every detail has been thoughtfully designed to make everyday living easier and more enjoyable. The direct access from the garage to the mudroom and pantry makes unloading groceries effortless. At the heart of the home, the spacious kitchen is made for togetherness, featuring a large central island and a walk-in pantry that keeps everything neatly organized. Flowing seamlessly into the dining area, this inviting space is where the family naturally gathers—whether to prepare meals, plan the day ahead, or simply enjoy those everyday moments that make a house feel like home.
The main floor is wonderfully versatile, offering a flexible room that can serve as a bright home office or a fun playroom for the kids. The living room, anchored by a cozy gas fireplace, is the ultimate spot to unwind—perfect for family movie nights, quiet evenings, or welcoming friends in a relaxed and comfortable atmosphere. A discreetly located powder room near the entrance adds both style and practicality.
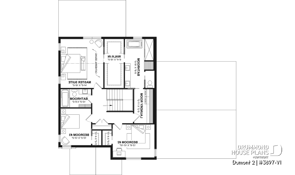
Upstairs, the primary suite is a true retreat. With its soaring cathedral ceiling, expansive double walk-in closet, and private full bathroom, it offers comfort and refinement in equal measure. The laundry room, smartly placed with access from both the hallway and the ensuite, makes daily routines simple and efficient. Two additional bright bedrooms share a family-friendly bathroom, creating the perfect setting for children or guests.
Built on a solid concrete slab foundation and complete with a double garage offering generous storage, this home is more than just a place to live—it’s a sanctuary. A place where a family can grow, where memories are made, and where every day feels like a step closer to living your dream.
Distinctive elements
Modern Farmhouse-inspired home, combining charm and comfort.
Expansive windows at the back and along the right side provide exceptional natural light.
A spacious covered terrace allows you to enjoy the outdoors in every season.
Direct access from the garage to the mudroom and pantry makes unloading groceries easy and convenient.
A welcoming kitchen with a large walk-in pantry and central island, open to the dining area.
Flexible main-floor space that can serve as a home office or playroom, depending on your needs.
Warm and inviting living room with a gas fireplace.
A discreetly located powder room near the front entrance.
Elegant primary suite featuring a cathedral ceiling, a spacious double walk-in closet, and a private ensuite bathroom.
Practical upstairs laundry room, accessible from both the hallway and the primary bathroom.
Two bright secondary bedrooms sharing a family bathroom.
Solid concrete slab foundation.
Double garage with generous storage space.
Plan feature(s)
Ceiling over 8', Fireplace, Mud room, Pantry, Office / Study / Den, Island, Deck, His/Hers walk-in, Separate bath and shower, Double sinks, Cathedral ceiling, Second floor laundry room, Built-ins, Bench seat(s)
Plan architectural style(s)
Modern farmhouse, . Farmhouse, . Transitional, . Modern rustic, . Contemporary, Modern Craftsman
Similar plans
Previously Viewed Plans
Thank you for your comment! It must be approved before being put online, please allow a period of 24 hours.
Error with google reCaptcha! Try again
Here is a brief description of our different plan packages. Please select the plan package that suits your needs. You can change the package at the next step, if necessary.
PDF VERSION OF PLAN:
Complete digital version of plan (pdf format) sent by email (original plan format 18" x 24'' or 24" x 36'')
5 copies of plan + PDF:
Includes: 5 copies of plan, plan in PDF format (reduced size version), materials list.
Foundation type
Additional foundation types are available, a fee may apply. Please indicate your choice on the online order form, or to our customer service representative, when placing your house plan order.
If your desired foundation type is not available, please contact our customer service to receive your free plan modification quote.
Explanation of bonus space types
UNFINISHED BONUS ROOM
The bonus rooms are often planned above the garage and are accessible from the house. They are designed to be converted as an office, a laundry area, a bathroom, a library corner or even an additional bedroom for which homeowners must make sure to have a window that complies with current codes & standards.
STORAGE AREA
Often located above the garage, our storage areas are used only as storage and are usually accessible from the garage via a retractable staircase.
Do you like this plan but want it to be modified to suit your needs?
To add a garage, another bedroom, finish the basement or any other modification, click here and let us know about your desired changes and to get your free quote for the modification of your plan.
Conditions of use
Important copyright notice! Please take note of these copyright conditions before printing:
By printing this house plan, cottage or garage or the floorplan(s), you confirm being informed that every house plan on this website is the exclusive property of Drummond House
Plans and is protected by Canadian copyright law. You are aware that these prints cannot be used to build or even obtain a building permit. The graphic representations of these
models are offered by Drummond House Plans for the sole purpose of allowing you to notate modifications of a model and then take it to one of the Drummond House Plans Canadian dealers for
modification of the plan.
The purchase of a house plan, cottage or garage from Drummond House Plans is mandatory if you wish to build any of our models. The plan purchase allows you to build a single unit; you cannot resell or give your plan to anyone once the house, cottage or garage has been built. If you wish to build the same house, cottage or garage more than once, you need to obtain the licence to this effect. Please contact us for more details.
All plans from Drummond House Plans can only be modified by a licensed Drummond House Plan Canadian dealer. If any other business or individual with no affiliation to Drummond House Plans modifies a Drummond House Plan on your behalf, please ensure this business or individual has a licence to modify this specific plan or you will be subject to prosecution on the same level as the business or individual who modified or reproduced the plan.
For more details, do not hesitate to contact u by e-mail or by phone at 1-800-567-1413.
I agree to respect the conditions above to not reproduce, modify or build a model from Drummond House Plans without previously purchasing a complete house plan.















