There are no shipping fees if you buy one of our 2 plan packages "PDF file format" or "5 sets of blueprints + PDF". Shipping charges may apply if you buy additional sets of blueprints.
House plan Cubika (3730)
Small and compact 2 story modern home plan, 3 bedrooms, laundry on second floor, large pantry
Other useful information on this plan
Cube-shaped economical house plan with 3 bedrooms and laundry room on second floor!
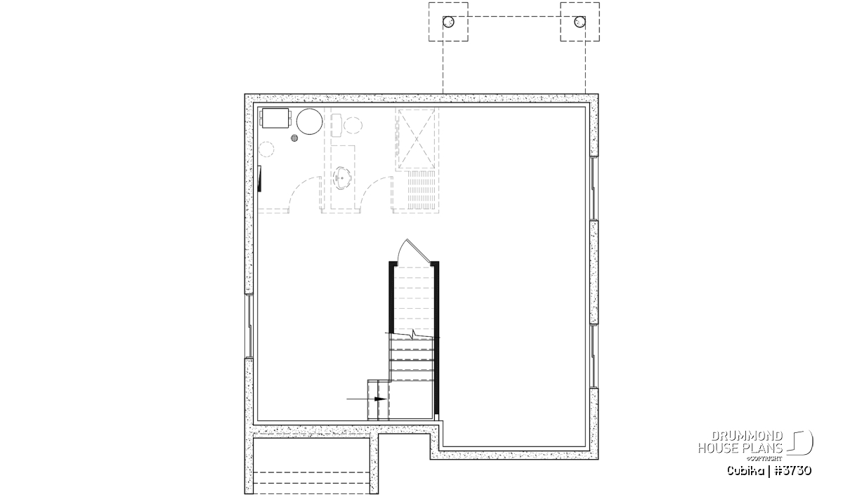
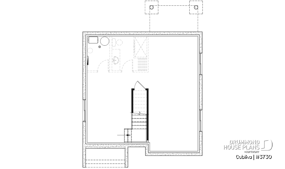
The house plan CUBIKA (3730), offers a cubic-shaped house that gives a very modern and contemporary style. The fact that the plan is of this form, decreases the costs of construction. Three bedrooms, a bathroom and a powder room are found within 1,454 feet of this plan. In addition to the living room, the kitchen and the dining room, a basement can be converted.
From the outside, the layout of the coating gives a very prestigious and modern look. With several textures and colors, such as the dark and square roof of the gallery, black window outlines, the double-glazed door, the addition of a touch of white and a decorative wood wall section, the look is perfect. Note that here too, you save money, prioritizing other materials just as interesting as masonry and a complex roof. These are more expensive, by replacing them with this option, the house becomes more affordable.
Once you enter the house, a spacious area with a bench seat and a walk-in closet acts as a hallway. A little further on the right, a bathroom is installed, before the kitchen and dining room. The kitchen, including a central island and a double sink, also has a walk-in pantry that makes it very functional and open to the space used as a dining room. The latter lets in a lot of light thanks to a large window on one side, and a patio door on the perpendicular wall giving access to the outdoor terrace. To complete the ground floor, the living room is in front of the house. Also very bright one because one of the two large windows on the facade leads into this living room.
The three bedrooms, including the master bedrooms with the second large window in the front and a walk-in closet, are upstairs. The other two bedrooms are of a good size, which can easily be used as a children’s room and/or a guest room. In addition, a bathroom with a shower separates from the bath, with a double sink and the laundry room are on the same floor.
CUBIKA, a Modern house with an affordable cost for a lots of convenience and space.
Distinctive elements
Cube-shaped house plan with 3 bedrooms.
Large mudroom near front entrance.
Open kitchen, dining and living room concept.
Kitchen with island and pantry.
Half bath on main floor.
Laundry room on second floor.
Unfinished daylight basement, can be finished later on.
Plan feature(s)
Pantry, Panoramic view, Second floor laundry room, Island, Walk-in master bed., Mud room, Open floor layout, Bench seat(s), Separate bath and shower, Double sinks
Plan architectural style(s)
. Modern / Design, . Contemporary, . Transitional
Similar plans
Previously Viewed Plans
Thank you for your comment! It must be approved before being put online, please allow a period of 24 hours.
Error with google reCaptcha! Try again
Here is a brief description of our different plan packages. Please select the plan package that suits your needs. You can change the package at the next step, if necessary.
PDF VERSION OF PLAN:
Complete digital version of plan (pdf format) sent by email (original plan format 18" x 24'' or 24" x 36'')
5 copies of plan + PDF:
Includes: 5 copies of plan, plan in PDF format (reduced size version), materials list.
Foundation type
Additional foundation types are available, a fee may apply. Please indicate your choice on the online order form, or to our customer service representative, when placing your house plan order.
If your desired foundation type is not available, please contact our customer service to receive your free plan modification quote.
Explanation of bonus space types
UNFINISHED BONUS ROOM
The bonus rooms are often planned above the garage and are accessible from the house. They are designed to be converted as an office, a laundry area, a bathroom, a library corner or even an additional bedroom for which homeowners must make sure to have a window that complies with current codes & standards.
STORAGE AREA
Often located above the garage, our storage areas are used only as storage and are usually accessible from the garage via a retractable staircase.
Do you like this plan but want it to be modified to suit your needs?
To add a garage, another bedroom, finish the basement or any other modification, click here and let us know about your desired changes and to get your free quote for the modification of your plan.
Conditions of use
Important copyright notice! Please take note of these copyright conditions before printing:
By printing this house plan, cottage or garage or the floorplan(s), you confirm being informed that every house plan on this website is the exclusive property of Drummond House
Plans and is protected by Canadian copyright law. You are aware that these prints cannot be used to build or even obtain a building permit. The graphic representations of these
models are offered by Drummond House Plans for the sole purpose of allowing you to notate modifications of a model and then take it to one of the Drummond House Plans Canadian dealers for
modification of the plan.
The purchase of a house plan, cottage or garage from Drummond House Plans is mandatory if you wish to build any of our models. The plan purchase allows you to build a single unit; you cannot resell or give your plan to anyone once the house, cottage or garage has been built. If you wish to build the same house, cottage or garage more than once, you need to obtain the licence to this effect. Please contact us for more details.
All plans from Drummond House Plans can only be modified by a licensed Drummond House Plan Canadian dealer. If any other business or individual with no affiliation to Drummond House Plans modifies a Drummond House Plan on your behalf, please ensure this business or individual has a licence to modify this specific plan or you will be subject to prosecution on the same level as the business or individual who modified or reproduced the plan.
For more details, do not hesitate to contact u by e-mail or by phone at 1-800-567-1413.
I agree to respect the conditions above to not reproduce, modify or build a model from Drummond House Plans without previously purchasing a complete house plan.








