There are no shipping fees if you buy one of our 2 plan packages "PDF file format" or "5 sets of blueprints + PDF". Shipping charges may apply if you buy additional sets of blueprints.
House plan Country Side (3290)
Spacious 3 bedroom Farmhouse style house plan with formal dining, large family room and lots of light.
Other useful information on this plan
Spacious 3 bedrooms floor plan Modern Farmhouse style house plan with one large bonus room and a 2-car garage!
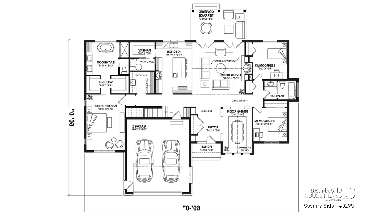
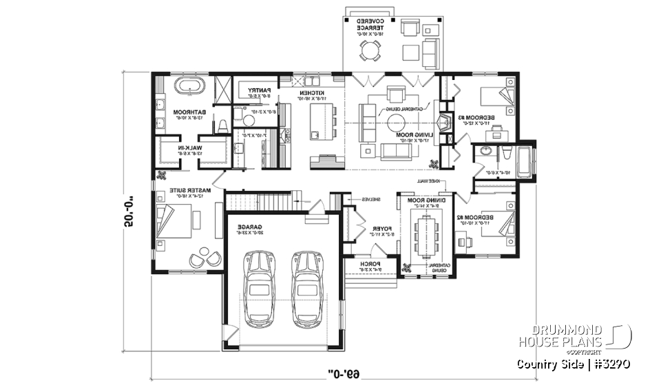
The following home plan, COUNTRY SIDE (3290), offers 2,117 square feet, 3 bedrooms, 2 bathrooms and several distinctive features. In a Modern farmhouse style, this house offers a transitional home and will suit any lifestyle. The basic plan comes with a crawl space basement, but other options may apply, such as an unfinished or even fully finished basement. (Additional charges apply).
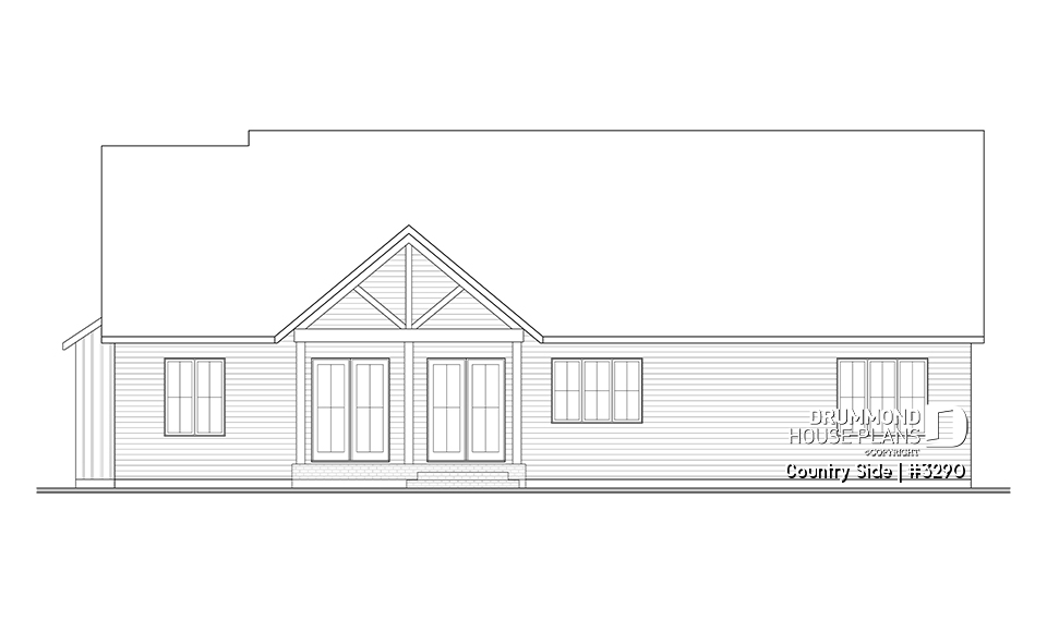
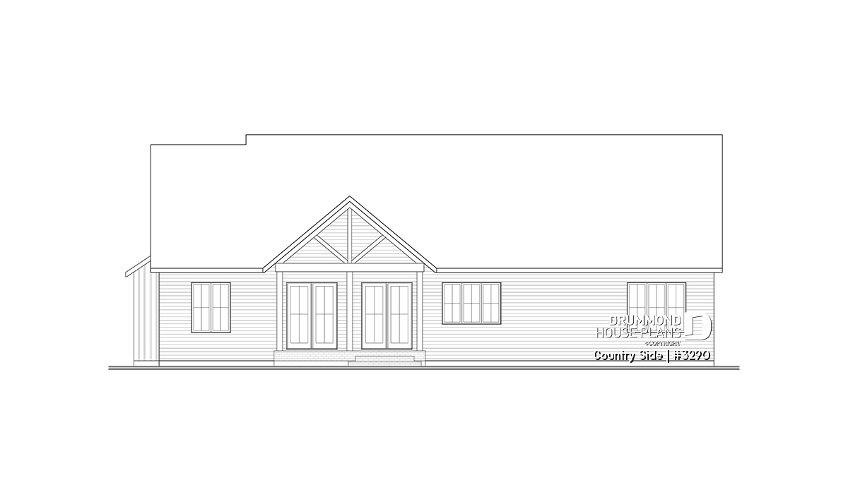
The home’s exterior appearance projects a trendy luxury look, with white vertical siding, brickwork emphasizing the double garage, and dark windows and door. Some additional touches like shutters on the windows and 2 small tin roofs recall the country style of farmhouse type houses.
The entrance to the house is through a sheltered porch. Immediately, the effect of magnitude and space is felt, thanks to the view of the cathedral ceiling of the dining room and the living room. Beside, all ceilings are 9 feet high. All in an open area. To the right, a large double wardrobe makes it easy to store everyday personal effects.
Further in front, the living room and the kitchen are very bright places thanks to several large windows overlooking the backyard and two French doors giving access to the covered terrace. A very interesting panoramic view style. Among the distinctive elements, the living room has a fireplace with integrated shelves on each side.
The kitchen, functional and with a chic and rustic look, has a central island and lots of storage. In addition to the double sink, another small sink is installed on the island. A large 8'X5 ’pantry offers plenty of space, you can also access to the mechanical room is there. Another very interesting storage possibility.
The bedrooms are arranged at the end of each other. Starting with the left end, 2 good-sized bedrooms and a bathroom with a bath shower and a separation between the bowl and the sink. Allowing for more privacy. Opposite is the master suite with a huge walk-in closet, a bathroom with a separate tub and shower and a double sink.
On the same side, the access to the laundry room, to the double garage and to the stairs are there. Note that a bonus space is installed on the second floor, which can offer several configurations.
A well thought out house for more privacy!
Distinctive elements
One-storey Modern farmhouse with bonus room.
Crawlspace foundation, and other foundations available as well.
9' ceiling in everyroom, except the dining and living room have cathedral ceiling.
Total of 3 bedrooms and 2 full bathrooms.
Master suite with 2 walk-in closets and private ensuite.
Bonus / versatile room on second floor.
Large kitchen with island and large pantry.
Living room with fireplace, built-ins and 2 double French doors.
Laundry room on main floor.
Formal dining room.
Rear sheltered balcony.
2 car garage.
Plan feature(s)
Open floor layout, Gound floor laundry room, Split bedrooms, Panoramic view, Living bonus space, Pantry, Island, Ceiling over 8', Cathedral ceiling, Built-ins, Walk-in master bed., Master suite on main, Deck, Fireplace, Coffee bar, Formal dining room
Plan architectural style(s)
. Farmhouse, . American, . Ranch, . Transitional, . Country, . Modern rustic, . Traditional
Similar plans
Previously Viewed Plans
Thank you for your comment! It must be approved before being put online, please allow a period of 24 hours.
Error with google reCaptcha! Try again
Here is a brief description of our different plan packages. Please select the plan package that suits your needs. You can change the package at the next step, if necessary.
PDF VERSION OF PLAN:
Complete digital version of plan (pdf format) sent by email (original plan format 18" x 24'' or 24" x 36'')
5 copies of plan + PDF:
Includes: 5 copies of plan, plan in PDF format (reduced size version), materials list.
Foundation type
Additional foundation types are available, a fee may apply. Please indicate your choice on the online order form, or to our customer service representative, when placing your house plan order.
If your desired foundation type is not available, please contact our customer service to receive your free plan modification quote.
Explanation of bonus space types
UNFINISHED BONUS ROOM
The bonus rooms are often planned above the garage and are accessible from the house. They are designed to be converted as an office, a laundry area, a bathroom, a library corner or even an additional bedroom for which homeowners must make sure to have a window that complies with current codes & standards.
STORAGE AREA
Often located above the garage, our storage areas are used only as storage and are usually accessible from the garage via a retractable staircase.
Do you like this plan but want it to be modified to suit your needs?
To add a garage, another bedroom, finish the basement or any other modification, click here and let us know about your desired changes and to get your free quote for the modification of your plan.
Conditions of use
Important copyright notice! Please take note of these copyright conditions before printing:
By printing this house plan, cottage or garage or the floorplan(s), you confirm being informed that every house plan on this website is the exclusive property of Drummond House
Plans and is protected by Canadian copyright law. You are aware that these prints cannot be used to build or even obtain a building permit. The graphic representations of these
models are offered by Drummond House Plans for the sole purpose of allowing you to notate modifications of a model and then take it to one of the Drummond House Plans Canadian dealers for
modification of the plan.
The purchase of a house plan, cottage or garage from Drummond House Plans is mandatory if you wish to build any of our models. The plan purchase allows you to build a single unit; you cannot resell or give your plan to anyone once the house, cottage or garage has been built. If you wish to build the same house, cottage or garage more than once, you need to obtain the licence to this effect. Please contact us for more details.
All plans from Drummond House Plans can only be modified by a licensed Drummond House Plan Canadian dealer. If any other business or individual with no affiliation to Drummond House Plans modifies a Drummond House Plan on your behalf, please ensure this business or individual has a licence to modify this specific plan or you will be subject to prosecution on the same level as the business or individual who modified or reproduced the plan.
For more details, do not hesitate to contact u by e-mail or by phone at 1-800-567-1413.
I agree to respect the conditions above to not reproduce, modify or build a model from Drummond House Plans without previously purchasing a complete house plan.





















