There are no shipping fees if you buy one of our 2 plan packages "PDF file format" or "5 sets of blueprints + PDF". Shipping charges may apply if you buy additional sets of blueprints.
House plan Beauford 2 (4478-V1)
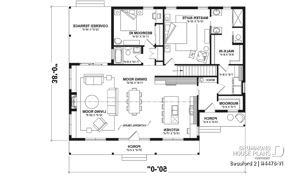
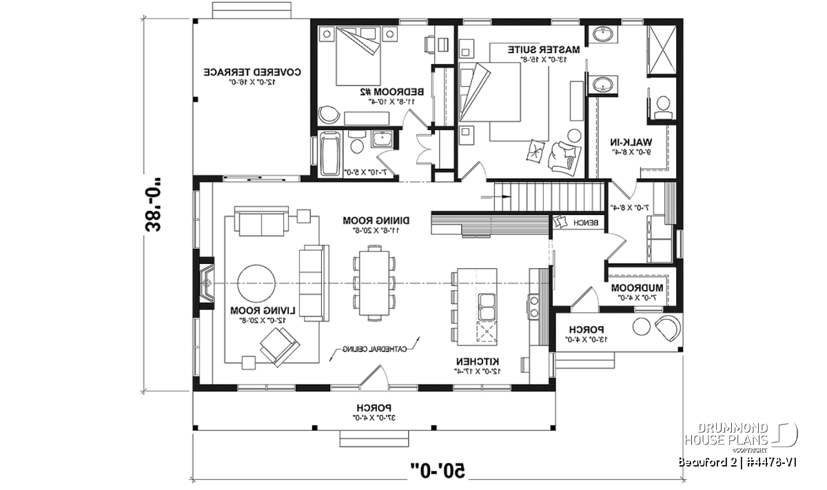
Farmhouse Bungalow Plan with Cathedral Ceiling and Covered Terrace
Other useful information on this plan
Farmhouse Style Bungalow Plan with Cathedral Ceiling, Covered Terrace and 2 Bedrooms
This stunning single-story home, inspired by the timeless American Farmhouse style, offers 1,604 sq.ft. of living space where comfort and functionality come together in perfect harmony. With its elegant yet inviting character, this design blends the rustic charm of a farmhouse with a modern twist, making it ideal for today’s families.
From the moment you step inside, a spacious mudroom welcomes you, providing practical storage for coats, shoes, and everyday essentials. The kitchen, generous in size, features a central island, perfect for cooking, casual meals, or gathering with family and friends. Open to both the dining area and the living room, the layout ensures plenty of natural light and seamless flow throughout the main living spaces. A soaring cathedral ceiling enhances the sense of openness, while a central fireplace creates a warm and inviting heart to the home.
The master suite is designed as a private retreat, complete with a walk-in closet, a full ensuite bathroom, and even a cozy reading nook, an ideal spot to unwind at the end of the day. For added convenience, it also offers direct access to the laundry room.
The secondary bedroom is versatile, designed with a built-in workspace that can easily serve as a home office or study area. Adjacent to a full bathroom, it ensures comfort and privacy for family members or overnight guests.
At the back of the home, a covered 12' x 16' terrace extends the living space outdoors, perfect for enjoying meals al fresco or simply relaxing in the shade. This area becomes a natural extension of the home, offering year-round enjoyment.
For added practicality, this plan also allows the easy addition of a garage, tailored to your needs and lifestyle. As always, our team is available to customize the layout to match your vision. Whether you’re looking to expand certain spaces, adjust the configuration, or personalize key details, we’ll work with you to create the perfect home for you and your family.
Distinctive elements
Modern 2 beds, 2 baths Country Ranch style house plan.
Entrance with mud room and access to laundry room.
Large kitchen with island and open to dining area and living room.
Cathedral ceiling and fireplace in living, dining and kitchen.
Master suite with seating area, private ensuite and large closet. Also direct access to laundry room from master ensuite.
Secondary bedroom next to a full bath.
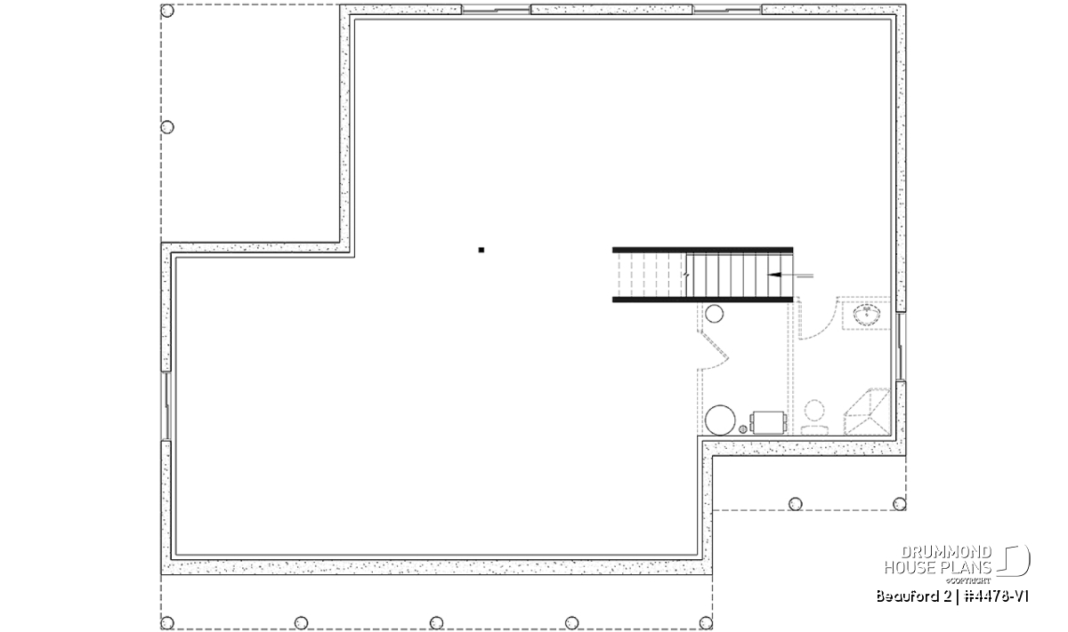
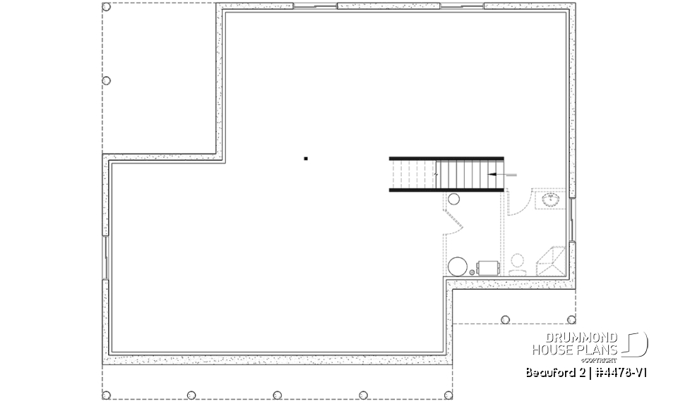
Unfinished daylight basement. Other options available.
Plan feature(s)
Open floor layout, Gound floor laundry room, Fireplace, Island, Master suite upstairs, Walk-in master bed., Deck, Lunch counter, Panoramic view, Built-ins, Ceiling over 8', Cathedral ceiling, Mud room, Double sinks
Plan architectural style(s)
. Ranch, . Rustic, . Modern rustic, . American, . Traditional, . Transitional, . Country, . Farmhouse, . Cottage, chalet, cabin
Similar plans
Previously Viewed Plans
Thank you for your comment! It must be approved before being put online, please allow a period of 24 hours.
Error with google reCaptcha! Try again
Here is a brief description of our different plan packages. Please select the plan package that suits your needs. You can change the package at the next step, if necessary.
PDF VERSION OF PLAN:
Complete digital version of plan (pdf format) sent by email (original plan format 18" x 24'' or 24" x 36'')
5 copies of plan + PDF:
Includes: 5 copies of plan, plan in PDF format (reduced size version), materials list.
Foundation type
Additional foundation types are available, a fee may apply. Please indicate your choice on the online order form, or to our customer service representative, when placing your house plan order.
If your desired foundation type is not available, please contact our customer service to receive your free plan modification quote.
Explanation of bonus space types
UNFINISHED BONUS ROOM
The bonus rooms are often planned above the garage and are accessible from the house. They are designed to be converted as an office, a laundry area, a bathroom, a library corner or even an additional bedroom for which homeowners must make sure to have a window that complies with current codes & standards.
STORAGE AREA
Often located above the garage, our storage areas are used only as storage and are usually accessible from the garage via a retractable staircase.
Do you like this plan but want it to be modified to suit your needs?
To add a garage, another bedroom, finish the basement or any other modification, click here and let us know about your desired changes and to get your free quote for the modification of your plan.
Conditions of use
Important copyright notice! Please take note of these copyright conditions before printing:
By printing this house plan, cottage or garage or the floorplan(s), you confirm being informed that every house plan on this website is the exclusive property of Drummond House
Plans and is protected by Canadian copyright law. You are aware that these prints cannot be used to build or even obtain a building permit. The graphic representations of these
models are offered by Drummond House Plans for the sole purpose of allowing you to notate modifications of a model and then take it to one of the Drummond House Plans Canadian dealers for
modification of the plan.
The purchase of a house plan, cottage or garage from Drummond House Plans is mandatory if you wish to build any of our models. The plan purchase allows you to build a single unit; you cannot resell or give your plan to anyone once the house, cottage or garage has been built. If you wish to build the same house, cottage or garage more than once, you need to obtain the licence to this effect. Please contact us for more details.
All plans from Drummond House Plans can only be modified by a licensed Drummond House Plan Canadian dealer. If any other business or individual with no affiliation to Drummond House Plans modifies a Drummond House Plan on your behalf, please ensure this business or individual has a licence to modify this specific plan or you will be subject to prosecution on the same level as the business or individual who modified or reproduced the plan.
For more details, do not hesitate to contact u by e-mail or by phone at 1-800-567-1413.
I agree to respect the conditions above to not reproduce, modify or build a model from Drummond House Plans without previously purchasing a complete house plan.




























