There are no shipping fees if you buy one of our 2 plan packages "PDF file format" or "5 sets of blueprints + PDF". Shipping charges may apply if you buy additional sets of blueprints.
House plan Charny (3069)
Modern duplex home plan, 3 to 4 bedrooms & 1.5 bathrooms per unit, kitchen w/island, open floor plan concept
Other useful information on this plan
New modern two-storey duplex house plan with plenty of natural light and 3 to 4 beds per unit
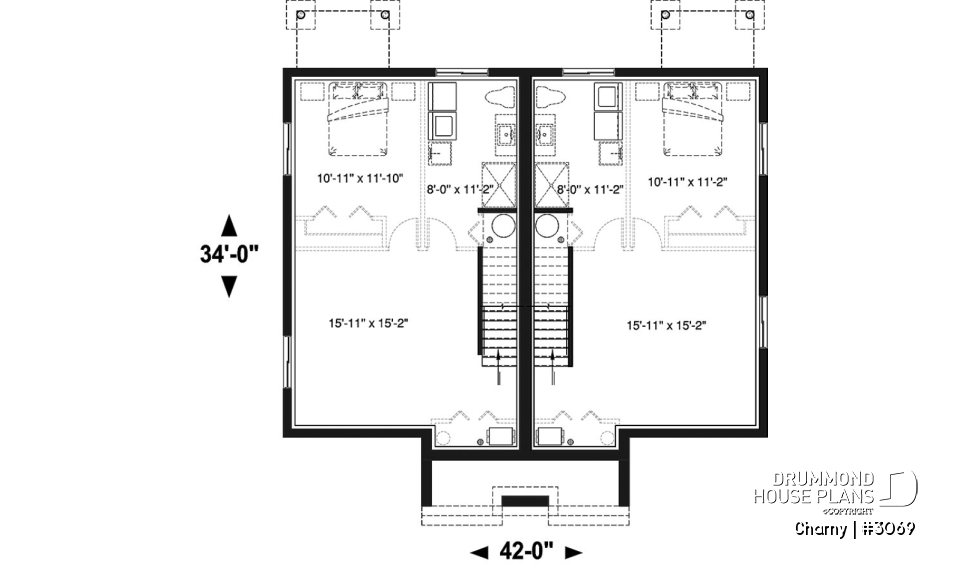
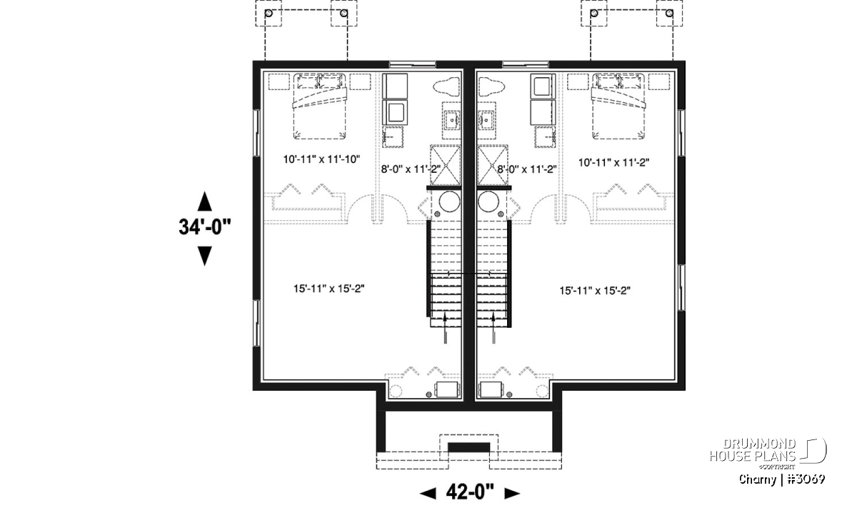
With its contemporary architecture, modern windows with original shapes and spacious and open floor plan, the new two-story duplex house plan # 3069 by Drummond House Plans, also named "Charny", will appeal to young families!
The sheltered balconies at the front, as well as a coat closet from the outset to comfort. The living room and the dining room are in open concept and receive a lot of natural light thanks to the size and the number of windows in this area. The kitchen has a central island and convenient pantry, and it adjoins a half bathroom. Access to the basement is located near the kitchen, and the laundry room is in the basement.
The three bedrooms are located upstairs, which is convenient for families with young children. The master bedroom has a walk-in closet. Two secondary rooms are of similar size and each have a closet. The family bathroom has a separate bath and shower. The plan comes with an unfinished daylight basement but many other foundation options are available through our modification dpt. Please call for information.
Distinctive elements
Trendy modern duplex plan.
Entrance with coat closet.
Half-bath on main floor.
Large kitchen with island & small pantry.
Open concept dining and living room.
Master bedroom with walk-in closet.
Separate bath and shower stall in second floor bathroom.
Unfinished daylight basement. Many foundation options are available, please call for information.
Plan feature(s)
Walk-in master bed., Open floor layout, Island, Builder
Plan architectural style(s)
. Contemporary, . Modern / Design, . Modern rustic
Similar plans
Previously Viewed Plans
Thank you for your comment! It must be approved before being put online, please allow a period of 24 hours.
Error with google reCaptcha! Try again
Here is a brief description of our different plan packages. Please select the plan package that suits your needs. You can change the package at the next step, if necessary.
PDF VERSION OF PLAN:
Complete digital version of plan (pdf format) sent by email (original plan format 18" x 24'' or 24" x 36'')
5 copies of plan + PDF:
Includes: 5 copies of plan, plan in PDF format (reduced size version), materials list.
Foundation type
Additional foundation types are available, a fee may apply. Please indicate your choice on the online order form, or to our customer service representative, when placing your house plan order.
If your desired foundation type is not available, please contact our customer service to receive your free plan modification quote.
Explanation of bonus space types
UNFINISHED BONUS ROOM
The bonus rooms are often planned above the garage and are accessible from the house. They are designed to be converted as an office, a laundry area, a bathroom, a library corner or even an additional bedroom for which homeowners must make sure to have a window that complies with current codes & standards.
STORAGE AREA
Often located above the garage, our storage areas are used only as storage and are usually accessible from the garage via a retractable staircase.
Do you like this plan but want it to be modified to suit your needs?
To add a garage, another bedroom, finish the basement or any other modification, click here and let us know about your desired changes and to get your free quote for the modification of your plan.
Conditions of use
Important copyright notice! Please take note of these copyright conditions before printing:
By printing this house plan, cottage or garage or the floorplan(s), you confirm being informed that every house plan on this website is the exclusive property of Drummond House
Plans and is protected by Canadian copyright law. You are aware that these prints cannot be used to build or even obtain a building permit. The graphic representations of these
models are offered by Drummond House Plans for the sole purpose of allowing you to notate modifications of a model and then take it to one of the Drummond House Plans Canadian dealers for
modification of the plan.
The purchase of a house plan, cottage or garage from Drummond House Plans is mandatory if you wish to build any of our models. The plan purchase allows you to build a single unit; you cannot resell or give your plan to anyone once the house, cottage or garage has been built. If you wish to build the same house, cottage or garage more than once, you need to obtain the licence to this effect. Please contact us for more details.
All plans from Drummond House Plans can only be modified by a licensed Drummond House Plan Canadian dealer. If any other business or individual with no affiliation to Drummond House Plans modifies a Drummond House Plan on your behalf, please ensure this business or individual has a licence to modify this specific plan or you will be subject to prosecution on the same level as the business or individual who modified or reproduced the plan.
For more details, do not hesitate to contact u by e-mail or by phone at 1-800-567-1413.
I agree to respect the conditions above to not reproduce, modify or build a model from Drummond House Plans without previously purchasing a complete house plan.















