There are no shipping fees if you buy one of our 2 plan packages "PDF file format" or "5 sets of blueprints + PDF". Shipping charges may apply if you buy additional sets of blueprints.
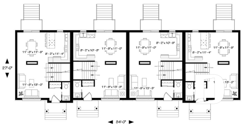
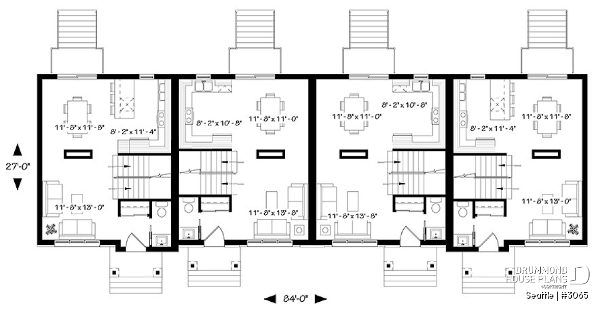
House plan Seattle (3065)
House plan Seattle (3065)
4 unit multi plex plan, 3 to 4 bedroom, cathedral ceiling, two-sided fireplace, various kitchen design options
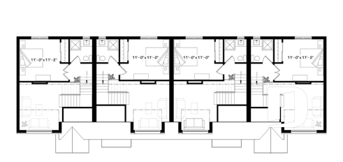
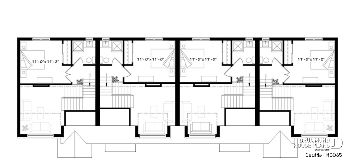
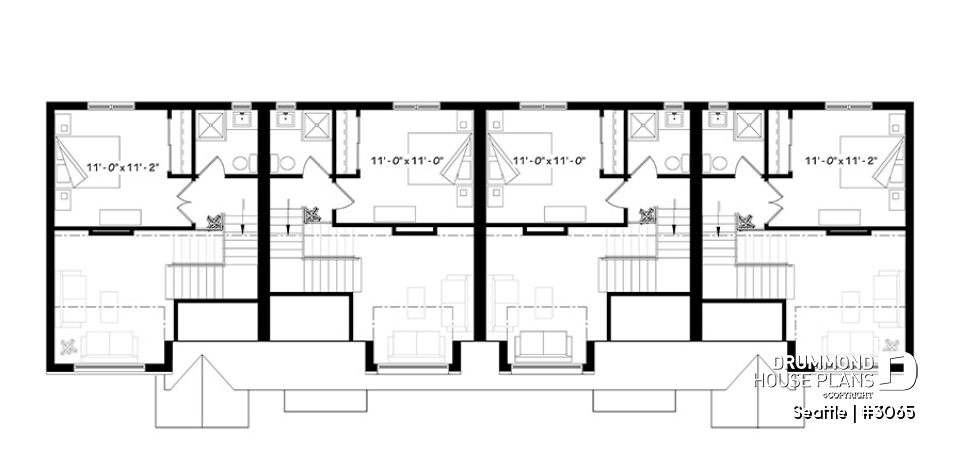
View the size of the rooms and height of the ceilings
| 1st level | ||
|---|---|---|
| Rooms | Sizes | Ceiling |
| Kitchen | 8'2" x 11'4" | ~ 8'0" |
| Dining room | 11'8" x 11'8" | ~ 8'0" |
| Living room | 11'8" x 13'0" | ~ 8'0" |
| Powder room | 3'0" x 7'0" | ~ 8'0" |
| Foyer | 4'10" x 4'8" | ~ 8'0" |
| Covered porch | 8'0" x 4'0" | N/A |
| Closet | 4'6" x 2'0" | ~ 8'0" |
| Kitchen | 8'2" x 10'8" | ~ 8'0" |
| Dining room | 11'8" x 11'0" | ~ 8'0" |
| Living room | 11'8" x 13'8" | ~ 8'0" |
| Closet | 4'4" x 2'0" | ~ 8'0" |
| Foyer | 4'8" x 4'3" | ~ 8'0" |
| Powder room | 3'0" x 6'7" | ~ 8'0" |
| Powder room | 3'0" x 7'0" | ~ 8'0" |
| Kitchen | 8'2" x 11'4" | ~ 8'0" |
| Foyer | 4'10" x 4'8" | ~ 8'0" |
| Closet | 4'6" x 2'0" | ~ 8'0" |
| Covered porch | 8'0" x 4'0" | N/A |
| Living room | 11'8" x 13'0" | ~ 8'0" |
| Covered porch | 8'0" x 4'0" | N/A |
| Porch | 8'0" x 4'0" | N/A |
| Porch | 8'0" x 4'0" | N/A |
| Powder room | 3'0" x 6'7" | ~ 8'0" |
| Kitchen | 8'2" x 10'8" | ~ 8'0" |
| Foyer | 4'8" x 4'3" | ~ 8'0" |
| Closet | 4'4" x 2'0" | ~ 8'0" |
| Covered porch | 8'0" x 4'0" | N/A |
| Dining room | 11'8" x 11'0" | ~ 8'0" |
| Living room | 11'8" x 13'8" | ~ 8'0" |
| Porch | 8'0" x 4'0" | N/A |
| Porch | 8'0" x 4'0" | N/A |
| Basement | ||
|---|---|---|
| Rooms | Sizes | Ceiling |
| Bedroom | 10'0" x 11'0" | ~ 8'0" |
| Closet | 4'6" x 2'0" | ~ 8'0" |
| Bedroom | 9'0" x 10'0" | ~ 8'0" |
| Closet | 5'4" x 2'0" | ~ 8'0" |
| Laundry room | 5'4" x 3'0" | ~ 8'0" |
| Bathroom | 8'8" x 6'7" | ~ 8'0" |
| Office | 10'4" x 7'10" | ~ 8'0" |
| Laundry room | 5'4" x 3'0" | ~ 8'0" |
| Bedroom | 10'0" x 11'0" | ~ 8'0" |
| Closet | 5'6" x 2'0" | ~ 8'0" |
| Bedroom | 9'0" x 10'0" | ~ 8'0" |
| Closet | 4'6" x 2'0" | ~ 8'0" |
| Office | 10'4" x 7'10" | ~ 8'0" |
| Bathroom | 8'8" x 6'7" | ~ 8'0" |
| Laundry room | 5'3" x 3'0" | ~ 8'0" |
| Bedroom | 10'6" x 10'4" | ~ 8'0" |
| Closet | 5'4" x 2'0" | ~ 8'0" |
| Bedroom | 9'0" x 10'4" | ~ 8'0" |
| Closet | 4'6" x 2'0" | ~ 8'0" |
| Office | 10'8" x 7'6" | ~ 8'0" |
| Bathroom | 8'10" x 6'7" | ~ 8'0" |
| Laundry room | 5'3" x 3'0" | ~ 8'0" |
| Bedroom | 10'6" x 10'4" | ~ 8'0" |
| Closet | 5'4" x 2'0" | ~ 8'0" |
| Bedroom | 9'0" x 10'4" | ~ 8'0" |
| Closet | 4'6" x 2'0" | ~ 8'0" |
| Office | 10'8" x 7'6" | ~ 8'0" |
| Bathroom | 8'10" x 6'7" | ~ 8'0" |
| 2nd level | ||
|---|---|---|
| Rooms | Sizes | Ceiling |
| Bedroom | 11'0" x 11'4" | ~ 8'0" |
| Closet | 2'0" x 6'3" | ~ 8'0" |
| Shower room or three quarter bath | 6'0" x 6'3" | ~ 8'0" |
| Bedroom | 11'0" x 11'4" | ~ 8'0" |
| Shower room or three quarter bath | 6'0" x 6'3" | ~ 8'0" |
| Bedroom | 11'0" x 11'0" | ~ 8'0" |
| Bedroom | 11'0" x 11'0" | ~ 8'0" |
| Shower room or three quarter bath | 6'0" x 6'3" | ~ 8'0" |
| Shower room or three quarter bath | 6'0" x 6'3" | ~ 8'0" |
General specifications
| Total living area | 5446 sq.ft. |
| 1st level | 2224 sq.ft. |
| 2nd level | 998 sq.ft. |
| Basement | 2224 sq.ft. |
| Width | 84'0" |
| Depth | 27'0" |
| Ridge height from top of foundation | 25'2" |
| Exterior wall | 2 X 6 |
| Foundation type included in the plan | Finished basement |
| Builder price code | MH |
Rooms specifications
| Bedroom(s) | 1, 2, 3 |
| Full baths | 6 |
| Half baths | 3 |
| Garage type | - |
| Living bonus space | - |
| Bonus storage | - |
| Covered porch area | 256 sq.ft. |
| Unit A | Unit B | Unit C | Unit D | |
| Total living area | 1375 sq.ft. | 1354 sq.ft. | 1354 sq.ft. | 1375 sq.ft. |
| Basement | 559 sq.ft. | 553 sq.ft. | 553 sq.ft. | 559 sq.ft. |
| 1st level | 559 sq.ft. | 553 sq.ft. | 553 sq.ft. | 559 sq.ft. |
| 2nd level | 257 sq.ft. | 248 sq.ft. | 248 sq.ft. | 257 sq.ft. |
| Width | 21' 0" | 21' 0" | 21' 0" | 21' 0" |
| Depth | 27' 0" | 26' 4" | 26' 4" | 27' 0" |
| Ridge height from top of foundation | 25' 2" | 25' 2" | 25' 2" | 25' 2" |
| Exterior wall | 2 X 6 | 2 X 6 | 2 X 6 | 2 X 6 |
| Foundation type | Finished basement | Finished basement | Finished basement | Finished basement |
| Bedroom(s) | 3 | 3 | 3 | - |
| Full baths | 2 | 2 | 2 | 2 |
| Half baths | 1 | 1 | 1 | 1 |
| Garage type | - | - | - | - |
| Living bonus space | - | - | - | - |
| Bonus storage | - | - | - | - |
General specifications
| Total living area | 5446 sq.ft. |
| 1st level | 2224 sq.ft. |
| Basement | 2224 sq.ft. |
| 2nd level | 998 sq.ft. |
| Width | 84'0" |
| Depth | 27'0" |
| Ridge height from top of foundation | 25'2" |
| Exterior wall | 2 X 6 |
| Foundation type included in the plan | Finished basement i |
| Builder price code | MH |
Rooms specifications
| Bedroom(s) | 1, 2, 3 |
| Full baths | 6 |
| Half baths | 3 |
| Garage type | - |
| Living bonus space | - i |
| Bonus storage | - i |
| Covered porch area | 256 sq.ft. |
Units specifications
| Unit A | Unit B | Unit C | Unit D | |
| Total living area | 1375 sq.ft. | 1354 sq.ft. | 1354 sq.ft. | 1375 sq.ft. |
| Basement | 559 sq.ft. | 553 sq.ft. | 553 sq.ft. | 559 sq.ft. |
| 1st level | 559 sq.ft. | 553 sq.ft. | 553 sq.ft. | 559 sq.ft. |
| 2nd level | 257 sq.ft. | 248 sq.ft. | 248 sq.ft. | 257 sq.ft. |
| Width | 21' 0" | 21' 0" | 21' 0" | 21' 0" |
| Depth | 27' 0" | 26' 4" | 26' 4" | 27' 0" |
| Ridge height from top of foundation | 25' 2" | 25' 2" | 25' 2" | 25' 2" |
| Exterior wall | 2 X 6 | 2 X 6 | 2 X 6 | 2 X 6 |
| Foundation type | Finished basement | Finished basement | Finished basement | Finished basement |
| Bedroom(s) | 3 | 3 | 3 | - |
| Full baths | 2 | 2 | 2 | 2 |
| Half baths | 1 | 1 | 1 | 1 |
| Garage type | - | - | - | - |
| Living bonus space | - | - | - | - |
| Bonus storage | - | - | - | - |
Other useful information on this plan
A very efficient 4 unit multi-family Mountain style house plan (or quad plex plans)!
Drummond Designs suggest here a 4 unit multi-family house plan, of a modern rustic style, with a combination of stone and siding. The floor layout is designed to maximize each floor and offer affordable building costs (basement being fully utilized) while maintaining a beautiful interior brightness due to the large windows and cathedral ceilings attributed to the living area, at the front of the house.
Note that there is a rear terrace (patio) for each of the four units.
Inside, each unit suggests a well windowed activities area with large windows in the living room and double patio doors in the dining room to access the terrace. Added to this, a double-sided fireplace in each unit, a kitchen island or not, depending on the choice of kitchen layout you make, and a half-bath on the ground floor, handy for the guests. Not to mention, three good size bedrooms, two of them in the basement with full bathroom and the master bedroom which is located upstairs with its private shower room. Finally a computer corner, a storage closet and a laundry area are located in the finished basement.
Distinctive elements
Appealing and affordable modern rustic home plan.
Entry hall with coat closet.
Powder room for guests, on main floor.
Cathedral ceiling in living room.
Two-sided fireplace between living & dining rooms.
Office corner (or bedroom #4) located in finished basement.
Plan feature(s)
Lunch counter, Lunch counter, Fireplace, Fireplace, Fireplace, Fireplace, Mezzanine, Mezzanine, Mezzanine, Mezzanine, Cathedral ceiling
Plan architectural style(s)
. Modern rustic, . Country, . American, . Rustic, . Cottage, chalet, cabin, . Ski chalets, . Transitional, . Mountain, . Craftsman / Northwest
Similar plans
Previously Viewed Plans
Thank you for your comment! It must be approved before being put online, please allow a period of 24 hours.
Error with google reCaptcha! Try again
Want to modify this plan?
Free plan modification quoteNeed help?
Contact usCome see us
Our 31 regional officesYou may also like
Similar plans
Description
Finished basement:
2 secondary bedrooms, full bathroom, laundry area, storage, study.
Main floor:
Entry hall, half bath, living room, dining room and kitchen.
Second floor:
Master bedroom, shower room, mezzanine overlooking the living room.
Awards and
Recognition
Here is a brief description of our different plan packages. Please select the plan package that suits your needs. You can change the package at the next step, if necessary.
PDF VERSION OF PLAN:
Complete digital version of plan (pdf format) sent by email (original plan format 18" x 24'' or 24" x 36'')
5 copies of plan + PDF:
Includes: 5 copies of plan, plan in PDF format (reduced size version), materials list.
Foundation type
Additional foundation types are available, a fee may apply. Please indicate your choice on the online order form, or to our customer service representative, when placing your house plan order.
If your desired foundation type is not available, please contact our customer service to receive your free plan modification quote.
Explanation of bonus space types
UNFINISHED BONUS ROOM
The bonus rooms are often planned above the garage and are accessible from the house. They are designed to be converted as an office, a laundry area, a bathroom, a library corner or even an additional bedroom for which homeowners must make sure to have a window that complies with current codes & standards.
STORAGE AREA
Often located above the garage, our storage areas are used only as storage and are usually accessible from the garage via a retractable staircase.
Do you like this plan but want it to be modified to suit your needs?
To add a garage, another bedroom, finish the basement or any other modification, click here and let us know about your desired changes and to get your free quote for the modification of your plan.
Conditions of use
Important copyright notice! Please take note of these copyright conditions before printing:
By printing this house plan, cottage or garage or the floorplan(s), you confirm being informed that every house plan on this website is the exclusive property of Drummond House
Plans and is protected by Canadian copyright law. You are aware that these prints cannot be used to build or even obtain a building permit. The graphic representations of these
models are offered by Drummond House Plans for the sole purpose of allowing you to notate modifications of a model and then take it to one of the Drummond House Plans Canadian dealers for
modification of the plan.
The purchase of a house plan, cottage or garage from Drummond House Plans is mandatory if you wish to build any of our models. The plan purchase allows you to build a single unit; you cannot resell or give your plan to anyone once the house, cottage or garage has been built. If you wish to build the same house, cottage or garage more than once, you need to obtain the licence to this effect. Please contact us for more details.
All plans from Drummond House Plans can only be modified by a licensed Drummond House Plan Canadian dealer. If any other business or individual with no affiliation to Drummond House Plans modifies a Drummond House Plan on your behalf, please ensure this business or individual has a licence to modify this specific plan or you will be subject to prosecution on the same level as the business or individual who modified or reproduced the plan.
For more details, do not hesitate to contact u by e-mail or by phone at 1-800-567-1413.
I agree to respect the conditions above to not reproduce, modify or build a model from Drummond House Plans without previously purchasing a complete house plan.















