There are no shipping fees if you buy one of our 2 plan packages "PDF file format" or "5 sets of blueprints + PDF". Shipping charges may apply if you buy additional sets of blueprints.
House plan Whitehill (3740)
Two-story Classic style home, open area and games room on the ground floor, 3 bedrooms
Virtual visit
Other useful information on this plan
Great open floor plan for families who know how and love to entertain!
.
Distinctive elements
House with stone on the front elevation adding a rustic effect to this classic style.
Front entrance open on two floors with 18'-6'' ceiling.
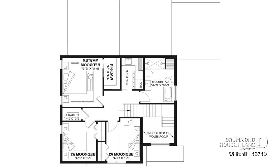
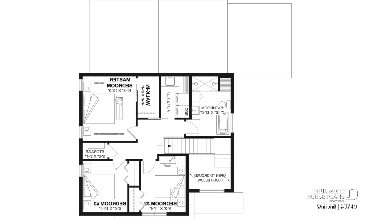
Large walk-in coat closet with seating area and built-in furniture.
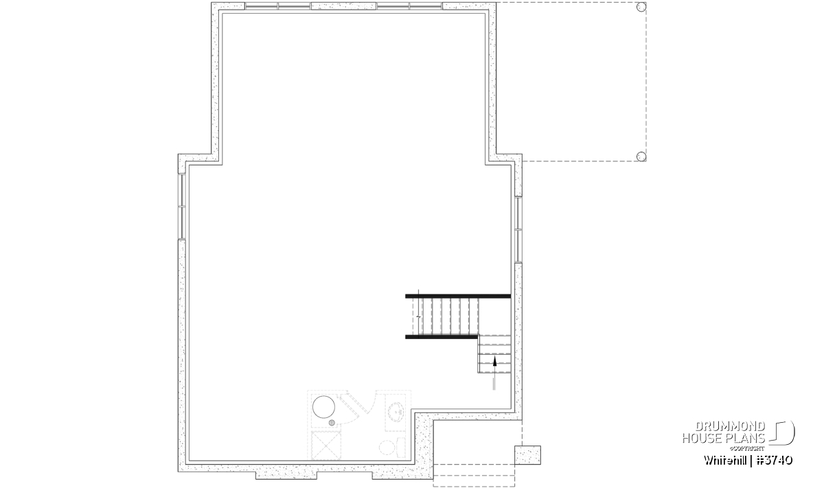
Storage possible in the mechanical room area.
Shower room set back from the common areas.
Game room (or bedroom #4) near the kitchen.
Kitchen with large pantry and island.
Dining room and living room with cathedral ceiling that welcomes plenty of natural light. Fireplace in living room.
9' ceiling throughout the main floor.
Living room leading to the covered terrace on the left side.
Parents' bedroom upstairs with walk-in closet.
2 good-sized secondary bedrooms.
Laundry room with good sized sink planned for the upstairs.
Family bathroom with separate bath and shower.
Planned foundation: floating slab. Several types of foundations available for all our plans.
Plan feature(s)
2-Story foyer, Game room, Deck, Pantry, Master suite upstairs, Mud room, Open floor layout, Shelves, Cathedral ceiling, Ceiling over 8', Island, Fireplace, Panoramic view, Walk-in master bed., Separate bath and shower, Second floor laundry room, Bench seat(s), Built-ins
Plan architectural style(s)
Modern French Country, . Farmhouse, . Transitional, . Modern / Design, . Modern rustic, Classic
Similar plans
Previously Viewed Plans
Thank you for your comment! It must be approved before being put online, please allow a period of 24 hours.
Error with google reCaptcha! Try again
Here is a brief description of our different plan packages. Please select the plan package that suits your needs. You can change the package at the next step, if necessary.
PDF VERSION OF PLAN:
Complete digital version of plan (pdf format) sent by email (original plan format 18" x 24'' or 24" x 36'')
5 copies of plan + PDF:
Includes: 5 copies of plan, plan in PDF format (reduced size version), materials list.
Foundation type
Additional foundation types are available, a fee may apply. Please indicate your choice on the online order form, or to our customer service representative, when placing your house plan order.
If your desired foundation type is not available, please contact our customer service to receive your free plan modification quote.
Explanation of bonus space types
UNFINISHED BONUS ROOM
The bonus rooms are often planned above the garage and are accessible from the house. They are designed to be converted as an office, a laundry area, a bathroom, a library corner or even an additional bedroom for which homeowners must make sure to have a window that complies with current codes & standards.
STORAGE AREA
Often located above the garage, our storage areas are used only as storage and are usually accessible from the garage via a retractable staircase.
Do you like this plan but want it to be modified to suit your needs?
To add a garage, another bedroom, finish the basement or any other modification, click here and let us know about your desired changes and to get your free quote for the modification of your plan.
Conditions of use
Important copyright notice! Please take note of these copyright conditions before printing:
By printing this house plan, cottage or garage or the floorplan(s), you confirm being informed that every house plan on this website is the exclusive property of Drummond House
Plans and is protected by Canadian copyright law. You are aware that these prints cannot be used to build or even obtain a building permit. The graphic representations of these
models are offered by Drummond House Plans for the sole purpose of allowing you to notate modifications of a model and then take it to one of the Drummond House Plans Canadian dealers for
modification of the plan.
The purchase of a house plan, cottage or garage from Drummond House Plans is mandatory if you wish to build any of our models. The plan purchase allows you to build a single unit; you cannot resell or give your plan to anyone once the house, cottage or garage has been built. If you wish to build the same house, cottage or garage more than once, you need to obtain the licence to this effect. Please contact us for more details.
All plans from Drummond House Plans can only be modified by a licensed Drummond House Plan Canadian dealer. If any other business or individual with no affiliation to Drummond House Plans modifies a Drummond House Plan on your behalf, please ensure this business or individual has a licence to modify this specific plan or you will be subject to prosecution on the same level as the business or individual who modified or reproduced the plan.
For more details, do not hesitate to contact u by e-mail or by phone at 1-800-567-1413.
I agree to respect the conditions above to not reproduce, modify or build a model from Drummond House Plans without previously purchasing a complete house plan.


















