There are no shipping fees if you buy one of our 2 plan packages "PDF file format" or "5 sets of blueprints + PDF". Shipping charges may apply if you buy additional sets of blueprints.
House plan Elliot (3734)
House Plan – Bright Cottage with 3 Bedrooms, 18'4" Ceiling and Flexible Basement
Virtual visit
Other useful information on this plan
Cottage House Plan – 3 Bedrooms, 18'4" Great Room Ceiling and Spacious Basement
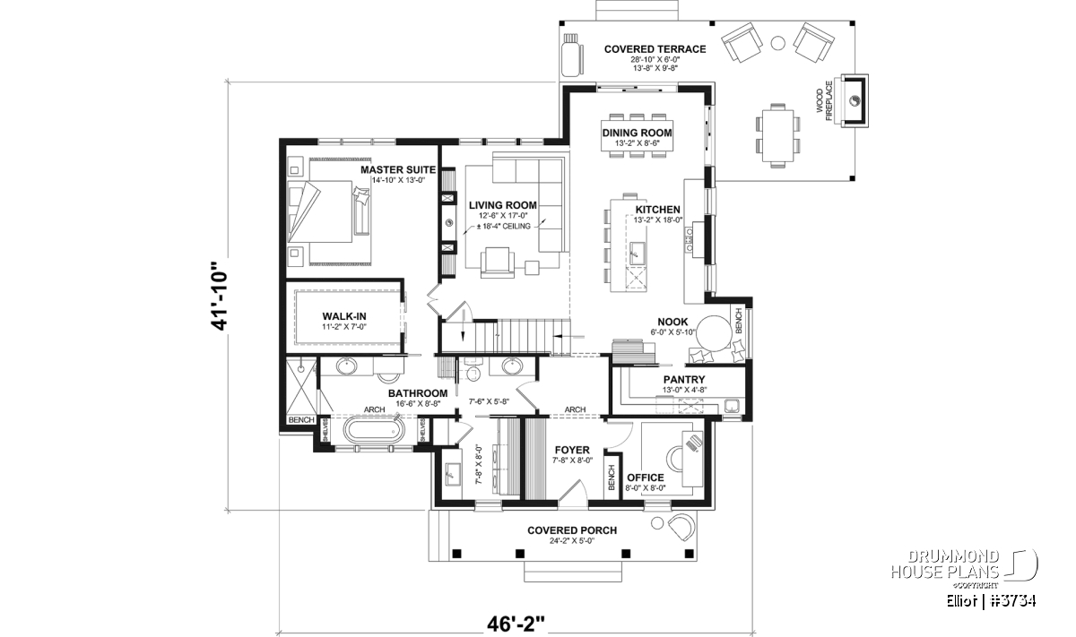
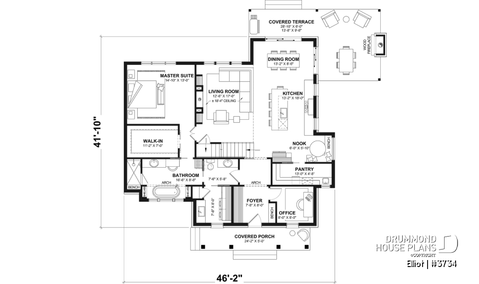
The ELLIOT Cottage House Plan (#3734) offers 2,268 sq. ft. of living space across two stories, with an unfinished basement adding an additional 1,582 sq. ft.
This two-story home stands out for its soft color palette and warm atmosphere, highlighted by a large covered front porch. It’s easy to imagine relaxing here in a pair of chairs, taking in the scenery.
From the entryway, the layout has been designed to combine practicality and elegance. To the right, a functional home office is paired with a large closet and built-in bench. The transition into the kitchen is marked by an elegant architectural archway, setting the tone for the beautiful design details to follow.
The kitchen, open to the dining room and living area, is a true chef’s delight. To the right, a charming dinette with round table and built-in banquette comfortably seats two to three people. The pantry includes a sink, wine storage, and generous space for all your groceries. At the heart of the kitchen, a large 9' x 3'6" island becomes the perfect gathering spot for homework time with the kids or happy hour with friends.
A Bright Living Space with a Signature Fireplace
The kitchen opens onto a majestic great room with an 18'4" ceiling, creating an impressive sense of space. At the heart of this area stands a central fireplace, a true signature element of the plan. The proposed model—the STÛV s21 wood-burning fireplace—combines high performance with elegant design. It becomes the focal point of the living room, bringing warmth, Scandinavian-inspired ambiance, and timeless charm to evenings with family or friends. Large rear-facing windows flood the space with natural light, enhancing the welcoming atmosphere.
The dining room comfortably seats six or more and also benefits from abundant light thanks to two sets of patio doors leading to a beautiful covered terrace. This outdoor space even accommodates a fireplace (not included in the estimated construction cost), allowing you to extend your evenings outside in a cozy atmosphere.
Upstairs you’ll find two secondary bedrooms, a full bathroom, and a spacious family room—an ideal retreat for children and teens to host their friends.
The 1,582 sq. ft. unfinished basement initially serves as storage space and can evolve over time to suit your needs: gym, home theater, additional bedrooms, and more.
The ELLIOT House Plan has been designed as an exceptional home, capable of adapting to your family’s present and future needs.
Distinctive elements
Discover This Stunning French Modern Home Combining Elegance and Functionality
3 bedrooms plus a home office, with an unfinished basement ready to be customized (extra bedrooms, playroom, gym, etc.).
Spacious ceilings: 9' on the main floor and an impressive 18'4" in the living room.
Sloped ceilings upstairs add charm and character to the interior architecture.
Home office near the entry, ideal for working from home.
Elegant architectural archway between the entry and kitchen for a refined touch.
High-end kitchen with a large island, a cozy dinette with built-in banquette seating, and a generous pantry.
Two-story living room enhanced with a *fireplace and built-in cabinetry.
*Suggested fireplace: STÛV s21 wood-burning model.
Primary suite with walk-in closet and private bathroom featuring a soaking tub, separate shower, and makeup area.
Main-floor laundry room with powder room adjoining the primary bedroom for added convenience.
Two secondary bedrooms upstairs sharing a full bathroom and a spacious family room.
Large covered terrace with outdoor fireplace, perfect for extending evenings outside in a warm, inviting atmosphere.
Plan feature(s)
Arch, Breakfast nook, Fireplace, Warparound, Pantry, Open on 2 floors, Bench seat(s), Office / Study / Den, Separate bath and shower, Master suite on main, Walk-in master bed., Built-ins, Open floor layout, Island, Ceiling over 8', Deck, Double sinks, Shelves, Sloped ceiling
Plan architectural style(s)
. Transitional, . Farmhouse, Modern farmhouse, . Traditional, . American, Modern French Country, . Country, French Country, . Cape Cod
Similar plans
Previously Viewed Plans
Thank you for your comment! It must be approved before being put online, please allow a period of 24 hours.
Error with google reCaptcha! Try again
Here is a brief description of our different plan packages. Please select the plan package that suits your needs. You can change the package at the next step, if necessary.
PDF VERSION OF PLAN:
Complete digital version of plan (pdf format) sent by email (original plan format 18" x 24'' or 24" x 36'')
5 copies of plan + PDF:
Includes: 5 copies of plan, plan in PDF format (reduced size version), materials list.
Foundation type
Additional foundation types are available, a fee may apply. Please indicate your choice on the online order form, or to our customer service representative, when placing your house plan order.
If your desired foundation type is not available, please contact our customer service to receive your free plan modification quote.
Explanation of bonus space types
UNFINISHED BONUS ROOM
The bonus rooms are often planned above the garage and are accessible from the house. They are designed to be converted as an office, a laundry area, a bathroom, a library corner or even an additional bedroom for which homeowners must make sure to have a window that complies with current codes & standards.
STORAGE AREA
Often located above the garage, our storage areas are used only as storage and are usually accessible from the garage via a retractable staircase.
Do you like this plan but want it to be modified to suit your needs?
To add a garage, another bedroom, finish the basement or any other modification, click here and let us know about your desired changes and to get your free quote for the modification of your plan.
Conditions of use
Important copyright notice! Please take note of these copyright conditions before printing:
By printing this house plan, cottage or garage or the floorplan(s), you confirm being informed that every house plan on this website is the exclusive property of Drummond House
Plans and is protected by Canadian copyright law. You are aware that these prints cannot be used to build or even obtain a building permit. The graphic representations of these
models are offered by Drummond House Plans for the sole purpose of allowing you to notate modifications of a model and then take it to one of the Drummond House Plans Canadian dealers for
modification of the plan.
The purchase of a house plan, cottage or garage from Drummond House Plans is mandatory if you wish to build any of our models. The plan purchase allows you to build a single unit; you cannot resell or give your plan to anyone once the house, cottage or garage has been built. If you wish to build the same house, cottage or garage more than once, you need to obtain the licence to this effect. Please contact us for more details.
All plans from Drummond House Plans can only be modified by a licensed Drummond House Plan Canadian dealer. If any other business or individual with no affiliation to Drummond House Plans modifies a Drummond House Plan on your behalf, please ensure this business or individual has a licence to modify this specific plan or you will be subject to prosecution on the same level as the business or individual who modified or reproduced the plan.
For more details, do not hesitate to contact u by e-mail or by phone at 1-800-567-1413.
I agree to respect the conditions above to not reproduce, modify or build a model from Drummond House Plans without previously purchasing a complete house plan.




























