There are no shipping fees if you buy one of our 2 plan packages "PDF file format" or "5 sets of blueprints + PDF". Shipping charges may apply if you buy additional sets of blueprints.
House plan The Pocono 4 (3914-V2)
4 bedroom Lakefront Cottage-Style house plan with solarium, 2-car garage, double sided fireplace
Other useful information on this plan
Bright and beautiful 4 bedroom cottage style house plan that offers spectacular views!
Inspired by this popular series, this superb chalet design offers the same generous deck but with an 11'4" square solarium that is accessible either from the deck or through patio doors from the master bedroom and an extra bedroom for today's larger and blended families.
The master suite on the main level has a walk-in closet and the bathroom includes a double vanity, a large, 8'2" x 7'8" shower room and a walk-in closet. The two sided fireplace adds a wonderfully cozy feeling to the bedroom and is also visible from the living/dining area. A computer corner just off the main foyer, between the kitchen and family areas, offers a quiet place to catch-up that is not entirely isolated from the rest of the family.
A powder room with shower, separate laundry area and a pantry are extra features that are sure to please!
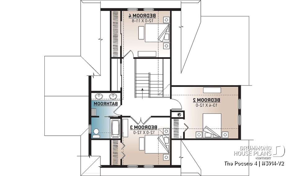
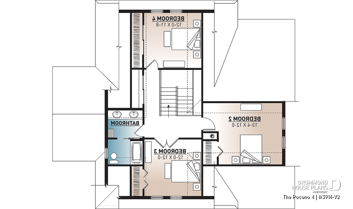
Upstairs, three other nicely sized bedrooms, with abundant closet space in each, share a full bathroom that has a double vanity and a linen closet. The bath and toilet are behind a pocket door for enhanced privacy.
Distinctive elements
9' ceiling in the activity area. Fireplace shared between master suite and living room. Remarkable kitchen with walk-in pantry, two windows and 20' linear of counter. Master suite with private shower room and walk-in closet. Three nice bedrooms on 2nd level share a full bath. Two-car garage in the basement with workshop-storage space nearby.
Plan feature(s)
Access to basement from exterior, Open floor layout, Warparound, Gound floor laundry room, Panoramic view, Fireplace, Sunroom, Master suite on main, Lunch counter, Pantry, Walk-in master bed., Ceiling over 8', Sloped ceiling, Double sinks
Plan architectural style(s)
. Cottage, chalet, cabin, . A-Frame, . American, . Vacation and waterfront, . Ski chalets, . Rustic, . Country, . Craftsman / Northwest, . Mountain
Similar plans
Previously Viewed Plans
Questions and comments
August 06
Jaymes
Do you offer this plan (W3914-V2) using a shell of insulated concrete forms for outer walls and basement?
Thanks
Jaymes
August 06
Customer service
Good day and thank you for taking the time to write
This plan can be modified for ICF construction and we would be happy to return a free estimate for the change within two business days after receipt of this on line form
Please let me know if I can further assist you
Regards
Deb
Thank you for your comment! It must be approved before being put online, please allow a period of 24 hours.
Error with google reCaptcha! Try again
Here is a brief description of our different plan packages. Please select the plan package that suits your needs. You can change the package at the next step, if necessary.
PDF VERSION OF PLAN:
Complete digital version of plan (pdf format) sent by email (original plan format 18" x 24'' or 24" x 36'')
5 copies of plan + PDF:
Includes: 5 copies of plan, plan in PDF format (reduced size version), materials list.
Foundation type
Additional foundation types are available, a fee may apply. Please indicate your choice on the online order form, or to our customer service representative, when placing your house plan order.
If your desired foundation type is not available, please contact our customer service to receive your free plan modification quote.
Explanation of bonus space types
UNFINISHED BONUS ROOM
The bonus rooms are often planned above the garage and are accessible from the house. They are designed to be converted as an office, a laundry area, a bathroom, a library corner or even an additional bedroom for which homeowners must make sure to have a window that complies with current codes & standards.
STORAGE AREA
Often located above the garage, our storage areas are used only as storage and are usually accessible from the garage via a retractable staircase.
Do you like this plan but want it to be modified to suit your needs?
To add a garage, another bedroom, finish the basement or any other modification, click here and let us know about your desired changes and to get your free quote for the modification of your plan.
Conditions of use
Important copyright notice! Please take note of these copyright conditions before printing:
By printing this house plan, cottage or garage or the floorplan(s), you confirm being informed that every house plan on this website is the exclusive property of Drummond House
Plans and is protected by Canadian copyright law. You are aware that these prints cannot be used to build or even obtain a building permit. The graphic representations of these
models are offered by Drummond House Plans for the sole purpose of allowing you to notate modifications of a model and then take it to one of the Drummond House Plans Canadian dealers for
modification of the plan.
The purchase of a house plan, cottage or garage from Drummond House Plans is mandatory if you wish to build any of our models. The plan purchase allows you to build a single unit; you cannot resell or give your plan to anyone once the house, cottage or garage has been built. If you wish to build the same house, cottage or garage more than once, you need to obtain the licence to this effect. Please contact us for more details.
All plans from Drummond House Plans can only be modified by a licensed Drummond House Plan Canadian dealer. If any other business or individual with no affiliation to Drummond House Plans modifies a Drummond House Plan on your behalf, please ensure this business or individual has a licence to modify this specific plan or you will be subject to prosecution on the same level as the business or individual who modified or reproduced the plan.
For more details, do not hesitate to contact u by e-mail or by phone at 1-800-567-1413.
I agree to respect the conditions above to not reproduce, modify or build a model from Drummond House Plans without previously purchasing a complete house plan.










August 06
Jaymes
Do you offer this plan (W3914-V2) using a shell of insulated concrete forms for outer walls and basement?
Thanks
Jaymes