There are no shipping fees if you buy one of our 2 plan packages "PDF file format" or "5 sets of blueprints + PDF". Shipping charges may apply if you buy additional sets of blueprints.
House plan The Murphy (2933)
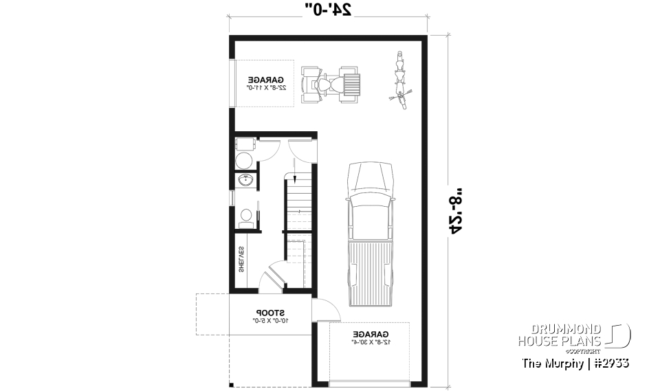
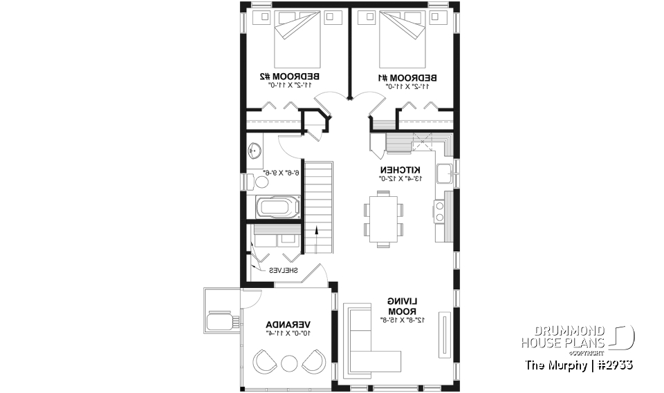
2-car garage plan with 2 bedroom apartment above, open floor plan, screened-in balcony on second floor
Other useful information on this plan
Garage plan with a 2 bedroom apartment above!
Much like a Murphy Bed, our Murphy is a wondrous bit of efficiency and flexibility. A slender 24-foot width allows this model to be slipped onto infill lots, into eco-communities or larger lot as a guesthouse or mother-in-law suite with the added benefit of a two-car tandem style garage!
A generous covered entry provides protection from the weather. Inside, find a generous coat closet and bench seating. Just beyond is a powder room, easily accessed from the garage or main entry. An interior door is conveniently located at the base of the stairs, so it is a breeze to whisk groceries straight up and into the kitchen. Due to virtually no halls, the upstairs is able to include two bedrooms, a full bathroom, country kitchen, living room, laundry and an enjoyable screened balcony, with grilling platform.
Rendered with a simple finish this model can easily be dressed up to suit any neighbourhood. The many possibilities presented by this plan make it one of our perennial favourites!
Distinctive elements
Double garage plan with upstairs accommodation.
Complete accommodation including 2 bedrooms, bathrooms, kitchen, living room and laundry room.
Screened in balcony on second floor.
On the ground floor, a bathroom and storage as well as a cloakroom.
Plan feature(s)
Screened porch, Balcony 2nd floor, Mud room, Open floor layout, Second floor laundry room
Plan architectural style(s)
. Cottage, chalet, cabin, . Country, . Traditional, . Craftsman / Northwest, . Cabin plans
Similar plans
Previously Viewed Plans
Questions and comments
August 06
Josh Hoban
Just curious on what all comes with this plan. Truss layout/style? Roof plan? Roof pitch? Over hang? Slab plan? I would guess that I have to still have the trusses, and slab engineered. House plan W2933 The Murphy
January 06
David Parkin
How much will it cost to build this model in Rigaud, QC, J0P1P0. ?
January 06
Customer service
Good day Mr. Parkin and thank you for taking the time to write
Although we do no actual construction, the ballpark estimate to build this home in Quebec (Canada) starts at around $190,000.
This estimate is based on professional grade materials and includes ceramic in the foyer, the kitchen and the bathrooms with hardwood flooring throughout the common areas and carpet in the bedrooms. The kitchen cabinetry is wood grain melamine. This construction estimate to build in Quebec is for a turn key project.
The cost of the land and its excavation, taxes and hook-ups to municipal or other services is not included in the calculation and it is highly recommended to consult local contractors and materials suppliers to get a better idea of the actual cost to build in your area.
I hope that this provides some helpful information and I invite you to contact me if you have any other questions or comments
Regards
Deb
September 17
Kristine L.
I was looking at The Murphry W2933 and I was wondering could the first floor wall be extended from 8 feet to 10 feet tall? Then take the depth of the house from 42 feet to 54 so a master bedroom and bath could be added to the back of the home?
September 17
Customer service
Good day Ms. L and thank you for your interest in our plans.
The changes that you require are possible, all you need to do is fill in our on line modification request for which I have attached the link below
http://www.drummondhouseplans.com/plan-modification-services/online-estimate-form/plan/1001558.html
We will be happy to return a free estimate within two business days of receipt of your request.
Please let me know if I can further assist you.
Regards
Deborah
June 11
N
I had a friend who bought plans from a company like this and had a nightmare getting approvals from their municipality. Without an engineer or architect from their state. What do you guarantee with purchase?
June 15
Customer service
Dear madam,
Thank you for your interest in Drummond House Plans. We guarantee that our plans are up to Canadian and US building codes. However, you will need to verify if the chosen plan will comply to local regulations with the city where you plan to build. We do not provide engineering services, therefore you will need to find a local engineer to stamp the plans if the city request it.
Please contact us again if you need further information.
Best Regards,
Customer Service Department
May 30
Carl Welliver
I was looking at plan W2933 and had a question.
Could a third floor be added to this with a Master BR Suite and Office/Den
June 01
Customer service
Dear Sir,
Thank you for your interest in Drummond House Plans.
All of our plans can easily be modified. To receive a Free Cost Estimate, you can visit the "Plan modification services" section of our website or contact our Modification Department at 1-866-444-4916.
Do not hesitate to contact us again if you need further information.
Best Regards,
Customer Service Department
Thank you for your comment! It must be approved before being put online, please allow a period of 24 hours.
Error with google reCaptcha! Try again
Here is a brief description of our different plan packages. Please select the plan package that suits your needs. You can change the package at the next step, if necessary.
PDF VERSION OF PLAN:
Complete digital version of plan (pdf format) sent by email (original plan format 18" x 24'' or 24" x 36'')
5 copies of plan + PDF:
Includes: 5 copies of plan, plan in PDF format (reduced size version), materials list.
Foundation type
Additional foundation types are available, a fee may apply. Please indicate your choice on the online order form, or to our customer service representative, when placing your house plan order.
If your desired foundation type is not available, please contact our customer service to receive your free plan modification quote.
Explanation of bonus space types
UNFINISHED BONUS ROOM
The bonus rooms are often planned above the garage and are accessible from the house. They are designed to be converted as an office, a laundry area, a bathroom, a library corner or even an additional bedroom for which homeowners must make sure to have a window that complies with current codes & standards.
STORAGE AREA
Often located above the garage, our storage areas are used only as storage and are usually accessible from the garage via a retractable staircase.
Do you like this plan but want it to be modified to suit your needs?
To add a garage, another bedroom, finish the basement or any other modification, click here and let us know about your desired changes and to get your free quote for the modification of your plan.
Conditions of use
Important copyright notice! Please take note of these copyright conditions before printing:
By printing this house plan, cottage or garage or the floorplan(s), you confirm being informed that every house plan on this website is the exclusive property of Drummond House
Plans and is protected by Canadian copyright law. You are aware that these prints cannot be used to build or even obtain a building permit. The graphic representations of these
models are offered by Drummond House Plans for the sole purpose of allowing you to notate modifications of a model and then take it to one of the Drummond House Plans Canadian dealers for
modification of the plan.
The purchase of a house plan, cottage or garage from Drummond House Plans is mandatory if you wish to build any of our models. The plan purchase allows you to build a single unit; you cannot resell or give your plan to anyone once the house, cottage or garage has been built. If you wish to build the same house, cottage or garage more than once, you need to obtain the licence to this effect. Please contact us for more details.
All plans from Drummond House Plans can only be modified by a licensed Drummond House Plan Canadian dealer. If any other business or individual with no affiliation to Drummond House Plans modifies a Drummond House Plan on your behalf, please ensure this business or individual has a licence to modify this specific plan or you will be subject to prosecution on the same level as the business or individual who modified or reproduced the plan.
For more details, do not hesitate to contact u by e-mail or by phone at 1-800-567-1413.
I agree to respect the conditions above to not reproduce, modify or build a model from Drummond House Plans without previously purchasing a complete house plan.


















August 06
Josh Hoban
Just curious on what all comes with this plan. Truss layout/style? Roof plan? Roof pitch? Over hang? Slab plan? I would guess that I have to still have the trusses, and slab engineered. House plan W2933 The Murphy