There are no shipping fees if you buy one of our 2 plan packages "PDF file format" or "5 sets of blueprints + PDF". Shipping charges may apply if you buy additional sets of blueprints.
House plan Salem (3293)
House plan for narrow lot, covered rear balcony, master suite + 2 secondary bedrooms with full bath, cathedral
Other useful information on this plan
Bungalow plan for narrow lots suggests 3 bedrooms and a superb sheltered terrace in the back!
This one story house plan with a rustic modern trendy style, our plan no. 3293 also named Salem, offers an ideal format for narrow lots. In addition, with its 32 feet of front elevation, it has many amenities sought by families or people looking for a home with space for a home office!
The right portion of the house has a cathedral ceiling offering more amplitude to the living room, the dining room and the kitchen. The kitchen area has a large island and an opens on the kitchen and dining room. Great to enjoy and receive family and friends! In addition, the kitchen leads to the large 256 square feet covered terrace, at the back of the house. This large patio size makes it easy to set up a table, as well as a reading corner.
The parents' room offers a private bathroom, two large walk-in closets and patio doors leading to the covered outdoor area.
The two secondary rooms are of good size and share a complete bathroom including among other things, a bath and a large separate shower. It would also be easy to rethink the front bedroom and turn it into a home office with a direct access from the front porch.
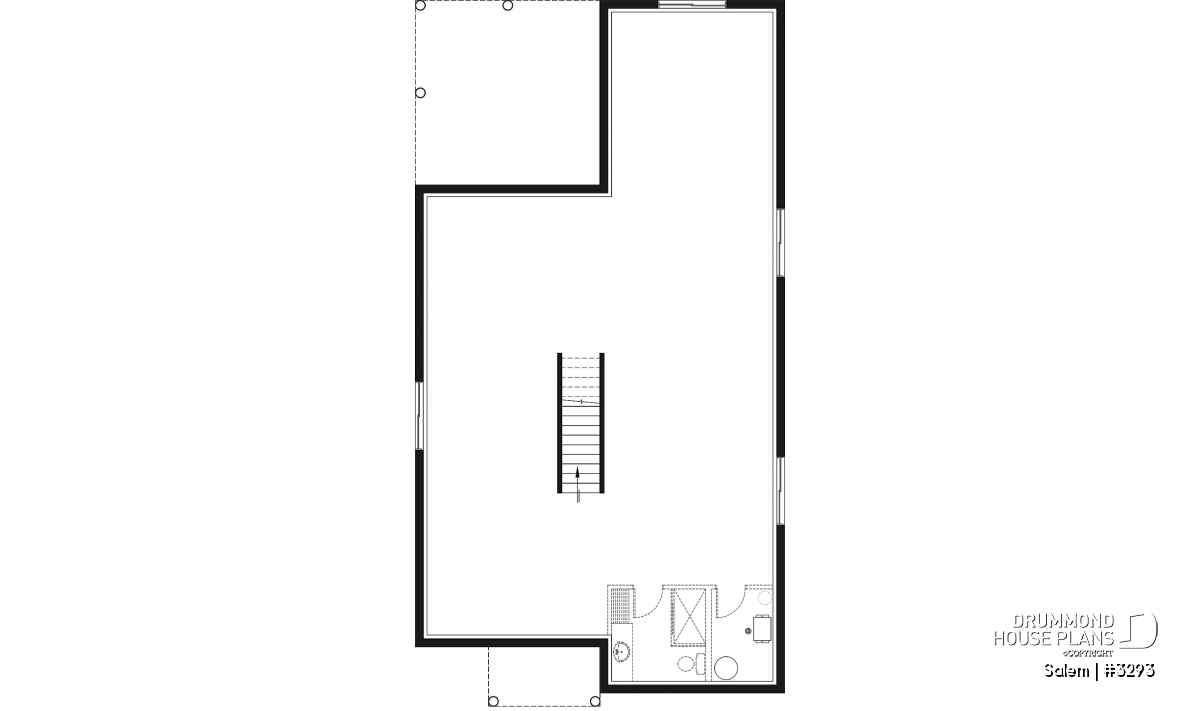
The laundry room is very conveniently located on the ground floor near the kitchen. The basement is to be finished according to your current or future needs. For any desired improvements to this home, garage addition, basement or other, do not hesitate to contact us seeing as we can quite easily adjust the plan to your needs through our online modification services.
Distinctive elements
Stylish modern rustic one-story home.
Cathedral ceiling in living, dining and kitchen.
Large kitchen island.
Master suites with 2 walk-in closets, private shower room and access to rear covered deck.
Laundry room in main floor.
Large unfinished basement.
Plan feature(s)
Island, Open floor layout, Narrow lot, Deck, Gound floor laundry room, His/Hers walk-in, Master suite on main, Cathedral ceiling
Plan architectural style(s)
. Craftsman / Northwest, . Rustic, . English, . Transitional, . Modern rustic, . Country
Similar plans
Previously Viewed Plans
Thank you for your comment! It must be approved before being put online, please allow a period of 24 hours.
Error with google reCaptcha! Try again
Here is a brief description of our different plan packages. Please select the plan package that suits your needs. You can change the package at the next step, if necessary.
PDF VERSION OF PLAN:
Complete digital version of plan (pdf format) sent by email (original plan format 18" x 24'' or 24" x 36'')
5 copies of plan + PDF:
Includes: 5 copies of plan, plan in PDF format (reduced size version), materials list.
Foundation type
Additional foundation types are available, a fee may apply. Please indicate your choice on the online order form, or to our customer service representative, when placing your house plan order.
If your desired foundation type is not available, please contact our customer service to receive your free plan modification quote.
Explanation of bonus space types
UNFINISHED BONUS ROOM
The bonus rooms are often planned above the garage and are accessible from the house. They are designed to be converted as an office, a laundry area, a bathroom, a library corner or even an additional bedroom for which homeowners must make sure to have a window that complies with current codes & standards.
STORAGE AREA
Often located above the garage, our storage areas are used only as storage and are usually accessible from the garage via a retractable staircase.
Do you like this plan but want it to be modified to suit your needs?
To add a garage, another bedroom, finish the basement or any other modification, click here and let us know about your desired changes and to get your free quote for the modification of your plan.
Conditions of use
Important copyright notice! Please take note of these copyright conditions before printing:
By printing this house plan, cottage or garage or the floorplan(s), you confirm being informed that every house plan on this website is the exclusive property of Drummond House
Plans and is protected by Canadian copyright law. You are aware that these prints cannot be used to build or even obtain a building permit. The graphic representations of these
models are offered by Drummond House Plans for the sole purpose of allowing you to notate modifications of a model and then take it to one of the Drummond House Plans Canadian dealers for
modification of the plan.
The purchase of a house plan, cottage or garage from Drummond House Plans is mandatory if you wish to build any of our models. The plan purchase allows you to build a single unit; you cannot resell or give your plan to anyone once the house, cottage or garage has been built. If you wish to build the same house, cottage or garage more than once, you need to obtain the licence to this effect. Please contact us for more details.
All plans from Drummond House Plans can only be modified by a licensed Drummond House Plan Canadian dealer. If any other business or individual with no affiliation to Drummond House Plans modifies a Drummond House Plan on your behalf, please ensure this business or individual has a licence to modify this specific plan or you will be subject to prosecution on the same level as the business or individual who modified or reproduced the plan.
For more details, do not hesitate to contact u by e-mail or by phone at 1-800-567-1413.
I agree to respect the conditions above to not reproduce, modify or build a model from Drummond House Plans without previously purchasing a complete house plan.









