There are no shipping fees if you buy one of our 2 plan packages "PDF file format" or "5 sets of blueprints + PDF". Shipping charges may apply if you buy additional sets of blueprints.
House plan Saint-James (6117)
Elegant bungalow with central fireplace, large island, and up to 4 flexible bedrooms
Virtual visit
Other useful information on this plan
Compact and Elegant Bungalow Plan with Central Fireplace, Large Kitchen Island, and 1–4 Bedrooms
Discover this charming bungalow plan that combines elegance, comfort, and practicality. Thoughtfully designed to adapt to every stage of life, it offers 1 to 4 bedrooms depending on your family’s needs and lifestyle. Whether you’re a couple, a growing family, or looking to downsize without compromising on style, this home offers a smart and welcoming layout.
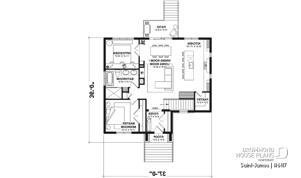
From the moment you walk in, the tone is set. The entry hall features a built-in bench and a spacious closet for coats and shoes, while a decorative ceiling arch beautifully frames the transition toward the main living area. This architectural detail adds character and visual flow, creating a warm first impression.
The living room, centered around a cozy fireplace, is the heart of the home — the perfect spot to relax, entertain, or enjoy quiet evenings by the fire. The kitchen features a large central island and a generous walk-in pantry, ideal for both everyday meals and friendly gatherings.
The primary bedroom on the main floor provides privacy and comfort, conveniently located near the main bathroom, which includes a separate tub and shower as well as double sinks for added convenience. A bright home office is also included on this level and can easily serve as a fourth bedroom when needed.
The unfinished basement offers plenty of potential to expand and customize your living space — perfect for a home gym, a workshop, or a family playroom.
---
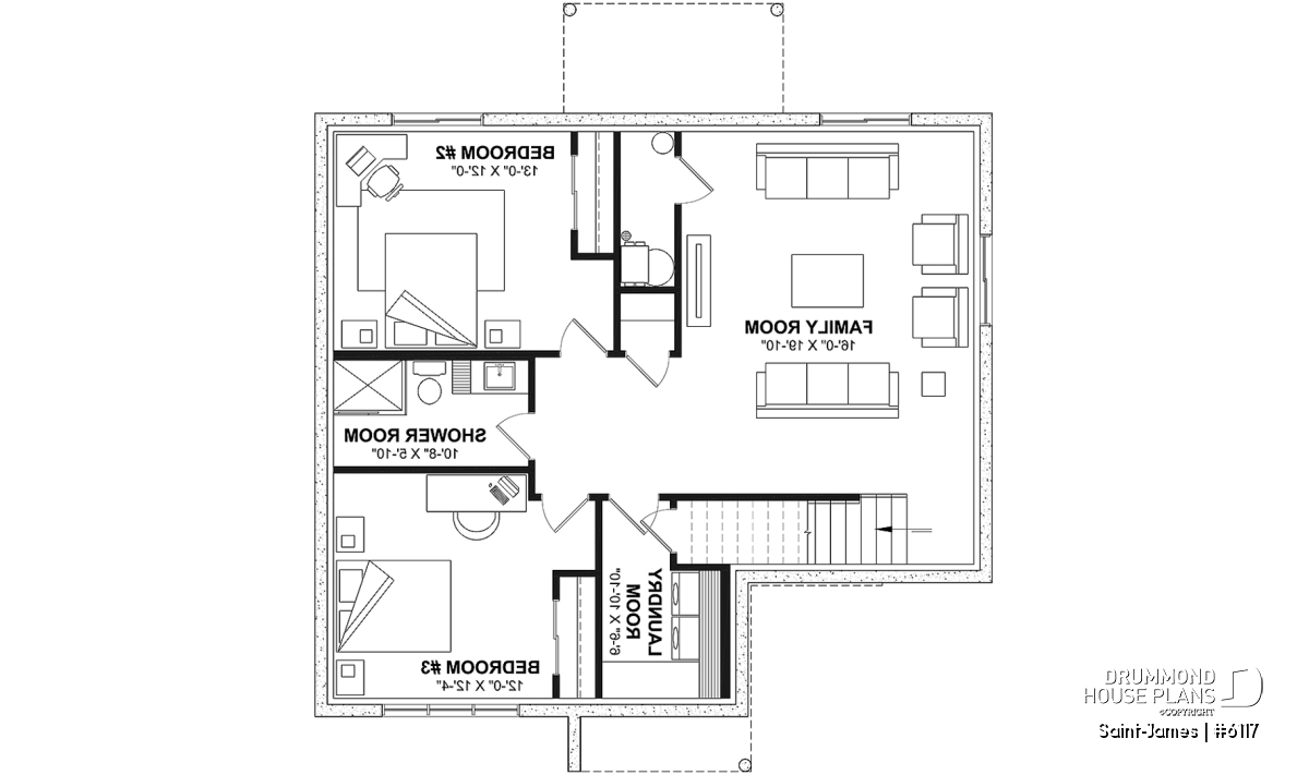
For those who prefer a ready-to-enjoy space, the *finished basement option ($) adds two large additional bedrooms, each with its own closet, a modern and practical shower room, a cozy family room, and a well-organized laundry room designed for efficiency.
This compact yet elegant bungalow stands out for its timeless design, harmonious proportions, and exceptional versatility. Its thoughtful layout, natural light, and open-concept living areas make it a delightful choice for anyone seeking a comfortable, low-maintenance home that feels warm, stylish, and built to last.
---
*If you wish to purchase the finished basement plan, as presented on this plan page, please select this option in the shopping cart, in the "Selection of foundation type" section. If you do not select this option, you will receive the unfinished full basement option, at no extra charge.
Distinctive elements
Compact and elegant bungalow offering from 1 to 4 bedrooms, adaptable to your family’s needs and lifestyle.
Welcoming entrance with a built-in bench, practical closet, and a decorative ceiling arch leading gracefully into the living room.
Convenient primary bedroom located on the main floor for comfort and privacy.
Bright home office on the main level, which can also serve as a fourth bedroom if needed.
Functional kitchen with a large central island and spacious pantry, perfect for entertaining guests.
Central fireplace creating a warm and inviting atmosphere throughout the living area.
Well-appointed main bathroom featuring a separate bathtub and shower, along with double sinks for added convenience.
Unfinished basement.
---
*Finished Basement (optional $):
Two spacious additional bedrooms, each with its own closet.
Modern and practical shower room.
Cozy family room ideal for relaxing or setting up a home theatre.
Separate laundry room designed for efficiency and organization.
---
*If you wish to purchase the finished basement plan, as presented on this plan page, please select this option in the shopping cart, in the "Selection of foundation type" section. If you do not select this option, you will receive the unfinished full basement option, at no extra charge.
Plan feature(s)
Office / Study / Den, Island, Entrance hall, Pantry, Separate bath and shower, Double sinks, Open floor layout, Arch, Builder, Self-Build, Fireplace, Shelves
Plan architectural style(s)
. Transitional, Modern Craftsman, Modern farmhouse, . Modern rustic, Trending, . Ranch
Previously Viewed Plans
Thank you for your comment! It must be approved before being put online, please allow a period of 24 hours.
Error with google reCaptcha! Try again
Here is a brief description of our different plan packages. Please select the plan package that suits your needs. You can change the package at the next step, if necessary.
PDF VERSION OF PLAN:
Complete digital version of plan (pdf format) sent by email (original plan format 18" x 24'' or 24" x 36'')
5 copies of plan + PDF:
Includes: 5 copies of plan, plan in PDF format (reduced size version), materials list.
Foundation type
Additional foundation types are available, a fee may apply. Please indicate your choice on the online order form, or to our customer service representative, when placing your house plan order.
If your desired foundation type is not available, please contact our customer service to receive your free plan modification quote.
Explanation of bonus space types
UNFINISHED BONUS ROOM
The bonus rooms are often planned above the garage and are accessible from the house. They are designed to be converted as an office, a laundry area, a bathroom, a library corner or even an additional bedroom for which homeowners must make sure to have a window that complies with current codes & standards.
STORAGE AREA
Often located above the garage, our storage areas are used only as storage and are usually accessible from the garage via a retractable staircase.
Do you like this plan but want it to be modified to suit your needs?
To add a garage, another bedroom, finish the basement or any other modification, click here and let us know about your desired changes and to get your free quote for the modification of your plan.
Conditions of use
Important copyright notice! Please take note of these copyright conditions before printing:
By printing this house plan, cottage or garage or the floorplan(s), you confirm being informed that every house plan on this website is the exclusive property of Drummond House
Plans and is protected by Canadian copyright law. You are aware that these prints cannot be used to build or even obtain a building permit. The graphic representations of these
models are offered by Drummond House Plans for the sole purpose of allowing you to notate modifications of a model and then take it to one of the Drummond House Plans Canadian dealers for
modification of the plan.
The purchase of a house plan, cottage or garage from Drummond House Plans is mandatory if you wish to build any of our models. The plan purchase allows you to build a single unit; you cannot resell or give your plan to anyone once the house, cottage or garage has been built. If you wish to build the same house, cottage or garage more than once, you need to obtain the licence to this effect. Please contact us for more details.
All plans from Drummond House Plans can only be modified by a licensed Drummond House Plan Canadian dealer. If any other business or individual with no affiliation to Drummond House Plans modifies a Drummond House Plan on your behalf, please ensure this business or individual has a licence to modify this specific plan or you will be subject to prosecution on the same level as the business or individual who modified or reproduced the plan.
For more details, do not hesitate to contact u by e-mail or by phone at 1-800-567-1413.
I agree to respect the conditions above to not reproduce, modify or build a model from Drummond House Plans without previously purchasing a complete house plan.















