There are no shipping fees if you buy one of our 2 plan packages "PDF file format" or "5 sets of blueprints + PDF". Shipping charges may apply if you buy additional sets of blueprints.
House plan Paris (3070)
Buy this planFrom 1990$ See prices and options
House plan Paris (3070)
Modern duplex plan, 1 to 3 beds, 2 bathrooms per unit, optional finished basement ($), garage on left side
Buy this plan
Special: Free shipping!
Need help?
Come see us
View the size of the rooms and height of the ceilings
| Finished basement (Optional $) | ||
|---|---|---|
| Rooms | Sizes | Ceiling |
| Bedroom | 10'0" x 10'0" | ~ 8'0" |
| Closet | 10'0" x 2'0" | ~ 8'0" |
| Bedroom | 10'0" x 10'0" | ~ 8'0" |
| Closet | 6'0" x 2'0" | ~ 8'0" |
| Great room or Family room | 13'0" x 18'0" | ~ 8'0" |
| Utility room | 10'7" x 6'4" | ~ 8'0" |
| Full bathroom | 9'11" x 8'4" | ~ 8'0" |
| Mechanical room | 13'0" x 9'0" | ~ 8'0" |
| Bedroom | 10'0" x 10'0" | ~ 8'0" |
| Closet | 6'0" x 2'0" | ~ 8'0" |
| Bedroom | 10'0" x 10'0" | ~ 8'0" |
| Closet | 6'0" x 2'0" | ~ 8'0" |
| Workshop | 13'0" x 6'4" | ~ 8'0" |
| Great room or Family room | 13'0" x 18'0" | ~ 8'0" |
| Shower/laundry room | 10'0" x 8'3" | ~ 8'0" |
| Mechanical room | 13'0" x 9'0" | ~ 8'0" |
| 1st level | ||
|---|---|---|
| Rooms | Sizes | Ceiling |
| Garage | 14'10" x 22'4" | ~ 9'0" |
| Bedroom | 10'11" x 12'4" | ~ 8'0" |
| Walk-in closet | 3'0" x 8'8" | ~ 8'0" |
| Kitchen/dinette | 10'0" x 12'0" | ~ 8'0" |
| Living room | 14'0" x 13'0" | ~ 8'0" |
| Dining room | 12'8" x 13'4" | ~ 8'0" |
| Full bathroom | 10'11" x 8'1" | ~ 8'0" |
| Foyer | 7'0" x 5'8" | ~ 11'4" |
| Closet | 2'0" x 5'4" | ~ 8'0" |
| Bedroom | 10'11" x 12'4" | ~ 8'0" |
| Walk-in closet | 3'0" x 8'9" | ~ 8'0" |
| Shower room or three quarter bath | 10'3" x 8'1" | ~ 8'0" |
| Living room | 13'0" x 13'0" | ~ 8'0" |
| Dining room | 11'0" x 10'0" | ~ 8'0" |
| Kitchen/dinette | 11'8" x 13'0" | ~ 8'0" |
| Pantry | 2'0" x 2'8" | ~ 8'0" |
| Foyer | 7'0" x 5'8" | ~ 11'4" |
| Closet | 2'0" x 5'4" | ~ 8'0" |
| Unfinished basement |
|---|
General specifications
| Total living area | 1784 sq.ft. |
| 1st level | 1784 sq.ft. |
| Unfinished basement | 1784 sq.ft. |
| Finished basement (Optional $) | 1784 sq.ft. |
| Width | 66'0" |
| Depth | 46'0" |
| Ridge height from top of foundation | 19'10" |
| Exterior wall | 2 X 6 |
| Foundation type included in the plan | Unfinished Basement |
| Other available foundations (a fee may apply) | Finished basement |
| Builder price code | MA |
Rooms specifications
| Bedroom(s) | 1, 2, 3 |
| Full baths | 2 |
| Half baths | - |
| Garage type | One-car garage (394 sq.ft.) |
| Living bonus space | - |
| Bonus storage | - |
| Covered porch area | - |
| Total living area | 900 sq.ft. | 900 sq.ft. |
| 1st level | 900 sq.ft. | 900 sq.ft. |
| Finished basement (Optional $) | 900 sq.ft. | 900 sq.ft. |
| Width | 25' 0" | 25' 0" |
| Depth | 36' 0" | 36' 0" |
| Ridge height from top of foundation | 19' 10" | 19' 10" |
| Exterior wall | 2 X 6 | 2 X 6 |
| Foundation type | Unfinished Basement | Unfinished Basement |
| Bedroom(s) | 3 | 3 |
| Full baths | 2 | 2 |
| Half baths | - | - |
| Garage type | One-car garage (394 sq.ft.) | - |
| Living bonus space | - | - |
| Bonus storage | - | - |
General specifications
| Total living area | 1784 sq.ft. |
| Finished basement (Optional $) | 1784 sq.ft. |
| 1st level | 1784 sq.ft. |
| Unfinished basement | 1784 sq.ft. |
| Width | 66'0" |
| Depth | 46'0" |
| Ridge height from top of foundation | 19'10" |
| Exterior wall | 2 X 6 |
| Foundation type included in the plan | Unfinished Basement i |
| Other available foundations (a fee may apply) | Finished basement |
| Builder price code | MA |
Rooms specifications
| Bedroom(s) | 1, 2, 3 |
| Full baths | 2 |
| Half baths | - |
| Garage type | One-car garage (394 sq.ft.) |
| Living bonus space | - i |
| Bonus storage | - i |
| Covered porch area | - |
Units specifications
| Total living area | 900 sq.ft. | 900 sq.ft. |
| 1st level | 900 sq.ft. | 900 sq.ft. |
| Finished basement (Optional $) | 900 sq.ft. | 900 sq.ft. |
| Width | 25' 0" | 25' 0" |
| Depth | 36' 0" | 36' 0" |
| Ridge height from top of foundation | 19' 10" | 19' 10" |
| Exterior wall | 2 X 6 | 2 X 6 |
| Foundation type | Unfinished Basement | Unfinished Basement |
| Bedroom(s) | 3 | 3 |
| Full baths | 2 | 2 |
| Half baths | - | - |
| Garage type | One-car garage (394 sq.ft.) | - |
| Living bonus space | - | - |
| Bonus storage | - | - |
Other useful information on this plan
Modern duplex plan with 1 to 3 bedrooms and 1 or 2 bathrooms per unit
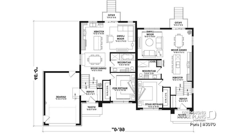
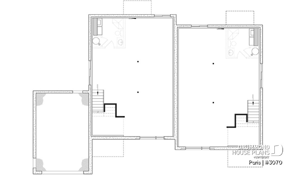
We invite you to discover our new semi-detached home plan #3070 that we also named Paris. It offers a single garage on one side and its modern cubic style in addition to the hip room contribute in giving it very unique and original look.
On the main level the split entrance offers a large closet as well as a ceiling of over 11 feet high in the lobby which gives amplitude tot his normally restricted space.
On both sides the master bedroom (parents' room) is located on the ground floor and has a walk-in closet. In addition, a shower room or a bathroom, with bath and separate shower are suggested on both sides. A kitchen with island, and open to the dining room and living room makes this space very friendly and conducive to receive family & friends. Patio doors at the back of the house and several windows contribute in inviting beautiful natural light on the ground floor.
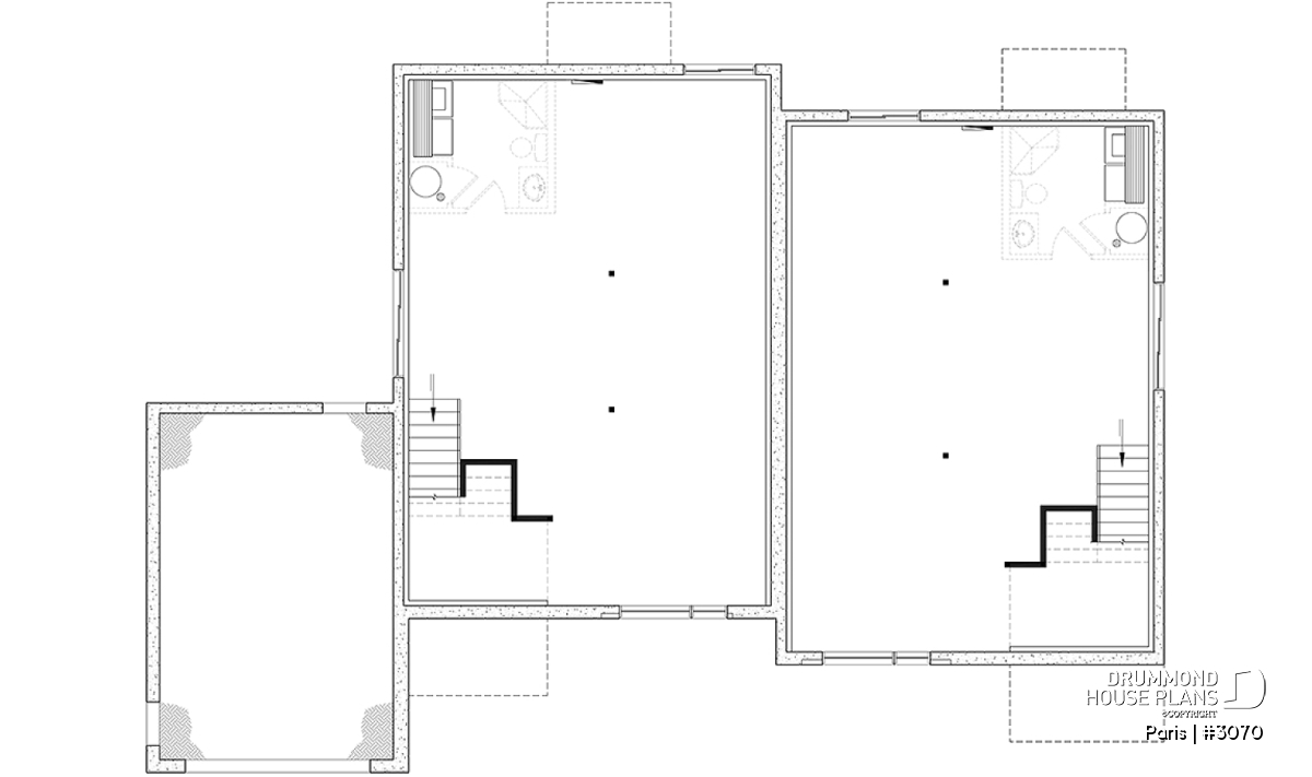
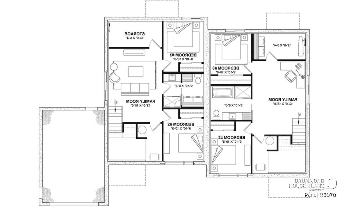
*Finished basement (optional $):
In the finished basement you will find 2 secondary bedrooms, an additional family room, a bathroom, laundry room as well as storage area.
*If you wish to purchase the finished basement plan, please select this option in the shopping cart, in the "Selection of foundation type" section. If you do not select this option, you will receive the unfinished full basement option, at no extra charge.
You like this plan and would like to make some changes? Contact us directly to get a free quote!
Distinctive elements
Cubic modern duplex house plan, one unit with a one-car garage.
3 bedrooms, 2 bathrooms per unit, if basement is *finished.
Master bedroom on main floor.
Kitchen with island.
Open floor plan
*Finished basement (optional $):
2 bedrooms, bathroom, family room, laundry room and storage.
*If you wish to purchase the finished basement plan, please select this option in the shopping cart, in the "Selection of foundation type" section. If you do not select this option, you will receive the unfinished full basement option, at no extra charge.
Plan feature(s)
Open floor layout, Island, Separate bath and shower, Walk-in master bed.
Plan architectural style(s)
Similar plans
Previously Viewed Plans
Questions and comments on this plan
Thank you for your comment! It must be approved before being put online, please allow a period of 24 hours.
Error with google reCaptcha! Try again
Want to modify this plan?
Free plan modification quoteNeed help?
Contact usCome see us
Our 31 regional officesYou may also like
Similar plans
Description
Main floor (split entry) for each unit:
Master bedroom, bathroom, kitchen with island, dining room and living room.
One unit has a one-car garage.
*Finished basement (optional $):
2 bedrooms, bathroom, family room, laundry room and storage.
*If you wish to purchase the finished basement plan, please select this option in the shopping cart, in the "Selection of foundation type" section. If you do not select this option, you will receive the unfinished full basement option, at no extra charge.
Awards and
Recognition
Here is a brief description of our different plan packages. Please select the plan package that suits your needs. You can change the package at the next step, if necessary.
PDF VERSION OF PLAN:
Complete digital version of plan (pdf format) sent by email (original plan format 18" x 24'' or 24" x 36'')
5 copies of plan + PDF:
Includes: 5 copies of plan, plan in PDF format (reduced size version), materials list.
Foundation type
Additional foundation types are available, a fee may apply. Please indicate your choice on the online order form, or to our customer service representative, when placing your house plan order.
If your desired foundation type is not available, please contact our customer service to receive your free plan modification quote.
Explanation of bonus space types
UNFINISHED BONUS ROOM
The bonus rooms are often planned above the garage and are accessible from the house. They are designed to be converted as an office, a laundry area, a bathroom, a library corner or even an additional bedroom for which homeowners must make sure to have a window that complies with current codes & standards.
STORAGE AREA
Often located above the garage, our storage areas are used only as storage and are usually accessible from the garage via a retractable staircase.
Do you like this plan but want it to be modified to suit your needs?
To add a garage, another bedroom, finish the basement or any other modification, click here and let us know about your desired changes and to get your free quote for the modification of your plan.
Conditions of use
Important copyright notice! Please take note of these copyright conditions before printing:
By printing this house plan, cottage or garage or the floorplan(s), you confirm being informed that every house plan on this website is the exclusive property of Drummond House
Plans and is protected by Canadian copyright law. You are aware that these prints cannot be used to build or even obtain a building permit. The graphic representations of these
models are offered by Drummond House Plans for the sole purpose of allowing you to notate modifications of a model and then take it to one of the Drummond House Plans Canadian dealers for
modification of the plan.
The purchase of a house plan, cottage or garage from Drummond House Plans is mandatory if you wish to build any of our models. The plan purchase allows you to build a single unit; you cannot resell or give your plan to anyone once the house, cottage or garage has been built. If you wish to build the same house, cottage or garage more than once, you need to obtain the licence to this effect. Please contact us for more details.
All plans from Drummond House Plans can only be modified by a licensed Drummond House Plan Canadian dealer. If any other business or individual with no affiliation to Drummond House Plans modifies a Drummond House Plan on your behalf, please ensure this business or individual has a licence to modify this specific plan or you will be subject to prosecution on the same level as the business or individual who modified or reproduced the plan.
For more details, do not hesitate to contact u by e-mail or by phone at 1-800-567-1413.
I agree to respect the conditions above to not reproduce, modify or build a model from Drummond House Plans without previously purchasing a complete house plan.










September 23
Charlton Sears
Is there a single-family plan, same exterior design with a breakfast nook, home theater, home office and master suite?