There are no shipping fees if you buy one of our 2 plan packages "PDF file format" or "5 sets of blueprints + PDF". Shipping charges may apply if you buy additional sets of blueprints.
House plan Maple Way 2 (3287-V1)
3 bedrooms modern farmhouse home design with garage, home office, large master suite, family room w/fireplace
Other useful information on this plan
Maple Way 2 (#3287-V1) – Farmhouse Home Plan with Home Office and Expandable Basement
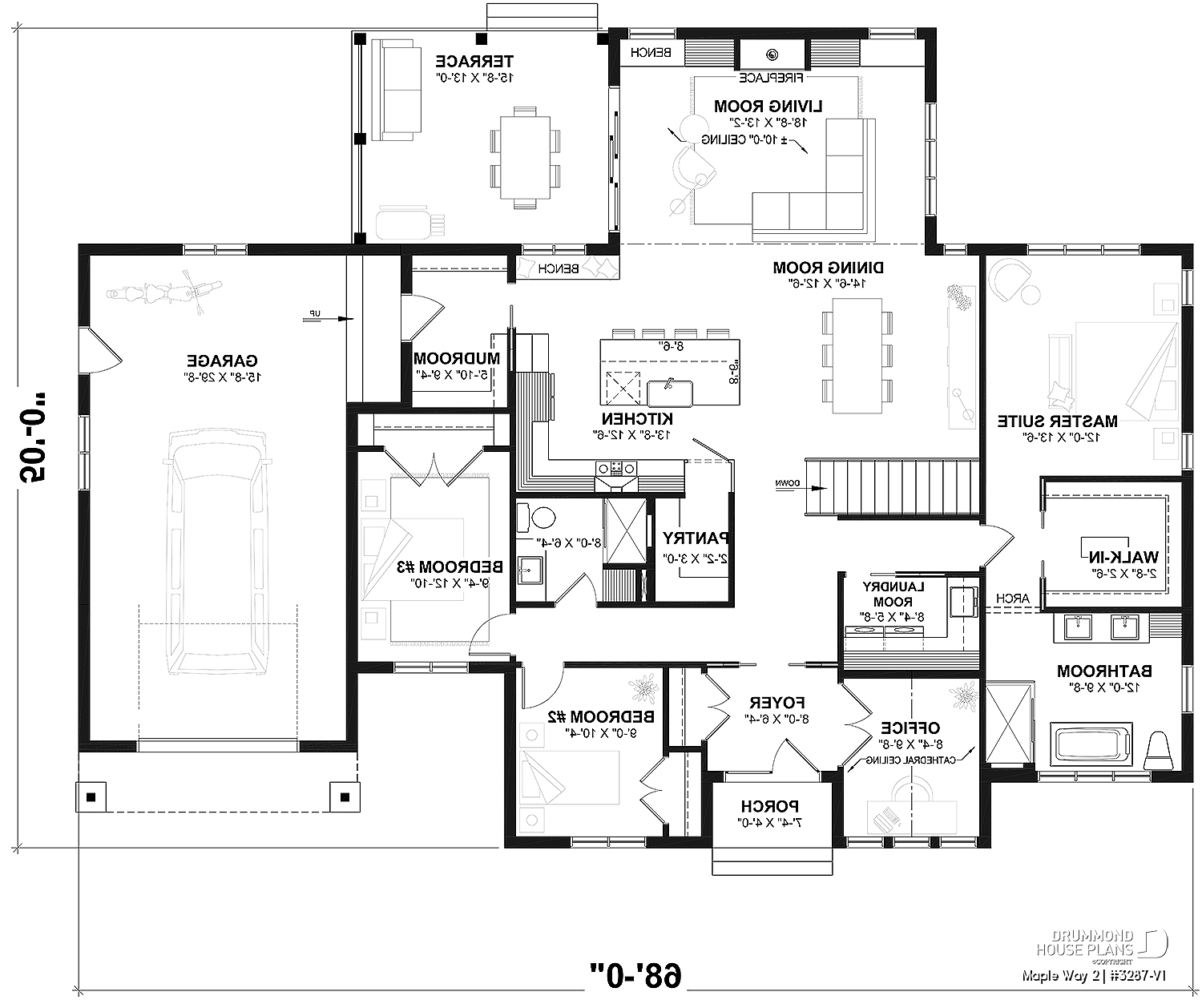
The Maple Way 2 house plan (#3287-V1), designed by Drummond House Plans, stands out with its trendy Farmhouse style, thoughtful layout, and exceptional versatility—perfect for modern families seeking comfort, brightness, and everyday functionality. Offering 1,953 sq. ft. of living space, this home plan delivers a well-balanced design where each area has been carefully planned to enhance daily living without sacrificing style.
From the moment you arrive, the covered front porch welcomes you into a functional entryway featuring a spacious coat closet, ideal for keeping everything organized. The front-facing home office, accessed through a closed vestibule, provides excellent separation between work and family life. With its cathedral ceiling, this space easily accommodates two workstations, making it ideal for remote work or a professional home office.
Throughout the main floor, 9’ ceilings create a sense of openness, while the 10’ ceiling in the living room enhances volume and natural light. The inviting kitchen features a large central island seating up to four, a walk-in pantry, and a cozy recessed bench. Open to both the dining area and the living room, this layout encourages seamless flow and effortless entertaining.
The bright living room is a true focal point, highlighted by a central fireplace framed with built-in benches and shelving, adding warmth and character to the space. Large windows flood the room with natural light, while triple patio doors lead to a covered rear terrace, extending the living area outdoors and making it perfect for gatherings in any season.
The private primary suite, located opposite the secondary bedrooms, ensures maximum privacy. It features a spacious walk-in closet with a built-in bench and a refined ensuite bathroom, accessed through an elegant architectural archway. The bathroom includes a double vanity, separate shower, and a freestanding soaking tub positioned in front of a large front-facing window—ideal for relaxing while enjoying natural light.
Two secondary bedrooms share a well-designed hall shower bathroom, offering comfort and convenience for family members or guests. Practical features complete the main level, including a walk-in mudroom off the garage, a main-floor laundry room, and a large single-car garage.
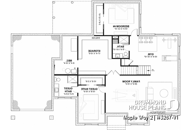
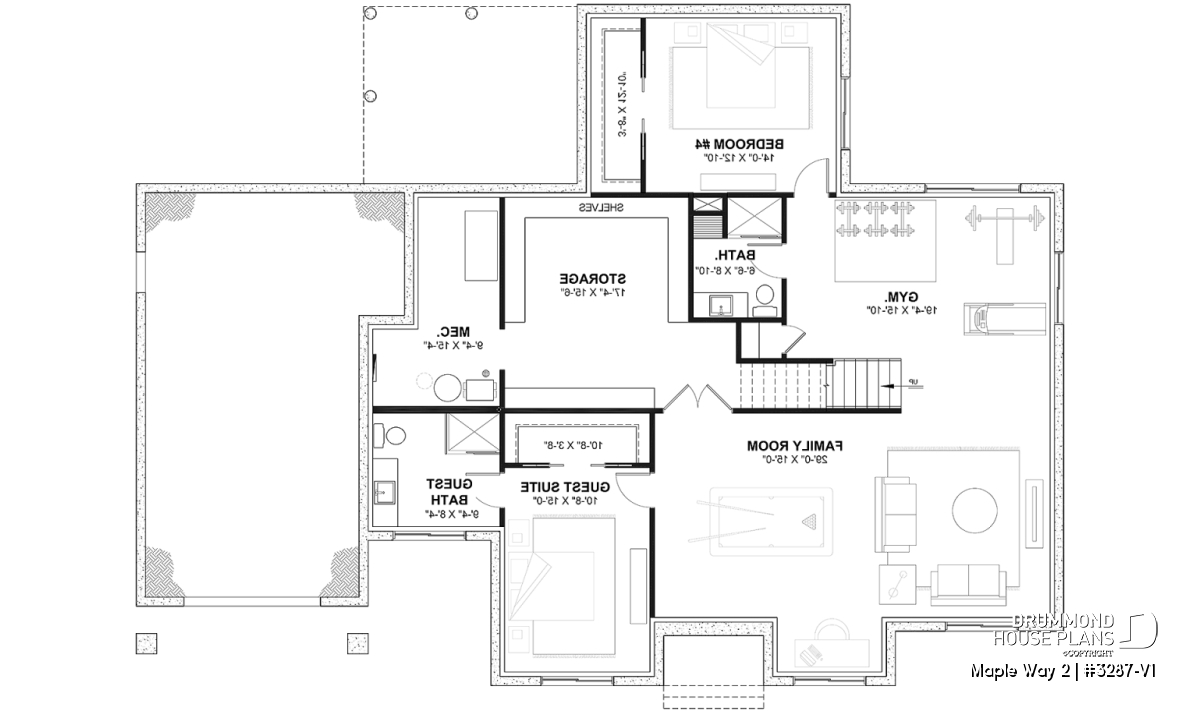
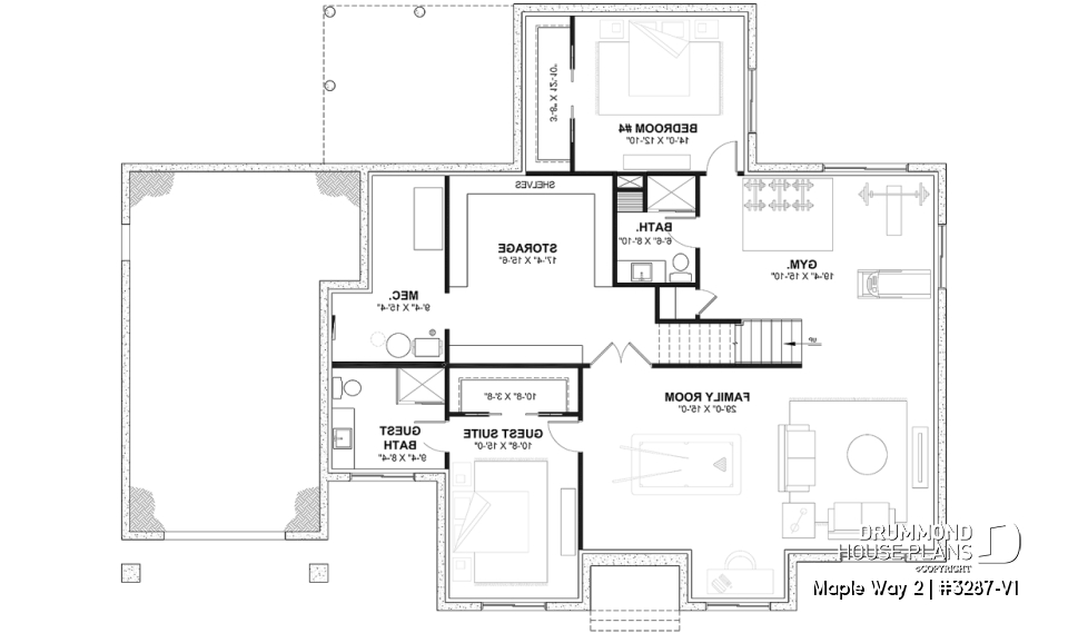
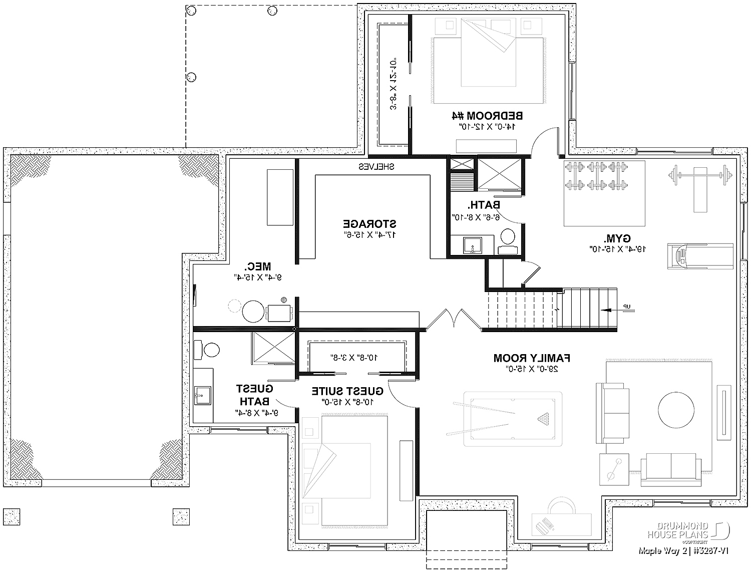
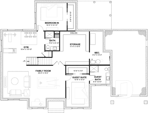
The standard unfinished basement provides excellent future development potential, with multiple foundation options available. *Optional basement layouts can include a guest suite with private bath, additional bedroom, full shower room, home gym, family room with office nook, storage areas, and a mechanical room.
The Maple Way 2 (#3287-V1) is a bright, functional, and expandable Farmhouse home plan—designed to grow with your lifestyle today and in the years ahead.
---
*If you wish to purchase the finished basement plan, as presented on this plan page, please select this option in the shopping cart, in the "Selection of foundation type" section. If you do not select this option, you will receive the unfinished full basement option, at no extra charge.
Distinctive elements
Trendy Farmhouse home plan featuring 3 bedrooms and a home office.
Covered front porch with a welcoming entry and spacious coat closet.
Functional mudroom off the garage with a built-in bench, perfect for boots and groceries.
9’ ceilings throughout the main floor, with a cathedral ceiling in the office and a 10’ ceiling in the living room.
Inviting kitchen with a central island, large walk-in pantry, and a cozy recessed bench.
Front-facing office, discreetly located and separated by a closed vestibule for added privacy.
Open-concept dining area connecting seamlessly with the kitchen and living room.
Bright living room featuring large windows on all sides and an impressive 10’ ceiling.
Central fireplace with built-in benches and cabinetry on both sides.
Private primary suite located opposite the secondary bedrooms for enhanced privacy.
Spacious walk-in closet and private bath accessed through an elegant architectural archway.
Primary bathroom with double vanity, separate shower, and freestanding tub.
Soaking tub positioned in front of a large front-facing window, ideal for relaxing while enjoying the view.
Main-floor laundry room for everyday convenience.
Standard foundation: unfinished basement, with multiple foundation options available.
---
*Optional finished basement:
Guest suite with private bathroom,
Additional bedroom and full shower room,
Home gym, family room with home office nook,
Storage space and mechanical room.
---
*If you wish to purchase the finished basement plan, as presented on this plan page, please select this option in the shopping cart, in the "Selection of foundation type" section. If you do not select this option, you will receive the unfinished full basement option, at no extra charge.
Plan feature(s)
Split bedrooms, Separate bath and shower, Master suite on main, Walk-in master bed., Double sinks, Gound floor laundry room, Pantry, Office / Study / Den, Deck, Mud room, Entrance hall, Bench seat(s), Island, Ceiling over 8', Cathedral ceiling, Guest suite, Oversized garage
Plan architectural style(s)
Modern farmhouse, . Ranch, . Farmhouse, . Transitional, . Modern rustic, Modern Craftsman, . L-Shaped
Similar plans
Previously Viewed Plans
Thank you for your comment! It must be approved before being put online, please allow a period of 24 hours.
Error with google reCaptcha! Try again
Here is a brief description of our different plan packages. Please select the plan package that suits your needs. You can change the package at the next step, if necessary.
PDF VERSION OF PLAN:
Complete digital version of plan (pdf format) sent by email (original plan format 18" x 24'' or 24" x 36'')
5 copies of plan + PDF:
Includes: 5 copies of plan, plan in PDF format (reduced size version), materials list.
Foundation type
Additional foundation types are available, a fee may apply. Please indicate your choice on the online order form, or to our customer service representative, when placing your house plan order.
If your desired foundation type is not available, please contact our customer service to receive your free plan modification quote.
Explanation of bonus space types
UNFINISHED BONUS ROOM
The bonus rooms are often planned above the garage and are accessible from the house. They are designed to be converted as an office, a laundry area, a bathroom, a library corner or even an additional bedroom for which homeowners must make sure to have a window that complies with current codes & standards.
STORAGE AREA
Often located above the garage, our storage areas are used only as storage and are usually accessible from the garage via a retractable staircase.
Do you like this plan but want it to be modified to suit your needs?
To add a garage, another bedroom, finish the basement or any other modification, click here and let us know about your desired changes and to get your free quote for the modification of your plan.
Conditions of use
Important copyright notice! Please take note of these copyright conditions before printing:
By printing this house plan, cottage or garage or the floorplan(s), you confirm being informed that every house plan on this website is the exclusive property of Drummond House
Plans and is protected by Canadian copyright law. You are aware that these prints cannot be used to build or even obtain a building permit. The graphic representations of these
models are offered by Drummond House Plans for the sole purpose of allowing you to notate modifications of a model and then take it to one of the Drummond House Plans Canadian dealers for
modification of the plan.
The purchase of a house plan, cottage or garage from Drummond House Plans is mandatory if you wish to build any of our models. The plan purchase allows you to build a single unit; you cannot resell or give your plan to anyone once the house, cottage or garage has been built. If you wish to build the same house, cottage or garage more than once, you need to obtain the licence to this effect. Please contact us for more details.
All plans from Drummond House Plans can only be modified by a licensed Drummond House Plan Canadian dealer. If any other business or individual with no affiliation to Drummond House Plans modifies a Drummond House Plan on your behalf, please ensure this business or individual has a licence to modify this specific plan or you will be subject to prosecution on the same level as the business or individual who modified or reproduced the plan.
For more details, do not hesitate to contact u by e-mail or by phone at 1-800-567-1413.
I agree to respect the conditions above to not reproduce, modify or build a model from Drummond House Plans without previously purchasing a complete house plan.





















