There are no shipping fees if you buy one of our 2 plan packages "PDF file format" or "5 sets of blueprints + PDF". Shipping charges may apply if you buy additional sets of blueprints.
House plan Lova (2184)
Affordable small home plan, 2 to 4 bedrooms, open-concept layout, optional finished basement ($)
Other useful information on this plan
Modern, Affordable Bungalow — Perfect for a Family Starting Out
Dreaming of a home that’s affordable, comfortable, and thoughtfully designed — without sacrificing style? This modern, compact, and accessible bungalow is the perfect fit for a young family, a first-time buyer couple, or anyone looking for a cozy, low-maintenance home that can grow with them over time.
From the outside, the covered front porch sets the tone — welcoming, practical, and ideal for enjoying sunny days or greeting guests with charm. Inside, you'll discover a bright, open-concept living space, with the kitchen, dining area, and living room located at the rear of the home — a smart layout that ensures greater privacy and peaceful living, whether you're in the city or countryside.
The functional kitchen includes a central island, perfect for preparing meals, helping the kids with homework, or simply enjoying coffee and conversation. On the main floor, you'll find two bright bedrooms, including a primary bedroom with a large window that fills the room with natural light. The layout is simple, practical, and tailored to everyday life.
And that’s not all!
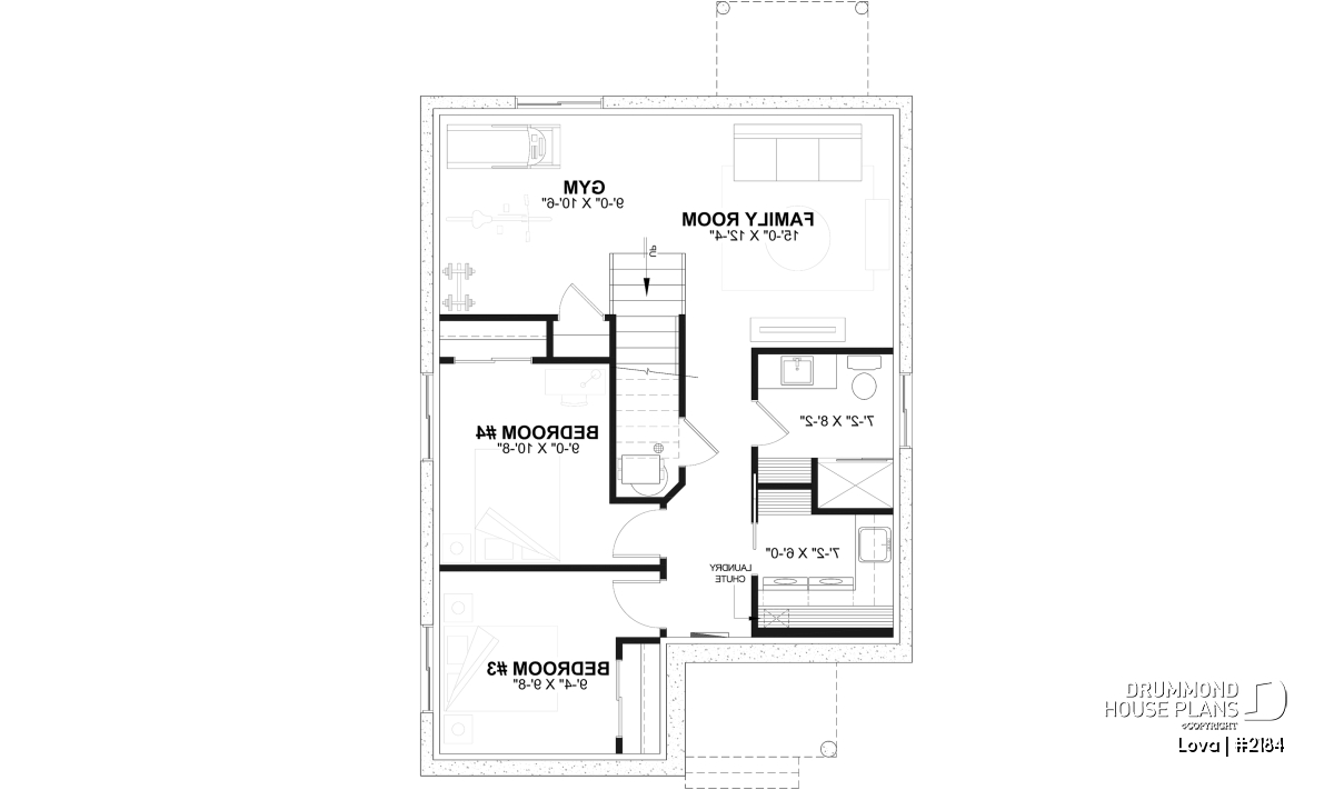
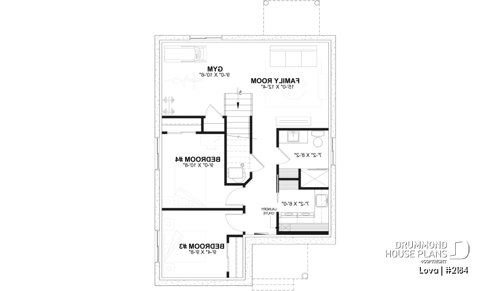
The *optional finished basement ($) offers even more possibilities for your growing needs: two or more additional bedrooms, a spacious family room, a motivating home gym, a fully equipped laundry area, and even a convenient shower room.
This home plan is designed to make the most of every square foot, with no wasted space — just smart design choices to offer a bright, flexible, and comfortable living environment.
A smart, warm, and affordable home, ready to welcome you today… and grow right alongside you tomorrow!
---
*If you wish to purchase the finished basement plan, as presented on this plan page, please select this option in the shopping cart, in the "Selection of foundation type" section. If you do not select this option, you will receive the unfinished full basement option, at no extra charge.
Distinctive elements
Modern-Style Small Bungalow Plan
Affordable construction.
2 bedrooms on the main floor, including a primary bedroom with a large window for plenty of natural light.
Kitchen, dining, and living areas located at the back of the home for added privacy and quiet living.
Functional kitchen with a central island.
Covered front porch, perfect for welcoming guests in style.
Finished Basement (optional $):
2 or more additional bedrooms.
Spacious family room.
Inspiring home gym area.
Convenient shower room and laundry space.
A smart, cozy home that’s ready to grow with you.
---
*If you wish to purchase the finished basement plan, as presented on this plan page, please select this option in the shopping cart, in the "Selection of foundation type" section. If you do not select this option, you will receive the unfinished full basement option, at no extra charge.
Plan feature(s)
Island, Narrow lot, Open floor layout, Builder, Self-Build, Laundry chute
Plan architectural style(s)
Modern Craftsman, . Transitional, . Country, . Modern rustic, . Craftsman / Northwest, . Ranch, . Traditional, Trending, . American, . Contemporary
Similar plans
Previously Viewed Plans
Thank you for your comment! It must be approved before being put online, please allow a period of 24 hours.
Error with google reCaptcha! Try again
Here is a brief description of our different plan packages. Please select the plan package that suits your needs. You can change the package at the next step, if necessary.
PDF VERSION OF PLAN:
Complete digital version of plan (pdf format) sent by email (original plan format 18" x 24'' or 24" x 36'')
5 copies of plan + PDF:
Includes: 5 copies of plan, plan in PDF format (reduced size version), materials list.
Foundation type
Additional foundation types are available, a fee may apply. Please indicate your choice on the online order form, or to our customer service representative, when placing your house plan order.
If your desired foundation type is not available, please contact our customer service to receive your free plan modification quote.
Explanation of bonus space types
UNFINISHED BONUS ROOM
The bonus rooms are often planned above the garage and are accessible from the house. They are designed to be converted as an office, a laundry area, a bathroom, a library corner or even an additional bedroom for which homeowners must make sure to have a window that complies with current codes & standards.
STORAGE AREA
Often located above the garage, our storage areas are used only as storage and are usually accessible from the garage via a retractable staircase.
Do you like this plan but want it to be modified to suit your needs?
To add a garage, another bedroom, finish the basement or any other modification, click here and let us know about your desired changes and to get your free quote for the modification of your plan.
Conditions of use
Important copyright notice! Please take note of these copyright conditions before printing:
By printing this house plan, cottage or garage or the floorplan(s), you confirm being informed that every house plan on this website is the exclusive property of Drummond House
Plans and is protected by Canadian copyright law. You are aware that these prints cannot be used to build or even obtain a building permit. The graphic representations of these
models are offered by Drummond House Plans for the sole purpose of allowing you to notate modifications of a model and then take it to one of the Drummond House Plans Canadian dealers for
modification of the plan.
The purchase of a house plan, cottage or garage from Drummond House Plans is mandatory if you wish to build any of our models. The plan purchase allows you to build a single unit; you cannot resell or give your plan to anyone once the house, cottage or garage has been built. If you wish to build the same house, cottage or garage more than once, you need to obtain the licence to this effect. Please contact us for more details.
All plans from Drummond House Plans can only be modified by a licensed Drummond House Plan Canadian dealer. If any other business or individual with no affiliation to Drummond House Plans modifies a Drummond House Plan on your behalf, please ensure this business or individual has a licence to modify this specific plan or you will be subject to prosecution on the same level as the business or individual who modified or reproduced the plan.
For more details, do not hesitate to contact u by e-mail or by phone at 1-800-567-1413.
I agree to respect the conditions above to not reproduce, modify or build a model from Drummond House Plans without previously purchasing a complete house plan.










