There are no shipping fees if you buy one of our 2 plan packages "PDF file format" or "5 sets of blueprints + PDF". Shipping charges may apply if you buy additional sets of blueprints.
House plan Leo (3633)
Farmhouse with 3 beds + den, 2 baths, garage, pantry in kitchen and open floor plan concept
Other useful information on this plan
Bright Farmhouse with 3 bedrooms and office
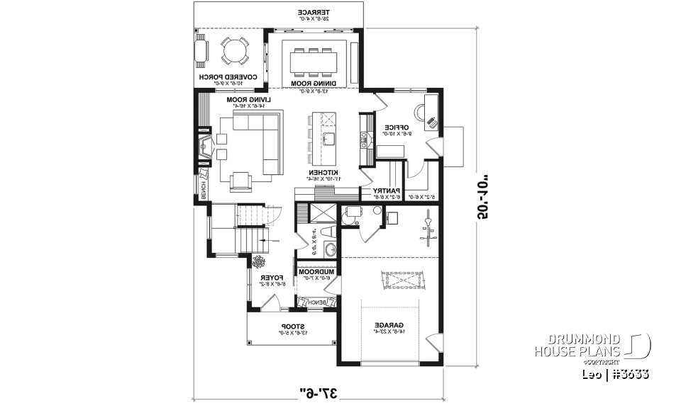
House plan LEO (#3633) offers 2150 sq.ft. laid out over 2 floors. It has a floating slab foundation, but we also offer other options for those who would like to have a regular or other type of basement. All the ceilings on the ground floor are 9' high, which gives a nice amplitude to the different spaces.
The entrance from the garage to the house as well as the main front access share a large mudroom. Then, immediately on your left, there is a shower room which is set back from the activity area, ideal for guests. The kitchen, dining room and living room are open concept and bathed in natural light from the windows and patio doors provided in this area. An island and pantry are provided in the kitchen. The living room offers a fireplace with bench seat on one side and built-in furniture on the other. An office is also set back from the kitchen.
Upstairs are the parents' bedroom and 2 additional bedrooms. In addition, the large family bathroom includes a separate bath and large shower, as well as 2 sinks. A second family room and the laundry room complete this level.
A single garage with storage upstairs as well as a beautiful sheltered rear terrace will convince you that this house is perfect for your family!!
Distinctive elements
Superb two-storey farmhouse home, with garage.
Front and garage entrances with access to the mudroom.
Guest shower room, set back from the common areas.
Open concept kitchen with island and pantry.
Magnificent natural light in the back area of the house.
Office near the kitchen, which can be converted into a playroom, if needed.
Beautiful sheltered terrace at the back.
Living room with fireplace and bench.
Parents' bedroom with large walk-in closet.
Large family bathroom upstairs with separate bath and shower, as well as 2 sinks.
Practical laundry room upstairs.
Storage at the top of the garage possible.
Foundation: floating slab. Other types of foundation available.
Plan feature(s)
Walk-in master bed., Panoramic view, Mud room, Deck, Second floor laundry room, Pantry, Fireplace, Island, Open floor layout, Office / Study / Den, Bench seat(s), Separate bath and shower, Double sinks, Built-ins, Self-Build
Plan architectural style(s)
. Farmhouse, Modern Craftsman, . Scandinavian, . Transitional, . Country, . American, . Vacation and waterfront, Modern farmhouse, French Country, Modern French Country
Similar plans
Previously Viewed Plans
Thank you for your comment! It must be approved before being put online, please allow a period of 24 hours.
Error with google reCaptcha! Try again
Here is a brief description of our different plan packages. Please select the plan package that suits your needs. You can change the package at the next step, if necessary.
PDF VERSION OF PLAN:
Complete digital version of plan (pdf format) sent by email (original plan format 18" x 24'' or 24" x 36'')
5 copies of plan + PDF:
Includes: 5 copies of plan, plan in PDF format (reduced size version), materials list.
Foundation type
Additional foundation types are available, a fee may apply. Please indicate your choice on the online order form, or to our customer service representative, when placing your house plan order.
If your desired foundation type is not available, please contact our customer service to receive your free plan modification quote.
Explanation of bonus space types
UNFINISHED BONUS ROOM
The bonus rooms are often planned above the garage and are accessible from the house. They are designed to be converted as an office, a laundry area, a bathroom, a library corner or even an additional bedroom for which homeowners must make sure to have a window that complies with current codes & standards.
STORAGE AREA
Often located above the garage, our storage areas are used only as storage and are usually accessible from the garage via a retractable staircase.
Do you like this plan but want it to be modified to suit your needs?
To add a garage, another bedroom, finish the basement or any other modification, click here and let us know about your desired changes and to get your free quote for the modification of your plan.
Conditions of use
Important copyright notice! Please take note of these copyright conditions before printing:
By printing this house plan, cottage or garage or the floorplan(s), you confirm being informed that every house plan on this website is the exclusive property of Drummond House
Plans and is protected by Canadian copyright law. You are aware that these prints cannot be used to build or even obtain a building permit. The graphic representations of these
models are offered by Drummond House Plans for the sole purpose of allowing you to notate modifications of a model and then take it to one of the Drummond House Plans Canadian dealers for
modification of the plan.
The purchase of a house plan, cottage or garage from Drummond House Plans is mandatory if you wish to build any of our models. The plan purchase allows you to build a single unit; you cannot resell or give your plan to anyone once the house, cottage or garage has been built. If you wish to build the same house, cottage or garage more than once, you need to obtain the licence to this effect. Please contact us for more details.
All plans from Drummond House Plans can only be modified by a licensed Drummond House Plan Canadian dealer. If any other business or individual with no affiliation to Drummond House Plans modifies a Drummond House Plan on your behalf, please ensure this business or individual has a licence to modify this specific plan or you will be subject to prosecution on the same level as the business or individual who modified or reproduced the plan.
For more details, do not hesitate to contact u by e-mail or by phone at 1-800-567-1413.
I agree to respect the conditions above to not reproduce, modify or build a model from Drummond House Plans without previously purchasing a complete house plan.





























