There are no shipping fees if you buy one of our 2 plan packages "PDF file format" or "5 sets of blueprints + PDF". Shipping charges may apply if you buy additional sets of blueprints.
House plan Herstal (3033)
Buy this planFrom 2415$ See prices and options
House plan Herstal (3033)
Triplex plan (3 Unit Multi-Plex) 2 bedrooms, 1 full bathroom and rear private terrace in each accommodation
Buy this plan
Special: Free shipping!
Need help?
Come see us
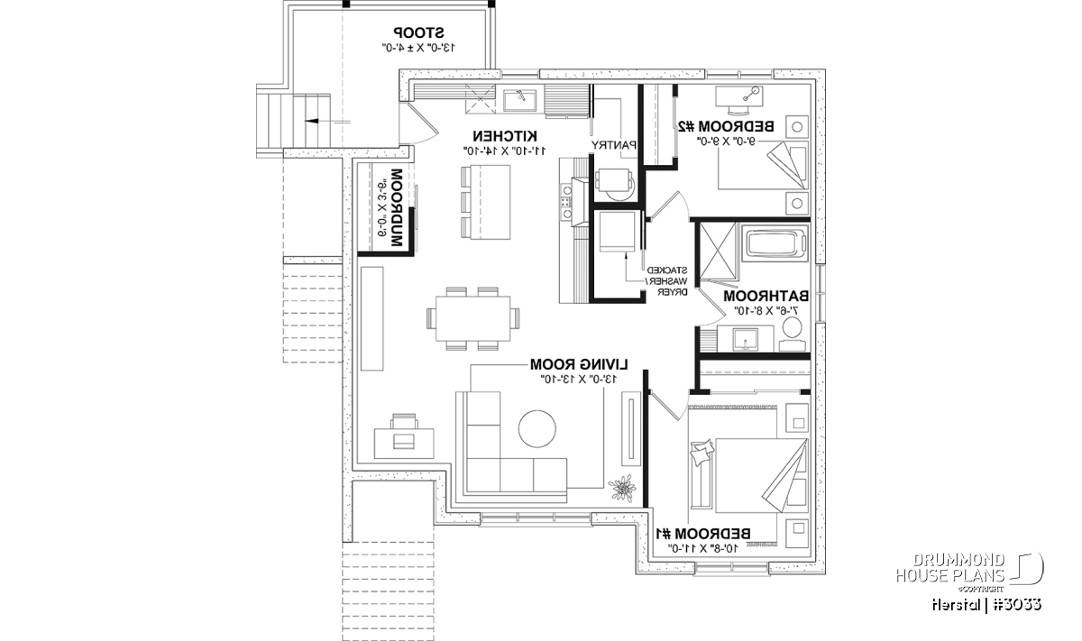
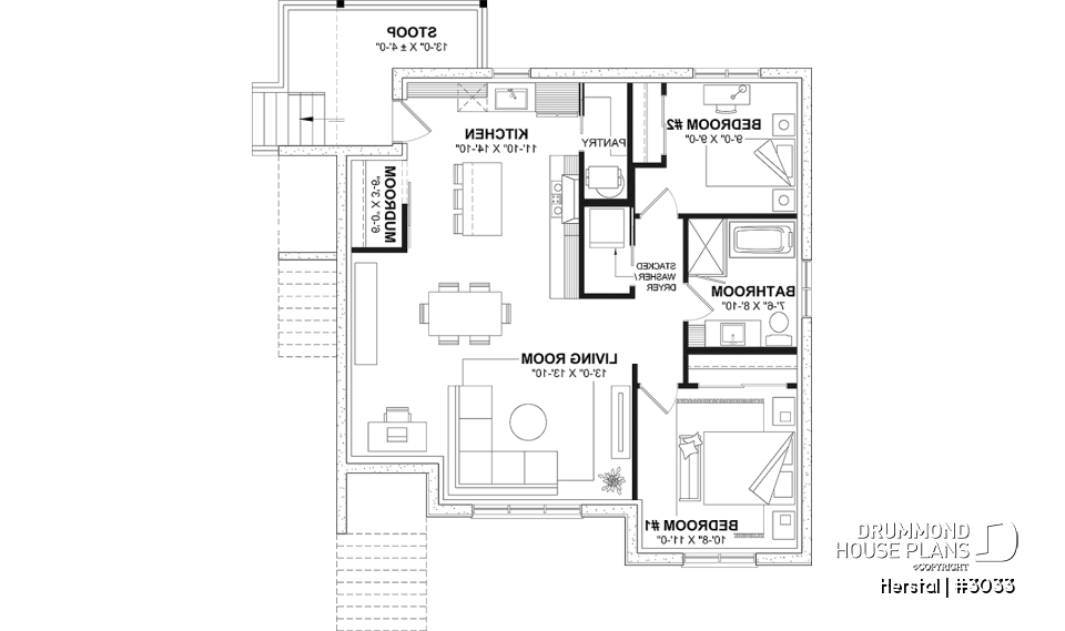
View the size of the rooms and height of the ceilings
| Basement | ||
|---|---|---|
| Rooms | Sizes | Ceiling |
| Full bathroom | 7'6" x 8'10" | ~ 8'0" |
| Shower | 2'8" x 4'0" | N/A |
| Linen | 1'2" x 1'6" | N/A |
| Kitchen/dining room | 11'10" x 14'10" | ~ 8'0" |
| Closet | 3'5" x 2'0" | ~ 8'0" |
| Pantry | 3'0" x 8'0" | ~ 8'0" |
| Kitchen island | 5'0" x 2'8" | N/A |
| Living room | 13'0" x 13'10" | ~ 8'0" |
| Bedroom | 10'8" x 11'0" | ~ 8'0" |
| Bedroom | 9'0" x 9'0" | ~ 8'0" |
| Laundry room | 3'2" x 6'0" | ~ 8'0" |
| Mud room | 6'0" x 3'6" | ~ 8'0" |
| Covered porch | 13'0" x 4'0" | ~ 8'4" |
| 1st level | ||
|---|---|---|
| Rooms | Sizes | Ceiling |
| Full bathroom | 7'10" x 8'10" | ~ 8'0" |
| Shower | 2'8" x 4'0" | N/A |
| Linen | 1'2" x 1'6" | N/A |
| Kitchen/dining room | 12'2" x 15'2" | ~ 8'0" |
| Pantry | 2'0" x 2'7" | N/A |
| Pantry | 8'4" x 3'0" | ~ 8'0" |
| Kitchen island | 5'0" x 2'8" | N/A |
| Living room | 13'4" x 14'2" | ~ 8'0" |
| Bedroom | 11'4" x 11'4" | ~ 8'0" |
| Foyer | 6'4" x 6'6" | ~ 8'0" |
| Closet | 3'4" x 2'0" | ~ 8'0" |
| Covered porch | 6'4" x 4'4" | ~ 8'4" |
| Bedroom | 9'4" x 9'4" | ~ 8'0" |
| Laundry room | 3'2" x 6'0" | ~ 8'0" |
| Covered porch | 8'0" x 4'0" | ~ 8'4" |
| Covered porch | 10'4" x 4'8" | ~ 8'4" |
| Closet | 3'4" x 2'0" | ~ 8'0" |
| 2nd level | ||
|---|---|---|
| Rooms | Sizes | Ceiling |
| Kitchen/dining room | 12'2" x 15'2" | ~ 8'0" |
| Pantry | 3'0" x 8'4" | ~ 8'0" |
| Kitchen island | 5'0" x 2'8" | N/A |
| Living room | 13'4" x 14'2" | ~ 8'0" |
| Closet | 2'0" x 5'8" | ~ 8'0" |
| Bedroom | 11'4" x 11'4" | ~ 8'0" |
| Bedroom | 9'4" x 9'4" | ~ 8'0" |
| Closet | 5'10" x 2'0" | ~ 8'0" |
| Full bathroom | 7'10" x 8'10" | ~ 8'0" |
| Shower | 2'8" x 4'0" | N/A |
| Linen | 1'2" x 1'6" | N/A |
| Laundry room | 3'2" x 6'0" | ~ 8'0" |
| Balcony | 10'4" x 4'8" | ~ 8'4" |
| Closet | 3'6" x 2'0" | ~ 8'0" |
General specifications
| Total living area | 3011 sq.ft. |
| 1st level | 1010 sq.ft. |
| 2nd level | 991 sq.ft. |
| Basement | 1010 sq.ft. |
| Width | 32'8" |
| Depth | 34'0" |
| Ridge height from top of foundation | 35'3" |
| Exterior wall | 2 X 6 |
| Foundation type included in the plan | Finished basement |
| Builder price code | MD |
Rooms specifications
| Bedroom(s) | 2 |
| Full baths | 1 |
| Half baths | - |
| Garage type | - |
| Living bonus space | - |
| Bonus storage | - |
| Covered porch area | 152 sq.ft. |
| UNIT 1 | UNIT 2 | UNIT 3 | |
| Total living area | 1005 sq.ft. | 1005 sq.ft. | 1005 sq.ft. |
| Basement | 1005 sq.ft. | ||
| 1st level | 1005 sq.ft. | ||
| 2nd level | 1005 sq.ft. | ||
| Width | 32' 8" | 32' 8" | 32' 8" |
| Depth | 34' 0" | 34' 0" | 34' 0" |
| Ridge height from top of foundation | 35' 3" | 35' 3" | 35' 3" |
| Exterior wall | 2 X 6 | 2 X 6 | 2 X 6 |
| Foundation type | Finished basement | Finished basement | Finished basement |
| Bedroom(s) | 2 | 2 | 2 |
| Full baths | 1 | 1 | 1 |
| Half baths | - | - | - |
| Garage type | - | - | - |
| Living bonus space | - | - | - |
| Bonus storage | - | - | - |
General specifications
| Total living area | 3011 sq.ft. |
| Basement | 1010 sq.ft. |
| 1st level | 1010 sq.ft. |
| 2nd level | 991 sq.ft. |
| Width | 32'8" |
| Depth | 34'0" |
| Ridge height from top of foundation | 35'3" |
| Exterior wall | 2 X 6 |
| Foundation type included in the plan | Finished basement i |
| Builder price code | MD |
Rooms specifications
| Bedroom(s) | 2 |
| Full baths | 1 |
| Half baths | - |
| Garage type | - |
| Living bonus space | - i |
| Bonus storage | - i |
| Covered porch area | 152 sq.ft. |
Units specifications
| UNIT 1 | UNIT 2 | UNIT 3 | |
| Total living area | 1005 sq.ft. | 1005 sq.ft. | 1005 sq.ft. |
| Basement | 1005 sq.ft. | ||
| 1st level | 1005 sq.ft. | ||
| 2nd level | 1005 sq.ft. | ||
| Width | 32' 8" | 32' 8" | 32' 8" |
| Depth | 34' 0" | 34' 0" | 34' 0" |
| Ridge height from top of foundation | 35' 3" | 35' 3" | 35' 3" |
| Exterior wall | 2 X 6 | 2 X 6 | 2 X 6 |
| Foundation type | Finished basement | Finished basement | Finished basement |
| Bedroom(s) | 2 | 2 | 2 |
| Full baths | 1 | 1 | 1 |
| Half baths | - | - | - |
| Garage type | - | - | - |
| Living bonus space | - | - | - |
| Bonus storage | - | - | - |
Kitchen
Photos represent a modified version of the original plan and are not available for sale. We invite you to get your free plan modification cost estimate if you would like any changes to the original plan.
Bathroom
Photos represent a modified version of the original plan and are not available for sale. We invite you to get your free plan modification cost estimate if you would like any changes to the original plan.
Bathroom
Photos represent a modified version of the original plan and are not available for sale. We invite you to get your free plan modification cost estimate if you would like any changes to the original plan.
Dining room
Photos represent a modified version of the original plan and are not available for sale. We invite you to get your free plan modification cost estimate if you would like any changes to the original plan.
Sitting room
Photos represent a modified version of the original plan and are not available for sale. We invite you to get your free plan modification cost estimate if you would like any changes to the original plan.
Sitting room
Photos represent a modified version of the original plan and are not available for sale. We invite you to get your free plan modification cost estimate if you would like any changes to the original plan.
Other useful information on this plan
Modern rustic triplex plan (3 unit multi-plex) with 2 bedrooms per unit and great open floor plan!
.
Distinctive elements
Trendy triplex plan in modern rustic styles.
Noble materials and warm tones.
Private entrance to each unit.
Beautiful natural light in the living room and master bedroom.
A coat closet is provided near each entrance.
Corner desk (planning desk) set up in unit 3 (finished daylight basement) and unit 2 (upper floor).
Kitchen with island and pantry in each unit.
Laundry room for stacked washer-dryer near the bedrooms.
Full bathroom with separate bath and shower.
Small sheltered terrace in each unit.
Plan feature(s)
Open floor layout, Island, Pantry, Separate bath and shower, Planning desk, Planning desk, Mud room
Plan architectural style(s)
. Modern rustic, . Country, . Craftsman / Northwest, . English, . European, Classic, Modern Craftsman, . Traditional
Previously Viewed Plans
Questions and comments on this plan
March 24
Customer service
Hello!
Please contact our customer service for this plan modification: 1-800-567-5267 ext. 109.
Thanks!
Thank you for your comment! It must be approved before being put online, please allow a period of 24 hours.
Error with google reCaptcha! Try again
Want to modify this plan?
Free plan modification quoteNeed help?
Contact usCome see us
Our 31 regional officesYou may also like
Description
The 3 units of this triplex have approx. the same floor plan layout:
Kitchen, dining room, living room, 2 bedrooms, 1 bathroom and laundry closet.
Finished daylight basement (unit #3).
3 private and sheltered rear terraces.
Awards and
Recognition
Here is a brief description of our different plan packages. Please select the plan package that suits your needs. You can change the package at the next step, if necessary.
PDF VERSION OF PLAN:
Complete digital version of plan (pdf format) sent by email (original plan format 18" x 24'' or 24" x 36'')
5 copies of plan + PDF:
Includes: 5 copies of plan, plan in PDF format (reduced size version), materials list.
Foundation type
Additional foundation types are available, a fee may apply. Please indicate your choice on the online order form, or to our customer service representative, when placing your house plan order.
If your desired foundation type is not available, please contact our customer service to receive your free plan modification quote.
Explanation of bonus space types
UNFINISHED BONUS ROOM
The bonus rooms are often planned above the garage and are accessible from the house. They are designed to be converted as an office, a laundry area, a bathroom, a library corner or even an additional bedroom for which homeowners must make sure to have a window that complies with current codes & standards.
STORAGE AREA
Often located above the garage, our storage areas are used only as storage and are usually accessible from the garage via a retractable staircase.
Do you like this plan but want it to be modified to suit your needs?
To add a garage, another bedroom, finish the basement or any other modification, click here and let us know about your desired changes and to get your free quote for the modification of your plan.
Conditions of use
Important copyright notice! Please take note of these copyright conditions before printing:
By printing this house plan, cottage or garage or the floorplan(s), you confirm being informed that every house plan on this website is the exclusive property of Drummond House
Plans and is protected by Canadian copyright law. You are aware that these prints cannot be used to build or even obtain a building permit. The graphic representations of these
models are offered by Drummond House Plans for the sole purpose of allowing you to notate modifications of a model and then take it to one of the Drummond House Plans Canadian dealers for
modification of the plan.
The purchase of a house plan, cottage or garage from Drummond House Plans is mandatory if you wish to build any of our models. The plan purchase allows you to build a single unit; you cannot resell or give your plan to anyone once the house, cottage or garage has been built. If you wish to build the same house, cottage or garage more than once, you need to obtain the licence to this effect. Please contact us for more details.
All plans from Drummond House Plans can only be modified by a licensed Drummond House Plan Canadian dealer. If any other business or individual with no affiliation to Drummond House Plans modifies a Drummond House Plan on your behalf, please ensure this business or individual has a licence to modify this specific plan or you will be subject to prosecution on the same level as the business or individual who modified or reproduced the plan.
For more details, do not hesitate to contact u by e-mail or by phone at 1-800-567-1413.
I agree to respect the conditions above to not reproduce, modify or build a model from Drummond House Plans without previously purchasing a complete house plan.

















January 11
gerard helene
bonjour pouvez vous fournir un plan avec des bloc issolant integrapec merci gerard