There are no shipping fees if you buy one of our 2 plan packages "PDF file format" or "5 sets of blueprints + PDF". Shipping charges may apply if you buy additional sets of blueprints.
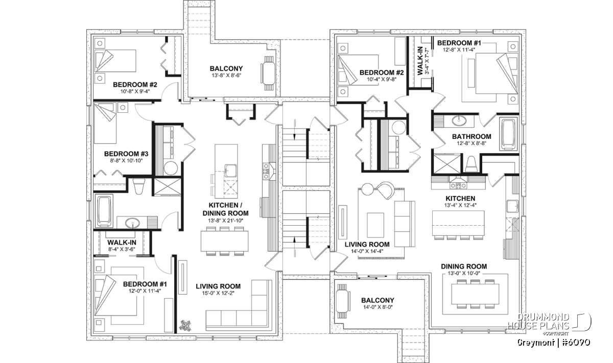
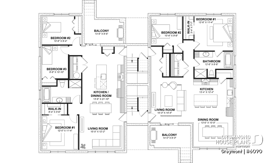
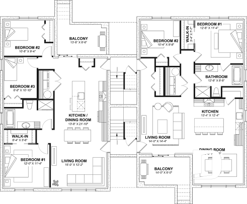
House plan Greymont (6090)
House plan Greymont (6090)
8-Plex house plan with 2 or 3 bedrooms per unit, covered balcony, pantry in kitchen, walk-in in master bedroom
View the size of the rooms and height of the ceilings
| 1st level | ||
|---|---|---|
| Rooms | Sizes | Ceiling |
| Living room | 15'4" x 12'6" | ~ 8'0" |
| Kitchen/dining room | 14'0" x 22'2" | ~ 8'0" |
| Kitchen island | 8'0" x 3'4" | N/A |
| Closet | 3'8" x 2'0" | ~ 8'0" |
| Covered porch | 14'0" x 8'0" | ~ 8'4" |
| Bedroom | 12'0" x 11'4" | ~ 8'0" |
| Walk-in closet | 8'4" x 3'6" | ~ 8'0" |
| Full bathroom | 13'4" x 7'6" | ~ 8'0" |
| Shower | 4'0" x 2'8" | N/A |
| Linen | 1'6" x 1'10" | N/A |
| Bedroom | 9'0" x 11'2" | ~ 8'0" |
| Closet | 4'10" x 2'0" | ~ 8'0" |
| Bedroom | 11'4" x 9'8" | ~ 8'0" |
| Closet | 5'8" x 2'0" | ~ 8'0" |
| Laundry space | 7'10" x 3'10" | ~ 8'0" |
| Covered porch | 14'0" x 8'0" | ~ 8'4" |
| Dining room | 13'8" x 10'4" | ~ 8'0" |
| Living room | 14'4" x 15'2" | ~ 8'0" |
| Kitchen | 13'4" x 12'4" | ~ 8'0" |
| Kitchen island | 8'0" x 3'8" | N/A |
| Pantry | 5'10" x 2'8" | ~ 8'0" |
| Full bathroom | 13'0" x 8'8" | ~ 8'0" |
| Shower | 4'0" x 3'0" | N/A |
| Linen | 1'6" x 1'10" | N/A |
| Laundry space | 7'6" x 4'0" | ~ 8'0" |
| Closet | 7'6" x 2'0" | ~ 8'0" |
| Bedroom | 13'0" x 11'8" | ~ 8'0" |
| Walk-in closet | 7'11" x 3'6" | ~ 8'0" |
| Bedroom | 10'6" x 10'0" | ~ 8'0" |
| Closet | 3'4" x 2'0" | ~ 8'0" |
| 2nd level | ||
|---|---|---|
| Rooms | Sizes | Ceiling |
| Bedroom | 12'0" x 11'4" | ~ 8'0" |
| Walk-in closet | 8'4" x 3'6" | ~ 8'0" |
| Bedroom | 9'0" x 11'2" | ~ 8'0" |
| Closet | 4'10" x 2'0" | ~ 8'0" |
| Bedroom | 11'4" x 9'8" | ~ 8'0" |
| Closet | 5'8" x 2'0" | ~ 8'0" |
| Laundry space | 7'10" x 3'10" | ~ 8'0" |
| Kitchen/dining room | 14'0" x 22'2" | ~ 8'0" |
| Kitchen island | 8'0" x 3'4" | N/A |
| Closet | 3'8" x 2'0" | ~ 8'0" |
| Covered porch | 14'0" x 8'0" | ~ 8'4" |
| Full bathroom | 13'4" x 7'6" | ~ 8'0" |
| Shower | 4'0" x 2'8" | N/A |
| Linen | 1'6" x 1'10" | N/A |
| Living room | 15'4" x 12'6" | ~ 8'0" |
| Bedroom | 13'0" x 11'8" | ~ 8'0" |
| Walk-in closet | 7'11" x 3'6" | ~ 8'0" |
| Bedroom | 10'6" x 10'0" | ~ 8'0" |
| Closet | 3'4" x 2'0" | ~ 8'0" |
| Laundry space | 7'6" x 4'0" | ~ 8'0" |
| Kitchen | 13'4" x 12'4" | ~ 8'0" |
| Pantry | 5'10" x 2'8" | ~ 8'0" |
| Kitchen island | 8'0" x 3'8" | N/A |
| Closet | 7'6" x 2'0" | ~ 8'0" |
| Covered porch | 14'0" x 8'0" | ~ 8'4" |
| Dining room | 13'8" x 10'4" | ~ 8'0" |
| Full bathroom | 13'0" x 8'8" | ~ 8'0" |
| Shower | 4'0" x 3'0" | N/A |
| Linen | 1'6" x 1'10" | N/A |
| Living room | 14'4" x 15'2" | ~ 8'0" |
| 3rd level | ||
|---|---|---|
| Rooms | Sizes | Ceiling |
| Bedroom | 12'0" x 11'4" | ~ 8'0" |
| Walk-in closet | 8'4" x 3'6" | ~ 8'0" |
| Bedroom | 9'0" x 11'2" | ~ 8'0" |
| Closet | 4'10" x 2'0" | ~ 8'0" |
| Bedroom | 11'4" x 9'8" | ~ 8'0" |
| Closet | 5'8" x 2'0" | ~ 8'0" |
| Laundry space | 7'10" x 3'10" | ~ 8'0" |
| Kitchen/dining room | 14'0" x 22'2" | ~ 8'0" |
| Kitchen island | 8'0" x 3'4" | N/A |
| Closet | 3'8" x 2'0" | ~ 8'0" |
| Covered porch | 14'0" x 8'0" | ~ 8'4" |
| Full bathroom | 13'4" x 7'6" | ~ 8'0" |
| Shower | 4'0" x 2'8" | N/A |
| Linen | 1'6" x 1'10" | N/A |
| Living room | 15'4" x 12'6" | ~ 8'0" |
| Bedroom | 13'0" x 11'8" | ~ 8'0" |
| Walk-in closet | 7'11" x 3'6" | ~ 8'0" |
| Bedroom | 10'6" x 10'0" | ~ 8'0" |
| Closet | 3'4" x 2'0" | ~ 8'0" |
| Laundry space | 7'6" x 4'0" | ~ 8'0" |
| Kitchen | 13'4" x 12'4" | ~ 8'0" |
| Pantry | 5'10" x 2'8" | ~ 8'0" |
| Kitchen island | 8'0" x 3'8" | N/A |
| Closet | 7'6" x 2'0" | ~ 8'0" |
| Covered porch | 14'0" x 8'0" | ~ 8'4" |
| Dining room | 13'8" x 10'4" | ~ 8'0" |
| Full bathroom | 13'0" x 8'8" | ~ 8'0" |
| Shower | 4'0" x 3'0" | N/A |
| Linen | 1'6" x 1'10" | N/A |
| Living room | 14'4" x 15'2" | ~ 8'0" |
| Basement | ||
|---|---|---|
| Rooms | Sizes | Ceiling |
| Bedroom | 12'0" x 11'4" | ~ 8'0" |
| Walk-in closet | 8'4" x 3'6" | ~ 8'0" |
| Bedroom | 8'8" x 10'10" | ~ 8'0" |
| Closet | 4'10" x 2'0" | ~ 8'0" |
| Bedroom | 10'8" x 9'4" | ~ 8'0" |
| Closet | 5'8" x 2'0" | ~ 8'0" |
| Laundry space | 7'6" x 3'10" | ~ 8'0" |
| Kitchen/dining room | 13'8" x 21'10" | ~ 8'0" |
| Kitchen island | 8'0" x 3'4" | N/A |
| Closet | 3'8" x 2'0" | ~ 8'0" |
| Covered porch | 13'8" x 8'6" | ~ 8'4" |
| Full bathroom | 13'0" x 7'6" | ~ 8'0" |
| Shower | 4'0" x 2'8" | N/A |
| Linen | 1'6" x 1'10" | N/A |
| Living room | 15'0" x 12'2" | ~ 8'0" |
| Bedroom | 12'8" x 11'4" | ~ 8'0" |
| Walk-in closet | 7'7" x 3'4" | ~ 8'0" |
| Bedroom | 10'4" x 9'8" | ~ 8'0" |
| Closet | 3'2" x 2'0" | ~ 8'0" |
| Laundry space | 7'6" x 3'10" | ~ 8'0" |
| Kitchen | 13'4" x 12'4" | ~ 8'0" |
| Kitchen island | 7'8" x 3'8" | N/A |
| Pantry | 5'6" x 2'8" | N/A |
| Closet | 7'6" x 2'0" | ~ 8'0" |
| Covered porch | 14'0" x 8'0" | ~ 8'4" |
| Dining room | 13'0" x 10'0" | ~ 8'0" |
| Full bathroom | 12'8" x 8'8" | ~ 8'0" |
| Shower | 4'0" x 3'0" | N/A |
| Linen | 1'6" x 1'10" | N/A |
| Living room | 14'0" x 14'4" | ~ 8'0" |
General specifications
| Total living area | 10304 sq.ft. |
| 1st level | 2576 sq.ft. |
| 2nd level | 2576 sq.ft. |
| 3rd level | 2576 sq.ft. |
| Basement | 2576 sq.ft. |
| Width | 65'0" |
| Depth | 46'0" |
| Ridge height from top of foundation | 46'4" |
| Exterior wall | 2 X 6 |
| Foundation type included in the plan | Finished basement |
| Other available foundations (a fee may apply) | Monolithic Slab |
| Builder price code | MI |
Rooms specifications
| Bedroom(s) | 2, 3 |
| Full baths | 1 |
| Half baths | - |
| Garage type | - |
| Living bonus space | - |
| Bonus storage | - |
| Covered porch area | 894 sq.ft. |
| UNIT 1 | UNIT 2 | UNIT 3 | UNIT 4 | UNIT 5 | UNIT 6 | UNIT 7 | UNIT 8 | UNIT 3 | |
| Total living area | 1194 sq.ft. | 1193 sq.ft. | 1194 sq.ft. | 1193 sq.ft. | 1194 sq.ft. | 1193 sq.ft. | 1194 sq.ft. | 1193 sq.ft. | 1194 sq.ft. |
| Basement | 1194 sq.ft. | 1193 sq.ft. | |||||||
| 1st level | 1194 sq.ft. | 1193 sq.ft. | |||||||
| 2nd level | 1194 sq.ft. | 1193 sq.ft. | 1194 sq.ft. | ||||||
| 3rd level | 1194 sq.ft. | 1193 sq.ft. | |||||||
| Width | 29' 0" | 28' 10" | 29' 0" | 28' 10" | 29' 0" | 28' 10" | 29' 0" | 28' 10" | 29' 0" |
| Depth | 46' 0" | 45' 0" | 46' 0" | 45' 0" | 46' 0" | 45' 0" | 46' 0" | 45' 0" | 46' 0" |
| Ridge height from top of foundation | 46' 4" | 46' 4" | 46' 4" | 46' 4" | 46' 4" | 46' 4" | 46' 4" | 46' 4" | 46' 4" |
| Exterior wall | 2 X 6 | 2 X 6 | 2 X 6 | 2 X 6 | 2 X 6 | 2 X 6 | 2 X 6 | 2 X 6 | 2 X 6 |
| Foundation type | Finished basement | Finished basement | Finished basement | Finished basement | Finished basement | Finished basement | Finished basement | Finished basement | Finished basement |
| Bedroom(s) | 3 | 2 | 3 | 2 | 3 | 2 | 3 | 2 | 3 |
| Full baths | 1 | 1 | 1 | 1 | 1 | 1 | 1 | 1 | 1 |
| Half baths | - | - | - | - | - | - | - | - | - |
| Garage type | - | - | - | - | - | - | - | - | - |
| Living bonus space | - | - | - | - | - | - | - | - | - |
| Bonus storage | - | - | - | - | - | - | - | - | - |
General specifications
| Total living area | 10304 sq.ft. |
| 1st level | 2576 sq.ft. |
| 2nd level | 2576 sq.ft. |
| 3rd level | 2576 sq.ft. |
| Basement | 2576 sq.ft. |
| Width | 65'0" |
| Depth | 46'0" |
| Ridge height from top of foundation | 46'4" |
| Exterior wall | 2 X 6 |
| Foundation type included in the plan | Finished basement i |
| Other available foundations (a fee may apply) | Monolithic Slab |
| Builder price code | MI |
Rooms specifications
| Bedroom(s) | 2, 3 |
| Full baths | 1 |
| Half baths | - |
| Garage type | - |
| Living bonus space | - i |
| Bonus storage | - i |
| Covered porch area | 894 sq.ft. |
Units specifications
| UNIT 1 | UNIT 2 | UNIT 3 | UNIT 4 | UNIT 5 | UNIT 6 | UNIT 7 | UNIT 8 | UNIT 3 | |
| Total living area | 1194 sq.ft. | 1193 sq.ft. | 1194 sq.ft. | 1193 sq.ft. | 1194 sq.ft. | 1193 sq.ft. | 1194 sq.ft. | 1193 sq.ft. | 1194 sq.ft. |
| Basement | 1194 sq.ft. | 1193 sq.ft. | |||||||
| 1st level | 1194 sq.ft. | 1193 sq.ft. | |||||||
| 2nd level | 1194 sq.ft. | 1193 sq.ft. | 1194 sq.ft. | ||||||
| 3rd level | 1194 sq.ft. | 1193 sq.ft. | |||||||
| Width | 29' 0" | 28' 10" | 29' 0" | 28' 10" | 29' 0" | 28' 10" | 29' 0" | 28' 10" | 29' 0" |
| Depth | 46' 0" | 45' 0" | 46' 0" | 45' 0" | 46' 0" | 45' 0" | 46' 0" | 45' 0" | 46' 0" |
| Ridge height from top of foundation | 46' 4" | 46' 4" | 46' 4" | 46' 4" | 46' 4" | 46' 4" | 46' 4" | 46' 4" | 46' 4" |
| Exterior wall | 2 X 6 | 2 X 6 | 2 X 6 | 2 X 6 | 2 X 6 | 2 X 6 | 2 X 6 | 2 X 6 | 2 X 6 |
| Foundation type | Finished basement | Finished basement | Finished basement | Finished basement | Finished basement | Finished basement | Finished basement | Finished basement | Finished basement |
| Bedroom(s) | 3 | 2 | 3 | 2 | 3 | 2 | 3 | 2 | 3 |
| Full baths | 1 | 1 | 1 | 1 | 1 | 1 | 1 | 1 | 1 |
| Half baths | - | - | - | - | - | - | - | - | - |
| Garage type | - | - | - | - | - | - | - | - | - |
| Living bonus space | - | - | - | - | - | - | - | - | - |
| Bonus storage | - | - | - | - | - | - | - | - | - |
Other useful information on this plan
Modern 8-Plex House Plan – Where Craftsman Charm Meets Contemporary Functionality
Are you seeking to develop a multi-unit building that combines classic visual attractiveness with profitable investment characteristics? The 8-unit apartment building house plan serves builders and developers who need a unique project with excellent market demand. The design features a contemporary Craftsman aesthetic through its exterior design which combines various materials and colors to create a layered appearance that both elevates exterior appeal and establishes premium residential standards.
The 8 units receive deliberate design attention that prioritizes both comfort and modern living standards. Each unit in this rental development includes a private balcony that serves as an exclusive feature to attract modern tenants. The outdoor space provides flexible living options that enable residents to use it for coffee time in the morning or dinner preparation in the evening or relaxing activities.
Every unit welcomes guests through an entrance featuring a well-designed foyer with an integrated coat closet which creates practicality from the start. The open-plan design between the kitchen space and dining area and living room space creates a smooth flow that works for daily routines together with social events.
The central island and walk-in pantry in kitchens create ample counter space together with storage capacity which tenants specifically seek. Different floor plan options of the units provide either two or three comfortable bedrooms which accommodate both professional singles and small household groups.
The complete family bathroom delivers premium comfort by featuring a bathtub and separate shower which allows residents to select their desired way of bathing—perfect for both restful bathing and fast routine bathing.
The 8-plex plan provides developers and investors with both maximum flexibility and durability alongside high market appeal when building rental properties or looking to resell. The smart floor plan combined with contemporary design elements and architectural design elements will bring in long-term tenants and produce strong profits throughout multiple years.
The plan meets all requirements for construction entrepreneurs who want to create smart buildings through its combination of style and functional design and profitable returns.
---
Our in-house design team provides complete customization for all plans. Our company develops personalized plans for both residential and multi-unit projects which fulfill specific requirements of each client.
Are you prepared to turn your ideas into reality? Reach out to us right now to receive your complimentary quote.
Distinctive elements
8-Unit Apartment Building House Plan
The design combines contemporary Craftsman elements with a rich material palette and color scheme.
Each unit includes a private covered balcony which provides the perfect space for outdoor cooking and relaxation.
The entry area provides ample space with a built-in coat closet.
The open-plan kitchen and dining and living spaces create a smooth transition between daily activities and social events.
The kitchen space includes a pantry and central island for practical functionality.
The floor plans include two to three bedrooms based on the chosen configuration.
The full family bathroom contains both a bathtub and a separate shower area.
---
Our in-house design team provides complete customization for all plans. Our company develops personalized plans for both residential and multi-unit projects which fulfill specific requirements of each client.
Are you prepared to turn your ideas into reality? Reach out to us right now to receive your complimentary quote.
Plan feature(s)
Open floor layout, Separate bath and shower, Deck, Island, Pantry, Walk-in master bed.
Plan architectural style(s)
. Contemporary, . Scandinavian, . Country, Modern Craftsman, . Mountain, . Modern rustic, . Craftsman / Northwest
Similar plans
Previously Viewed Plans
Thank you for your comment! It must be approved before being put online, please allow a period of 24 hours.
Error with google reCaptcha! Try again
Want to modify this plan?
Free plan modification quoteNeed help?
Contact usCome see us
Our 31 regional officesYou may also like
Similar plans
Description
Each unit includes:
Entrance, kitchen with pantry and island, laundry closet, 2 or 3 bedrooms, full family bathroom, open dining and living room.
Covered and private balcony.
Awards and
Recognition
Here is a brief description of our different plan packages. Please select the plan package that suits your needs. You can change the package at the next step, if necessary.
PDF VERSION OF PLAN:
Complete digital version of plan (pdf format) sent by email (original plan format 18" x 24'' or 24" x 36'')
5 copies of plan + PDF:
Includes: 5 copies of plan, plan in PDF format (reduced size version), materials list.
Foundation type
Additional foundation types are available, a fee may apply. Please indicate your choice on the online order form, or to our customer service representative, when placing your house plan order.
If your desired foundation type is not available, please contact our customer service to receive your free plan modification quote.
Explanation of bonus space types
UNFINISHED BONUS ROOM
The bonus rooms are often planned above the garage and are accessible from the house. They are designed to be converted as an office, a laundry area, a bathroom, a library corner or even an additional bedroom for which homeowners must make sure to have a window that complies with current codes & standards.
STORAGE AREA
Often located above the garage, our storage areas are used only as storage and are usually accessible from the garage via a retractable staircase.
Do you like this plan but want it to be modified to suit your needs?
To add a garage, another bedroom, finish the basement or any other modification, click here and let us know about your desired changes and to get your free quote for the modification of your plan.
Conditions of use
Important copyright notice! Please take note of these copyright conditions before printing:
By printing this house plan, cottage or garage or the floorplan(s), you confirm being informed that every house plan on this website is the exclusive property of Drummond House
Plans and is protected by Canadian copyright law. You are aware that these prints cannot be used to build or even obtain a building permit. The graphic representations of these
models are offered by Drummond House Plans for the sole purpose of allowing you to notate modifications of a model and then take it to one of the Drummond House Plans Canadian dealers for
modification of the plan.
The purchase of a house plan, cottage or garage from Drummond House Plans is mandatory if you wish to build any of our models. The plan purchase allows you to build a single unit; you cannot resell or give your plan to anyone once the house, cottage or garage has been built. If you wish to build the same house, cottage or garage more than once, you need to obtain the licence to this effect. Please contact us for more details.
All plans from Drummond House Plans can only be modified by a licensed Drummond House Plan Canadian dealer. If any other business or individual with no affiliation to Drummond House Plans modifies a Drummond House Plan on your behalf, please ensure this business or individual has a licence to modify this specific plan or you will be subject to prosecution on the same level as the business or individual who modified or reproduced the plan.
For more details, do not hesitate to contact u by e-mail or by phone at 1-800-567-1413.
I agree to respect the conditions above to not reproduce, modify or build a model from Drummond House Plans without previously purchasing a complete house plan.









