There are no shipping fees if you buy one of our 2 plan packages "PDF file format" or "5 sets of blueprints + PDF". Shipping charges may apply if you buy additional sets of blueprints.
House plan Florentine (3620)
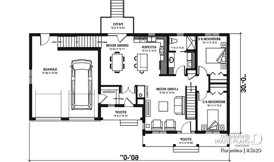
Modest 3 bedrooms 2 bathrooms ranch style house plan with 2-car garage, great master suite, open floor
Virtual visit
Other useful information on this plan
Private master retreat above garage (total of 3 beds)
The main body of this efficient rancher is a mere 1073 sq. ft. but there are no amenities missing here. In fact, this attractive home has a luxurious little secret – a fully private master suite in bonus space over the garage! Sloping ceilings add a special style to this secluded master loft complete with master bathroom and walk-in closet.
The main body of the house features a semi-open concept with the living room oriented to the front of the house but within easy reach of the kitchen. A combination of shower room and laundry room ensures quick recycling of laundry at source. This plan includes a full undeveloped basement or change it to a crawlspace and gain space in the living room. A double garage is the final feature, but one that is sure to be appreciated.
Distinctive elements
Remarkable closet at the entrance of the garage and the entrance of the house. Kitchen island. corner fireplace in the living room. Laundry room on the main floor. Master suite above garage.
Plan feature(s)
Mud room, Basement access from garage, Gound floor laundry room, Fireplace, Island, Master suite upstairs, Walk-in master bed., Sloped ceiling, Separate bath and shower, Split bedrooms
Plan architectural style(s)
. Ranch, . Country, . Colonial, . Craftsman / Northwest, . Traditional, . Farmhouse
Similar plans
Previously Viewed Plans
Questions and comments
July 25
Jennifer Lewis
I have a couple questions about this house. Does this house have an attic? And also, I cant really tell but is the sink in the master bathroom in the bedroom and not actually the bathroom? It looks like its outside the bathroom and does the bathroom in the master have a door? Thank you.
August 10
Customer service
Dear Mrs Lewis,
Thank you for your interest in Drummond House Plans.
This house has an attic with an access hatch. However,there is no flooring included in the standard plan. It is an unfinished space where roof rafters and insulation are visible. The sink is located in the master bedroom, not in the master bathroom. Also, there is no door to separate the master bedroom from the master bathroom. This plan can however be modified to suit your needs.
If you have other questions, please contact me again. I will gladly answer them.
Sincerely,
France, Customer Service Department
Thank you for your comment! It must be approved before being put online, please allow a period of 24 hours.
Error with google reCaptcha! Try again
Here is a brief description of our different plan packages. Please select the plan package that suits your needs. You can change the package at the next step, if necessary.
PDF VERSION OF PLAN:
Complete digital version of plan (pdf format) sent by email (original plan format 18" x 24'' or 24" x 36'')
5 copies of plan + PDF:
Includes: 5 copies of plan, plan in PDF format (reduced size version), materials list.
Foundation type
Additional foundation types are available, a fee may apply. Please indicate your choice on the online order form, or to our customer service representative, when placing your house plan order.
If your desired foundation type is not available, please contact our customer service to receive your free plan modification quote.
Explanation of bonus space types
UNFINISHED BONUS ROOM
The bonus rooms are often planned above the garage and are accessible from the house. They are designed to be converted as an office, a laundry area, a bathroom, a library corner or even an additional bedroom for which homeowners must make sure to have a window that complies with current codes & standards.
STORAGE AREA
Often located above the garage, our storage areas are used only as storage and are usually accessible from the garage via a retractable staircase.
Do you like this plan but want it to be modified to suit your needs?
To add a garage, another bedroom, finish the basement or any other modification, click here and let us know about your desired changes and to get your free quote for the modification of your plan.
Conditions of use
Important copyright notice! Please take note of these copyright conditions before printing:
By printing this house plan, cottage or garage or the floorplan(s), you confirm being informed that every house plan on this website is the exclusive property of Drummond House
Plans and is protected by Canadian copyright law. You are aware that these prints cannot be used to build or even obtain a building permit. The graphic representations of these
models are offered by Drummond House Plans for the sole purpose of allowing you to notate modifications of a model and then take it to one of the Drummond House Plans Canadian dealers for
modification of the plan.
The purchase of a house plan, cottage or garage from Drummond House Plans is mandatory if you wish to build any of our models. The plan purchase allows you to build a single unit; you cannot resell or give your plan to anyone once the house, cottage or garage has been built. If you wish to build the same house, cottage or garage more than once, you need to obtain the licence to this effect. Please contact us for more details.
All plans from Drummond House Plans can only be modified by a licensed Drummond House Plan Canadian dealer. If any other business or individual with no affiliation to Drummond House Plans modifies a Drummond House Plan on your behalf, please ensure this business or individual has a licence to modify this specific plan or you will be subject to prosecution on the same level as the business or individual who modified or reproduced the plan.
For more details, do not hesitate to contact u by e-mail or by phone at 1-800-567-1413.
I agree to respect the conditions above to not reproduce, modify or build a model from Drummond House Plans without previously purchasing a complete house plan.




























July 25
Jennifer Lewis
I have a couple questions about this house. Does this house have an attic? And also, I cant really tell but is the sink in the master bathroom in the bedroom and not actually the bathroom? It looks like its outside the bathroom and does the bathroom in the master have a door? Thank you.