There are no shipping fees if you buy one of our 2 plan packages "PDF file format" or "5 sets of blueprints + PDF". Shipping charges may apply if you buy additional sets of blueprints.
House plan Augusta 2 (2678-V1)
Traditional Country House Design with master suite, 3 to 4 Bedrooms, Deep Garage and Expandable Basement
Other useful information on this plan
A Country-Style House Plan Inspired by Historic Homes and Designed for Modern Family Living
Inspired by the timeless charm of traditional country homes, this house plan immediately captivates with its classic silhouette and warm, inviting character. Designed to echo the elegance of historic homes while meeting today’s lifestyle needs, it offers a perfect balance of authenticity, comfort, and functionality—creating a place where you truly feel at home.
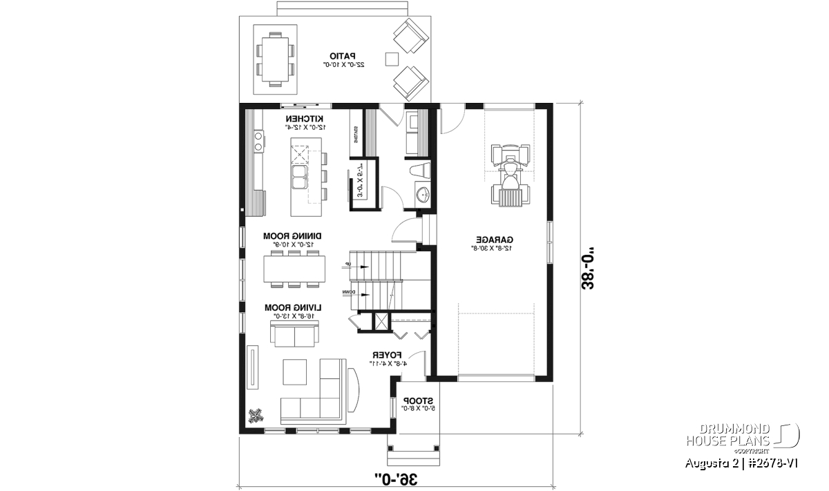
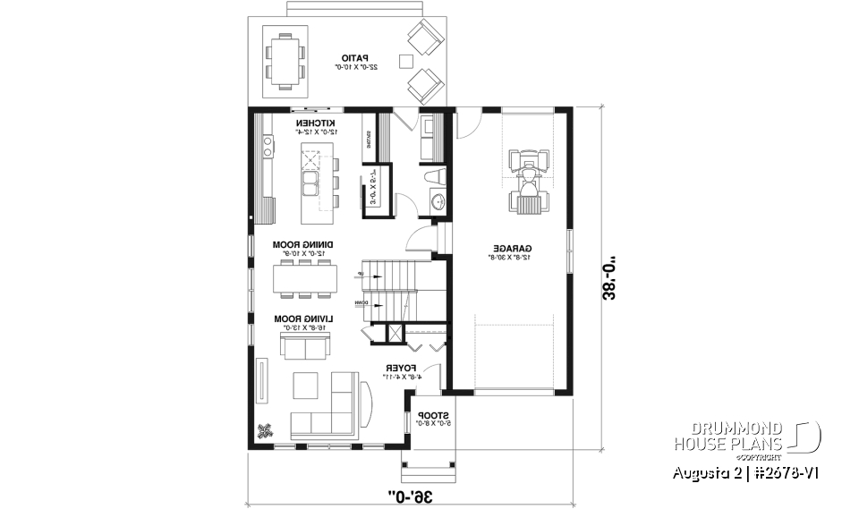
From the moment you step inside, the 9-foot ceilings on the main floor enhance the sense of space and natural light. The welcoming front entry, complete with a practical coat closet, sets the tone for an organized and comfortable daily routine. One particularly appreciated feature is the direct access from the garage to the kitchen, making it effortless to bring in groceries and everyday essentials.
At the heart of the home, the inviting kitchen is designed for both practicality and pleasure. It features a central island, a walk-in pantry, and a charming decorative shelving nook—perfect for displaying favorite pieces, storing cookbooks, or creating a cozy coffee bar where mornings begin at a relaxed pace. Open to the living spaces, the kitchen naturally encourages connection and shared moments.
A thoughtfully placed exterior access to the powder room helps keep floors clean after outdoor activities, while the main-floor laundry room eliminates unnecessary trips between levels, simplifying everyday life.
Upstairs, three well-arranged bedrooms provide comfort and privacy for the entire family. The primary suite stands out with its sloped ceiling, a peaceful reading nook, a private ensuite bathroom, and a spacious walk-in closet, creating a true retreat at the end of the day. The children’s bedrooms, bright and generously sized, also feature sloped ceilings that add unique character and warmth. A shared second bathroom with a double vanity completes the upper level.
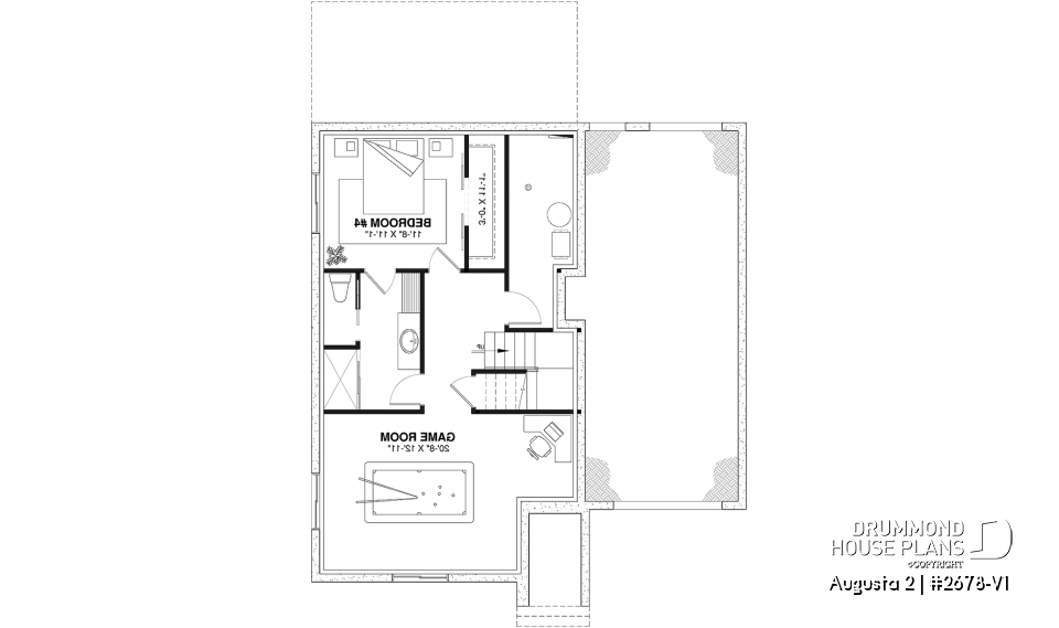
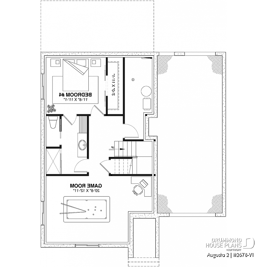
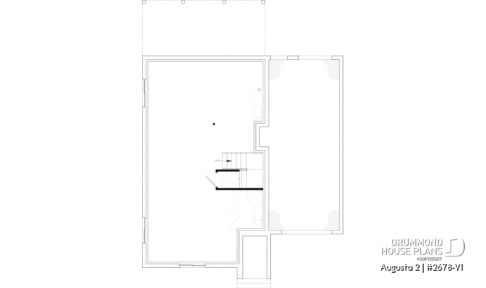
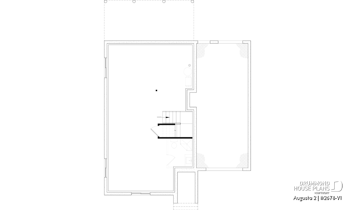
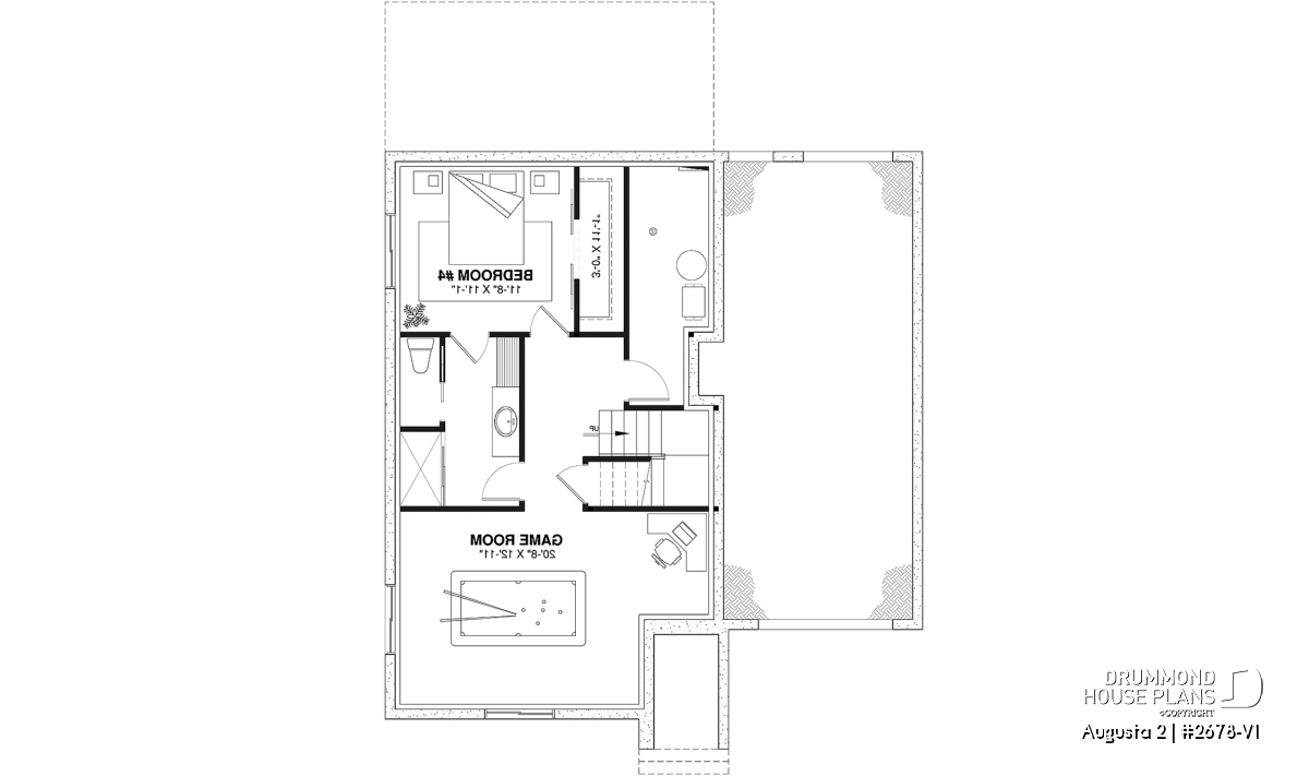
The extra-deep single-car garage offers exceptional versatility, easily accommodating a motorcycle, sports equipment, or even a small workshop. The unfinished basement, included in the base plan, provides endless opportunities for future expansion. Optional layouts allow for a guest suite with private bathroom, a family or game room with a home office nook, as well as ample storage and mechanical space.
This charming country-style home is designed to grow with you—offering timeless appeal, thoughtful details, and a welcoming atmosphere you’ll enjoy for years to come.
Distinctive elements
Traditional country-style home plan, inspired by the timeless shape and character of historic homes.
9’ ceilings on the main floor, creating a spacious and welcoming atmosphere.
Inviting front entry with a practical coat closet.
Direct access from the garage to the kitchen, making it easy to bring in groceries and everyday items.
Warm and functional kitchen featuring a central island and walk-in pantry, plus a charming display nook with shelving—perfect for décor, cookbooks, or a cozy coffee bar.
Exterior access to the powder room, ideal for keeping floors clean after outdoor activities.
Main-floor laundry room, eliminating unnecessary trips between levels.
Three bedrooms on the upper floor, thoughtfully arranged for family living.
Charming primary suite with a sloped ceiling, reading nook, private bathroom, and a spacious walk-in closet.
Children’s bedrooms with sloped ceilings, adding character, and well-sized closets.
Shared family bathroom with a double vanity for added convenience.
Extra-deep single-car garage, offering space for a motorcycle, storage, or hobby equipment.
Unfinished basement included in the base plan, ready for future development.
---
*Optional finished basement:
Guest suite with private bathroom,
Game room or family room with a home office nook,
Mechanical room and storage space.
---
*If you wish to purchase the finished basement plan, as presented on this plan page, please select this option in the shopping cart, in the "Selection of foundation type" section. If you do not select this option, you will receive the unfinished full basement option, at no extra charge.
Plan feature(s)
Gound floor laundry room, Panoramic view, Pantry, Master suite upstairs, Walk-in master bed., Ceiling over 8', Sloped ceiling, Island, Guest suite, Game room, Planning desk, Sitting area, Open floor layout, Double sinks, Shelves, Coffee bar
Plan architectural style(s)
. Country, . Transitional, . Traditional, . American, . English, . Farmhouse, Modern farmhouse, . Cape Cod, . Modern rustic
Similar plans
Previously Viewed Plans
Thank you for your comment! It must be approved before being put online, please allow a period of 24 hours.
Error with google reCaptcha! Try again
Here is a brief description of our different plan packages. Please select the plan package that suits your needs. You can change the package at the next step, if necessary.
PDF VERSION OF PLAN:
Complete digital version of plan (pdf format) sent by email (original plan format 18" x 24'' or 24" x 36'')
5 copies of plan + PDF:
Includes: 5 copies of plan, plan in PDF format (reduced size version), materials list.
Foundation type
Additional foundation types are available, a fee may apply. Please indicate your choice on the online order form, or to our customer service representative, when placing your house plan order.
If your desired foundation type is not available, please contact our customer service to receive your free plan modification quote.
Explanation of bonus space types
UNFINISHED BONUS ROOM
The bonus rooms are often planned above the garage and are accessible from the house. They are designed to be converted as an office, a laundry area, a bathroom, a library corner or even an additional bedroom for which homeowners must make sure to have a window that complies with current codes & standards.
STORAGE AREA
Often located above the garage, our storage areas are used only as storage and are usually accessible from the garage via a retractable staircase.
Do you like this plan but want it to be modified to suit your needs?
To add a garage, another bedroom, finish the basement or any other modification, click here and let us know about your desired changes and to get your free quote for the modification of your plan.
Conditions of use
Important copyright notice! Please take note of these copyright conditions before printing:
By printing this house plan, cottage or garage or the floorplan(s), you confirm being informed that every house plan on this website is the exclusive property of Drummond House
Plans and is protected by Canadian copyright law. You are aware that these prints cannot be used to build or even obtain a building permit. The graphic representations of these
models are offered by Drummond House Plans for the sole purpose of allowing you to notate modifications of a model and then take it to one of the Drummond House Plans Canadian dealers for
modification of the plan.
The purchase of a house plan, cottage or garage from Drummond House Plans is mandatory if you wish to build any of our models. The plan purchase allows you to build a single unit; you cannot resell or give your plan to anyone once the house, cottage or garage has been built. If you wish to build the same house, cottage or garage more than once, you need to obtain the licence to this effect. Please contact us for more details.
All plans from Drummond House Plans can only be modified by a licensed Drummond House Plan Canadian dealer. If any other business or individual with no affiliation to Drummond House Plans modifies a Drummond House Plan on your behalf, please ensure this business or individual has a licence to modify this specific plan or you will be subject to prosecution on the same level as the business or individual who modified or reproduced the plan.
For more details, do not hesitate to contact u by e-mail or by phone at 1-800-567-1413.
I agree to respect the conditions above to not reproduce, modify or build a model from Drummond House Plans without previously purchasing a complete house plan.




































