There are no shipping fees if you buy one of our 2 plan packages "PDF file format" or "5 sets of blueprints + PDF". Shipping charges may apply if you buy additional sets of blueprints.
House plan Acelia (1875)
Small, historic Canadian style house plan, 3 bedrooms, fireplace, laundry on main, sitting room on 2nd floor
Other useful information on this plan
Canadian style small house plan with 3 bedrooms and 2 baths
Still as charming as when it first came out on the market, this Canadian style home, inspired by traditional Kamouraska homes, suggests curved roofs and arched walls to better protect against the strong winds specific to this lower St. Lawrence region.
Perimeter windows and a fireplace provide light and comfort to the home, while at the back, a solarium dinette divides what could have been another large gallery into a well-integrated basement descent on the one hand and a covered gallery on the other.
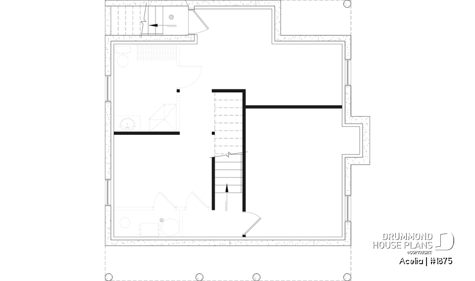
On the ground floor, the central location of the staircase makes it possible to obtain, for a reasonable square of house, very beautiful spaces all characterized by the presence of windows on two adjoining walls. We particularly note here, a pleasant solarium dinette overlooking the back, while upstairs, three interesting bedrooms, a decent bathroom and a boudoir space are organized around the staircase. The latter is also very well lit thanks to the abundant windows in the boudoir area upstairs.
Distinctive elements
Charming Canadian style house plan.
Large covered front porch.
Small rear covered balcony.
Beautiful natural light in the breakfast area.
Fireplace in the living room.
Formal dining room.
Half-bath with laundry area, on main floor.
Small boudoir upstairs.
Sloped ceiling in the master bedroom and bedroom #3.
Access to the basement from the outside.
Plan feature(s)
Fireplace, Breakfast nook, Sitting area, Gound floor laundry room, Access to basement from exterior, Sloped ceiling, Formal dining room, Deck
Plan architectural style(s)
. Canadian, . Traditional, . Country
Similar plans
Previously Viewed Plans
Questions and comments
January 06
Mike Langedock
What is the roof pitch of this Plan W1875.
Thanks,
Mike
January 06
Customer service
Good day Mr. Langedock and thank you for your interest in this plan.
The primary roof pitch is 12/12 as it is for the dormers and the secondary roof pitch is 4/12
Please let me know if you have any other questions or comments.
Regards
Deb
Thank you for your comment! It must be approved before being put online, please allow a period of 24 hours.
Error with google reCaptcha! Try again
Here is a brief description of our different plan packages. Please select the plan package that suits your needs. You can change the package at the next step, if necessary.
PDF VERSION OF PLAN:
Complete digital version of plan (pdf format) sent by email (original plan format 18" x 24'' or 24" x 36'')
5 copies of plan + PDF:
Includes: 5 copies of plan, plan in PDF format (reduced size version), materials list.
Foundation type
Additional foundation types are available, a fee may apply. Please indicate your choice on the online order form, or to our customer service representative, when placing your house plan order.
If your desired foundation type is not available, please contact our customer service to receive your free plan modification quote.
Explanation of bonus space types
UNFINISHED BONUS ROOM
The bonus rooms are often planned above the garage and are accessible from the house. They are designed to be converted as an office, a laundry area, a bathroom, a library corner or even an additional bedroom for which homeowners must make sure to have a window that complies with current codes & standards.
STORAGE AREA
Often located above the garage, our storage areas are used only as storage and are usually accessible from the garage via a retractable staircase.
Do you like this plan but want it to be modified to suit your needs?
To add a garage, another bedroom, finish the basement or any other modification, click here and let us know about your desired changes and to get your free quote for the modification of your plan.
Conditions of use
Important copyright notice! Please take note of these copyright conditions before printing:
By printing this house plan, cottage or garage or the floorplan(s), you confirm being informed that every house plan on this website is the exclusive property of Drummond House
Plans and is protected by Canadian copyright law. You are aware that these prints cannot be used to build or even obtain a building permit. The graphic representations of these
models are offered by Drummond House Plans for the sole purpose of allowing you to notate modifications of a model and then take it to one of the Drummond House Plans Canadian dealers for
modification of the plan.
The purchase of a house plan, cottage or garage from Drummond House Plans is mandatory if you wish to build any of our models. The plan purchase allows you to build a single unit; you cannot resell or give your plan to anyone once the house, cottage or garage has been built. If you wish to build the same house, cottage or garage more than once, you need to obtain the licence to this effect. Please contact us for more details.
All plans from Drummond House Plans can only be modified by a licensed Drummond House Plan Canadian dealer. If any other business or individual with no affiliation to Drummond House Plans modifies a Drummond House Plan on your behalf, please ensure this business or individual has a licence to modify this specific plan or you will be subject to prosecution on the same level as the business or individual who modified or reproduced the plan.
For more details, do not hesitate to contact u by e-mail or by phone at 1-800-567-1413.
I agree to respect the conditions above to not reproduce, modify or build a model from Drummond House Plans without previously purchasing a complete house plan.







January 06
Mike Langedock
What is the roof pitch of this Plan W1875.
Thanks,
Mike