There are no shipping fees if you buy one of our 2 plan packages "PDF file format" or "5 sets of blueprints + PDF". Shipping charges may apply if you buy additional sets of blueprints.
House plan Bayberry (2759)
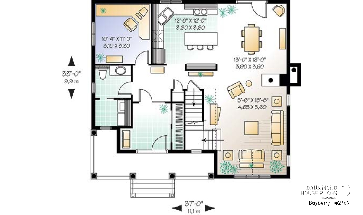
Charming 3 bedroom country cottage plan with nice master bedroom, den and fireplace
Other useful information on this plan
Comfortable country cottage with large master bedroom and den
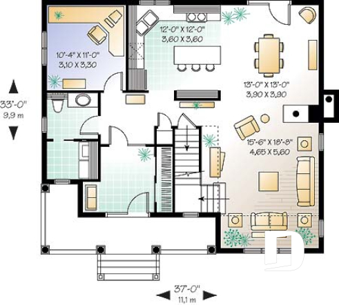
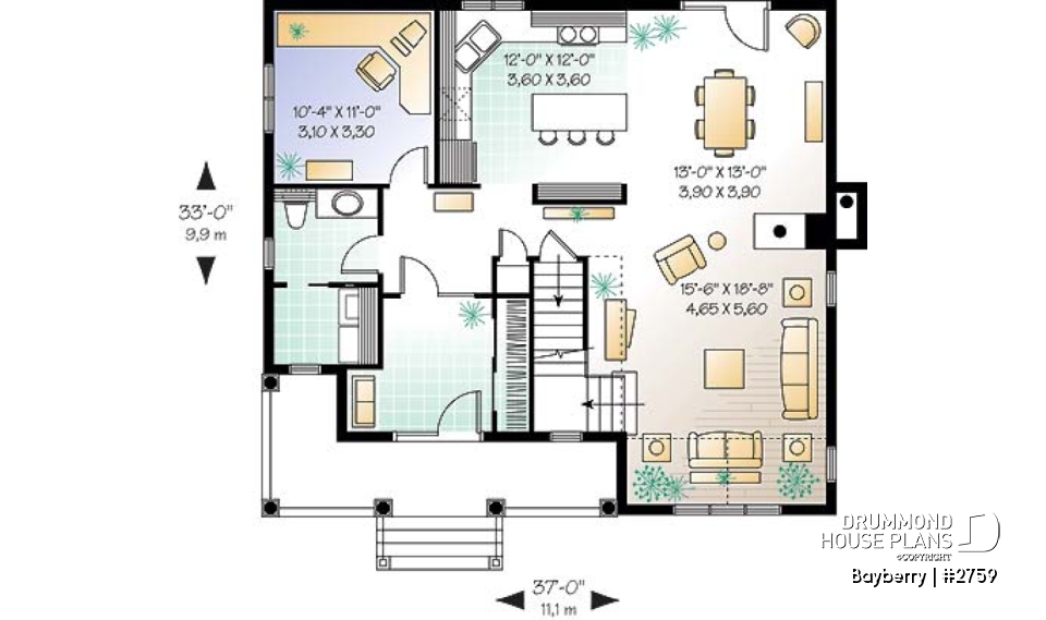
Designed with a country feeling in mind, this plan offers a well defined exterior with colored wood fibre siding for an interesting contrast to the white of the windows, a popular choice for many of our models because it is cost efficient since colored windows and doors can add 25% to 30%.
This cottage is also very welcoming with its beautiful porch, complete with wide stairs, and the two doors that open into a large entrance foyer with abundant closet space.
Inside, the first level offers a well organized kitchen complete with pantry and a central island. The open floor plan has a fireplace that separates the dining room from the spacious living room, with a computer corner, along with a separate laundry area in the powder room.
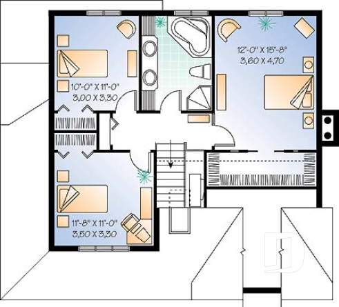
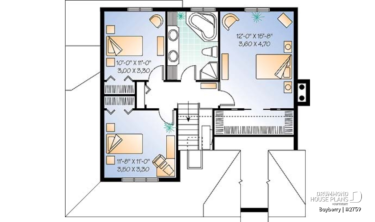
Upstairs the size of the bedrooms, of which the smallest is 10’ x 11’, and the ample closet space in the master bedroom and the separate corner bath and shower in the second floor bathroom are pleasantly surprising features that enhance the comfort of this home
Distinctive elements
9 foot ceiling on mail level, cathedral ceiling in family room, covered front balcony, dual sinks and corner bath in 2nd level bathroom, skylight, decorative wood trellis and mouldings, abundant fenestration, home office or bedroom #4.
Plan feature(s)
Fireplace, Cathedral ceiling, Sloped ceiling, Island, Office / Study / Den, Gound floor laundry room, Separate bath and shower, Double sinks, Walk-in master bed., Ceiling over 8', Mud room
Plan architectural style(s)
. Country, . American, . Traditional, . Farmhouse
Similar plans
Previously Viewed Plans
Questions and comments
September 06
Jan
I was just wondering what the average provincial cost to build this home in New Brunswick would be. Also, is it possible to decrease the square footage?
September 06
Customer service
Dear Jan,
Thank you for your interest in Drummond House Plans.
Because construction costs vary greatly from region to region, we have not calculated construction costs for our house plans. We suggest that you contact a builder in your region and show him the information available on our website concerning this plan. The builder will be able to provide you with an estimate of the cost, or at least, a dollar amount per square foot. You will also obtain a more accurate estimate.
The square footage of this house can be decreased. All of our plans can easily be modified. To receive a Free Cost Estimate, you can visit the "Plan Customization Services" section of our website or contact our Modification Department at 1-800-567-5267.
If you have further questions, please do not hesitate to contact me again.
Best regards,
France, Customer Service Department
February 22
wendy whyte
I was wondering if some changes could be made to the plans what would be the final cost to get the plans
February 22
Customer service
Dear Mrs Whyte,
Thank you for your interest in Drummond House Plans.
All of our plans can easily be modified. To receive a Free Cost Estimate, you can visit the "Plan modification services" section of our website or contact our Modification Department at 1-800-567-5267.
Do not hesitate to contact me again if you need further information.
Best Regards,
Doreen, Customer Service Department
June 27
Jim Bishop
I'm a little surprised that such a nice house, well laid out, does not have a private bathroom off the master bedroom. I shoould think that with today's busy lifestylye, sharing a bathroom with teenagers, and the inconvenience of having to be fully clothed when going to the bathroom, is just a tad retro.
Thank you for your comment! It must be approved before being put online, please allow a period of 24 hours.
Error with google reCaptcha! Try again
Here is a brief description of our different plan packages. Please select the plan package that suits your needs. You can change the package at the next step, if necessary.
PDF VERSION OF PLAN:
Complete digital version of plan (pdf format) sent by email (original plan format 18" x 24'' or 24" x 36'')
5 copies of plan + PDF:
Includes: 5 copies of plan, plan in PDF format (reduced size version), materials list.
Foundation type
Additional foundation types are available, a fee may apply. Please indicate your choice on the online order form, or to our customer service representative, when placing your house plan order.
If your desired foundation type is not available, please contact our customer service to receive your free plan modification quote.
Explanation of bonus space types
UNFINISHED BONUS ROOM
The bonus rooms are often planned above the garage and are accessible from the house. They are designed to be converted as an office, a laundry area, a bathroom, a library corner or even an additional bedroom for which homeowners must make sure to have a window that complies with current codes & standards.
STORAGE AREA
Often located above the garage, our storage areas are used only as storage and are usually accessible from the garage via a retractable staircase.
Do you like this plan but want it to be modified to suit your needs?
To add a garage, another bedroom, finish the basement or any other modification, click here and let us know about your desired changes and to get your free quote for the modification of your plan.
Conditions of use
Important copyright notice! Please take note of these copyright conditions before printing:
By printing this house plan, cottage or garage or the floorplan(s), you confirm being informed that every house plan on this website is the exclusive property of Drummond House
Plans and is protected by Canadian copyright law. You are aware that these prints cannot be used to build or even obtain a building permit. The graphic representations of these
models are offered by Drummond House Plans for the sole purpose of allowing you to notate modifications of a model and then take it to one of the Drummond House Plans Canadian dealers for
modification of the plan.
The purchase of a house plan, cottage or garage from Drummond House Plans is mandatory if you wish to build any of our models. The plan purchase allows you to build a single unit; you cannot resell or give your plan to anyone once the house, cottage or garage has been built. If you wish to build the same house, cottage or garage more than once, you need to obtain the licence to this effect. Please contact us for more details.
All plans from Drummond House Plans can only be modified by a licensed Drummond House Plan Canadian dealer. If any other business or individual with no affiliation to Drummond House Plans modifies a Drummond House Plan on your behalf, please ensure this business or individual has a licence to modify this specific plan or you will be subject to prosecution on the same level as the business or individual who modified or reproduced the plan.
For more details, do not hesitate to contact u by e-mail or by phone at 1-800-567-1413.
I agree to respect the conditions above to not reproduce, modify or build a model from Drummond House Plans without previously purchasing a complete house plan.









September 06
Jan
I was just wondering what the average provincial cost to build this home in New Brunswick would be. Also, is it possible to decrease the square footage?