Free plan modification estimate
Free plan modification estimate
EN
  • FR
Login / Registration
0
Show my cart No plan in your cart
Free shipping

There are no shipping fees if you buy one of our 2 plan packages "PDF file format" or "5 sets of blueprints + PDF". Shipping charges may apply if you buy additional sets of blueprints.

  • House plan search
  • Collections
  • New plans
  • Photo gallery
  • Modifications
  • HOUSE PLANS
  • COLLECTIONS
  • NEW PLANS
  • PHOTOS
  • MODIFICATIONS
Drummond House Plans
  • Advanced plan search
  • Collections
  • New house plans
  • Recently sold
  • 100 Best-sellers
  • Photo Gallery
  • Scandinavian
  • Modern Farmhouse
  • Contemporary
  • Modern style
  • Ranch style
  • Cabins, chalets, waterfront
  • Tiny houses & cabins
  • Duplex & multi-family
  • Garage plans
  • Pool cabana plans
  • Plan modifications - free estimate
  • 0
    Show all No plan in your favorites
  • 0
    Show the comparator No plan in your comparator
Advanced Search
Drummond House Plans
  • Find your house plan
    Find your house plan
    Advanced plan search Top House Plan Collections
    • New Plans - Latest Trends
    • Recently sold
    • Best Sellers
    • Modern Farmhouses
    • Scandinavian style homes
    • Contemporary designs
    • Ranch style homes
    • Small Modern Homes
    • Cottages, Vacation Homes & Cabins
    • Garage plans
    • Multi-family homes
    • 4 Beds / 2+ Baths Homes
    • 3 Beds / 2+ Baths Homes
    • See all collections
    Home photo gallery Need plan modifications Customer care
  • Collaborations
    Collaborations
    Collaborations Maibec
    Collaborations Stûv
    Collaborations Konergie
    Collaborations Rinox
    Collaborations Rona
    Collection Jenn X Drummond House Plans
  • Custom design services
    Custom design services
    Plan modifications
    • 2 Ways to get plan modifications & pricing
    • Get my free online quote
    Custom home design, from scratch
    • 5 Steps to get a custom plan & pricing
    Additional architectural services
    • Materials lists, engineering and more
    Plan modification photos Home photos - custom homes
  • Home renovation plan
    Home renovation plan
    Home renovation design
    • 2 Ways to get your renovation plan & pricing
    • Online renovation form
    • Get my free online quote
    Home photos - before / after renovation
  • Home photos & videos
  • For home builders
    For home builders
    New home builder program
    • Builder plan packages, options & discounts
    • Additional services for builders
    Advertising options
    • Digital media advertising
    • Print media advertising
    • Advertise your business on our site
    Builder house plans
    Jessica Langlois
    • Builder & Advertising Sales Rep.
    • Phone: 1-800-567-5267 EXT: 108
    • [email protected]
    Contact our representative
  • House plan information
    Information sur nos plans
    House plan packages & options
    • Blueprints, PDF & plan options
    • Building material list
    • Packages, engineering, BCIN, etc.

    Technical info

    • Construction stds., green homes, permits, etc.
    Find your house plan
    Customer care Contact us Need plan modifications
  • About Drummond House Plans
    About Drummond House Plans
    Our story
    • 130,000 house plan sold since 1973...
    Business opportunities
    • Regional offices: available territories
    • License for design professionnals
    • Job opportunities
    Follow us
    • Blog, social media, newslettter
    Customer care Contact us Our 31 sales offices
  • Blog
  • Our 31 sales offices
  • HOUSE PLANS
  • COLLECTIONS
  • NEW PLANS
  • PHOTOS
  • MODIFICATIONS
Drummond House Plans

Research

  • 0
  • 1
  • 2
  • 3
  • 4
  • 5
  • 6+
  • 0
  • 1
  • 1.5
  • 2
  • 2.5
  • 3
  • 3.5
  • 4+
Advanced search
Hide filters
i

To better target the plans that meet your expectations, please use the different filters available to you below.

  • 0
  • 1
  • 2
  • 3
  • 4
  • 5
  • 6+
  • 0
  • 1
  • 1.5
  • 2
  • 2.5
  • 3
  • 3.5
  • 4+
  • Architectural styles

  • Number of floor(s)

  • Garage

  • Location of master bedroom

  • Special features house plans

    Features

    Rooms

  • Total living area (square feet)
  • Foundation types

  • Width of the house
  • Depth of the house
  • Ridge height from top of foundation
  • Categories

  • Special elements

View more

See our plan collections Photo gallery of our plans Plan modification services Exclusive home design services
Drummond House Plans
Advanced house plan search

House plan search results

Start your house plan search among our thousands of house models and floor plans, cabin & cottage plans, tiny house plans, garage plans, multi-generational house plans, semi-detached plans and more! Use the filters on the left to specify your needs! Need help to find the perfect plan for your family? Email us your criteria and we will come back to you with a selection personalized to your needs!

View filters Display options
  • 10
  • -
  • 20
  • -
  • 50
Hide options

561 to 580 of 1334

  • 1
  • ...
  • 27
  • 28
  • 29
  • 30
  • 31
  • ...
  • 67
  • Summerwood

    (3047)
    • front - BASE MODEL -  - Summerwood
    • 1st level -  - Summerwood 1st level
    • Basement -  - Summerwood Basement

    Bedrooms

    2, 3

    Baths

    2

    Powder r.

    -

    Living area

    1979 sq.ft.

    Garage type

    -

    Details
  • Lotus

    (3128)
    • front elevation -  - Lotus
    • 1st level -  - Lotus 1st level

    Bedrooms

    2

    Baths

    1

    Powder r.

    -

    Living area

    1146 sq.ft.

    Garage type

    -

    Details
  • Skylark 2

    (3938-V1)
    • Color version 1 - Front -  - Skylark 2
    • 1st level -  - Skylark 2 1st level
    • 2nd level -  - Skylark 2 2nd level
    • Basement -  - Skylark 2 Basement

    Bedrooms

    3, 4, 5

    Baths

    3

    Powder r.

    -

    Living area

    2586 sq.ft.

    Garage type

    -

    Details
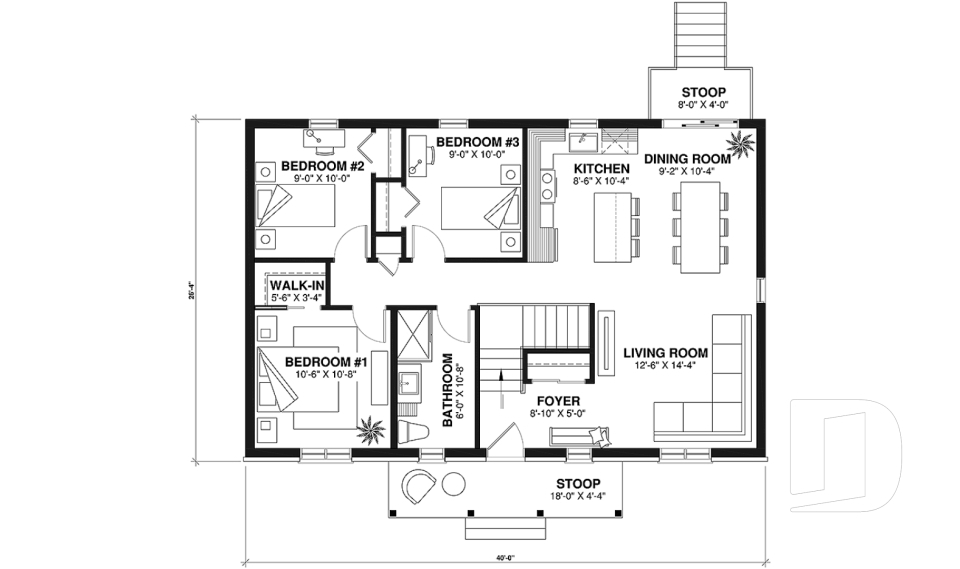
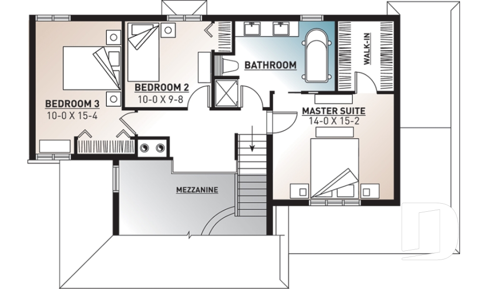
  • Hearthside

    (3959)
    • front - BASE MODEL -  - Hearthside
    • 1st level -  - Hearthside 1st level
    • Basement -  - Hearthside Basement

    Bedrooms

    1, 2, 3, 4

    Baths

    2

    Powder r.

    -

    Living area

    1742 sq.ft.

    Garage type

    -

    Details
  • Sandhill 2

    (3122-V1)
    • Color version 6 - Front -  - Sandhill 2
    • 1st level -  - Sandhill 2 1st level
    • Basement -  - Sandhill 2 Basement

    Bedrooms

    2, 4

    Baths

    2

    Powder r.

    -

    Living area

    1888 sq.ft.

    Garage type

    -

    Details
  • Warner 2

    (3709-V1)
    • front - BASE MODEL -  - Warner 2
    • 1st level -  - Warner 2 1st level
    • 2nd level -  - Warner 2 2nd level

    Bedrooms

    3

    Baths

    1

    Powder r.

    1

    Living area

    1396 sq.ft.

    Garage type

    -

    Details
  • Landry 2

    (3408-V1)
    • front - BASE MODEL -  - Landry 2
    • 1st level -  - Landry 2 1st level
    • 2nd level -  - Landry 2 2nd level

    Bedrooms

    3, 4

    Baths

    2

    Powder r.

    -

    Living area

    1795 sq.ft.

    Garage type

    One-car garage

    Details
  • Fontaine 2

    (3437-V1)
    • front - BASE MODEL -  - Fontaine 2
    • 1st level -  - Fontaine 2 1st level
    • 2nd level -  - Fontaine 2 2nd level

    Bedrooms

    3

    Baths

    2

    Powder r.

    -

    Living area

    1931 sq.ft.

    Garage type

    One-car garage

    Details
  • Ashford

    (3455-V2)
    • front - BASE MODEL -  - Ashford
    • 1st level -  - Ashford 1st level
    • 2nd level -  - Ashford 2nd level

    Bedrooms

    3, 4

    Baths

    1

    Powder r.

    1

    Living area

    1663 sq.ft.

    Garage type

    Two-car garage

    Details
  • Cottonwood 2

    (3986-V1)
    • front - BASE MODEL -  - Cottonwood 2
    • 1st level -  - Cottonwood 2 1st level
    • 2nd level -  - Cottonwood 2 2nd level

    Bedrooms

    -

    Baths

    -

    Powder r.

    -

    Living area

    2154 sq.ft.

    Garage type

    Three-car garage

    Details
  • Dryden 3

    (2187-V2)
    • front - BASE MODEL -  - Dryden 3
    • 1st level -  - Dryden 3 1st level

    Bedrooms

    2

    Baths

    1

    Powder r.

    -

    Living area

    1362 sq.ft.

    Garage type

    -

    Details
  • Emmitt 2

    (3114-V1)
    • front - BASE MODEL -  - Emmitt 2
    • 1st level -  - Emmitt 2 1st level

    Bedrooms

    2

    Baths

    1

    Powder r.

    -

    Living area

    975 sq.ft.

    Garage type

    -

    Details
  • Newburg 2

    (3236-V1)
    • front - BASE MODEL -  - Newburg 2
    • 1st level -  - Newburg 2 1st level

    Bedrooms

    2

    Baths

    1

    Powder r.

    -

    Living area

    1199 sq.ft.

    Garage type

    Two-car garage

    Details
  • Whitman 2

    (3862-V1)
    • front - BASE MODEL -  - Whitman 2
    • 1st level -  - Whitman 2 1st level
    • 2nd level -  - Whitman 2 2nd level

    Bedrooms

    3

    Baths

    2

    Powder r.

    1

    Living area

    1854 sq.ft.

    Garage type

    Two-car garage

    Details
  • Springbrook 3

    (2163-V2)
    • Color version 5 - Front -  - Springbrook 3
    • 1st level -  - Springbrook 3 1st level

    Bedrooms

    2

    Baths

    1

    Powder r.

    -

    Living area

    1148 sq.ft.

    Garage type

    One-car garage

    Details
  • Dryden2

    (2187-V1)
    • front - BASE MODEL -  - Dryden2
    • 1st level -  - Dryden2 1st level
    • Basement -  - Dryden2 Basement

    Bedrooms

    2, 3

    Baths

    2

    Powder r.

    -

    Living area

    1963 sq.ft.

    Garage type

    One-car garage

    Details
  • Cloverdale 2

    (2590-V1)
    • front - BASE MODEL -  - Cloverdale 2
    • 1st level -  - Cloverdale 2 1st level
    • 2nd level -  - Cloverdale 2 2nd level

    Bedrooms

    3

    Baths

    2

    Powder r.

    1

    Living area

    1702 sq.ft.

    Garage type

    -

    Details
  • Dellwood 2

    (2769-V1)
    • front - BASE MODEL -  - Dellwood 2
    • 1st level -  - Dellwood 2 1st level
    • 2nd level -  - Dellwood 2 2nd level

    Bedrooms

    3, 4

    Baths

    2

    Powder r.

    1

    Living area

    2124 sq.ft.

    Garage type

    -

    Details
  • Applegate 3

    (2783-V2)
    • front - BASE MODEL -  - Applegate 3
    • 1st level -  - Applegate 3 1st level
    • 2nd level -  - Applegate 3 2nd level

    Bedrooms

    3

    Baths

    1

    Powder r.

    1

    Living area

    1724 sq.ft.

    Garage type

    One-car garage

    Details
  • Foxwood 2

    (3222-V1)
    • front - BASE MODEL -  - Foxwood 2
    • 1st level -  - Foxwood 2 1st level

    Bedrooms

    2

    Baths

    1

    Powder r.

    -

    Living area

    1387 sq.ft.

    Garage type

    Two-car garage

    Details
  • 1
  • ...
  • 27
  • 28
  • 29
  • 30
  • 31
  • ...
  • 67

Our plans

  • Advanced search
  • Collections
  • Collaborations
  • New plans
  • Recently sold
  • 100 most popular
  • Photos & videos

Collaborations

Collections

Plan modifications

Full custom design

Renovation design for existing home

Online Forms

Online Forms

  • Plan modifications
  • Full custom design
  • Renovation design for existing home
  • General information
  • Send us your photos
  • Talk to our president
  • Apply for a job
  • Privacy requests

CUSTOMER SERVICE

Our services

  • Plan prices
  • Plans packages
  • Plan modification
  • Custom house plan
  • Renovation plan
  • Additional services
  • Information on our plans
  • Builders
  • License for designers
  • Advertise your business on our site

CUSTOMER SERVICE

  • Payment, shipping, tracking
  • Return policy
  • Technical support

About us

  • Our history
  • Our 31 regional branch offices
  • Best plan commitment
  • Best price guarantee
  • Media kit
  • Employment
  • Blog
  • Copyright & legal
  • Site map
  • Contact

Plan Site

Drummond House Plans | Your best plan

31 sales offices in Quebec
1 800 567-5267

newsletter

Stay on top of the latest trends & receive our offers and promotions!!

Thank you for your newsletter subscription!

Error google reCaptcha! Try again.

© 2026 Drummond House Plans. All rights reserved. | Privacy policy

Login


You have forgotten your password? Click here.

Create your account