There are no shipping fees if you buy one of our 2 plan packages "PDF file format" or "5 sets of blueprints + PDF". Shipping charges may apply if you buy additional sets of blueprints.
House plan Tahoe 2 (3973-V1)
Scandinavian one-storey house plan, 2 bedrooms, large kitchen, open concept, mudroom, pantry
Other useful information on this plan
Scandinavian-style bungalow with 2 bedrooms and large sheltered terrace
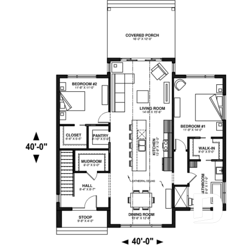
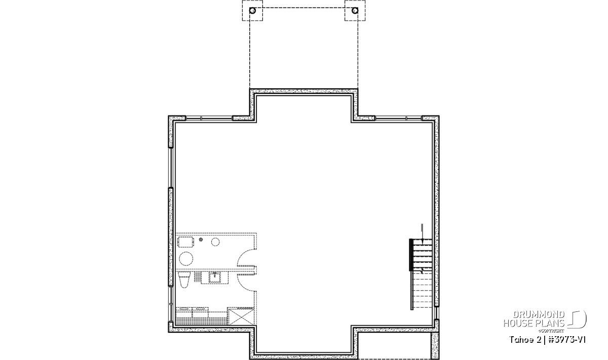
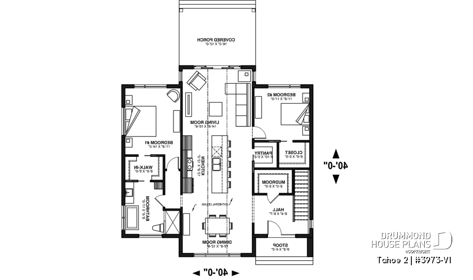
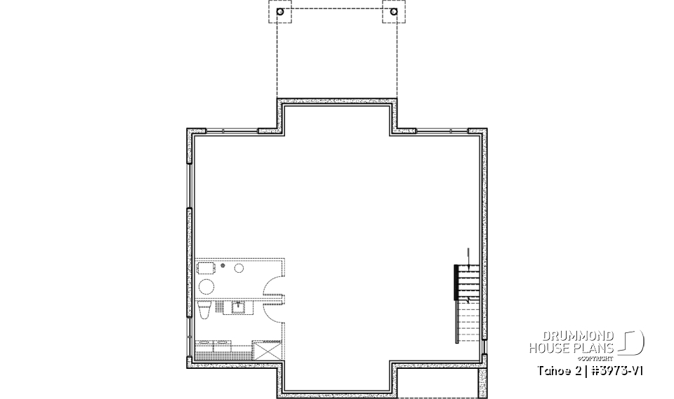
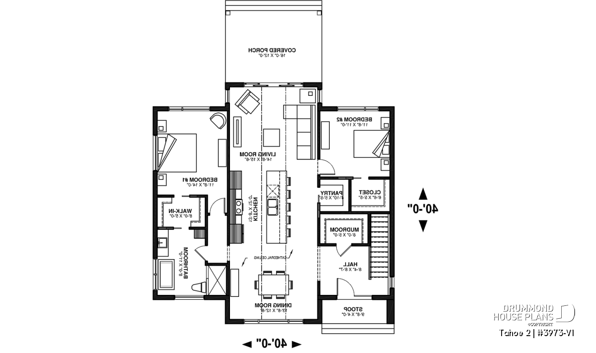
The TAHOE 2 (# 3973-v2), Modern Scandinavian-inspired one-storey house plan offers 1408 heated sq. ft. on the ground floor. It is a slightly smaller version of the TAHOE plan (# 3973). In addition to a decrease of 39 sq.ft., the major differences lie in the washer-dryer which has been taken down to the unfinished basement, and to the staircase which has been moved to be less central.
The entrance to the house opens onto a good size mudroom and then onto the dining room. The dining room is adjacent to the kitchen which has a large central island that can easily accommodate 5 guests. In addition, a walk-in pantry is found near the kitchen. The latter is also open to the living room. All this central sector (dining room, kitchen and living room) features a cathedral ceiling. A good size covered terrace is accessible from the living room.
Master bedroom offers a walk-in closet of approx. 40 sq.ft. in addition to direct access to the bathroom. The latter offers a separate bath and shower. Bedroom #2 can become a versatile space according to your needs, and it also has a walk-in closet.
The BASIC foundation of this plan includes an unfinished basement, to be finished. It is important to note that several types of foundation are available for each of our plans.
Distinctive elements
Modern Scandinavian inspiration.
One-storey house plan with 2 bedrooms.
Great sheltered terrace.
Master bedroom with walk-in closet and private access to shared bathroom.
Bathroom with separated bath and shower.
Open concept kitchen with pantry and large kitchen island.
Mudroom at the main entrance of the house.
Bedroom #2 with walk-in closet. This bedroom can easily be used as a den, a home gyp or craft room.
Unfinished basement, and other foundation options are available for ALL our house plans.
Plan feature(s)
Separate bath and shower, Pantry, Island, Ceiling over 8', Open floor layout, Cathedral ceiling, Jack & Jill bath, Mud room, Walk-in master bed., Coffee bar
Plan architectural style(s)
. Scandinavian, . Modern / Design, . Contemporary, . Cottage, chalet, cabin, . Ski chalets
Similar plans
Previously Viewed Plans
Thank you for your comment! It must be approved before being put online, please allow a period of 24 hours.
Error with google reCaptcha! Try again
Here is a brief description of our different plan packages. Please select the plan package that suits your needs. You can change the package at the next step, if necessary.
PDF VERSION OF PLAN:
Complete digital version of plan (pdf format) sent by email (original plan format 18" x 24'' or 24" x 36'')
5 copies of plan + PDF:
Includes: 5 copies of plan, plan in PDF format (reduced size version), materials list.
Foundation type
Additional foundation types are available, a fee may apply. Please indicate your choice on the online order form, or to our customer service representative, when placing your house plan order.
If your desired foundation type is not available, please contact our customer service to receive your free plan modification quote.
Explanation of bonus space types
UNFINISHED BONUS ROOM
The bonus rooms are often planned above the garage and are accessible from the house. They are designed to be converted as an office, a laundry area, a bathroom, a library corner or even an additional bedroom for which homeowners must make sure to have a window that complies with current codes & standards.
STORAGE AREA
Often located above the garage, our storage areas are used only as storage and are usually accessible from the garage via a retractable staircase.
Do you like this plan but want it to be modified to suit your needs?
To add a garage, another bedroom, finish the basement or any other modification, click here and let us know about your desired changes and to get your free quote for the modification of your plan.
Conditions of use
Important copyright notice! Please take note of these copyright conditions before printing:
By printing this house plan, cottage or garage or the floorplan(s), you confirm being informed that every house plan on this website is the exclusive property of Drummond House
Plans and is protected by Canadian copyright law. You are aware that these prints cannot be used to build or even obtain a building permit. The graphic representations of these
models are offered by Drummond House Plans for the sole purpose of allowing you to notate modifications of a model and then take it to one of the Drummond House Plans Canadian dealers for
modification of the plan.
The purchase of a house plan, cottage or garage from Drummond House Plans is mandatory if you wish to build any of our models. The plan purchase allows you to build a single unit; you cannot resell or give your plan to anyone once the house, cottage or garage has been built. If you wish to build the same house, cottage or garage more than once, you need to obtain the licence to this effect. Please contact us for more details.
All plans from Drummond House Plans can only be modified by a licensed Drummond House Plan Canadian dealer. If any other business or individual with no affiliation to Drummond House Plans modifies a Drummond House Plan on your behalf, please ensure this business or individual has a licence to modify this specific plan or you will be subject to prosecution on the same level as the business or individual who modified or reproduced the plan.
For more details, do not hesitate to contact u by e-mail or by phone at 1-800-567-1413.
I agree to respect the conditions above to not reproduce, modify or build a model from Drummond House Plans without previously purchasing a complete house plan.













