There are no shipping fees if you buy one of our 2 plan packages "PDF file format" or "5 sets of blueprints + PDF". Shipping charges may apply if you buy additional sets of blueprints.
House plan River Run (6123)
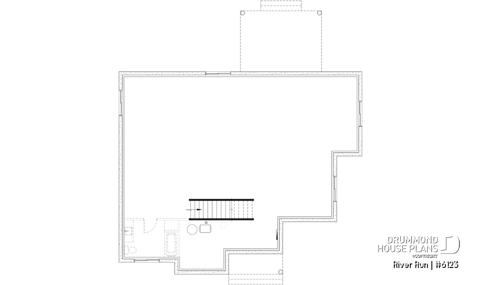
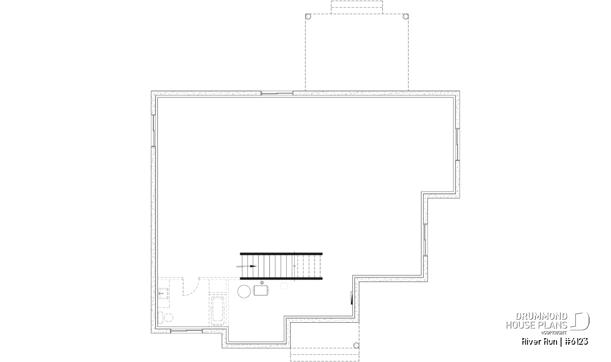
Single-storey floor plan, 4 bedrooms and 2 baths on main floor, open concept, coffee bar and sheltered terrace
Other useful information on this plan
Transitional Bungalow House Plan with 3 Bedrooms, Primary Suite and Open Concept Living
This beautiful home plan perfectly balances timeless elegance with modern comfort. Designed as a bright, single-level layout, it offers 4 bedrooms on the main floor—an increasingly rare and desirable feature for families seeking to bring all living spaces together on one level.
The primary suite stands out as a true retreat, featuring a private bathroom with a double vanity, a freestanding bathtub, and a separate shower. Three additional bedrooms share a well-designed bathroom with shower, which also integrates a stacked washer and dryer for added day-to-day convenience.
At the heart of the home lies a functional and inviting kitchen with pantry, ideal for both everyday meals and entertaining. The dining area, open to the kitchen, is enhanced by a charming coffee bar nook—perfect for a morning ritual or a cozy break throughout the day.
The spectacular great room is designed to impress, with its soaring cathedral ceiling that brings in light and volume, while 9-foot ceilings in the other rooms ensure balance and harmony throughout. A welcoming living room with fireplace completes the space, creating a warm and inviting atmosphere where family and friends will love to gather year-round.
Built on a floating slab foundation, this plan also offers alternative foundation options ($) to adapt to your needs and site conditions. This flexibility makes it an ideal choice whether you envision your home in a vibrant urban setting or nestled in a peaceful natural environment.
Blending classic elegance with contemporary practicality, this transitional bungalow offers the perfect combination of design, comfort, and functionality. Spacious yet efficient, bright yet cozy, it is a home plan that truly meets the expectations of today’s families.
Distinctive elements
Transitional Style Home Plan, combining classic elegance and modern comfort.
Bright bungalow offering 4 bedrooms on the main floor, ideal for families.
Primary suite with refined private bathroom, including double vanity, freestanding tub, and separate shower.
Functional bathroom with shower shared by the 3 additional bedrooms, featuring a stacked washer/dryer for added convenience.
Inviting kitchen with practical pantry, designed for everyday living and entertaining.
Dining room open to the kitchen, enhanced with a charming coffee bar nook, perfect for relaxed mornings.
Spectacular great room with cathedral ceiling, adding volume and natural light; 9’ ceilings throughout the rest of the home.
Warm and cozy living room with fireplace, creating a welcoming atmosphere in every season.
*Floating slab foundation included in the base plan.
---
*Unfinished Basement (optional $):
*If you wish to purchase the unfinished basement plan option ($), please select this option in the shopping cart, in the "Select your foundation" section. If you do not select this option, you will receive a floating slab as your foundation, at no extra cost.
Plan feature(s)
Separate bath and shower, Coffee bar, Pantry, Cathedral ceiling, Deck, Entrance hall, Ceiling over 8', Open floor layout, Fireplace, Double sinks, Gound floor laundry room, Bench seat(s), Self-Build
Plan architectural style(s)
Modern farmhouse, Modern Craftsman, . Mountain, . Ranch, . Rustic, . Country, . Modern rustic, . American, . Farmhouse, . Transitional
Similar plans
Previously Viewed Plans
Thank you for your comment! It must be approved before being put online, please allow a period of 24 hours.
Error with google reCaptcha! Try again
Here is a brief description of our different plan packages. Please select the plan package that suits your needs. You can change the package at the next step, if necessary.
PDF VERSION OF PLAN:
Complete digital version of plan (pdf format) sent by email (original plan format 18" x 24'' or 24" x 36'')
5 copies of plan + PDF:
Includes: 5 copies of plan, plan in PDF format (reduced size version), materials list.
Foundation type
Additional foundation types are available, a fee may apply. Please indicate your choice on the online order form, or to our customer service representative, when placing your house plan order.
If your desired foundation type is not available, please contact our customer service to receive your free plan modification quote.
Explanation of bonus space types
UNFINISHED BONUS ROOM
The bonus rooms are often planned above the garage and are accessible from the house. They are designed to be converted as an office, a laundry area, a bathroom, a library corner or even an additional bedroom for which homeowners must make sure to have a window that complies with current codes & standards.
STORAGE AREA
Often located above the garage, our storage areas are used only as storage and are usually accessible from the garage via a retractable staircase.
Do you like this plan but want it to be modified to suit your needs?
To add a garage, another bedroom, finish the basement or any other modification, click here and let us know about your desired changes and to get your free quote for the modification of your plan.
Conditions of use
Important copyright notice! Please take note of these copyright conditions before printing:
By printing this house plan, cottage or garage or the floorplan(s), you confirm being informed that every house plan on this website is the exclusive property of Drummond House
Plans and is protected by Canadian copyright law. You are aware that these prints cannot be used to build or even obtain a building permit. The graphic representations of these
models are offered by Drummond House Plans for the sole purpose of allowing you to notate modifications of a model and then take it to one of the Drummond House Plans Canadian dealers for
modification of the plan.
The purchase of a house plan, cottage or garage from Drummond House Plans is mandatory if you wish to build any of our models. The plan purchase allows you to build a single unit; you cannot resell or give your plan to anyone once the house, cottage or garage has been built. If you wish to build the same house, cottage or garage more than once, you need to obtain the licence to this effect. Please contact us for more details.
All plans from Drummond House Plans can only be modified by a licensed Drummond House Plan Canadian dealer. If any other business or individual with no affiliation to Drummond House Plans modifies a Drummond House Plan on your behalf, please ensure this business or individual has a licence to modify this specific plan or you will be subject to prosecution on the same level as the business or individual who modified or reproduced the plan.
For more details, do not hesitate to contact u by e-mail or by phone at 1-800-567-1413.
I agree to respect the conditions above to not reproduce, modify or build a model from Drummond House Plans without previously purchasing a complete house plan.














