There are no shipping fees if you buy one of our 2 plan packages "PDF file format" or "5 sets of blueprints + PDF". Shipping charges may apply if you buy additional sets of blueprints.
House plan Nora (3624)
Bright Scandinavian home design with fireplace, cathedral ceiling, and up to 6 bedrooms!
Other useful information on this plan
Bright Scandinavian Home Plan with Cathedral Ceiling, Fireplace, and up to 7 Bedrooms
This stunning Scandinavian-inspired home plan beautifully blends modern design, functionality, and natural light. Thoughtfully designed for today’s families, it captures the essence of Nordic simplicity — clean lines, warm textures, and bright, inviting spaces that feel both elegant and comfortable.
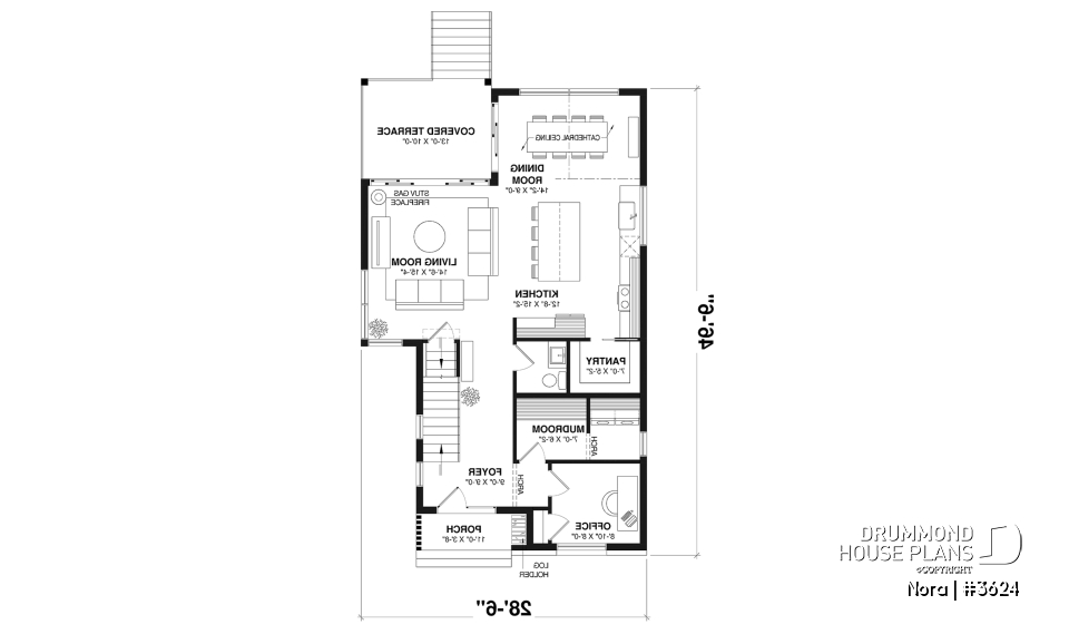
From the exterior, the covered front porch immediately sets the tone with its sleek yet welcoming style. A small built-in nook for stacking firewood hints at the cozy atmosphere that awaits inside, where every element is crafted for comfort and practicality.
The main floor impresses with its airy 9-foot ceilings, complemented by a cathedral ceiling rising to over 13 feet in the dining area. The open layout, enhanced by abundant windows, fills the living spaces with natural light and creates a soothing, uplifting atmosphere throughout the day.
The living room features a corner STÛV wood-burning fireplace, adding a touch of modern sophistication and warmth — the perfect gathering spot for family and friends. The kitchen, spacious and well-organized, includes a large central island and a generous walk-in pantry, ideal for home cooks and for entertaining guests with ease.
A discreet powder room is tucked away from the main living areas, while the front office offers flexibility as a fifth bedroom when needed. The main-floor laundry room, conveniently located beside the mudroom, ensures a smooth, functional flow for everyday living.
Upstairs, the layout is both practical and inviting, featuring four comfortable bedrooms, including a primary suite with a walk-in closet. The family bathroom provides a relaxing space with a separate tub and shower, offering comfort for all members of the household.
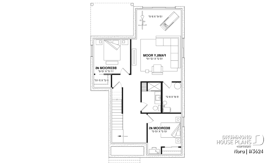
The unfinished basement invites you to create the perfect extension of your living space — whether you envision a family room, gym, guest suite, or creative studio. For added versatility, the finished basement option ($) includes two additional bedrooms, a cozy family room, a modern shower room, and a mechanical area with ample storage.
This bright Scandinavian home plan perfectly balances contemporary elegance with everyday comfort. Its clean architectural lines, warm materials, and abundant natural light make it a timeless choice for anyone seeking a peaceful, welcoming space that celebrates simplicity, beauty, and modern living.
Distinctive elements
Bright Scandinavian-inspired home plan combining simplicity, comfort, and natural elegance.
Covered front porch with a practical nook for stacking firewood for the living room fireplace.
Nine-foot ceilings throughout, except in the dining area where a cathedral ceiling soars to over 13 feet.
Front office that can easily be converted into bedroom #5 if needed.
Convenient main-floor laundry room connected to the front mudroom for added functionality.
Well-placed powder room, discreetly located away from the main living areas.
Spacious kitchen with a large central island and functional pantry, ideal for cooking and entertaining.
Bright living room featuring a corner STÛV wood-burning fireplace, adding warmth and a modern touch.
Dining area open to the kitchen, highlighted by its stunning cathedral ceiling.
Well-proportioned primary bedroom upstairs with a walk-in closet for ample storage.
Three additional bedrooms on the upper level, for a total of four, plus a full bathroom with separate tub and shower.
Unfinished basement offering great potential for future customization.
---
*Finished Basement (optional $):
Two additional comfortable bedrooms.
Cozy and versatile family room.
Modern and practical shower room.
Mechanical room and extra storage space.
---
*If you wish to purchase the finished basement plan, as presented on this plan page, please select this option in the shopping cart, in the "Selection of foundation type" section. If you do not select this option, you will receive the unfinished full basement option, at no extra charge.
Plan feature(s)
Open floor layout, Fireplace, Pantry, Island, Cathedral ceiling, Gound floor laundry room, Deck, Mud room, Panoramic view, Office / Study / Den, Ceiling over 8', Walk-in master bed., Sloped ceiling, Separate bath and shower, Self-Build
Plan architectural style(s)
. Scandinavian, . Cottage, chalet, cabin, . Modern / Design, . Vacation and waterfront
Similar plans
Previously Viewed Plans
Thank you for your comment! It must be approved before being put online, please allow a period of 24 hours.
Error with google reCaptcha! Try again
Here is a brief description of our different plan packages. Please select the plan package that suits your needs. You can change the package at the next step, if necessary.
PDF VERSION OF PLAN:
Complete digital version of plan (pdf format) sent by email (original plan format 18" x 24'' or 24" x 36'')
5 copies of plan + PDF:
Includes: 5 copies of plan, plan in PDF format (reduced size version), materials list.
Foundation type
Additional foundation types are available, a fee may apply. Please indicate your choice on the online order form, or to our customer service representative, when placing your house plan order.
If your desired foundation type is not available, please contact our customer service to receive your free plan modification quote.
Explanation of bonus space types
UNFINISHED BONUS ROOM
The bonus rooms are often planned above the garage and are accessible from the house. They are designed to be converted as an office, a laundry area, a bathroom, a library corner or even an additional bedroom for which homeowners must make sure to have a window that complies with current codes & standards.
STORAGE AREA
Often located above the garage, our storage areas are used only as storage and are usually accessible from the garage via a retractable staircase.
Do you like this plan but want it to be modified to suit your needs?
To add a garage, another bedroom, finish the basement or any other modification, click here and let us know about your desired changes and to get your free quote for the modification of your plan.
Conditions of use
Important copyright notice! Please take note of these copyright conditions before printing:
By printing this house plan, cottage or garage or the floorplan(s), you confirm being informed that every house plan on this website is the exclusive property of Drummond House
Plans and is protected by Canadian copyright law. You are aware that these prints cannot be used to build or even obtain a building permit. The graphic representations of these
models are offered by Drummond House Plans for the sole purpose of allowing you to notate modifications of a model and then take it to one of the Drummond House Plans Canadian dealers for
modification of the plan.
The purchase of a house plan, cottage or garage from Drummond House Plans is mandatory if you wish to build any of our models. The plan purchase allows you to build a single unit; you cannot resell or give your plan to anyone once the house, cottage or garage has been built. If you wish to build the same house, cottage or garage more than once, you need to obtain the licence to this effect. Please contact us for more details.
All plans from Drummond House Plans can only be modified by a licensed Drummond House Plan Canadian dealer. If any other business or individual with no affiliation to Drummond House Plans modifies a Drummond House Plan on your behalf, please ensure this business or individual has a licence to modify this specific plan or you will be subject to prosecution on the same level as the business or individual who modified or reproduced the plan.
For more details, do not hesitate to contact u by e-mail or by phone at 1-800-567-1413.
I agree to respect the conditions above to not reproduce, modify or build a model from Drummond House Plans without previously purchasing a complete house plan.



















