There are no shipping fees if you buy one of our 2 plan packages "PDF file format" or "5 sets of blueprints + PDF". Shipping charges may apply if you buy additional sets of blueprints.
House plan La Hacienda 2 (4819)
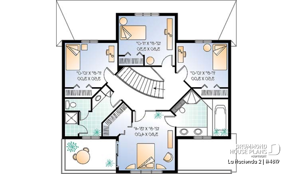
Spanish style villa house plan, 4 bedrooms, 3 bathrooms, beautiful master suite with terrace, garage
Other useful information on this plan
Life of Luxury with 4 terraces and divided floor plan layout!
Your family deserves it-- 2119 sq.ft. of luxurious living. First level opens with 9' ceilings, formal dining, easy-going family room with gas fireplace, and sensational kitchen where the lunch counter feeds into the bright breakfast area and atrium. Upstairs, the master bedroom suite takes a private bathroom and airy balcony. Three grand-size secondary bedrooms enjoy an expansive shower room.
Distinctive elements
Abundant fenestration, 9 foot ceiling on main level, atrium, special ceiling treatments, dual sinks in master bathroom.
Plan feature(s)
Fireplace, Side entry garage, Gound floor laundry room, Lunch counter, Panoramic view, Ceiling over 8', Master suite upstairs, Balcony 2nd floor, Entrance hall, Formal dining room, Separate bath and shower, Double sinks
Plan architectural style(s)
Similar plans
Previously Viewed Plans
Questions and comments
February 05
miguel
I need pictures real pictures from inside on w4819
February 05
Customer service
Good day and thank you for taking the time to write.
Since we do no actual construction, the only pictures that we have are those which our clients have so generously shared with us.
Unfortunately, we have none on file for this model at the present time so I must apologize for being unable to send you any.
Please let me know if you have any other questions or comments
Regards
Deb
August 09
ian
hello can this be desighned to have 12 foot cellings or higher on the first floor
August 09
Service à la clientele
Good day and thank you for your interest in our plans
The actual ceiling height of 9' on the first floor could be modified to suit your needs, all you need to do is to fill in the on line modification form for which I have attached the link below.
http://www.drummondhouseplans.com/plan-modification-services/online-estimate-form/plan/1001752.html
We will be pleased to send you a free estimate for the changes within two business days of receipt of your request.
Please let me know if I can further assist you.
Regards
Deborah
January 10
Gideon Osei
hello, am inquiring abt plan w4819, can this plan be built with cement blocks. I want to build that in Ghana, West Africa.
January 10
Customer service
Good day and thank you for your interest in our plans.
Construction in cement blocks is an option that we offer for this plan.
Please let me know if you have any other questions or comments.
Regards
Deborah
October 03
Scott
Hello
Do you have this plan W4819 with concrete exterior and interior wall construction. The home would be built in Central America Panama.
October 05
Customer service
Dear Scott,
Thank you for your interest for Drummond House Plans.
This plan is designed in 2" x 6". Please note that all of our plans can easily be modified. To receive a Free Cost Estimate, you can visit the "Plan modification services" section of our website or contact our Modification Department at 1-800-567-5267.
Do not hesitate to contact me again if you need further information.
Best Regards,
Doreen, Customer Service Department
May 05
Jeff Evans
Hi,
Is Plan #W4819 2x6 wood frame construction? Would it also be available for block (CMU) wall construction?
Thanks for your help! jeff
May 05
Customer service
Good morning Jeff,
This plan is in 2 x 6 and it can be modified to CMU. We will send you all the information via email.
Best Regards,
Customer Service Department
Thank you for your comment! It must be approved before being put online, please allow a period of 24 hours.
Error with google reCaptcha! Try again
Here is a brief description of our different plan packages. Please select the plan package that suits your needs. You can change the package at the next step, if necessary.
PDF VERSION OF PLAN:
Complete digital version of plan (pdf format) sent by email (original plan format 18" x 24'' or 24" x 36'')
5 copies of plan + PDF:
Includes: 5 copies of plan, plan in PDF format (reduced size version), materials list.
Foundation type
Additional foundation types are available, a fee may apply. Please indicate your choice on the online order form, or to our customer service representative, when placing your house plan order.
If your desired foundation type is not available, please contact our customer service to receive your free plan modification quote.
Explanation of bonus space types
UNFINISHED BONUS ROOM
The bonus rooms are often planned above the garage and are accessible from the house. They are designed to be converted as an office, a laundry area, a bathroom, a library corner or even an additional bedroom for which homeowners must make sure to have a window that complies with current codes & standards.
STORAGE AREA
Often located above the garage, our storage areas are used only as storage and are usually accessible from the garage via a retractable staircase.
Do you like this plan but want it to be modified to suit your needs?
To add a garage, another bedroom, finish the basement or any other modification, click here and let us know about your desired changes and to get your free quote for the modification of your plan.
Conditions of use
Important copyright notice! Please take note of these copyright conditions before printing:
By printing this house plan, cottage or garage or the floorplan(s), you confirm being informed that every house plan on this website is the exclusive property of Drummond House
Plans and is protected by Canadian copyright law. You are aware that these prints cannot be used to build or even obtain a building permit. The graphic representations of these
models are offered by Drummond House Plans for the sole purpose of allowing you to notate modifications of a model and then take it to one of the Drummond House Plans Canadian dealers for
modification of the plan.
The purchase of a house plan, cottage or garage from Drummond House Plans is mandatory if you wish to build any of our models. The plan purchase allows you to build a single unit; you cannot resell or give your plan to anyone once the house, cottage or garage has been built. If you wish to build the same house, cottage or garage more than once, you need to obtain the licence to this effect. Please contact us for more details.
All plans from Drummond House Plans can only be modified by a licensed Drummond House Plan Canadian dealer. If any other business or individual with no affiliation to Drummond House Plans modifies a Drummond House Plan on your behalf, please ensure this business or individual has a licence to modify this specific plan or you will be subject to prosecution on the same level as the business or individual who modified or reproduced the plan.
For more details, do not hesitate to contact u by e-mail or by phone at 1-800-567-1413.
I agree to respect the conditions above to not reproduce, modify or build a model from Drummond House Plans without previously purchasing a complete house plan.






February 05
miguel
I need pictures real pictures from inside on w4819