There are no shipping fees if you buy one of our 2 plan packages "PDF file format" or "5 sets of blueprints + PDF". Shipping charges may apply if you buy additional sets of blueprints.
House plan Killarney 2 (3117-V1)
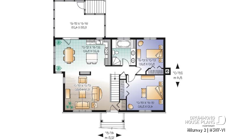
Affordable 2 bedroom one-storey country style house plan, finished basement (2 more beds), screened in porch
Other useful information on this plan
Small size – big space! Finished basement offers 2 more bedrooms plus large family room
Like models 2197-V1 and 3324, this tidy model achieves 4 bedrooms within a small footprint.
Inside, we find a flowing semi-open activity area The living room features partially vaulted ceiling to frame a dramatic arched window. The kitchen with island is within easy reach of a charming dining area which is surrounded by windows on three sides and with direct access to a screened porch.
The bedroom area is separate from the main living area and boasts two comfortable bedrooms including a forward-oriented master bedroom with large closet. The bathroom features a corner shower and independent bath.
A raised basement allows for full use of the basement for additional living space – two generous bedrooms, bathroom with laundry, family room with adjoining office area and a chimney to accommodate a wood stove for cozy winter days.
Storage space under the screened porch is designed with interior and exterior access – great for a cold room or for wood storage!
Distinctive elements
Partial cathedral ceiling in the living room to feature an arched window. Abundant windows in the dining room. Lunch island in the kitchen. Large size screened porch allowing the installation of a spa. Finished lower level with two additionnal bedrooms, a family room with chimney for a wood stove or fireplace and a shower/laundry room.
Plan feature(s)
Wood stove, Screened porch, Island, Panoramic view, Double sinks, Separate bath and shower
Plan architectural style(s)
. Country, . Craftsman / Northwest, . Cape Cod, . Traditional
Similar plans
Previously Viewed Plans
Thank you for your comment! It must be approved before being put online, please allow a period of 24 hours.
Error with google reCaptcha! Try again
Here is a brief description of our different plan packages. Please select the plan package that suits your needs. You can change the package at the next step, if necessary.
PDF VERSION OF PLAN:
Complete digital version of plan (pdf format) sent by email (original plan format 18" x 24'' or 24" x 36'')
5 copies of plan + PDF:
Includes: 5 copies of plan, plan in PDF format (reduced size version), materials list.
Foundation type
Additional foundation types are available, a fee may apply. Please indicate your choice on the online order form, or to our customer service representative, when placing your house plan order.
If your desired foundation type is not available, please contact our customer service to receive your free plan modification quote.
Explanation of bonus space types
UNFINISHED BONUS ROOM
The bonus rooms are often planned above the garage and are accessible from the house. They are designed to be converted as an office, a laundry area, a bathroom, a library corner or even an additional bedroom for which homeowners must make sure to have a window that complies with current codes & standards.
STORAGE AREA
Often located above the garage, our storage areas are used only as storage and are usually accessible from the garage via a retractable staircase.
Do you like this plan but want it to be modified to suit your needs?
To add a garage, another bedroom, finish the basement or any other modification, click here and let us know about your desired changes and to get your free quote for the modification of your plan.
Conditions of use
Important copyright notice! Please take note of these copyright conditions before printing:
By printing this house plan, cottage or garage or the floorplan(s), you confirm being informed that every house plan on this website is the exclusive property of Drummond House
Plans and is protected by Canadian copyright law. You are aware that these prints cannot be used to build or even obtain a building permit. The graphic representations of these
models are offered by Drummond House Plans for the sole purpose of allowing you to notate modifications of a model and then take it to one of the Drummond House Plans Canadian dealers for
modification of the plan.
The purchase of a house plan, cottage or garage from Drummond House Plans is mandatory if you wish to build any of our models. The plan purchase allows you to build a single unit; you cannot resell or give your plan to anyone once the house, cottage or garage has been built. If you wish to build the same house, cottage or garage more than once, you need to obtain the licence to this effect. Please contact us for more details.
All plans from Drummond House Plans can only be modified by a licensed Drummond House Plan Canadian dealer. If any other business or individual with no affiliation to Drummond House Plans modifies a Drummond House Plan on your behalf, please ensure this business or individual has a licence to modify this specific plan or you will be subject to prosecution on the same level as the business or individual who modified or reproduced the plan.
For more details, do not hesitate to contact u by e-mail or by phone at 1-800-567-1413.
I agree to respect the conditions above to not reproduce, modify or build a model from Drummond House Plans without previously purchasing a complete house plan.





