There are no shipping fees if you buy one of our 2 plan packages "PDF file format" or "5 sets of blueprints + PDF". Shipping charges may apply if you buy additional sets of blueprints.
House plan July (6982)
Small contemporary house w/ attached garage for RV, and one bedroom OR option without garage, with 3 bedrooms
Other useful information on this plan
Small / tiny house plan with attached RV garage and 1 or 3 bedroom option!
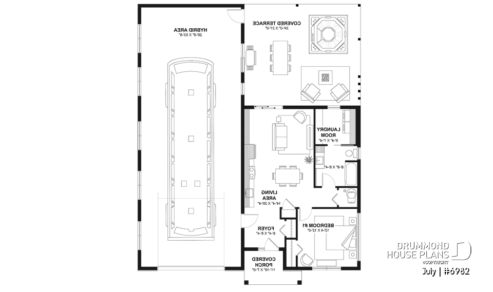
The JULY (#6982) is a compact yet highly versatile home designed to offer comfort, flexibility, and long-term adaptability. Thoughtfully planned, this model stands out for its efficient layout and its impressive RV garage, making it well suited to a variety of lifestyles today and in the future.
One of the defining features of the JULY (#6982) is its oversized RV garage, measuring 53 feet 8 inches deep by 20 feet 8 inches wide. With a clear ceiling height of 16 feet 6 inches, the garage can comfortably accommodate Class A, Class B, or Class C motorhomes, while still allowing for easy circulation and storage. This generous height also opens the door to future possibilities beyond vehicle storage.
The base floor plan offers a bright, open, and welcoming interior. Ten-foot ceilings throughout the main level enhance the sense of space and natural light. The front entry and garage entry share a common closet, providing a practical transition area that keeps daily routines organized. The kitchen, dining area, and living room are combined into a single open-concept living space, creating a central hub that feels both functional and inviting.
The bathroom connects directly to a well-sized laundry room, offering convenience and efficient use of space. At the rear of the home, a large covered terrace measuring 24 feet by 21 feet extends the living area outdoors. Its generous dimensions allow for multiple uses, whether imagined as a relaxation zone, a dining area, or a space dedicated to leisure and wellness, all while remaining protected from the elements.
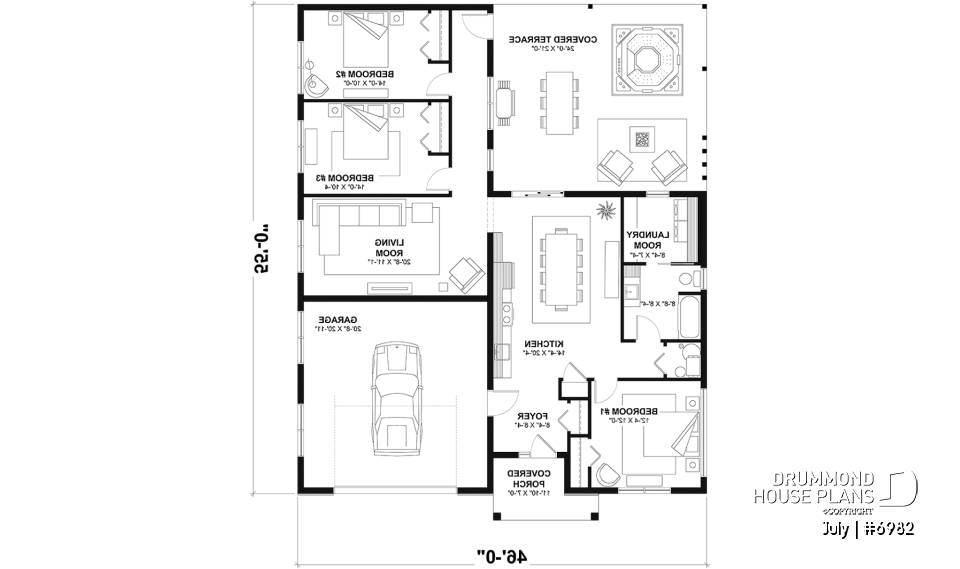
An alternate layout option illustrates a different vision for the JULY (#6982). In this version, the original dining nook and small living area are reconfigured into a larger dining space designed to comfortably seat up to eight people. The RV garage is converted into a single front-facing garage, while the rear portion is transformed into two bedrooms and a secondary living room. These newly created spaces feature dramatic 16-foot 6-inch ceilings, while the remainder of the home maintains its 10-foot ceiling height. The large covered rear terrace remains unchanged.
Both the base layout and the alternate option are included with the JULY (#6982), allowing the home to evolve over time while maintaining its balanced and thoughtfully designed character.
Distinctive elements
Small and comfortable house offering a large RV garage measuring 53'8'' deep by 20'8'' wide.
The basic floor layout offers:
Ceilings of 10' throughout the ground floor and 16'6'' in the RV garage.
This garage can easily accommodate a Class A, Class B and Class C motorhome.
The front entrance and the garage entrance share a coat closet.
The kitchen, dining area and living room are open concept.
The bathroom is connected to the laundry room, which is a wonderful size!
The superb and large covered terrace is 24' x 21' in size, allowing for a spa, a lounge area and a dining area.
OPTION 1 offers:
The basic floor dining and small living area is converted into a larger dining room that can seat 8 people. In addition, the RV garage become a single garage in the front, and the rear portion is modified into 2 bedrooms and a living room.
Note that the 2 bedrooms and the living room have a ceiling of 16'6'' and the rest of the house is 10'.
The large covered rear terrace remains the same.
*The basic floor layout and option #1 are included in the construction plan you will receive. You can build the floor that best suits your family. If you initially go with the basic floor (with RV garage), eventually and depending on your needs you could convert your garage into living space as suggested on the option(s).
Plan feature(s)
Open floor layout, Gound floor laundry room, Deck, Oversized garage, Ceiling over 8', Pantry
Plan architectural style(s)
. Country, . Contemporary, . Scandinavian, . Modern rustic, Modern Craftsman
Similar plans
Previously Viewed Plans
Thank you for your comment! It must be approved before being put online, please allow a period of 24 hours.
Error with google reCaptcha! Try again
Here is a brief description of our different plan packages. Please select the plan package that suits your needs. You can change the package at the next step, if necessary.
PDF VERSION OF PLAN:
Complete digital version of plan (pdf format) sent by email (original plan format 18" x 24'' or 24" x 36'')
5 copies of plan + PDF:
Includes: 5 copies of plan, plan in PDF format (reduced size version), materials list.
Foundation type
Additional foundation types are available, a fee may apply. Please indicate your choice on the online order form, or to our customer service representative, when placing your house plan order.
If your desired foundation type is not available, please contact our customer service to receive your free plan modification quote.
Explanation of bonus space types
UNFINISHED BONUS ROOM
The bonus rooms are often planned above the garage and are accessible from the house. They are designed to be converted as an office, a laundry area, a bathroom, a library corner or even an additional bedroom for which homeowners must make sure to have a window that complies with current codes & standards.
STORAGE AREA
Often located above the garage, our storage areas are used only as storage and are usually accessible from the garage via a retractable staircase.
Do you like this plan but want it to be modified to suit your needs?
To add a garage, another bedroom, finish the basement or any other modification, click here and let us know about your desired changes and to get your free quote for the modification of your plan.
Conditions of use
Important copyright notice! Please take note of these copyright conditions before printing:
By printing this house plan, cottage or garage or the floorplan(s), you confirm being informed that every house plan on this website is the exclusive property of Drummond House
Plans and is protected by Canadian copyright law. You are aware that these prints cannot be used to build or even obtain a building permit. The graphic representations of these
models are offered by Drummond House Plans for the sole purpose of allowing you to notate modifications of a model and then take it to one of the Drummond House Plans Canadian dealers for
modification of the plan.
The purchase of a house plan, cottage or garage from Drummond House Plans is mandatory if you wish to build any of our models. The plan purchase allows you to build a single unit; you cannot resell or give your plan to anyone once the house, cottage or garage has been built. If you wish to build the same house, cottage or garage more than once, you need to obtain the licence to this effect. Please contact us for more details.
All plans from Drummond House Plans can only be modified by a licensed Drummond House Plan Canadian dealer. If any other business or individual with no affiliation to Drummond House Plans modifies a Drummond House Plan on your behalf, please ensure this business or individual has a licence to modify this specific plan or you will be subject to prosecution on the same level as the business or individual who modified or reproduced the plan.
For more details, do not hesitate to contact u by e-mail or by phone at 1-800-567-1413.
I agree to respect the conditions above to not reproduce, modify or build a model from Drummond House Plans without previously purchasing a complete house plan.





