There are no shipping fees if you buy one of our 2 plan packages "PDF file format" or "5 sets of blueprints + PDF". Shipping charges may apply if you buy additional sets of blueprints.
House plan Ashcroft (3874)
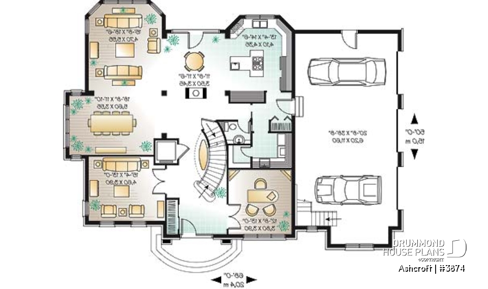
Superb 4 bedroom European house plan with home elevator, master suite, large bonus room and a triple garage
Other useful information on this plan
Stately Manor-Style Home With Home Elevator
Presenting a stately exterior with impressive rooflines, stonework and balcony, this fine home makes quite a statement. Inside, you’ll discover 10-foot ceilings (11 in the bonus room) and comfortable rooms in which to relax and entertain.
A private office allows for a quiet retreat off the foyer as does a cozy den or second office on the other side. Beyond, an open floor plan revolves around a central fireplace. A bright living room, generous dining room, open kitchen and breakfast nook, all enjoy the hearth and easy access to the garden doors leading to the back yard.
Main floor amenities are completed by a triple garage, a powder room and ample laundry. A private elevator ensures easy access between levels.
The second floor includes 9’ ceilings throughout. The grand master suite provides a luxurious retreat with ample space, sumptuous bathroom and ample walk-in closet. A secondary suite includes its own soaker tub and walk-in closet and two additional bedrooms share a hall bathroom. A bonus space over the garage would be an ideal media or game room and a generous balcony is both beautiful and functional.
Distinctive elements
10' ceiling on 1st level and 9' on 2nd level.
Elevator linking all three strories.
Home office on 1st level.
Spacious kitchen with central island and plenty of storage in the walk-in pantry.
Confortable dinette with nearby fireplace.
Four nice bedrooms on 2nd floor and three bathrooms.
3-car garage with bonus space above.
Plan feature(s)
Elevator, Mezzanine, Fireplace, Living bonus space, Pantry, Ceiling over 8', Master suite upstairs, Side entry garage, Basement access from garage, Gound floor laundry room, Office / Study / Den, Island, Open floor layout, Wheelchair Accessible, Guest suite, His/Hers walk-in, Breakfast nook, Sloped ceiling, Cathedral ceiling, Formal dining room, Sitting area, Double sinks, Separate bath and shower
Plan architectural style(s)
Similar plans
Previously Viewed Plans
Questions and comments
April 29
Tensho Daijin
It would be helpful to know the estimate for building this home in western Massachusetts, USA. Also, would a walk-out basement be possible?
April 29
Customer service
Good day and thank you for taking the time to write
Although we do no actual construction, the ballpark estimate to build this home in Quebec (Canada) starts at around $730,000.
This estimate is based on professional grade materials and includes ceramic in the foyer, the kitchen and the bathrooms with hardwood flooring throughout the common areas and in the bedrooms. The kitchen cabinetry is wood grain melamine. This construction estimate to build in Quebec was updated on January 10th 2014 and is for a turn key project.
The cost of the land and its excavation, taxes and hook-ups to municipal or other services is not included in the calculation and it is highly recommended to consult local contractors and materials suppliers to get a better idea of the actual cost to build in your area.
I hope that this provides some helpful information and I invite you to contact me if you have any other questions or comments
Regards
Deb
June 28
sam
hi i was wondering how much this home would cost to build in ontario more or less without lot prices just to get a rough idea
June 28
Service à la clientele
Good day and thank you for taking the time to write.
Since we do no actual construction, we have estimates for building in Quebec only but the figure could serve as a ballpark idea for you.
This home is estimated at approximately $700,000. excluding land, taxes and hook ups to municipal services.
The calculation is based on a complete home with ceramic in the entrance foyer, the kitchen and bathrooms with hard wood floors throughout the other areas. The kitchen has wood grain melamine cabinetry and the full basement is partially finished with insulated, gyproc walls.
I invite you to consult local builders and materials suppliers in order to obtain a realistic estimate for your area.
Please let me know if I can further assist you.
Regards
Deborah
January 23
Richard Durst
I would like to use your plans to build a house in Germany. Can the plans be provided in metric units, i.e., meters, cm, etc?
January 23
Customer service
Good day and thank you for your interest in our plans.
This plan is available in metric for an additional $395 cdn.
A good idea is to purchase the CAD electronic version of the plan because this will allow you to modify it to suit local municipal requirements as required.
Please let me know if you have any other questions or comments.
Regards
Deborah
Thank you for your comment! It must be approved before being put online, please allow a period of 24 hours.
Error with google reCaptcha! Try again
Here is a brief description of our different plan packages. Please select the plan package that suits your needs. You can change the package at the next step, if necessary.
PDF VERSION OF PLAN:
Complete digital version of plan (pdf format) sent by email (original plan format 18" x 24'' or 24" x 36'')
5 copies of plan + PDF:
Includes: 5 copies of plan, plan in PDF format (reduced size version), materials list.
Foundation type
Additional foundation types are available, a fee may apply. Please indicate your choice on the online order form, or to our customer service representative, when placing your house plan order.
If your desired foundation type is not available, please contact our customer service to receive your free plan modification quote.
Explanation of bonus space types
UNFINISHED BONUS ROOM
The bonus rooms are often planned above the garage and are accessible from the house. They are designed to be converted as an office, a laundry area, a bathroom, a library corner or even an additional bedroom for which homeowners must make sure to have a window that complies with current codes & standards.
STORAGE AREA
Often located above the garage, our storage areas are used only as storage and are usually accessible from the garage via a retractable staircase.
Do you like this plan but want it to be modified to suit your needs?
To add a garage, another bedroom, finish the basement or any other modification, click here and let us know about your desired changes and to get your free quote for the modification of your plan.
Conditions of use
Important copyright notice! Please take note of these copyright conditions before printing:
By printing this house plan, cottage or garage or the floorplan(s), you confirm being informed that every house plan on this website is the exclusive property of Drummond House
Plans and is protected by Canadian copyright law. You are aware that these prints cannot be used to build or even obtain a building permit. The graphic representations of these
models are offered by Drummond House Plans for the sole purpose of allowing you to notate modifications of a model and then take it to one of the Drummond House Plans Canadian dealers for
modification of the plan.
The purchase of a house plan, cottage or garage from Drummond House Plans is mandatory if you wish to build any of our models. The plan purchase allows you to build a single unit; you cannot resell or give your plan to anyone once the house, cottage or garage has been built. If you wish to build the same house, cottage or garage more than once, you need to obtain the licence to this effect. Please contact us for more details.
All plans from Drummond House Plans can only be modified by a licensed Drummond House Plan Canadian dealer. If any other business or individual with no affiliation to Drummond House Plans modifies a Drummond House Plan on your behalf, please ensure this business or individual has a licence to modify this specific plan or you will be subject to prosecution on the same level as the business or individual who modified or reproduced the plan.
For more details, do not hesitate to contact u by e-mail or by phone at 1-800-567-1413.
I agree to respect the conditions above to not reproduce, modify or build a model from Drummond House Plans without previously purchasing a complete house plan.






April 29
Tensho Daijin
It would be helpful to know the estimate for building this home in western Massachusetts, USA. Also, would a walk-out basement be possible?