There are no shipping fees if you buy one of our 2 plan packages "PDF file format" or "5 sets of blueprints + PDF". Shipping charges may apply if you buy additional sets of blueprints.
House plan Acelia 2 (1875-V1)
Compact country house plan with 3 bedrooms + home office, kitchen with pantry,cathedral ceiling in family room
Other useful information on this plan
Canadian Style House Plan with Single Garage, Cathedral Ceiling and 3 Bedrooms
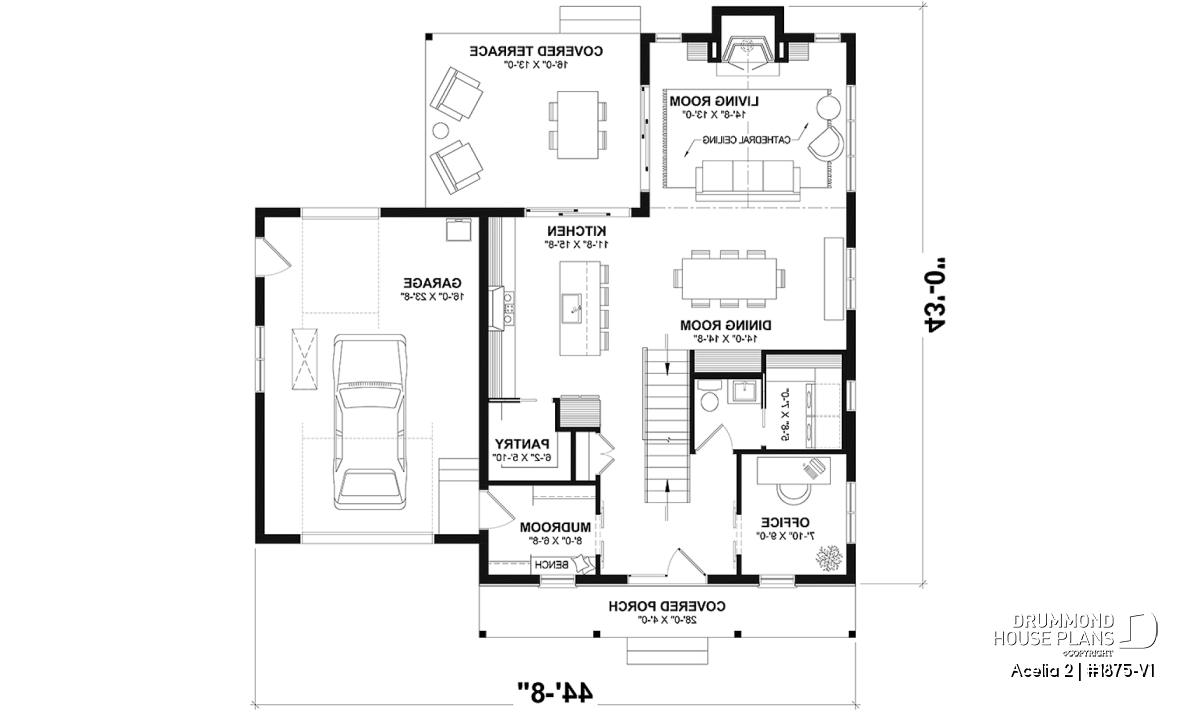
This beautiful Canadian-style home stands out with its timeless architecture and thoughtful details designed for family living. From the outside, the wide covered front porch offers a warm welcome and invites you to relax outdoors. At the back, a spacious covered terrace measuring 16' x 13' extends the living area, making it the perfect spot to enjoy meals, unwind, or entertain guests year-round.
Inside, the main floor features 9-foot ceilings throughout, creating an open and airy feel. The living room is the true centerpiece of the home, boasting a stunning cathedral ceiling reaching 15'-4'' and a cozy fireplace, filling the space with light and warmth. This inviting room is ideal for family gatherings and memorable evenings.
The kitchen is both stylish and functional, with a central island that includes a sink, and a walk-in pantry providing generous storage space. Open to the dining area, this layout encourages connection and conviviality, whether for everyday meals or special occasions.
Practicality is at the heart of this design as well. A mudroom connects both the main entrance and the garage, enhanced with charming sliding barn doors that add a rustic yet modern touch. The main floor also includes a laundry room with an adjoining powder room, perfectly suited to the needs of busy families.
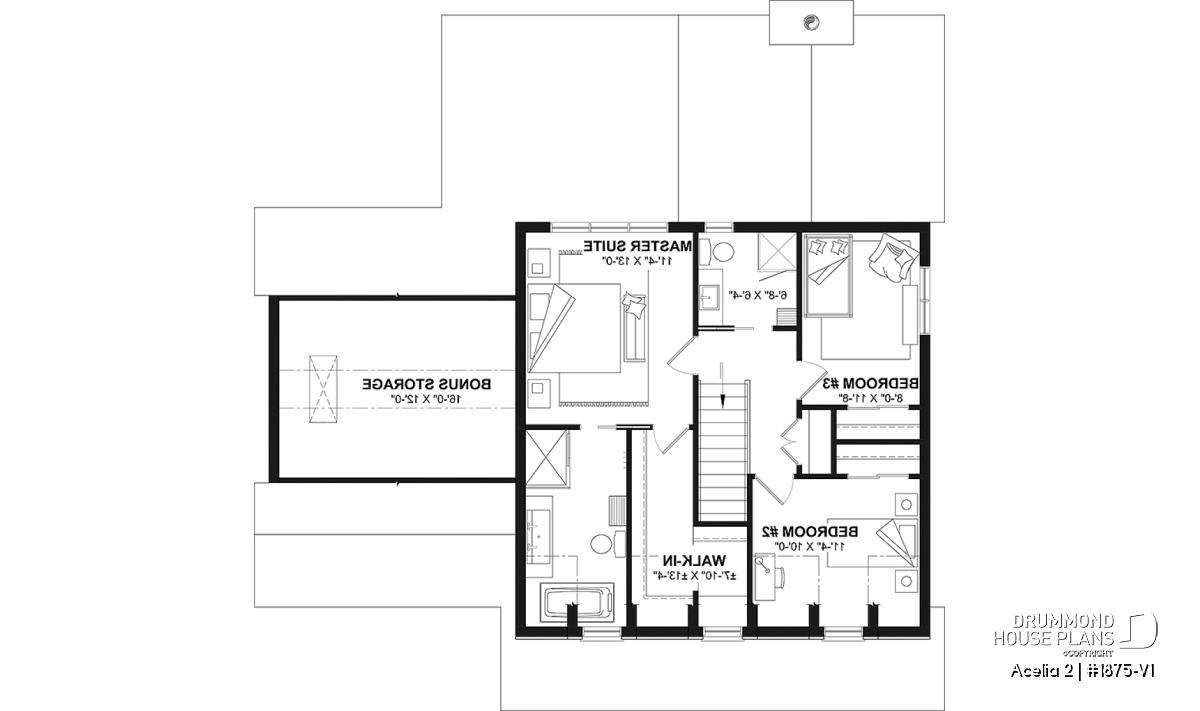
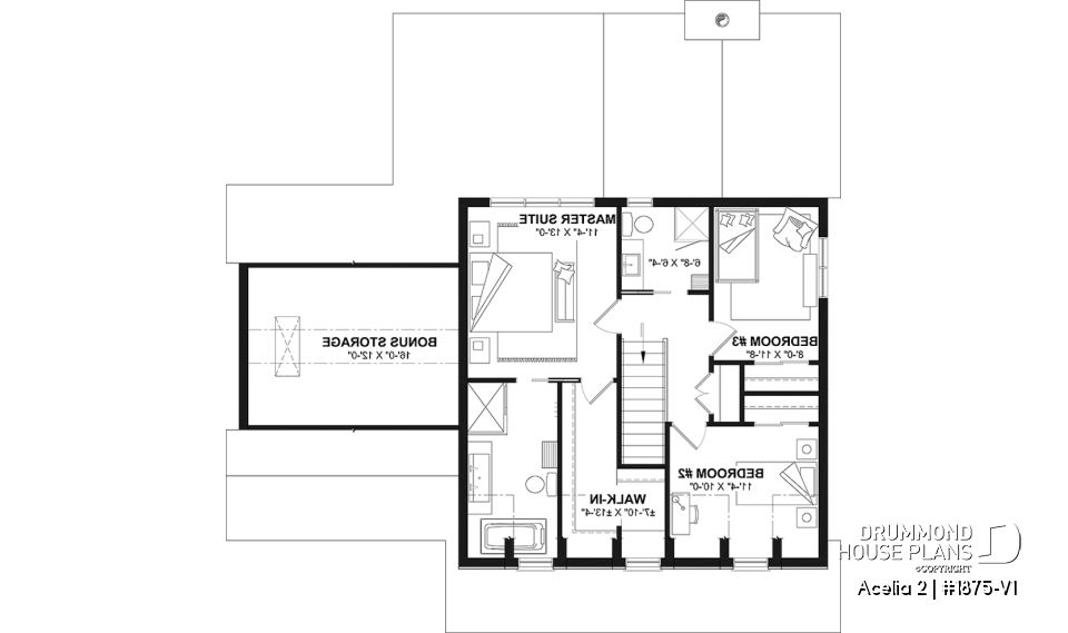
The sleeping quarters are designed for comfort and privacy. The master suite features a spacious walk-in closet and a private ensuite bathroom, creating a true retreat for homeowners. Two additional bedrooms, bright and welcoming, share a modern and well-appointed shower room.
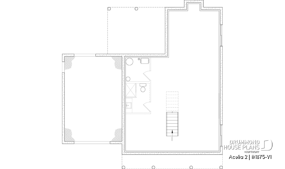
Extra storage is built right in, with ceiling access in the garage. The unfinished basement offers incredible potential for the future: a family room, home gym, theater room, or additional bedrooms — the possibilities are endless.
Combining the charm of Canadian-inspired architecture with open, light-filled spaces and clever functional details, this home is designed to meet the lifestyle of today’s families with elegance and comfort.
Distinctive elements
Canadian style house offering single garage.
Beautiful large inviting and covered front porch.
Magnificent 16' x 13' sheltered terrace at the back of the house.
9' ceiling on the entire ground floor and 15'-4'' cathedral ceiling in the living room.
Mudroom accessible from the front entrance and the garage.
Barn doors designed for the office and mudroom.
Powder room adjoining the laundry room on the ground floor.
Kitchen with pantry and island that is also open to the dining room.
Bright living room with cathedral ceiling and fireplace.
Main master bedroom with walk-in closet and private bathroom.
The two additional bedrooms share a bathroom with shower.
A trapdoor in the ceiling is planned in the garage to access the attic for storage.
Unfinished basement that can be defined in the future.
Plan feature(s)
Master suite upstairs, Gound floor laundry room, Pantry, Mud room, Bench seat(s), Sliding barn door(s), Island, Open floor layout, Ceiling over 8', Cathedral ceiling, Deck, Separate bath and shower, Walk-in master bed., Sloped ceiling, Shelves, Built-ins
Plan architectural style(s)
. Canadian, . Traditional, . Country, . Colonial, . American
Similar plans
Previously Viewed Plans
Thank you for your comment! It must be approved before being put online, please allow a period of 24 hours.
Error with google reCaptcha! Try again
Here is a brief description of our different plan packages. Please select the plan package that suits your needs. You can change the package at the next step, if necessary.
PDF VERSION OF PLAN:
Complete digital version of plan (pdf format) sent by email (original plan format 18" x 24'' or 24" x 36'')
5 copies of plan + PDF:
Includes: 5 copies of plan, plan in PDF format (reduced size version), materials list.
Foundation type
Additional foundation types are available, a fee may apply. Please indicate your choice on the online order form, or to our customer service representative, when placing your house plan order.
If your desired foundation type is not available, please contact our customer service to receive your free plan modification quote.
Explanation of bonus space types
UNFINISHED BONUS ROOM
The bonus rooms are often planned above the garage and are accessible from the house. They are designed to be converted as an office, a laundry area, a bathroom, a library corner or even an additional bedroom for which homeowners must make sure to have a window that complies with current codes & standards.
STORAGE AREA
Often located above the garage, our storage areas are used only as storage and are usually accessible from the garage via a retractable staircase.
Do you like this plan but want it to be modified to suit your needs?
To add a garage, another bedroom, finish the basement or any other modification, click here and let us know about your desired changes and to get your free quote for the modification of your plan.
Conditions of use
Important copyright notice! Please take note of these copyright conditions before printing:
By printing this house plan, cottage or garage or the floorplan(s), you confirm being informed that every house plan on this website is the exclusive property of Drummond House
Plans and is protected by Canadian copyright law. You are aware that these prints cannot be used to build or even obtain a building permit. The graphic representations of these
models are offered by Drummond House Plans for the sole purpose of allowing you to notate modifications of a model and then take it to one of the Drummond House Plans Canadian dealers for
modification of the plan.
The purchase of a house plan, cottage or garage from Drummond House Plans is mandatory if you wish to build any of our models. The plan purchase allows you to build a single unit; you cannot resell or give your plan to anyone once the house, cottage or garage has been built. If you wish to build the same house, cottage or garage more than once, you need to obtain the licence to this effect. Please contact us for more details.
All plans from Drummond House Plans can only be modified by a licensed Drummond House Plan Canadian dealer. If any other business or individual with no affiliation to Drummond House Plans modifies a Drummond House Plan on your behalf, please ensure this business or individual has a licence to modify this specific plan or you will be subject to prosecution on the same level as the business or individual who modified or reproduced the plan.
For more details, do not hesitate to contact u by e-mail or by phone at 1-800-567-1413.
I agree to respect the conditions above to not reproduce, modify or build a model from Drummond House Plans without previously purchasing a complete house plan.










