There are no shipping fees if you buy one of our 2 plan packages "PDF file format" or "5 sets of blueprints + PDF". Shipping charges may apply if you buy additional sets of blueprints.
House plan West Coast 2 (3737-V1)
House plan with 3 bedrooms and bathroom upstairs, superb kitchen island, office area, cloakroom
Virtual visit
Other useful information on this plan
Lots of features for this country house plan with garage and 3 bedrooms!
WEST COAST 2 house plan (plan #3737-V1) offers a total of 1736 sq. ft. on 2 floors plus a single garage. All ceilings on the ground floor are 9' high. The planned base foundation is a floating slab but other options are also available.
The front porch is covered and leads near the mudroom on the right. Small decorative arches in the ceiling, a very trendy architectural element are fitted at the entrance to the mudroom as well as at the entrance to the kitchen and in the upstairs family bathroom. The mudroom is also accessible from the garage. A closet, shelves, a powder room and an office area (planning desk) are also fitted in this area. If you like organized homes... this one is for you because there are several planned storage space!
The kitchen offers a large 10'-6'' x 3' island, as well as a pantry, and is open to the dining room and living room. In this version of the WEST COAST (base model #3737), the dining room suggests a bench instead of a regular table with chairs, thus freeing up some space for better circulation. Beautiful natural light comes from the 2 large windows and 2 patio doors on the back and right side of the house. A beautiful uncovered terrace can also be added if need be.
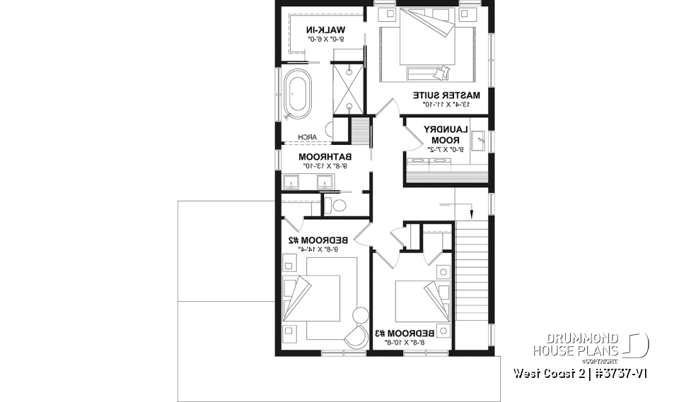
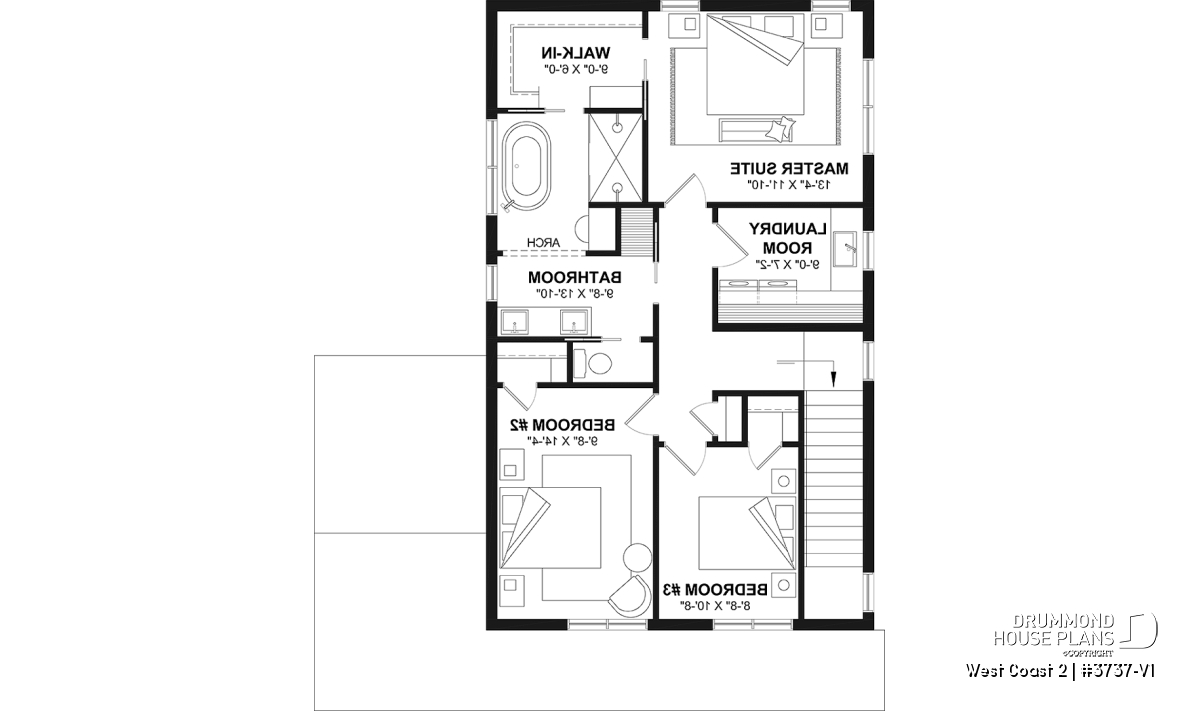
The master bedroom, located upstairs includes a walk-in closet that opens onto the large family bathroom. The latter includes a bath and a separate shower, a toilet closet, linen storage and dual vanities. The two secondary bedrooms each have a small walk-in closet. A laundry room with sink and window complete this level.
This house will certainly charm you with the natural light it offers to the family area as well as all the many features provided such as the mudroom, shelves, built-in furniture, office area, pantry, bench area provided in the dining room, and much more!!
Distinctive elements
Luminous country-style house with garage and 3 bedrooms.
Entrance with mudroom and access to the garage.
Powder room and mini office space set back from the common areas.
Kitchen with pantry and island.
Open and bright dining room with a beautiful view of the rear and side yard.
Master bedroom with walk-in closet.
2 secondary bedrooms with small walk-in closet.
Laundry room upstairs.
Family bathroom with integrated bath and shower and closed in and private toilet area as well as a double vanity.
Front garage with mechanical room.
Floating slab as a standard and other types of foundations available
Plan feature(s)
Arch, Bench seat(s), Master suite upstairs, Walk-in master bed., Built-ins, Panoramic view, Shelves, Separate bath and shower, Double sinks, Ceiling over 8', Mud room, Planning desk, Open floor layout, Island, Second floor laundry room, Builder
Plan architectural style(s)
Modern farmhouse, Modern Craftsman, . European, . Transitional, . Modern / Design, . Scandinavian, . Country
Similar plans
Previously Viewed Plans
Thank you for your comment! It must be approved before being put online, please allow a period of 24 hours.
Error with google reCaptcha! Try again
Here is a brief description of our different plan packages. Please select the plan package that suits your needs. You can change the package at the next step, if necessary.
PDF VERSION OF PLAN:
Complete digital version of plan (pdf format) sent by email (original plan format 18" x 24'' or 24" x 36'')
5 copies of plan + PDF:
Includes: 5 copies of plan, plan in PDF format (reduced size version), materials list.
Foundation type
Additional foundation types are available, a fee may apply. Please indicate your choice on the online order form, or to our customer service representative, when placing your house plan order.
If your desired foundation type is not available, please contact our customer service to receive your free plan modification quote.
Explanation of bonus space types
UNFINISHED BONUS ROOM
The bonus rooms are often planned above the garage and are accessible from the house. They are designed to be converted as an office, a laundry area, a bathroom, a library corner or even an additional bedroom for which homeowners must make sure to have a window that complies with current codes & standards.
STORAGE AREA
Often located above the garage, our storage areas are used only as storage and are usually accessible from the garage via a retractable staircase.
Do you like this plan but want it to be modified to suit your needs?
To add a garage, another bedroom, finish the basement or any other modification, click here and let us know about your desired changes and to get your free quote for the modification of your plan.
Conditions of use
Important copyright notice! Please take note of these copyright conditions before printing:
By printing this house plan, cottage or garage or the floorplan(s), you confirm being informed that every house plan on this website is the exclusive property of Drummond House
Plans and is protected by Canadian copyright law. You are aware that these prints cannot be used to build or even obtain a building permit. The graphic representations of these
models are offered by Drummond House Plans for the sole purpose of allowing you to notate modifications of a model and then take it to one of the Drummond House Plans Canadian dealers for
modification of the plan.
The purchase of a house plan, cottage or garage from Drummond House Plans is mandatory if you wish to build any of our models. The plan purchase allows you to build a single unit; you cannot resell or give your plan to anyone once the house, cottage or garage has been built. If you wish to build the same house, cottage or garage more than once, you need to obtain the licence to this effect. Please contact us for more details.
All plans from Drummond House Plans can only be modified by a licensed Drummond House Plan Canadian dealer. If any other business or individual with no affiliation to Drummond House Plans modifies a Drummond House Plan on your behalf, please ensure this business or individual has a licence to modify this specific plan or you will be subject to prosecution on the same level as the business or individual who modified or reproduced the plan.
For more details, do not hesitate to contact u by e-mail or by phone at 1-800-567-1413.
I agree to respect the conditions above to not reproduce, modify or build a model from Drummond House Plans without previously purchasing a complete house plan.















