There are no shipping fees if you buy one of our 2 plan packages "PDF file format" or "5 sets of blueprints + PDF". Shipping charges may apply if you buy additional sets of blueprints.
House plan Strom (3896)
Contemporary home plan with 3 2nd floor bedrooms, master suite, 2.5 baths, garage, pantry, mudroom
Other useful information on this plan
Modern 3 bedroom house plan with Scandinavian inspiration
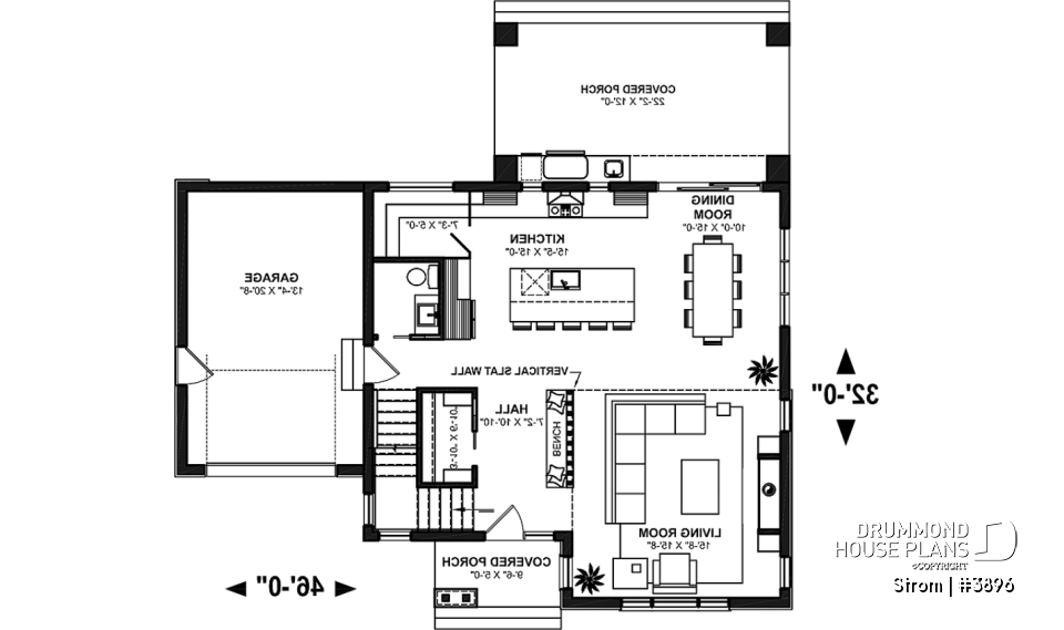
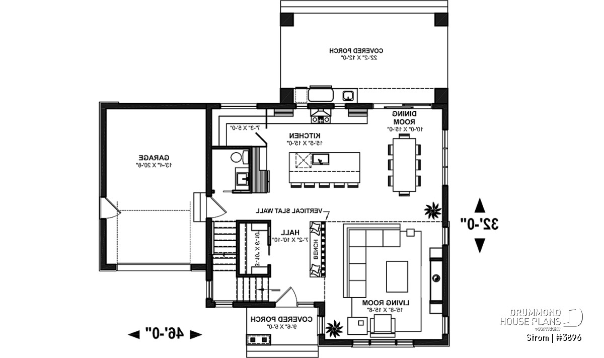
The STROM (#3896) house plan, offers us 1,912 square feet and an ingenuity space. this house will meet all the needs and wants of its future owners.
From the outside, the design mixes several textures like masonry on the wall of the huge living room window. It is also found in the entrance to the covered porch, in the form of a low wall, as well as around the garage door. The horizontal and vertical cladding also gives a modern effect, not to mention the interesting window style throughout the facade.
Once in the house, a welcoming hallway, with a walk-in style wardrobe, opens onto the living room and continues to the other side, to the kitchen and dining area. The stairs to go down to the convertible basement, or up to the second floor are also there. Very interestingly, the ground floor ceilings are 9 feet high. Thus, giving a perception of magnitude.
In the living room, thanks to the mezzanine on the second floor, the ceilings is almost 20 feet high (18.6 feet to be fairer)! A fireplace is also installed, bringing a touch of warmth to the room. Surrounded by two windows on each side, and one leading to the second, the living room is very bright. In the kitchen, all the essentials are there. A super central island that can easily seat five guests contains the dishwasher as well as a large sink. In addition, this kitchen is free of space, thanks to its walk-in style pantry. In the dining room, the light is also imposed through another large window and the patio door. The latter overlooks the great patio with, as a bonus, a modernized summer kitchen including a grill, sink and wine cellar! To end the visit of the ground floor, a bathroom and access to the garage complete the whole.
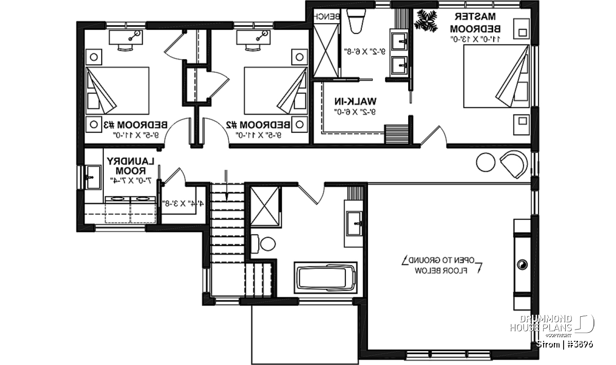
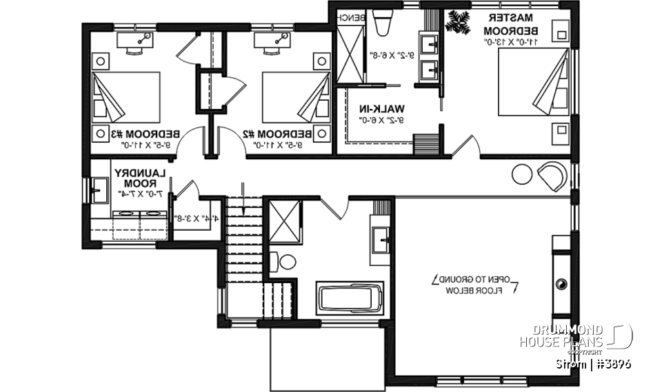
The second floor has 3 bedrooms, 2 bathrooms, a wardrobe and the laundry room. Two of the bedrooms are the same size, each with enough space for a small study desk. The bathroom dedicated to these rooms is a very good size with a bath and a separate shower. The master bedroom has a huge walk-in closet that leads to the 100% private bathroom. A huge shower with a bench is installed there, as well as a double sink cabinet. The latter is also very bright and modern with a rectangular window at the top of the wall where the bed sits, and another with three shutters. Access to this bedroom is via the super mezzanine.
A Modern Farmhouse version of this model is available, see plan #3896-V1.
Distinctive elements
Contemporary trendy house with Californian inspiration.
Welcoming entrance with cloakroom and bench.
Living room open on 2 floors.
Comfortable kitchen with island and pantry
Practical powder room on the ground floor.
Sheltered terrace accessible from the dining room and large enough to accommodate an outdoor kitchen (cost not included in our estimate).
The 3 bedrooms are upstairs and one of them could easily be converted into an office at home.
The parents' suite offers a large walk-in closet as well as a private bathroom.
A large laundry room is also upstairs.
A mezzanine overlooks the family room area.
The basement is unfinished, to be fitted out.
Plan feature(s)
Open floor layout, Outdoor kitchen, Fireplace, Mezzanine, Second floor laundry room, Master suite upstairs, Walk-in master bed., Ceiling over 8', Bench seat(s), Mud room, Deck, Pantry, Separate bath and shower, Double sinks
Plan architectural style(s)
. Contemporary, . Modern / Design, . Scandinavian, . Modern rustic
Similar plans
Previously Viewed Plans
Thank you for your comment! It must be approved before being put online, please allow a period of 24 hours.
Error with google reCaptcha! Try again
Here is a brief description of our different plan packages. Please select the plan package that suits your needs. You can change the package at the next step, if necessary.
PDF VERSION OF PLAN:
Complete digital version of plan (pdf format) sent by email (original plan format 18" x 24'' or 24" x 36'')
5 copies of plan + PDF:
Includes: 5 copies of plan, plan in PDF format (reduced size version), materials list.
Foundation type
Additional foundation types are available, a fee may apply. Please indicate your choice on the online order form, or to our customer service representative, when placing your house plan order.
If your desired foundation type is not available, please contact our customer service to receive your free plan modification quote.
Explanation of bonus space types
UNFINISHED BONUS ROOM
The bonus rooms are often planned above the garage and are accessible from the house. They are designed to be converted as an office, a laundry area, a bathroom, a library corner or even an additional bedroom for which homeowners must make sure to have a window that complies with current codes & standards.
STORAGE AREA
Often located above the garage, our storage areas are used only as storage and are usually accessible from the garage via a retractable staircase.
Do you like this plan but want it to be modified to suit your needs?
To add a garage, another bedroom, finish the basement or any other modification, click here and let us know about your desired changes and to get your free quote for the modification of your plan.
Conditions of use
Important copyright notice! Please take note of these copyright conditions before printing:
By printing this house plan, cottage or garage or the floorplan(s), you confirm being informed that every house plan on this website is the exclusive property of Drummond House
Plans and is protected by Canadian copyright law. You are aware that these prints cannot be used to build or even obtain a building permit. The graphic representations of these
models are offered by Drummond House Plans for the sole purpose of allowing you to notate modifications of a model and then take it to one of the Drummond House Plans Canadian dealers for
modification of the plan.
The purchase of a house plan, cottage or garage from Drummond House Plans is mandatory if you wish to build any of our models. The plan purchase allows you to build a single unit; you cannot resell or give your plan to anyone once the house, cottage or garage has been built. If you wish to build the same house, cottage or garage more than once, you need to obtain the licence to this effect. Please contact us for more details.
All plans from Drummond House Plans can only be modified by a licensed Drummond House Plan Canadian dealer. If any other business or individual with no affiliation to Drummond House Plans modifies a Drummond House Plan on your behalf, please ensure this business or individual has a licence to modify this specific plan or you will be subject to prosecution on the same level as the business or individual who modified or reproduced the plan.
For more details, do not hesitate to contact u by e-mail or by phone at 1-800-567-1413.
I agree to respect the conditions above to not reproduce, modify or build a model from Drummond House Plans without previously purchasing a complete house plan.






















