There are no shipping fees if you buy one of our 2 plan packages "PDF file format" or "5 sets of blueprints + PDF". Shipping charges may apply if you buy additional sets of blueprints.
House plan Stamford (2785)
Narrow Lot House Plan – 3 to 5 Bedrooms, Optional Finished Basement ($), Large Covered Terrace
Other useful information on this plan
Light, Depth, and Comfort in This Stunning Cottage with 3 to 5 Bedrooms
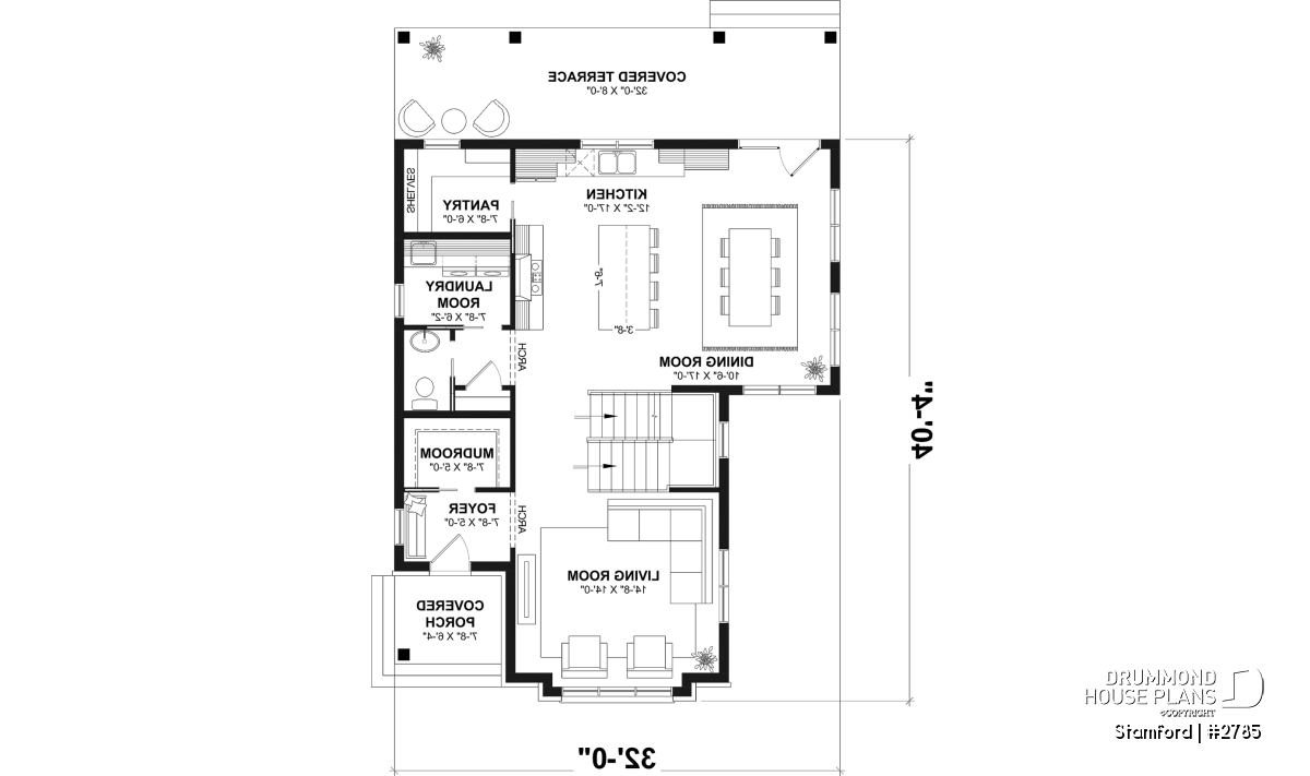
The STAMFORD House Plan (#2785) offers 1,864 sq. ft. of beautifully designed living space across two stories, with the option of a fully finished basement adding an extra 1,040 sq. ft.
At first glance, this home catches the eye with its clean lines and well-balanced structure. But it’s the thoughtful architectural details—like the charming bump-outs—that truly win hearts, allowing abundant natural light to pour into the dining area, kitchen, and stairwell. With a deep layout perfectly suited to narrower suburban lots, this home is also enhanced by a spacious covered rear porch, ideal for enjoying the outdoors in comfort. Let’s step inside!
On the main floor, a welcoming entryway sets the tone. Beyond it, you'll find a generous living room that's easy to furnish and designed for everyday comfort. A powder room is conveniently located next to a separate laundry room, while the bright, open stairwell becomes a lovely feature in itself. The dining area flows seamlessly into a well-thought-out kitchen, complete with a central island that invites gatherings and conversation. A walk-in pantry adds to the practical charm of this family-friendly space.
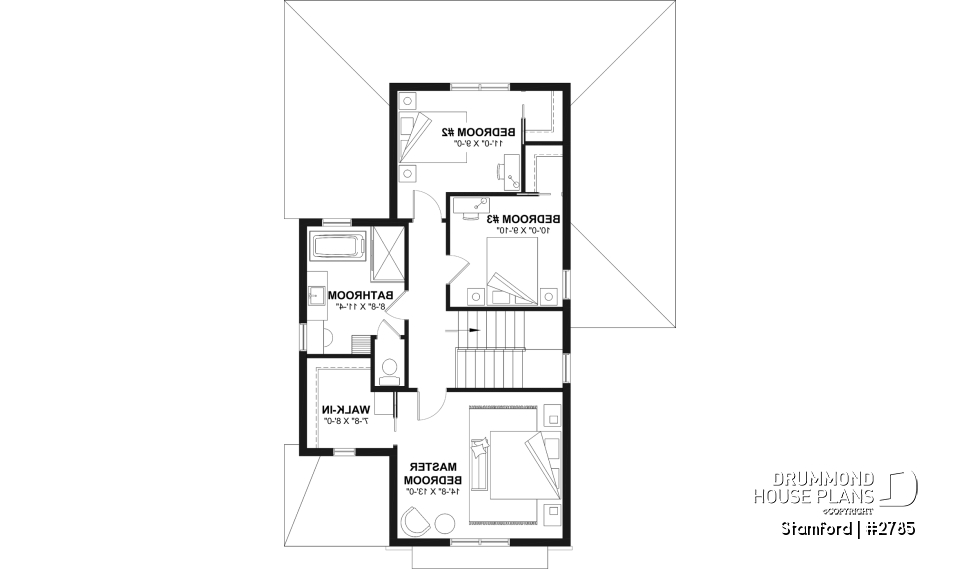
Upstairs, you'll find three beautiful bedrooms, each with its own walk-in closet, providing ample storage. The main bathroom makes excellent use of space, featuring a freestanding bathtub, a separate shower, and even a private toilet enclosure—a thoughtful touch that’s sure to please.
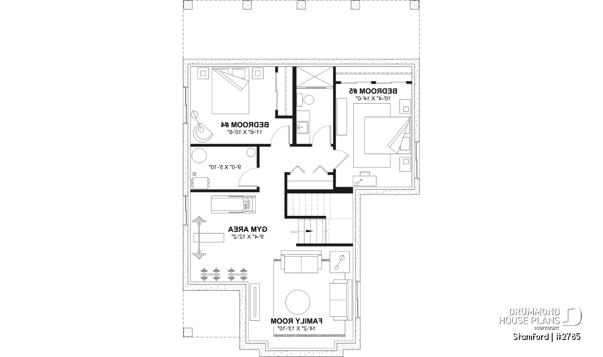
The *optional finished basement ($) includes two additional large bedrooms with closets, perfect for children, guests, or even a home office. A dedicated workout area and a spacious family room round out the lower level, creating a versatile, inviting space for the whole family to enjoy.
---
*If you wish to purchase the finished basement plan, as presented on this plan page, please select this option in the shopping cart, in the "Selection of foundation type" section. If you do not select this option, you will receive the unfinished full basement option, at no extra charge.
Distinctive elements
Charming English Country-Inspired Home.
Large covered front porch and spacious sheltered back terrace, perfect for enjoying the outdoors in any season.
9-foot ceilings throughout the main floor, providing a great sense of space and brightness.
Functional entryway with a convenient walk-in closet.
Warm and spacious living room, perfect for family moments.
Bright dining room with large windows for maximum natural light.
Well-designed and user-friendly kitchen, featuring a central island and large pantry.
Laundry room and powder room, discreet yet ideally located near the kitchen.
Three upstairs bedrooms, each with a walk-in closet offering excellent storage space.
Elegant main bathroom with a freestanding tub and separate shower for added comfort.
Optional Finished Basement ($):
Two additional bedrooms, perfect for guests or a teen space.
Modern shower room.
Practical storage area.
Home gym corner, ideal for working out at home.
Large family room, perfect for relaxing family time.
---
*If you wish to purchase the finished basement plan, as presented on this plan page, please select this option in the shopping cart, in the "Selection of foundation type" section. If you do not select this option, you will receive the unfinished full basement option, at no extra charge.
Plan feature(s)
Deck, Island, Gound floor laundry room, Entrance hall, Walk-in master bed., Separate bath and shower, Shelves, Pantry, Mud room, Ceiling over 8', Arch, Open floor layout
Plan architectural style(s)
. Country, . Craftsman / Northwest, . American, . Colonial, . European, . Traditional, . English, Trending, . Transitional, . Modern rustic
Similar plans
Previously Viewed Plans
Thank you for your comment! It must be approved before being put online, please allow a period of 24 hours.
Error with google reCaptcha! Try again
Here is a brief description of our different plan packages. Please select the plan package that suits your needs. You can change the package at the next step, if necessary.
PDF VERSION OF PLAN:
Complete digital version of plan (pdf format) sent by email (original plan format 18" x 24'' or 24" x 36'')
5 copies of plan + PDF:
Includes: 5 copies of plan, plan in PDF format (reduced size version), materials list.
Foundation type
Additional foundation types are available, a fee may apply. Please indicate your choice on the online order form, or to our customer service representative, when placing your house plan order.
If your desired foundation type is not available, please contact our customer service to receive your free plan modification quote.
Explanation of bonus space types
UNFINISHED BONUS ROOM
The bonus rooms are often planned above the garage and are accessible from the house. They are designed to be converted as an office, a laundry area, a bathroom, a library corner or even an additional bedroom for which homeowners must make sure to have a window that complies with current codes & standards.
STORAGE AREA
Often located above the garage, our storage areas are used only as storage and are usually accessible from the garage via a retractable staircase.
Do you like this plan but want it to be modified to suit your needs?
To add a garage, another bedroom, finish the basement or any other modification, click here and let us know about your desired changes and to get your free quote for the modification of your plan.
Conditions of use
Important copyright notice! Please take note of these copyright conditions before printing:
By printing this house plan, cottage or garage or the floorplan(s), you confirm being informed that every house plan on this website is the exclusive property of Drummond House
Plans and is protected by Canadian copyright law. You are aware that these prints cannot be used to build or even obtain a building permit. The graphic representations of these
models are offered by Drummond House Plans for the sole purpose of allowing you to notate modifications of a model and then take it to one of the Drummond House Plans Canadian dealers for
modification of the plan.
The purchase of a house plan, cottage or garage from Drummond House Plans is mandatory if you wish to build any of our models. The plan purchase allows you to build a single unit; you cannot resell or give your plan to anyone once the house, cottage or garage has been built. If you wish to build the same house, cottage or garage more than once, you need to obtain the licence to this effect. Please contact us for more details.
All plans from Drummond House Plans can only be modified by a licensed Drummond House Plan Canadian dealer. If any other business or individual with no affiliation to Drummond House Plans modifies a Drummond House Plan on your behalf, please ensure this business or individual has a licence to modify this specific plan or you will be subject to prosecution on the same level as the business or individual who modified or reproduced the plan.
For more details, do not hesitate to contact u by e-mail or by phone at 1-800-567-1413.
I agree to respect the conditions above to not reproduce, modify or build a model from Drummond House Plans without previously purchasing a complete house plan.

















