There are no shipping fees if you buy one of our 2 plan packages "PDF file format" or "5 sets of blueprints + PDF". Shipping charges may apply if you buy additional sets of blueprints.
House plan Stacy (3211)
Single-Story Country House Plan with Single Garage, Cathedral Ceiling and Bright Open Living
Other useful information on this plan
STACY House Plan (#3211) – Single-Story Country Home with Single Garage and Flexible Layout
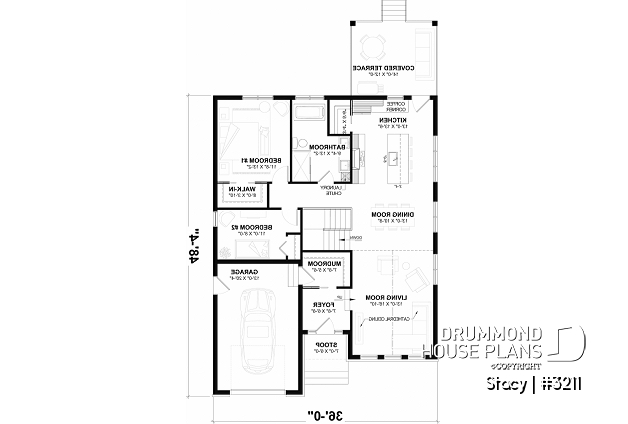
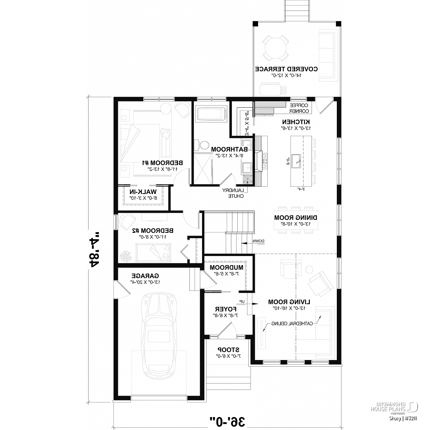
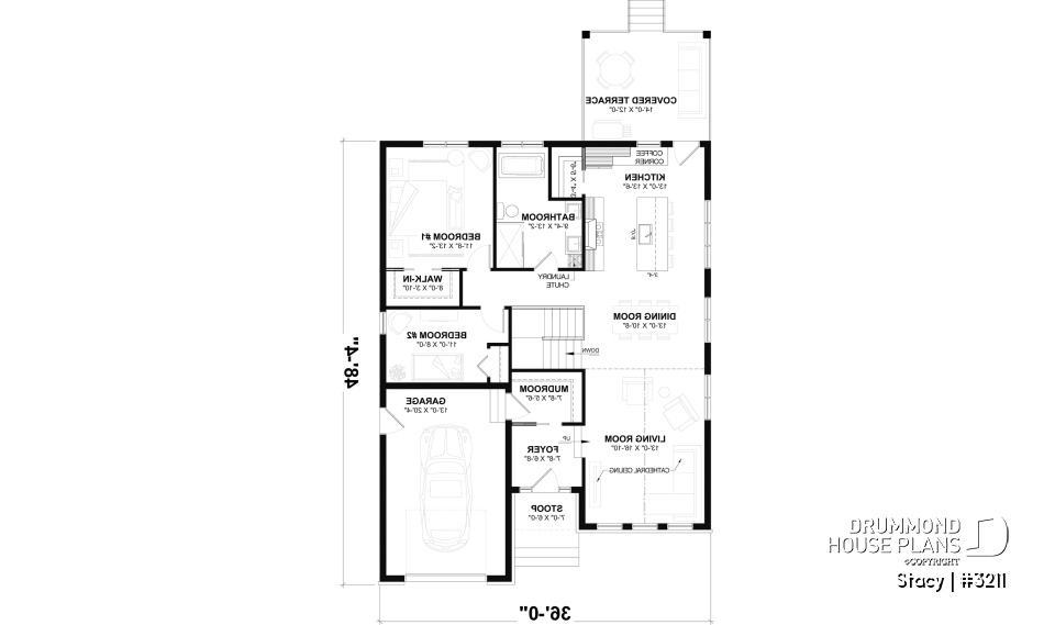
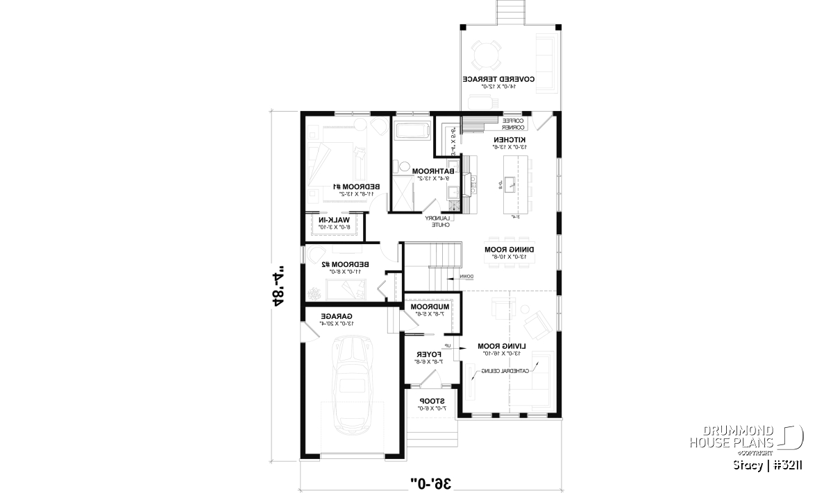
The STACY house plan (#3211) is a single-story country-style home with a single garage designed to offer warmth, functionality, and long-term flexibility. This thoughtfully planned home blends classic charm with modern living, making it an excellent choice for families seeking comfort and adaptability.
The exterior of the STACY (#3211) features a welcoming façade with cedar shingles and stone accents, creating a timeless, coastal-inspired country look. The integrated single garage adds everyday convenience while maintaining a cohesive architectural design.
Inside, the main floor boasts 9-foot ceilings throughout, enhancing the sense of openness and natural light. The living room stands out with a striking 13-foot-9-inch cathedral ceiling, delivering an airy and inviting atmosphere. The open-concept layout seamlessly connects the kitchen, dining area, and living room, making this home ideal for entertaining and family gatherings.
The kitchen in the STACY house plan (#3211) is both stylish and functional, featuring a large central island and a walk-in pantry to support modern lifestyles. The main floor includes a primary bedroom with a walk-in closet and a second bedroom that can easily be used as a home office or guest room. A full bathroom with a separate tub and shower completes the main level.
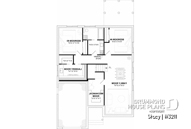
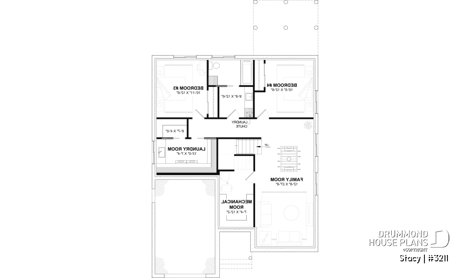
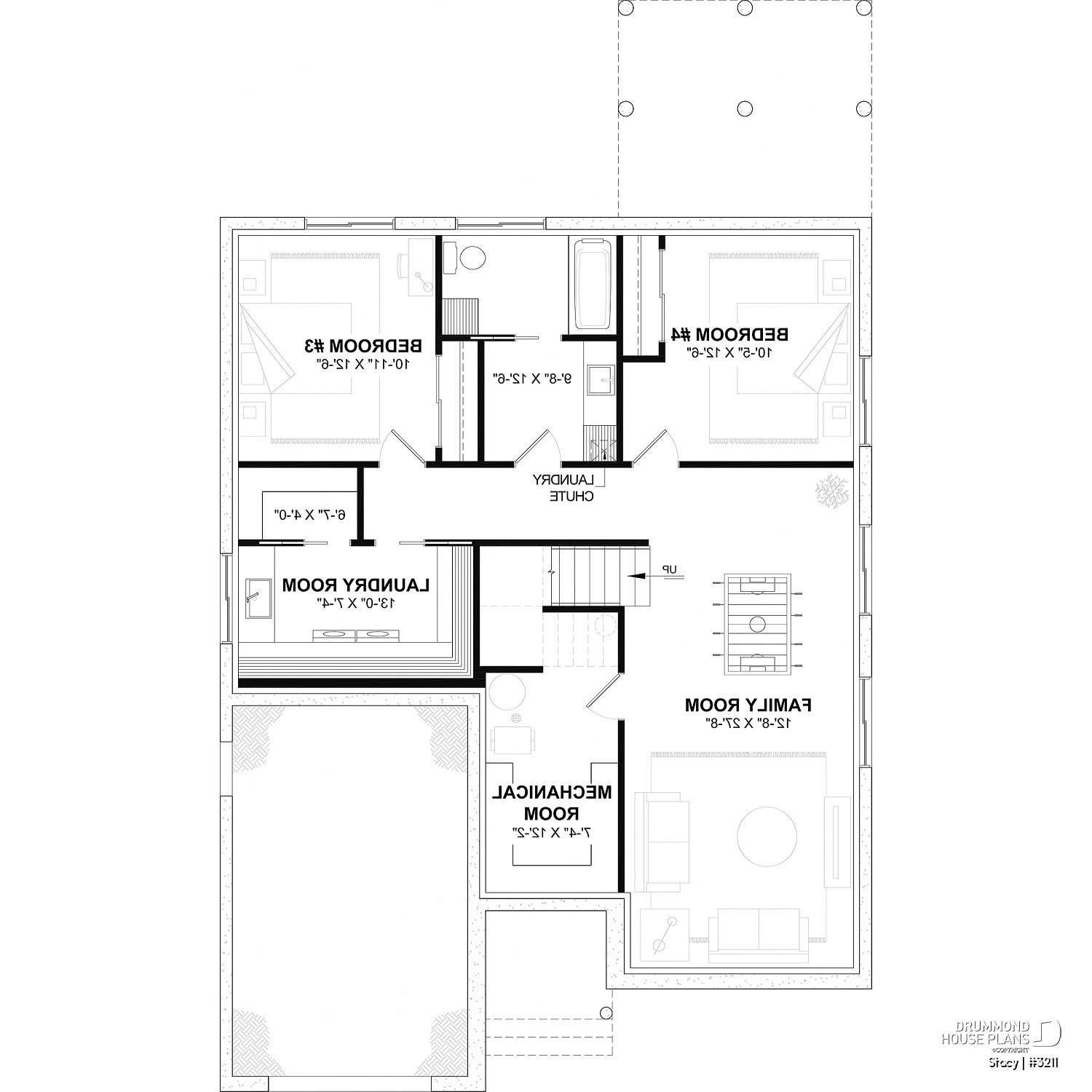
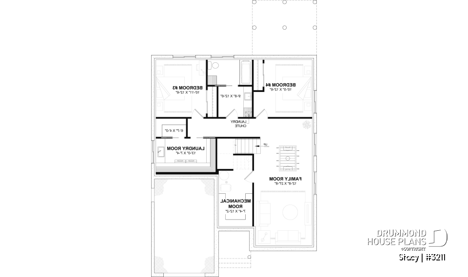
At the rear, a spacious covered terrace extends the living space outdoors. The unfinished basement, ready for future development, offers excellent expansion potential.
As an option, it can be finished to include two additional bedrooms, a family room, a bathroom with a laundry chute, a laundry room, and a mechanical room, making the STACY (#3211) a versatile and future-ready home.
Distinctive elements
Single-story country-style house plan with a single garage.
Warm country-inspired architecture featuring cedar shingles and stone accents on the front façade for a charming coastal feel.
9-foot ceilings throughout the main floor, creating a bright and spacious atmosphere.
Cathedral ceiling in the living room reaching 13 feet 9 inches, enhancing the sense of openness and volume.
Front entry and garage entry conveniently located near the mudroom for everyday functionality.
Open-concept layout combining the kitchen, dining area, and living room, ideal for family living and entertaining.
Functional kitchen with a large central island and walk-in pantry.
Abundant natural light throughout the main living area.
Primary bedroom located on the main floor with a walk-in closet.
Second main-floor bedroom that can easily function as a home office.
Full bathroom featuring a separate bathtub and shower.
Spacious covered rear terrace, perfect for outdoor living in all seasons.
Unfinished basement, ready for future customization.
---
Optional finished basement including two additional bedrooms, a family room, a bathroom with laundry chute, a laundry room, and a mechanical room.
---
*If you wish to purchase the finished basement plan as shown on this plan’s page, please select this option in the shopping cart under “Select Your Foundation.” If this option is not selected, the plan will include an unfinished basement at no additional cost.
Plan feature(s)
Coffee bar, Pantry, Laundry chute, Shelves, Double sinks, Separate bath and shower, Cathedral ceiling, Open floor layout, Walk-in master bed., Mud room, Island, Ceiling over 8', Wash tank
Plan architectural style(s)
. Cape Cod, . American, . Country, . Traditional, . Modern rustic, Classic, . Ranch
Similar plans
Previously Viewed Plans
Thank you for your comment! It must be approved before being put online, please allow a period of 24 hours.
Error with google reCaptcha! Try again
Here is a brief description of our different plan packages. Please select the plan package that suits your needs. You can change the package at the next step, if necessary.
PDF VERSION OF PLAN:
Complete digital version of plan (pdf format) sent by email (original plan format 18" x 24'' or 24" x 36'')
5 copies of plan + PDF:
Includes: 5 copies of plan, plan in PDF format (reduced size version), materials list.
Foundation type
Additional foundation types are available, a fee may apply. Please indicate your choice on the online order form, or to our customer service representative, when placing your house plan order.
If your desired foundation type is not available, please contact our customer service to receive your free plan modification quote.
Explanation of bonus space types
UNFINISHED BONUS ROOM
The bonus rooms are often planned above the garage and are accessible from the house. They are designed to be converted as an office, a laundry area, a bathroom, a library corner or even an additional bedroom for which homeowners must make sure to have a window that complies with current codes & standards.
STORAGE AREA
Often located above the garage, our storage areas are used only as storage and are usually accessible from the garage via a retractable staircase.
Do you like this plan but want it to be modified to suit your needs?
To add a garage, another bedroom, finish the basement or any other modification, click here and let us know about your desired changes and to get your free quote for the modification of your plan.
Conditions of use
Important copyright notice! Please take note of these copyright conditions before printing:
By printing this house plan, cottage or garage or the floorplan(s), you confirm being informed that every house plan on this website is the exclusive property of Drummond House
Plans and is protected by Canadian copyright law. You are aware that these prints cannot be used to build or even obtain a building permit. The graphic representations of these
models are offered by Drummond House Plans for the sole purpose of allowing you to notate modifications of a model and then take it to one of the Drummond House Plans Canadian dealers for
modification of the plan.
The purchase of a house plan, cottage or garage from Drummond House Plans is mandatory if you wish to build any of our models. The plan purchase allows you to build a single unit; you cannot resell or give your plan to anyone once the house, cottage or garage has been built. If you wish to build the same house, cottage or garage more than once, you need to obtain the licence to this effect. Please contact us for more details.
All plans from Drummond House Plans can only be modified by a licensed Drummond House Plan Canadian dealer. If any other business or individual with no affiliation to Drummond House Plans modifies a Drummond House Plan on your behalf, please ensure this business or individual has a licence to modify this specific plan or you will be subject to prosecution on the same level as the business or individual who modified or reproduced the plan.
For more details, do not hesitate to contact u by e-mail or by phone at 1-800-567-1413.
I agree to respect the conditions above to not reproduce, modify or build a model from Drummond House Plans without previously purchasing a complete house plan.











