There are no shipping fees if you buy one of our 2 plan packages "PDF file format" or "5 sets of blueprints + PDF". Shipping charges may apply if you buy additional sets of blueprints.
House plan St-Arnaud 4 (2673-V3)
Modern Scandinavian home, 3 bedrooms, garage, den, pantry, fireplace
Other useful information on this plan
Beautiful Scandinavian-inspired Farmhouse home!
House plan ST-ARNAUD 4 (#2673-V3) is the 4th and smaller version of an already popular collection here at Drummond House Plans! With all the conveniences of its previous Farmhouse versions, the St-Arnaud 4 offers a more refined Scandinavian-inspired look.
On the ground floor, the entrance offers a large coat closet and a bench. The kitchen is very functional and has a large island, a wine cellar, a coffee bar and a pantry. The kitchen is open to the dining room and the living room, and can therefore enjoy the view of the fireplace. The dining room and living room area is very fenestrated and has a cathedral ceiling. An office area is also located on this floor, as well as a powder room.
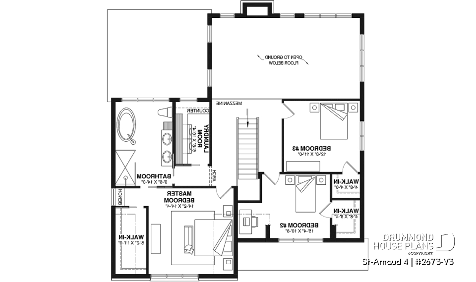
Upstairs, a mezzanine overlooks the ground floor (dining room and living room). The parents' bedroom offers a large walk-in closet, as well as convenient access to the family bathroom. The latter offers 2 sinks as well as a separate bath and shower. The 2 secondary bedrooms each have a walk-in closet.
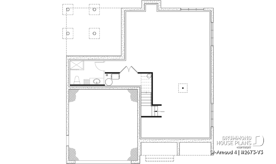
A sheltered rear terrace, a large one-car garage as well as an unfinished basement complete this magnificent family home!
Distinctive elements
Magnificent two-storey Modern Scandinavian house.
3 bedrooms (upstairs).
Upstairs mezzanine overlooking the living room.
Large kitchen with wine cellar, pantry, large island and coffee bar.
Very bright office area.
Practical half bath on the ground floor.
Living room with cathedral ceiling and fireplace.
Large master bedroom upstairs with walk-in closet and access to family bathroom.
Upstairs laundry room.
Unfinished basement, to convert into additional bedrooms and family room, according to your needs.
Beautiful sheltered terrace of 16' x 14'.
Spacious garage for one car.
Plan feature(s)
Mezzanine, Bench seat(s), Wine cellar, Coffee bar, Office / Study / Den, Pantry, Open floor layout, Island, Fireplace, Second floor laundry room, Separate bath and shower, Double sinks, Walk-in master bed., Sloped ceiling, Deck, Panoramic view, Shelves, Ceiling over 8', Arch
Plan architectural style(s)
. Scandinavian, Modern Craftsman, Modern farmhouse, . Transitional, . American, . Farmhouse, . Country, . Vacation and waterfront
Similar plans
Previously Viewed Plans
Thank you for your comment! It must be approved before being put online, please allow a period of 24 hours.
Error with google reCaptcha! Try again
Here is a brief description of our different plan packages. Please select the plan package that suits your needs. You can change the package at the next step, if necessary.
PDF VERSION OF PLAN:
Complete digital version of plan (pdf format) sent by email (original plan format 18" x 24'' or 24" x 36'')
5 copies of plan + PDF:
Includes: 5 copies of plan, plan in PDF format (reduced size version), materials list.
Foundation type
Additional foundation types are available, a fee may apply. Please indicate your choice on the online order form, or to our customer service representative, when placing your house plan order.
If your desired foundation type is not available, please contact our customer service to receive your free plan modification quote.
Explanation of bonus space types
UNFINISHED BONUS ROOM
The bonus rooms are often planned above the garage and are accessible from the house. They are designed to be converted as an office, a laundry area, a bathroom, a library corner or even an additional bedroom for which homeowners must make sure to have a window that complies with current codes & standards.
STORAGE AREA
Often located above the garage, our storage areas are used only as storage and are usually accessible from the garage via a retractable staircase.
Do you like this plan but want it to be modified to suit your needs?
To add a garage, another bedroom, finish the basement or any other modification, click here and let us know about your desired changes and to get your free quote for the modification of your plan.
Conditions of use
Important copyright notice! Please take note of these copyright conditions before printing:
By printing this house plan, cottage or garage or the floorplan(s), you confirm being informed that every house plan on this website is the exclusive property of Drummond House
Plans and is protected by Canadian copyright law. You are aware that these prints cannot be used to build or even obtain a building permit. The graphic representations of these
models are offered by Drummond House Plans for the sole purpose of allowing you to notate modifications of a model and then take it to one of the Drummond House Plans Canadian dealers for
modification of the plan.
The purchase of a house plan, cottage or garage from Drummond House Plans is mandatory if you wish to build any of our models. The plan purchase allows you to build a single unit; you cannot resell or give your plan to anyone once the house, cottage or garage has been built. If you wish to build the same house, cottage or garage more than once, you need to obtain the licence to this effect. Please contact us for more details.
All plans from Drummond House Plans can only be modified by a licensed Drummond House Plan Canadian dealer. If any other business or individual with no affiliation to Drummond House Plans modifies a Drummond House Plan on your behalf, please ensure this business or individual has a licence to modify this specific plan or you will be subject to prosecution on the same level as the business or individual who modified or reproduced the plan.
For more details, do not hesitate to contact u by e-mail or by phone at 1-800-567-1413.
I agree to respect the conditions above to not reproduce, modify or build a model from Drummond House Plans without previously purchasing a complete house plan.






































