There are no shipping fees if you buy one of our 2 plan packages "PDF file format" or "5 sets of blueprints + PDF". Shipping charges may apply if you buy additional sets of blueprints.
House plan Somerset (2405)
Modern Farmhouse Bungalow with Covered Terrace, Garage and Flexible Lower Level
Other useful information on this plan
Somerset Modern Farmhouse – Charming One-Level Living with Covered Terrace & Optional Finished Basement
The Somerset Plan (#2405) is a beautifully designed modern farmhouse bungalow offering 1,352 sq.ft. of main-level living, plus an equal amount of space in the unfinished basement—where the laundry room is conveniently located. A 365 sq.ft. attached garage connects directly to the mudroom-style vestibule, making everyday living smooth and practical, especially when returning home with bags in hand.
Throughout the main floor, 9' ceilings enhance the open, airy feel, while the dining room features an impressive 12'7" cathedral ceiling. Bathed in natural light from two large windows and a patio door, the dining area extends seamlessly to the covered rear terrace measuring 11' x 18'6". This generous outdoor space is perfect for a dining set and a cozy lounge area, transforming it into an all-season retreat.
The kitchen offers a well-proportioned island and a walk-in pantry, flowing openly into the dining room on one side and into the inviting living room on the other. The living area includes a fireplace and a charming built-in window bench—an ideal nook for reading or relaxing.
All bedrooms are thoughtfully positioned at the back of the home for added tranquility. The primary bedroom features a walk-in closet and private access to the family bathroom, complete with a relaxing tub facing the rear window, a large glass shower, and two separate vanities. Laundry facilities are located in the basement for noise reduction and practicality.
The Somerset Plan is crafted for a wide range of homeowners: young families with one child, families with teens who may eventually enjoy the finished basement, and downsizing couples who want refined comfort without unnecessary square footage.
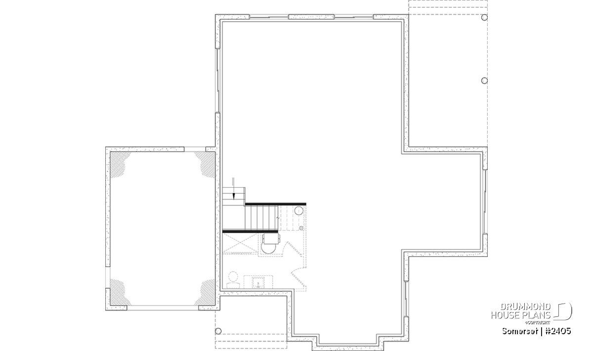
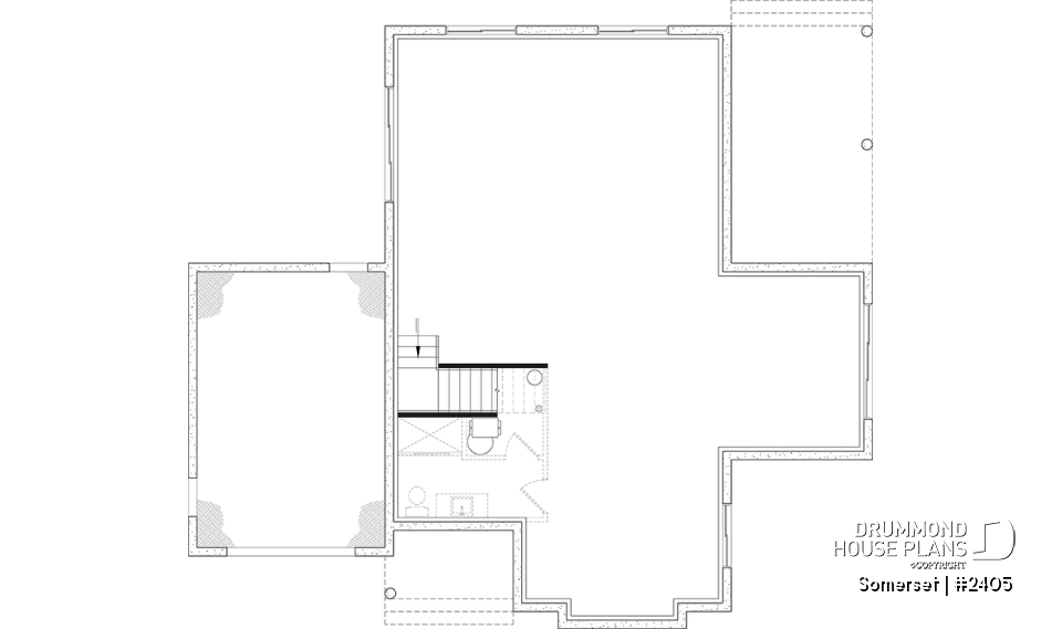
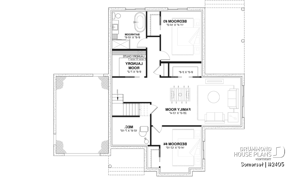
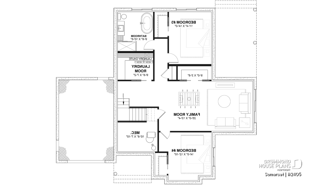
Optional Finished Basement (highly versatile):
A spacious family room, a game room, two additional bedrooms, a full bathroom, a dedicated laundry room, a mechanical room, and generous storage.
Distinctive elements
Charming and affordable modern farmhouse–style bungalow with garage.
Covered front porch opening onto a welcoming vestibule.
9' ceilings throughout the main floor, except in the dining room where they rise to 12'7".
A well-proportioned living room featuring a cozy fireplace.
Kitchen with central island and pantry.
Bright dining room with access to the covered terrace.
The primary bedroom includes a walk-in closet and private access to the bathroom.
The bathroom offers both a bathtub and separate shower, along with two sinks.
The covered terrace provides nearly 200 sq.ft. of outdoor living space.
The garage connects directly to the mudroom inside the home.
The laundry room, equipped with a laundry chute, is located in the unfinished basement (base plan).
*Other foundation types are available for this design.
---
*Optional finished basement:
Family room, game room, 2 bedrooms, full bathroom, laundry room, mechanical room and storage.
---
*If you wish to purchase the finished basement plan, as presented on this plan page, please select this option in the shopping cart, in the "Selection of foundation type" section. If you do not select this option, you will receive the unfinished full basement option, at no extra charge
Plan feature(s)
Lunch counter, Separate bath and shower, Cathedral ceiling, Entrance hall, Pantry, Ceiling over 8', Deck, Arch, Fireplace, Panoramic view, Walk-in master bed., Double sinks, Bench seat(s), Shelves, Built-ins, Builder, Self-Build, Laundry chute, Game room
Plan architectural style(s)
. Country, . Ranch, Modern farmhouse, . American, . Traditional, Trending
Similar plans
Previously Viewed Plans
Thank you for your comment! It must be approved before being put online, please allow a period of 24 hours.
Error with google reCaptcha! Try again
Here is a brief description of our different plan packages. Please select the plan package that suits your needs. You can change the package at the next step, if necessary.
PDF VERSION OF PLAN:
Complete digital version of plan (pdf format) sent by email (original plan format 18" x 24'' or 24" x 36'')
5 copies of plan + PDF:
Includes: 5 copies of plan, plan in PDF format (reduced size version), materials list.
Foundation type
Additional foundation types are available, a fee may apply. Please indicate your choice on the online order form, or to our customer service representative, when placing your house plan order.
If your desired foundation type is not available, please contact our customer service to receive your free plan modification quote.
Explanation of bonus space types
UNFINISHED BONUS ROOM
The bonus rooms are often planned above the garage and are accessible from the house. They are designed to be converted as an office, a laundry area, a bathroom, a library corner or even an additional bedroom for which homeowners must make sure to have a window that complies with current codes & standards.
STORAGE AREA
Often located above the garage, our storage areas are used only as storage and are usually accessible from the garage via a retractable staircase.
Do you like this plan but want it to be modified to suit your needs?
To add a garage, another bedroom, finish the basement or any other modification, click here and let us know about your desired changes and to get your free quote for the modification of your plan.
Conditions of use
Important copyright notice! Please take note of these copyright conditions before printing:
By printing this house plan, cottage or garage or the floorplan(s), you confirm being informed that every house plan on this website is the exclusive property of Drummond House
Plans and is protected by Canadian copyright law. You are aware that these prints cannot be used to build or even obtain a building permit. The graphic representations of these
models are offered by Drummond House Plans for the sole purpose of allowing you to notate modifications of a model and then take it to one of the Drummond House Plans Canadian dealers for
modification of the plan.
The purchase of a house plan, cottage or garage from Drummond House Plans is mandatory if you wish to build any of our models. The plan purchase allows you to build a single unit; you cannot resell or give your plan to anyone once the house, cottage or garage has been built. If you wish to build the same house, cottage or garage more than once, you need to obtain the licence to this effect. Please contact us for more details.
All plans from Drummond House Plans can only be modified by a licensed Drummond House Plan Canadian dealer. If any other business or individual with no affiliation to Drummond House Plans modifies a Drummond House Plan on your behalf, please ensure this business or individual has a licence to modify this specific plan or you will be subject to prosecution on the same level as the business or individual who modified or reproduced the plan.
For more details, do not hesitate to contact u by e-mail or by phone at 1-800-567-1413.
I agree to respect the conditions above to not reproduce, modify or build a model from Drummond House Plans without previously purchasing a complete house plan.
















