There are no shipping fees if you buy one of our 2 plan packages "PDF file format" or "5 sets of blueprints + PDF". Shipping charges may apply if you buy additional sets of blueprints.
House plan Oaks (3622)
Bright country home plan with cathedral ceiling, rustic charm, and a spacious primary suite.
Other useful information on this plan
Rustic Country Home Plan with Cathedral Ceiling, Bright Living Spaces, and Luxurious Primary Suite
Discover this beautiful country-style home that perfectly combines rustic warmth and refined comfort. Designed for those who appreciate natural materials and classic architecture, this house offers bright living spaces, a functional layout, and a peaceful ambiance that feels like home the moment you step inside.
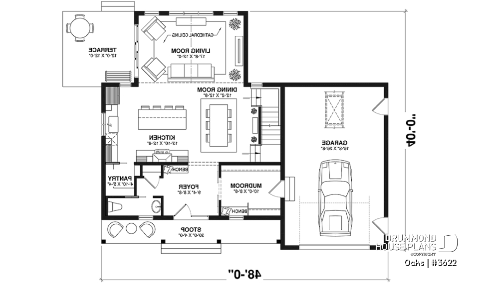
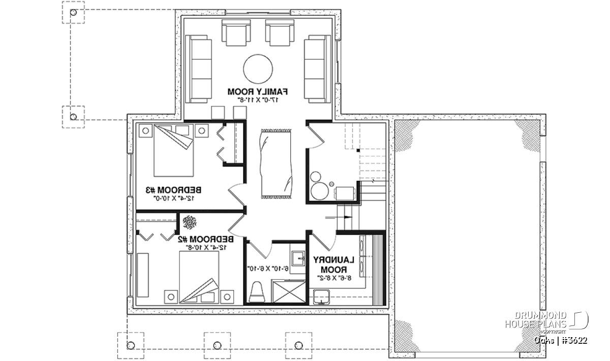
From the entryway, every detail inspires comfort and practicality. The welcoming foyer features a built-in bench, spacious closet, and large mudroom designed to keep everything organized. Nearby, a well-located powder room provides privacy and convenience, set apart from the main living areas.
The living room impresses with its cathedral ceiling and abundant natural light streaming through large windows. Open to both the dining area and kitchen, it becomes the true heart of the home — perfect for family time, entertaining, or simply relaxing by the fire. The kitchen is both stylish and practical, offering a large pantry and an open-concept layout that encourages conversation and connection during meals or gatherings.
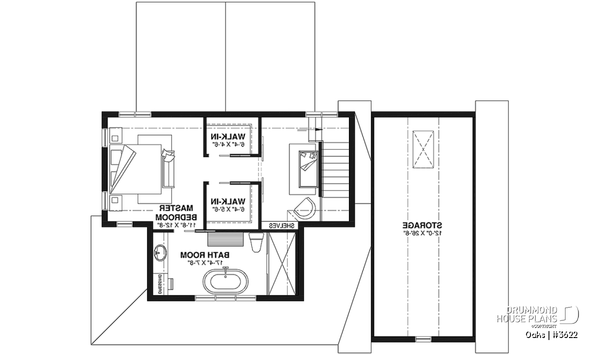
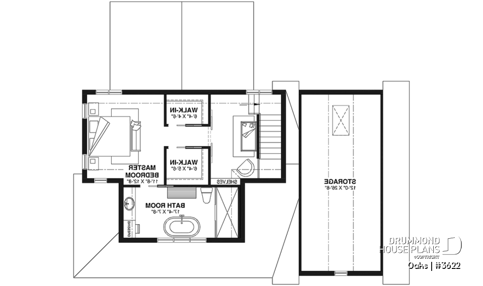
Upstairs, the entire floor is dedicated to the spacious primary suite, a true retreat for homeowners. This private space features two generous walk-in closets and a luxurious ensuite bathroom with a glass shower and a freestanding tub — ideal for unwinding after a long day. A small, versatile space just outside the bedroom can serve as a reading nook, yoga corner, or compact home office, adapting easily to your lifestyle.
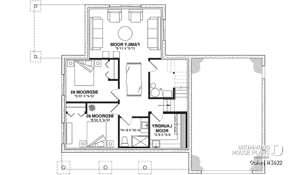
The unfinished basement offers endless possibilities for customization — whether you dream of a playroom, gym, workshop, or guest suite. For added comfort, the *finished basement option ($) includes two additional bedrooms, a modern shower room, a cozy family room, a separate laundry room, and plenty of extra storage space.
The deep garage provides ample room for a workbench or hobby area, and even features attic storage accessible via a ceiling hatch.
Blending modern functionality with authentic country charm, this home is the perfect combination of comfort, light, and character. It’s a timeless design that offers the beauty of rural living with all the conveniences of a well-thought-out modern plan — ideal for families, couples, or anyone dreaming of a peaceful retreat filled with warmth and style.
---
*If you wish to purchase the finished basement plan, as presented on this plan page, please select this option in the shopping cart, in the "Selection of foundation type" section. If you do not select this option, you will receive the unfinished full basement option, at no extra charge.
Distinctive elements
Beautiful country-style home with timeless rustic charm.
Inviting entrance featuring a built-in bench, practical closet, and spacious mudroom.
Well-located powder room, tucked away for added privacy from family areas.
Bright living room with cathedral ceiling and generous windows that flood the space with natural light.
Open-concept kitchen with large pantry, seamlessly connected to the dining and living areas for a warm, social atmosphere.
Spacious primary suite occupying the entire upper floor, offering a true retreat for the homeowners.
Two large walk-in closets and a private ensuite bathroom with a deluxe shower and freestanding tub.
Small versatile space facing the primary bedroom, perfect for a reading nook or cozy home office.
Unfinished basement ready to be customized to your lifestyle and needs.
Deep garage with room for a workshop area and additional storage accessible through a ceiling hatch.
---
*Finished Basement (optional $):
Two comfortable additional bedrooms.
Modern and functional shower room.
Warm and inviting family room, ideal for relaxing or movie nights.
Separate laundry room and extra storage space.
---
*If you wish to purchase the finished basement plan, as presented on this plan page, please select this option in the shopping cart, in the "Selection of foundation type" section. If you do not select this option, you will receive the unfinished full basement option, at no extra charge.
Plan feature(s)
Open floor layout, Split bedrooms, Pantry, Island, Master suite upstairs, His/Hers walk-in, Mud room, Bench seat(s), Cathedral ceiling, Separate bath and shower, Shelves, Sliding barn door(s), Sitting area
Plan architectural style(s)
. Farmhouse, . Mountain, . Country, . Craftsman / Northwest, . American, . Vacation and waterfront
Similar plans
Previously Viewed Plans
Thank you for your comment! It must be approved before being put online, please allow a period of 24 hours.
Error with google reCaptcha! Try again
Here is a brief description of our different plan packages. Please select the plan package that suits your needs. You can change the package at the next step, if necessary.
PDF VERSION OF PLAN:
Complete digital version of plan (pdf format) sent by email (original plan format 18" x 24'' or 24" x 36'')
5 copies of plan + PDF:
Includes: 5 copies of plan, plan in PDF format (reduced size version), materials list.
Foundation type
Additional foundation types are available, a fee may apply. Please indicate your choice on the online order form, or to our customer service representative, when placing your house plan order.
If your desired foundation type is not available, please contact our customer service to receive your free plan modification quote.
Explanation of bonus space types
UNFINISHED BONUS ROOM
The bonus rooms are often planned above the garage and are accessible from the house. They are designed to be converted as an office, a laundry area, a bathroom, a library corner or even an additional bedroom for which homeowners must make sure to have a window that complies with current codes & standards.
STORAGE AREA
Often located above the garage, our storage areas are used only as storage and are usually accessible from the garage via a retractable staircase.
Do you like this plan but want it to be modified to suit your needs?
To add a garage, another bedroom, finish the basement or any other modification, click here and let us know about your desired changes and to get your free quote for the modification of your plan.
Conditions of use
Important copyright notice! Please take note of these copyright conditions before printing:
By printing this house plan, cottage or garage or the floorplan(s), you confirm being informed that every house plan on this website is the exclusive property of Drummond House
Plans and is protected by Canadian copyright law. You are aware that these prints cannot be used to build or even obtain a building permit. The graphic representations of these
models are offered by Drummond House Plans for the sole purpose of allowing you to notate modifications of a model and then take it to one of the Drummond House Plans Canadian dealers for
modification of the plan.
The purchase of a house plan, cottage or garage from Drummond House Plans is mandatory if you wish to build any of our models. The plan purchase allows you to build a single unit; you cannot resell or give your plan to anyone once the house, cottage or garage has been built. If you wish to build the same house, cottage or garage more than once, you need to obtain the licence to this effect. Please contact us for more details.
All plans from Drummond House Plans can only be modified by a licensed Drummond House Plan Canadian dealer. If any other business or individual with no affiliation to Drummond House Plans modifies a Drummond House Plan on your behalf, please ensure this business or individual has a licence to modify this specific plan or you will be subject to prosecution on the same level as the business or individual who modified or reproduced the plan.
For more details, do not hesitate to contact u by e-mail or by phone at 1-800-567-1413.
I agree to respect the conditions above to not reproduce, modify or build a model from Drummond House Plans without previously purchasing a complete house plan.
























