There are no shipping fees if you buy one of our 2 plan packages "PDF file format" or "5 sets of blueprints + PDF". Shipping charges may apply if you buy additional sets of blueprints.
House plan Larch Lake 2 (3902)
Farmhouse, covered porch, 2-3 bedrooms, master with private balcony
Other useful information on this plan
Two or Three Bedroom, Cupola-Adorned Cottage
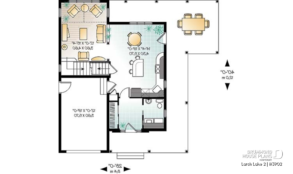
This slender plan (28 feet wide, not including porches) combines the urban preference for an attached garage with the country charm of panoramic view, rear-oriented interior. Model 2937, from which this plan was inspired, is the source of other similar models whose popularity never ceases to grow.
Inside, an enclosed foyer features a generous coat closet and an adjoining guest bathroom/laundry combination. Entering the main living area, one is greeted by an entirely open-concept floor plan with subtle separation of kitchen, dining and living area. The living room seems even more spacious thanks to a partial cathedral ceiling. Indoor and outdoor areas are pleasantly merged by a ¾ wraparound veranda and adjoining outdoor dining room with charming cupola accent.
The second level is accessed by a stairway directly from the living room, thereby maximizing interior space. Two and three bedroom options are included with the plan. Each version features a master bedroom with walk-in closet and private balcony. The two-bedroom option features a mezzanine to enhance the drama of the living room below.
An unfinished basement is included in the plan and can be developed to suit the homeowner’s needs.
Distinctive elements
Open concept oriented towards the back of the house. Cathedral ceiling in living room in the 2 bedrooms option. Private balcony off the master bedroom.
Plan feature(s)
Cathedral ceiling, Mezzanine, Gound floor laundry room, Deck, Island, Entrance hall, Walk-in master bed., Warparound, Jack & Jill bath, Separate bath and shower
Plan architectural style(s)
. Farmhouse, . Traditional, . Vacation and waterfront, . Cottage, chalet, cabin, . Country, . Craftsman / Northwest
Similar plans
Previously Viewed Plans
Questions and comments
April 17
Wendy Laveaux
Can the upstairs bathroom accomodate the washer dryer?
April 17
Customer service
Hello Ms. Laveaux
In order to accomodate a washer and dryer in the upstairs bathroom, the bathtub and window would need to be eliminated.
Please let me know if you have any other questions or comments.
Regards
Deborah
February 23
Wendy Laveaux
Can the powderroom accomodate a shower?
February 23
Customer service
Good day Ms. Laveaux and thank you for taking the time to write.
There are two ways to install a shower in the powder room. You might want to re-locate the washer and dryer in order to make use of this space or the powder room could be modified to make use of some of the entrance space in order to install the shower behind the refrigerator.
Please let me know if I can be of further assistance.
Regards
Deborah
Thank you for your comment! It must be approved before being put online, please allow a period of 24 hours.
Error with google reCaptcha! Try again
Here is a brief description of our different plan packages. Please select the plan package that suits your needs. You can change the package at the next step, if necessary.
PDF VERSION OF PLAN:
Complete digital version of plan (pdf format) sent by email (original plan format 18" x 24'' or 24" x 36'')
5 copies of plan + PDF:
Includes: 5 copies of plan, plan in PDF format (reduced size version), materials list.
Foundation type
Additional foundation types are available, a fee may apply. Please indicate your choice on the online order form, or to our customer service representative, when placing your house plan order.
If your desired foundation type is not available, please contact our customer service to receive your free plan modification quote.
Explanation of bonus space types
UNFINISHED BONUS ROOM
The bonus rooms are often planned above the garage and are accessible from the house. They are designed to be converted as an office, a laundry area, a bathroom, a library corner or even an additional bedroom for which homeowners must make sure to have a window that complies with current codes & standards.
STORAGE AREA
Often located above the garage, our storage areas are used only as storage and are usually accessible from the garage via a retractable staircase.
Do you like this plan but want it to be modified to suit your needs?
To add a garage, another bedroom, finish the basement or any other modification, click here and let us know about your desired changes and to get your free quote for the modification of your plan.
Conditions of use
Important copyright notice! Please take note of these copyright conditions before printing:
By printing this house plan, cottage or garage or the floorplan(s), you confirm being informed that every house plan on this website is the exclusive property of Drummond House
Plans and is protected by Canadian copyright law. You are aware that these prints cannot be used to build or even obtain a building permit. The graphic representations of these
models are offered by Drummond House Plans for the sole purpose of allowing you to notate modifications of a model and then take it to one of the Drummond House Plans Canadian dealers for
modification of the plan.
The purchase of a house plan, cottage or garage from Drummond House Plans is mandatory if you wish to build any of our models. The plan purchase allows you to build a single unit; you cannot resell or give your plan to anyone once the house, cottage or garage has been built. If you wish to build the same house, cottage or garage more than once, you need to obtain the licence to this effect. Please contact us for more details.
All plans from Drummond House Plans can only be modified by a licensed Drummond House Plan Canadian dealer. If any other business or individual with no affiliation to Drummond House Plans modifies a Drummond House Plan on your behalf, please ensure this business or individual has a licence to modify this specific plan or you will be subject to prosecution on the same level as the business or individual who modified or reproduced the plan.
For more details, do not hesitate to contact u by e-mail or by phone at 1-800-567-1413.
I agree to respect the conditions above to not reproduce, modify or build a model from Drummond House Plans without previously purchasing a complete house plan.





















April 17
Wendy Laveaux
Can the upstairs bathroom accomodate the washer dryer?