There are no shipping fees if you buy one of our 2 plan packages "PDF file format" or "5 sets of blueprints + PDF". Shipping charges may apply if you buy additional sets of blueprints.
House plan Koa (2264)
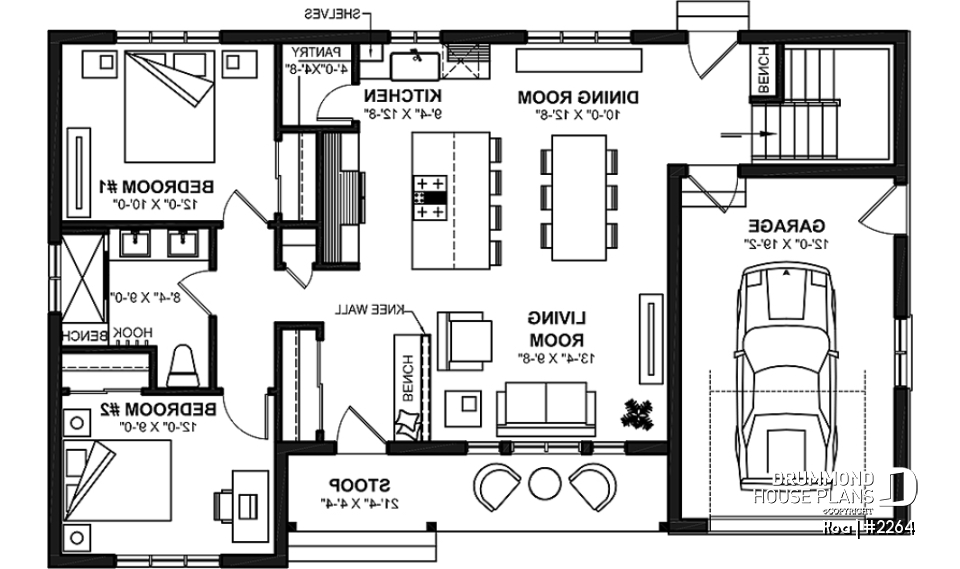
Charming 2-bedroom farmhouse bungalow home plan with open layout and large covered porch.
Other useful information on this plan
Compact farmhouse-style bungalow plan with 2 bedrooms, open-concept layout and large covered front porch
This compact farmhouse-style bungalow perfectly combines rustic elegance and modern functionality. Designed to maximize comfort and efficiency, it offers a warm and welcoming atmosphere in every corner. Its charming exterior, natural tones, and large covered front porch immediately set the tone — a home that invites you to relax and enjoy life’s simple pleasures. Whether you’re sipping your morning coffee or watching the sunset, this porch becomes an extension of your living space all year long.
Inside, the layout is just as inviting. The practical entryway, featuring a built-in bench and coat closet, helps keep things organized while adding character to the home. The bright open-concept living area seamlessly connects the kitchen, dining, and living rooms, creating the perfect setting for family gatherings and casual entertaining. The kitchen’s central island provides extra prep space and seating, while the spacious pantry ensures ample storage — ideal for those who love to cook or host.
This thoughtfully designed plan includes two comfortable bedrooms on the main floor, offering flexibility for a couple, a small family, or even as a cozy vacation home. Homeowners who need more room will appreciate the optional finished basement, which can easily accommodate additional bedrooms, a family room, a playroom, or even a home office — the possibilities are endless.
The full bathroom stands out with its stylish and functional design, featuring double sinks, a large glass shower, and plenty of storage to make everyday life easier. Each detail has been carefully planned to create a serene and efficient space that enhances daily routines.
This model is also available with several foundation options, allowing it to adapt to various lots and budgets. Whether built on a monolithic slab, crawl space, or full basement, the design ensures long-lasting comfort and practicality.
Compact, bright, and cleverly designed, this modern farmhouse bungalow embodies the perfect blend of rural charm and contemporary living. With its well-balanced proportions, inviting layout, and customizable features, it’s an ideal choice for those seeking a cozy, timeless, and family-oriented home.
Distinctive elements
• Compact single-storey home with charming farmhouse style.
• Spacious covered front porch, perfect for relaxing outdoors.
• Practical entryway with built-in bench and closet.
• Two bedrooms on the main floor, with the option to finish the basement for additional bedrooms and a family room.
• Inviting kitchen with a central island and a generous pantry.
• Bright open-concept layout connecting the kitchen, dining, and living areas for a true family feel.
• Beautiful full bathroom featuring double sinks and a large shower.
• Several foundation options available, adaptable to your needs and lot conditions.
Plan feature(s)
Lunch counter, Pantry, Island, Bench seat(s), Open floor layout, Double sinks, Builder, Self-Build
Plan architectural style(s)
. Farmhouse, . American, . Ranch, Modern farmhouse, . Country, . Traditional
Similar plans
Previously Viewed Plans
Thank you for your comment! It must be approved before being put online, please allow a period of 24 hours.
Error with google reCaptcha! Try again
Here is a brief description of our different plan packages. Please select the plan package that suits your needs. You can change the package at the next step, if necessary.
PDF VERSION OF PLAN:
Complete digital version of plan (pdf format) sent by email (original plan format 18" x 24'' or 24" x 36'')
5 copies of plan + PDF:
Includes: 5 copies of plan, plan in PDF format (reduced size version), materials list.
Foundation type
Additional foundation types are available, a fee may apply. Please indicate your choice on the online order form, or to our customer service representative, when placing your house plan order.
If your desired foundation type is not available, please contact our customer service to receive your free plan modification quote.
Explanation of bonus space types
UNFINISHED BONUS ROOM
The bonus rooms are often planned above the garage and are accessible from the house. They are designed to be converted as an office, a laundry area, a bathroom, a library corner or even an additional bedroom for which homeowners must make sure to have a window that complies with current codes & standards.
STORAGE AREA
Often located above the garage, our storage areas are used only as storage and are usually accessible from the garage via a retractable staircase.
Do you like this plan but want it to be modified to suit your needs?
To add a garage, another bedroom, finish the basement or any other modification, click here and let us know about your desired changes and to get your free quote for the modification of your plan.
Conditions of use
Important copyright notice! Please take note of these copyright conditions before printing:
By printing this house plan, cottage or garage or the floorplan(s), you confirm being informed that every house plan on this website is the exclusive property of Drummond House
Plans and is protected by Canadian copyright law. You are aware that these prints cannot be used to build or even obtain a building permit. The graphic representations of these
models are offered by Drummond House Plans for the sole purpose of allowing you to notate modifications of a model and then take it to one of the Drummond House Plans Canadian dealers for
modification of the plan.
The purchase of a house plan, cottage or garage from Drummond House Plans is mandatory if you wish to build any of our models. The plan purchase allows you to build a single unit; you cannot resell or give your plan to anyone once the house, cottage or garage has been built. If you wish to build the same house, cottage or garage more than once, you need to obtain the licence to this effect. Please contact us for more details.
All plans from Drummond House Plans can only be modified by a licensed Drummond House Plan Canadian dealer. If any other business or individual with no affiliation to Drummond House Plans modifies a Drummond House Plan on your behalf, please ensure this business or individual has a licence to modify this specific plan or you will be subject to prosecution on the same level as the business or individual who modified or reproduced the plan.
For more details, do not hesitate to contact u by e-mail or by phone at 1-800-567-1413.
I agree to respect the conditions above to not reproduce, modify or build a model from Drummond House Plans without previously purchasing a complete house plan.













