There are no shipping fees if you buy one of our 2 plan packages "PDF file format" or "5 sets of blueprints + PDF". Shipping charges may apply if you buy additional sets of blueprints.
House plan Katherine (2692)
Modern Farmhouse House Plan with Maibec Stone, 3 Bedrooms and Garage
Virtual visit
Other useful information on this plan
Modern Farmhouse House Plan with Maibec Stone, 3 Bedrooms and Garage
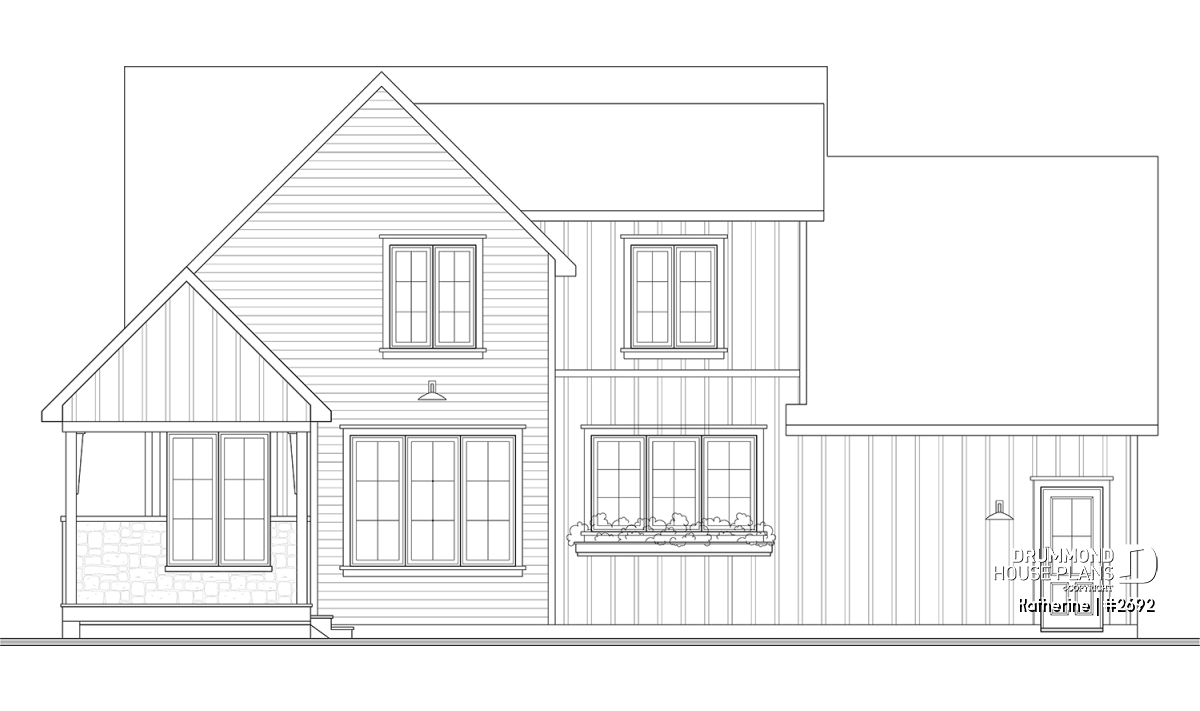
This Modern Farmhouse home stands out with a remarkable façade enhanced by "Maibec Acenta Katherine stone". Used with finesse on both the front and the covered rear terrace, this noble and timeless material adds refined, lasting elegance. It creates a unique first impression while blending seamlessly with the home’s contemporary warmth and charm. This architectural signature immediately sets the tone for a residence designed to combine character, beauty, and everyday comfort.
From the moment you arrive, the covered front porch welcomes guests and provides practical protection in all weather. The main entry, open to the second floor, features an impressive 11’10’’ ceiling that amplifies the sense of space and light. The rest of the main floor enjoys 9’ ceilings, enhancing the home’s fluid layout. A mudroom accessible from both the foyer and garage adds convenience, while the powder room is ideally located at the front. Direct access from the garage to the kitchen makes daily life easier, especially when carrying in groceries.
At the heart of the home, the bright kitchen offers a spacious island and generous pantry. It opens onto a dining area filled with natural light from large windows and a patio door leading directly to the covered terrace. This refined and practical outdoor space extends moments of relaxation and gathering throughout the year. The inviting living room is highlighted by an elegant fireplace framed with two built-in units featuring arches and storage, blending style and function beautifully.
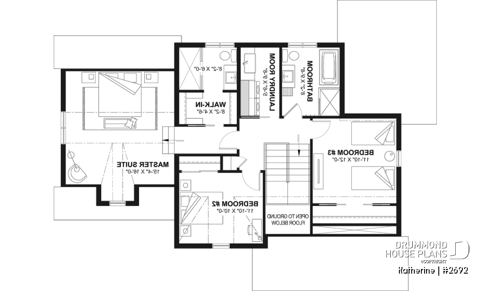
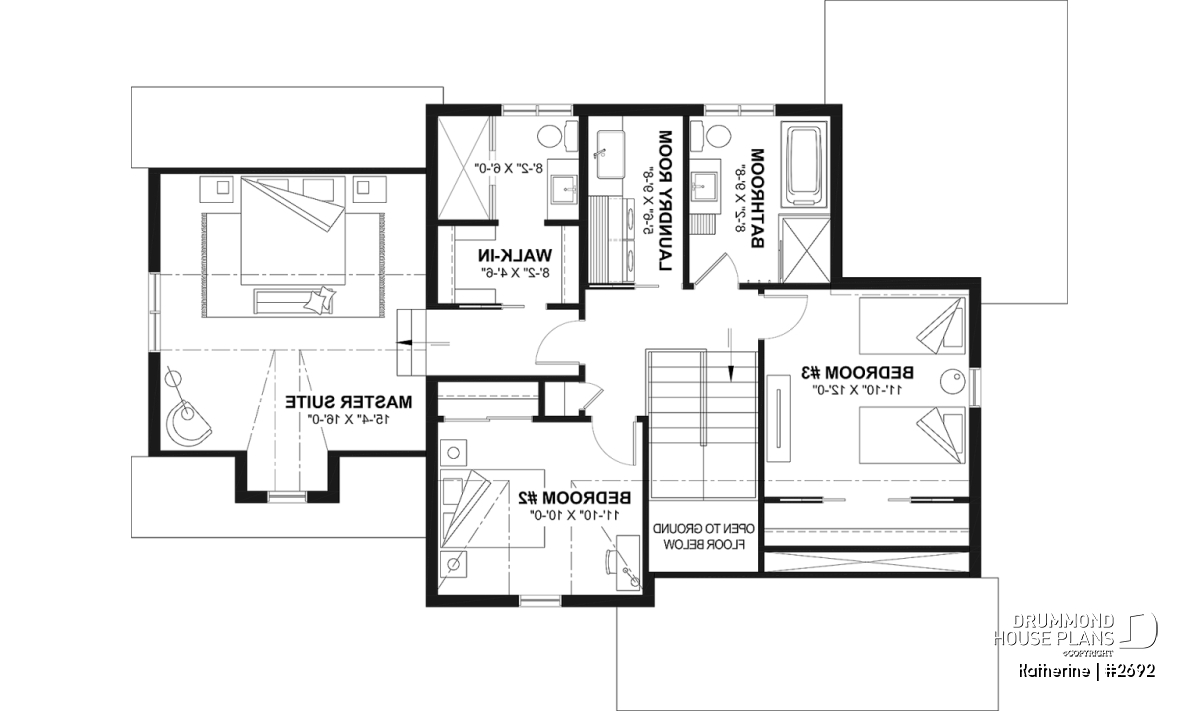
Upstairs, the primary suite is a true retreat with its private bathroom, walk-in closet, and sloped ceiling that adds rustic charm. Two additional bedrooms, also with sloped ceilings, share a well-planned bathroom. The laundry room, complete with sink, is conveniently located on this level to simplify daily routines.
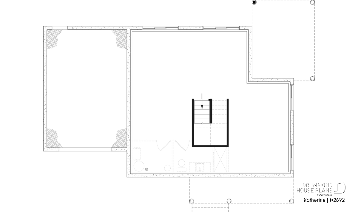
Finally, the unfinished basement offers flexible potential for future customization, with various foundation options available. This home perfectly combines architectural elegance, exceptional brightness, and modern functionality.
Distinctive elements
Modern Farmhouse with undeniable charm.
Exceptional natural light in every living space.
Elegant façade featuring "Maibec Acenta Katherine" stone.
Covered rear terrace, both refined and practical.
Covered front porch, ideal in bad weather.
Two-story open entryway.
Impressive 11’10’’ ceiling at the entrance and 9’ ceilings throughout the main floor.
Mudroom accessible from both the foyer and garage.
Well-located powder room at the front.
Direct access from the garage to the kitchen for smooth circulation with groceries.
Bright kitchen with large island and spacious pantry, open to the dining area.
Oversized windows bringing abundant light into the kitchen and dining room.
Patio door leading to the covered terrace.
Inviting and warm living room.
Elegant fireplace at the heart of the living space, framed by two built-ins with arches and storage.
Upstairs: refined primary suite with private bathroom and walk-in closet.
Charming sloped ceilings in all 3 upstairs bedrooms.
Two comfortable secondary bedrooms share a bathroom.
Laundry room with sink also located on the same level.
Basement: unfinished, ready to be customized to your current and future needs.
Plan feature(s)
Mud room, Pantry, Arch, Island, 2-Story foyer, Ceiling over 8', Sloped ceiling, Separate bath and shower, Walk-in master bed., Second floor laundry room, Built-ins, Deck
Plan architectural style(s)
Modern farmhouse, . Farmhouse, . Country, . American, . Canadian, . Traditional, Modern French Country, . Modern rustic
Similar plans
Previously Viewed Plans
Thank you for your comment! It must be approved before being put online, please allow a period of 24 hours.
Error with google reCaptcha! Try again
Here is a brief description of our different plan packages. Please select the plan package that suits your needs. You can change the package at the next step, if necessary.
PDF VERSION OF PLAN:
Complete digital version of plan (pdf format) sent by email (original plan format 18" x 24'' or 24" x 36'')
5 copies of plan + PDF:
Includes: 5 copies of plan, plan in PDF format (reduced size version), materials list.
Foundation type
Additional foundation types are available, a fee may apply. Please indicate your choice on the online order form, or to our customer service representative, when placing your house plan order.
If your desired foundation type is not available, please contact our customer service to receive your free plan modification quote.
Explanation of bonus space types
UNFINISHED BONUS ROOM
The bonus rooms are often planned above the garage and are accessible from the house. They are designed to be converted as an office, a laundry area, a bathroom, a library corner or even an additional bedroom for which homeowners must make sure to have a window that complies with current codes & standards.
STORAGE AREA
Often located above the garage, our storage areas are used only as storage and are usually accessible from the garage via a retractable staircase.
Do you like this plan but want it to be modified to suit your needs?
To add a garage, another bedroom, finish the basement or any other modification, click here and let us know about your desired changes and to get your free quote for the modification of your plan.
Conditions of use
Important copyright notice! Please take note of these copyright conditions before printing:
By printing this house plan, cottage or garage or the floorplan(s), you confirm being informed that every house plan on this website is the exclusive property of Drummond House
Plans and is protected by Canadian copyright law. You are aware that these prints cannot be used to build or even obtain a building permit. The graphic representations of these
models are offered by Drummond House Plans for the sole purpose of allowing you to notate modifications of a model and then take it to one of the Drummond House Plans Canadian dealers for
modification of the plan.
The purchase of a house plan, cottage or garage from Drummond House Plans is mandatory if you wish to build any of our models. The plan purchase allows you to build a single unit; you cannot resell or give your plan to anyone once the house, cottage or garage has been built. If you wish to build the same house, cottage or garage more than once, you need to obtain the licence to this effect. Please contact us for more details.
All plans from Drummond House Plans can only be modified by a licensed Drummond House Plan Canadian dealer. If any other business or individual with no affiliation to Drummond House Plans modifies a Drummond House Plan on your behalf, please ensure this business or individual has a licence to modify this specific plan or you will be subject to prosecution on the same level as the business or individual who modified or reproduced the plan.
For more details, do not hesitate to contact u by e-mail or by phone at 1-800-567-1413.
I agree to respect the conditions above to not reproduce, modify or build a model from Drummond House Plans without previously purchasing a complete house plan.
















