There are no shipping fees if you buy one of our 2 plan packages "PDF file format" or "5 sets of blueprints + PDF". Shipping charges may apply if you buy additional sets of blueprints.
House plan Joshua 3 (1703-V2)
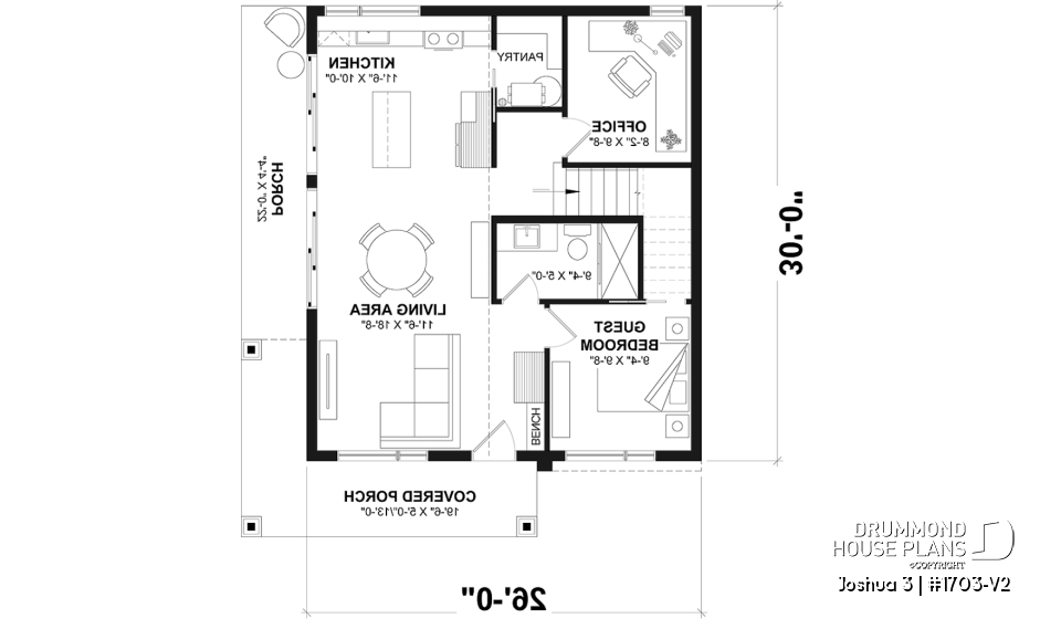
Small Modern house plan 2 bedrooms + office, compact kitchen with island and pantry, large 2nd floor terrace
Other useful information on this plan
Modern and compact house plan with 2 to 3 bedrooms, 2 bathrooms and large private terrace on the second level!
Joshua 3 house plan (1703-V2) offers a total living area of 1200 sq. ft. All ceilings are 8 ft. high. The planned foundation is a floating slab, although other foundation options are available.
The front balcony is covered, and the side balcony on the right is partially sheltered as well. Depending on the orientation of your house, plan this portion to the south, in order to take advantage of the maximum amount of sunlight in the kitchen, dining room and living room.
*PLEASE NOTE: All our plans are available in a "reading reverse" version to allow you to take advantage of maximum natural light, depending on the orientation of your lot.
When entering this modern house, a seating area and a dresser are on the left. On the right we see the living room, the kitchen and the dining room which are open concept. This area receives ample natural light via 2 separate patio doors.
The kitchen offers an island as well as a walk-in pantry. A guest bedroom (bedroom #2), an office (or bedroom #3) and a shower room complete the ground floor.
Upstairs is the main bedroom suite. It was designed to ensure good moments of relaxation, with its coffee bar and reading area, as well as private access to the beautiful and large 360 sq. ft. terrace (12' x 30'). In addition, it has a private bathroom with separate bath and shower, and a walk-in closet with stacked washer and dryer.
As a second home or main home, this splendid and compact contemporary house has everything to please with tons of amenities!
Distinctive elements
Compact and modern home with efficient flooring space and large upstairs terrace.
Partially covered front and side porch.
Lots of natural light in the kitchen and dining room via 2 separate patio doors. The latter opens onto an unsheltered portion of the side balcony.
Entrance with seating space and small coat closet (dresser style).
Open concept ground floor.
Walk-in pantry and island in the kitchen.
Guest bedroom #2 planned on the ground floor.
Versatile space in bedroom #3 that can be used as an office or playroom.
Superb master bedroom upstairs with full private bathroom and walk-in closet. It also provides space to add a stacked washer-dryer.
A coffee bar area is also designed in the master bedroom, as well as a reading area.
Large unsheltered terrace upstairs measuring 12' x 30'.
Plan feature(s)
Panoramic view, Balcony 2nd floor, Master suite upstairs, Walk-in master bed., Separate bath and shower, Pantry, Island, Second floor laundry room, Bench seat(s), Open floor layout, Coffee bar, Warparound
Plan architectural style(s)
. Contemporary, . Cottage, chalet, cabin, . Ski chalets, . Cabin plans, . Mid-century, . Modern / Design, . Vacation and waterfront, . Modern rustic
Similar plans
Previously Viewed Plans
Thank you for your comment! It must be approved before being put online, please allow a period of 24 hours.
Error with google reCaptcha! Try again
Here is a brief description of our different plan packages. Please select the plan package that suits your needs. You can change the package at the next step, if necessary.
PDF VERSION OF PLAN:
Complete digital version of plan (pdf format) sent by email (original plan format 18" x 24'' or 24" x 36'')
5 copies of plan + PDF:
Includes: 5 copies of plan, plan in PDF format (reduced size version), materials list.
Foundation type
Additional foundation types are available, a fee may apply. Please indicate your choice on the online order form, or to our customer service representative, when placing your house plan order.
If your desired foundation type is not available, please contact our customer service to receive your free plan modification quote.
Explanation of bonus space types
UNFINISHED BONUS ROOM
The bonus rooms are often planned above the garage and are accessible from the house. They are designed to be converted as an office, a laundry area, a bathroom, a library corner or even an additional bedroom for which homeowners must make sure to have a window that complies with current codes & standards.
STORAGE AREA
Often located above the garage, our storage areas are used only as storage and are usually accessible from the garage via a retractable staircase.
Do you like this plan but want it to be modified to suit your needs?
To add a garage, another bedroom, finish the basement or any other modification, click here and let us know about your desired changes and to get your free quote for the modification of your plan.
Conditions of use
Important copyright notice! Please take note of these copyright conditions before printing:
By printing this house plan, cottage or garage or the floorplan(s), you confirm being informed that every house plan on this website is the exclusive property of Drummond House
Plans and is protected by Canadian copyright law. You are aware that these prints cannot be used to build or even obtain a building permit. The graphic representations of these
models are offered by Drummond House Plans for the sole purpose of allowing you to notate modifications of a model and then take it to one of the Drummond House Plans Canadian dealers for
modification of the plan.
The purchase of a house plan, cottage or garage from Drummond House Plans is mandatory if you wish to build any of our models. The plan purchase allows you to build a single unit; you cannot resell or give your plan to anyone once the house, cottage or garage has been built. If you wish to build the same house, cottage or garage more than once, you need to obtain the licence to this effect. Please contact us for more details.
All plans from Drummond House Plans can only be modified by a licensed Drummond House Plan Canadian dealer. If any other business or individual with no affiliation to Drummond House Plans modifies a Drummond House Plan on your behalf, please ensure this business or individual has a licence to modify this specific plan or you will be subject to prosecution on the same level as the business or individual who modified or reproduced the plan.
For more details, do not hesitate to contact u by e-mail or by phone at 1-800-567-1413.
I agree to respect the conditions above to not reproduce, modify or build a model from Drummond House Plans without previously purchasing a complete house plan.


















