There are no shipping fees if you buy one of our 2 plan packages "PDF file format" or "5 sets of blueprints + PDF". Shipping charges may apply if you buy additional sets of blueprints.
House plan Florence (3244)
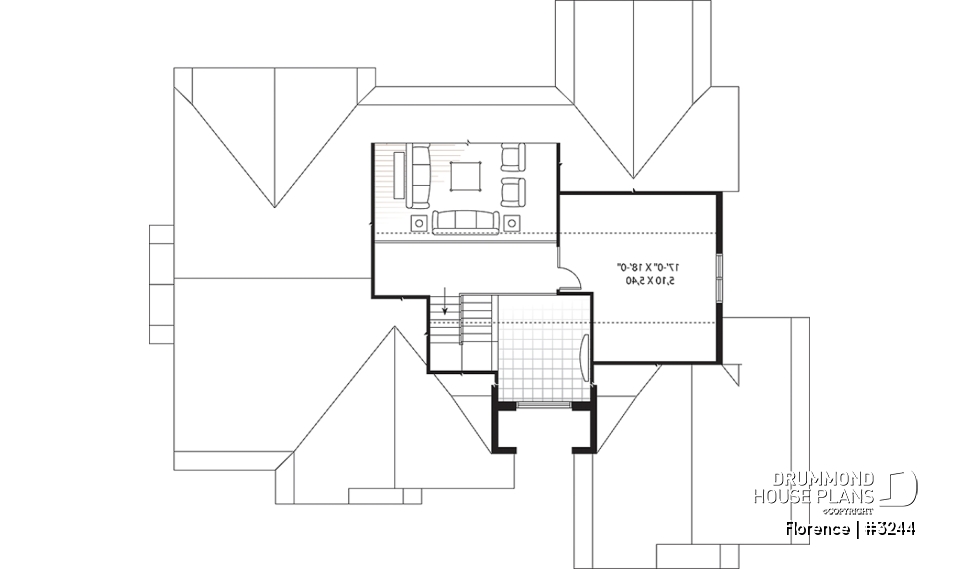
Florida style house plan, large master suite, home office, open floor plan, large laundry room, bonus space
Other useful information on this plan
3 bedrooms, home office large family room and much more!
.
Distinctive elements
9' ceiling throughout the main level and cathedral ceiling in the entry and the living room. The home office can be converted in a fourth bedroom. Large living room. Dining room in the rear with abundant windows. Kitchen with central island/lunch counter. Original steps, on the second level providing access to the rather versatile bonus space.
Plan feature(s)
Mezzanine, Office / Study / Den, Lunch counter, Living bonus space, Ceiling over 8', Side entry garage, Island, Open floor layout, Master suite on main, Gound floor laundry room, Oversized garage, Separate bath and shower, Walk-in master bed.
Plan architectural style(s)
. Florida, . Mediterranean, . American, . Traditional, . Ranch
Similar plans
Previously Viewed Plans
Questions and comments
March 24
Cheryl
I like this house and would like to know how much is the cost of 3 sets of blueprints instead of the eight (8) or the five(5) The house plans is being considered for a tropical country Thank you
March 24
Customer service
Good day and thank you for taking the time to write.
Since a 5 copy set is the minimum purchase required for any house plan in our collection, there is no option for a 3 copy set.
Because you are considering building in a tropical country, you might be interested to know that this model can be ordered in either 2 X 6 wood frame or cement block construction, the choice is yours and there is no additional cost for one or the other.
Please let me know if you have any other questions or comments.
Regards
Deb
September 25
Luc Picard
Hi,
I have 2 questions:
1) Do you have the cost of building in Canada?
2) Could this be built on a foundation?
Thanks,
Luc
September 27
Customer service
Dear Mr Picard,
Thank you for your interest in Drummond House Plans.
The only building costs we have are provincial averages for the province of Quebec, where we are located.
Since the building cost varies from one province to the other, the prices we have will most probably not be accurate for your area.
If you wish to build this house with a different foundation, when you place the order for the plan, you just need to mention the desired foundation. We will be able to provide it to you.
Please contact me again if you need further information. I will gladly answer any questions you may have.
Best Regards,
Doreen, Customer Service Department
Thank you for your comment! It must be approved before being put online, please allow a period of 24 hours.
Error with google reCaptcha! Try again
Here is a brief description of our different plan packages. Please select the plan package that suits your needs. You can change the package at the next step, if necessary.
PDF VERSION OF PLAN:
Complete digital version of plan (pdf format) sent by email (original plan format 18" x 24'' or 24" x 36'')
5 copies of plan + PDF:
Includes: 5 copies of plan, plan in PDF format (reduced size version), materials list.
Foundation type
Additional foundation types are available, a fee may apply. Please indicate your choice on the online order form, or to our customer service representative, when placing your house plan order.
If your desired foundation type is not available, please contact our customer service to receive your free plan modification quote.
Explanation of bonus space types
UNFINISHED BONUS ROOM
The bonus rooms are often planned above the garage and are accessible from the house. They are designed to be converted as an office, a laundry area, a bathroom, a library corner or even an additional bedroom for which homeowners must make sure to have a window that complies with current codes & standards.
STORAGE AREA
Often located above the garage, our storage areas are used only as storage and are usually accessible from the garage via a retractable staircase.
Do you like this plan but want it to be modified to suit your needs?
To add a garage, another bedroom, finish the basement or any other modification, click here and let us know about your desired changes and to get your free quote for the modification of your plan.
Conditions of use
Important copyright notice! Please take note of these copyright conditions before printing:
By printing this house plan, cottage or garage or the floorplan(s), you confirm being informed that every house plan on this website is the exclusive property of Drummond House
Plans and is protected by Canadian copyright law. You are aware that these prints cannot be used to build or even obtain a building permit. The graphic representations of these
models are offered by Drummond House Plans for the sole purpose of allowing you to notate modifications of a model and then take it to one of the Drummond House Plans Canadian dealers for
modification of the plan.
The purchase of a house plan, cottage or garage from Drummond House Plans is mandatory if you wish to build any of our models. The plan purchase allows you to build a single unit; you cannot resell or give your plan to anyone once the house, cottage or garage has been built. If you wish to build the same house, cottage or garage more than once, you need to obtain the licence to this effect. Please contact us for more details.
All plans from Drummond House Plans can only be modified by a licensed Drummond House Plan Canadian dealer. If any other business or individual with no affiliation to Drummond House Plans modifies a Drummond House Plan on your behalf, please ensure this business or individual has a licence to modify this specific plan or you will be subject to prosecution on the same level as the business or individual who modified or reproduced the plan.
For more details, do not hesitate to contact u by e-mail or by phone at 1-800-567-1413.
I agree to respect the conditions above to not reproduce, modify or build a model from Drummond House Plans without previously purchasing a complete house plan.







March 24
Cheryl
I like this house and would like to know how much is the cost of 3 sets of blueprints instead of the eight (8) or the five(5) The house plans is being considered for a tropical country Thank you