There are no shipping fees if you buy one of our 2 plan packages "PDF file format" or "5 sets of blueprints + PDF". Shipping charges may apply if you buy additional sets of blueprints.
House plan Country Cottage 2 (6116-V1)
Modern Farmhouse Ranch Plan with 3 Bedrooms, Double Garage, Fireplace and Covered Outdoor Living
Other useful information on this plan
Modern Farmhouse Ranch Home Plan with 3 Bedrooms, Covered Porch, Rear Terrace and Double Garage
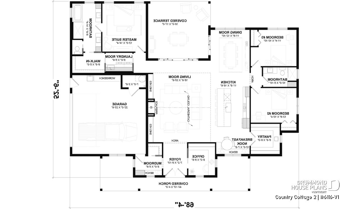
This Farmhouse-style home plan beautifully blends timeless elegance with modern comfort. Designed as a bright single-story ranch, it offers 3 bedrooms on the main level, an ideal choice for families seeking the convenience of one-level living without sacrificing style or functionality.
At the front, a large covered porch adds both charm and practicality, creating a welcoming space to greet guests in every season. The front entry opens gracefully onto a bright office, ideal as a workspace or flexible room. It also leads to a convenient mudroom, accessible from the garage, featuring a well-organized walk-in closet and a built-in bench that makes everyday life easier.
At the back, a covered rear terrace invites you to enjoy outdoor gatherings, whether under the warm sun or protected from the elements. The side-entry double garage stands out with its dedicated mechanical area and handy workbench corner, adding both convenience and versatility to daily life.
The primary suite, located to the right, is a true retreat featuring a spacious walk-in closet and a refined private bathroom. This luxurious bath includes a double vanity, freestanding tub, and separate shower—bringing the feel of a boutique hotel to the comfort of your home. A smart and practical detail enhances this space: direct access from the walk-in closet to the laundry room, making everyday routines simpler.
On the opposite side, the two additional bedrooms are perfectly suited for children or guests, sharing a functional bathroom with shower to ensure comfort and efficiency for the entire family.
At the heart of the home, the inviting kitchen impresses with its oversized island (11'0'' x 4'0'') and well-designed walk-in pantry (8'8'' x 9'0''). Whether it’s a quick weekday dinner, a family brunch, or an evening with friends, this space adapts to every occasion. A cozy dinette with built-in bench adds charm and functionality, perfect for relaxed mornings or family breakfasts.
The spectacular great room, with its soaring cathedral ceiling reaching up to 19'0'', creates an unparalleled sense of space and natural light. Throughout the rest of the home, 9’ ceilings enhance the elegance and contemporary feel. The warm and welcoming living room, complete with a fireplace flanked by built-in shelving, becomes the cozy heart of the home—ideal for winter evenings or relaxing moments year-round.
Built on a floating slab foundation, this model also offers alternative foundation options to adapt to your site and needs. This flexibility makes it an excellent fit for both suburban neighborhoods and country lots surrounded by nature.
With its Farmhouse style that blends authenticity, sophistication, and modern practicality, this ranch home plan stands out as an inspiring choice for today’s families. Functional, bright, and inviting, it strikes the perfect balance between smart design and quality living.
Distinctive elements
Farmhouse-Style Home Plan, combining classic elegance and modern comfort.
Bright bungalow offering 3 bedrooms on the main floor, ideal for families.
Beautiful large covered front porch, perfect for welcoming guests in every season.
The front entry opens onto an office and also leads to a mudroom accessible from the garage, featuring a walk-in closet and a practical bench.
Primary suite with walk-in closet and refined private bathroom, featuring a double vanity, freestanding tub, and separate shower.
Practical access to the laundry room directly from the primary walk-in closet.
Functional bathroom with shower, shared by the 2 additional bedrooms.
Inviting kitchen with a convenient pantry and large central island, designed for both everyday living and entertaining.
Charming dinette with built-in bench, perfect for relaxed mornings.
Spectacular great room with cathedral ceiling, bringing in volume and natural light; 9’ ceilings throughout the other rooms.
Warm and cozy living room with fireplace, creating a welcoming atmosphere in every season.
Covered rear terrace, perfect for enjoying outdoor gatherings rain or shine.
Side-entry double garage with a dedicated mechanical area and a convenient workbench corner.
Floating slab foundation, with other options available to suit your needs.
Plan feature(s)
Side entry garage, Side load garage, Split bedrooms, Master suite on main, Warparound, Island, Pantry, Shelves, Bench seat(s), Arch, Cathedral ceiling, Ceiling over 8', Separate bath and shower, Fireplace, Built-ins, Breakfast nook
Plan architectural style(s)
Modern farmhouse, . Ranch, . Farmhouse, . Vacation and waterfront, . Country, . Modern rustic
Similar plans
Previously Viewed Plans
Thank you for your comment! It must be approved before being put online, please allow a period of 24 hours.
Error with google reCaptcha! Try again
Here is a brief description of our different plan packages. Please select the plan package that suits your needs. You can change the package at the next step, if necessary.
PDF VERSION OF PLAN:
Complete digital version of plan (pdf format) sent by email (original plan format 18" x 24'' or 24" x 36'')
5 copies of plan + PDF:
Includes: 5 copies of plan, plan in PDF format (reduced size version), materials list.
Foundation type
Additional foundation types are available, a fee may apply. Please indicate your choice on the online order form, or to our customer service representative, when placing your house plan order.
If your desired foundation type is not available, please contact our customer service to receive your free plan modification quote.
Explanation of bonus space types
UNFINISHED BONUS ROOM
The bonus rooms are often planned above the garage and are accessible from the house. They are designed to be converted as an office, a laundry area, a bathroom, a library corner or even an additional bedroom for which homeowners must make sure to have a window that complies with current codes & standards.
STORAGE AREA
Often located above the garage, our storage areas are used only as storage and are usually accessible from the garage via a retractable staircase.
Do you like this plan but want it to be modified to suit your needs?
To add a garage, another bedroom, finish the basement or any other modification, click here and let us know about your desired changes and to get your free quote for the modification of your plan.
Conditions of use
Important copyright notice! Please take note of these copyright conditions before printing:
By printing this house plan, cottage or garage or the floorplan(s), you confirm being informed that every house plan on this website is the exclusive property of Drummond House
Plans and is protected by Canadian copyright law. You are aware that these prints cannot be used to build or even obtain a building permit. The graphic representations of these
models are offered by Drummond House Plans for the sole purpose of allowing you to notate modifications of a model and then take it to one of the Drummond House Plans Canadian dealers for
modification of the plan.
The purchase of a house plan, cottage or garage from Drummond House Plans is mandatory if you wish to build any of our models. The plan purchase allows you to build a single unit; you cannot resell or give your plan to anyone once the house, cottage or garage has been built. If you wish to build the same house, cottage or garage more than once, you need to obtain the licence to this effect. Please contact us for more details.
All plans from Drummond House Plans can only be modified by a licensed Drummond House Plan Canadian dealer. If any other business or individual with no affiliation to Drummond House Plans modifies a Drummond House Plan on your behalf, please ensure this business or individual has a licence to modify this specific plan or you will be subject to prosecution on the same level as the business or individual who modified or reproduced the plan.
For more details, do not hesitate to contact u by e-mail or by phone at 1-800-567-1413.
I agree to respect the conditions above to not reproduce, modify or build a model from Drummond House Plans without previously purchasing a complete house plan.




