There are no shipping fees if you buy one of our 2 plan packages "PDF file format" or "5 sets of blueprints + PDF". Shipping charges may apply if you buy additional sets of blueprints.
House plan Chisholm (3866)
Three-level family house plan with open-concept layout, home office, bonus room, and unfinished basement
Other useful information on this plan
CHISHOLM House Plan (#3866): Warm American-Style Home with Home Office, Bonus Room & Unfinished Basement
The CHISHOLM House Plan (#3866) offers a warm and inviting take on classic American-style architecture, enhanced by subtle stone accents on the front façade. Designed with family living in mind, this home features a well-balanced layout, abundant natural light, and flexible spaces that adapt easily to everyday life.
The welcoming front entry includes a generously sized closet, providing practical storage from the moment you arrive. Throughout the main floor, 8'-8" ceilings create comfortable proportions and a pleasant sense of openness. A main-floor home office adds versatility for remote work or study, while a powder room set discreetly apart ensures privacy and convenience.
The living room stands out with its expansive windows, filling the space with natural light, and a fireplace that adds warmth and character year-round. The kitchen is designed for functionality, offering a large work surface and a full-size walk-in pantry to support family life and entertaining. Nearby, the bright dining area provides an inviting setting for shared meals.
A covered outdoor living area equipped with mosquito screens, accessible directly from the dining room, extends the living space outdoors and allows for comfortable seasonal enjoyment.
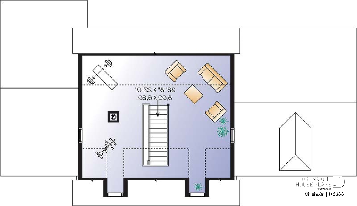
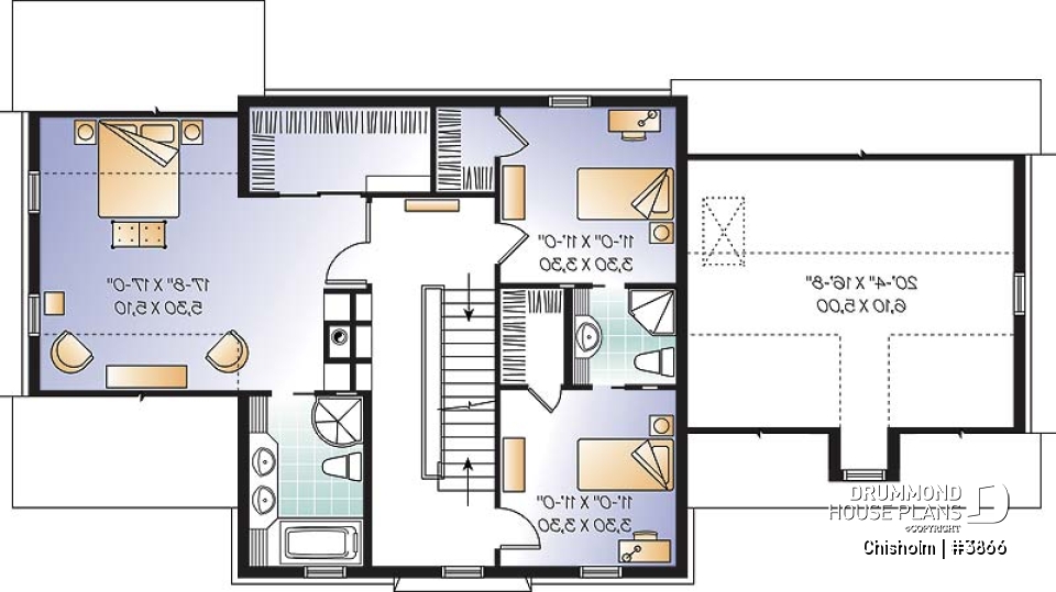
Upstairs, the primary suite serves as a private retreat, complete with an ensuite bathroom, a spacious walk-in closet, and a dedicated reading nook ideal for quiet moments. Two well-sized secondary bedrooms share a full bathroom, completing the upper level with balance and efficiency. A large flex room, on the last floor, adds exceptional flexibility, suitable for a playroom, media space, or additional lounge area.
Additional storage is provided by a generous space above the double garage, accessible via a ceiling hatch. The CHISHOLM House Plan (#3866) also includes a full unfinished basement, offering excellent potential for future finished living space as needs evolve.
Distinctive elements
American-style house plan with a warm, inviting character, enhanced by subtle stone accents on the front façade.
Consistent 8'-8" ceilings throughout the main floor, creating comfortable, well-proportioned living spaces.
Welcoming front entry with a generously sized closet conveniently located nearby.
Main-floor home office, ideal for remote work or quiet study.
Powder room set discreetly apart for added privacy.
Beautiful living room filled with natural light, featuring expansive windows and a cozy fireplace.
Well-designed kitchen with a large countertop workspace and a full-size walk-in pantry.
Bright dining area located adjacent to the kitchen for easy everyday living.
Covered outdoor living space with mosquito screens, directly accessible from the dining room, perfect for enjoying the outdoors comfortably.
Upstairs, the primary suite offers a private retreat, complete with an ensuite bathroom, a spacious walk-in closet, and a comfortable reading nook.
Two secondary bedrooms share a full bathroom, completing the upper level.
Large versatile bonus room on the upper floor, suitable for multiple uses.
Generous storage space above the double garage, accessible via a ceiling hatch.
This plan also includes a full unfinished basement, offering excellent potential for future finished living space.
Plan feature(s)
Fireplace, Screened porch, Office / Study / Den, Panoramic view, Pantry, Master suite upstairs, Ceiling over 8', Jack & Jill bath, Sloped ceiling, Walk-in master bed., Separate bath and shower, Double sinks, Gound floor laundry room, Lunch counter, Living bonus space
Similar plans
Previously Viewed Plans
Thank you for your comment! It must be approved before being put online, please allow a period of 24 hours.
Error with google reCaptcha! Try again
Here is a brief description of our different plan packages. Please select the plan package that suits your needs. You can change the package at the next step, if necessary.
PDF VERSION OF PLAN:
Complete digital version of plan (pdf format) sent by email (original plan format 18" x 24'' or 24" x 36'')
5 copies of plan + PDF:
Includes: 5 copies of plan, plan in PDF format (reduced size version), materials list.
Foundation type
Additional foundation types are available, a fee may apply. Please indicate your choice on the online order form, or to our customer service representative, when placing your house plan order.
If your desired foundation type is not available, please contact our customer service to receive your free plan modification quote.
Explanation of bonus space types
UNFINISHED BONUS ROOM
The bonus rooms are often planned above the garage and are accessible from the house. They are designed to be converted as an office, a laundry area, a bathroom, a library corner or even an additional bedroom for which homeowners must make sure to have a window that complies with current codes & standards.
STORAGE AREA
Often located above the garage, our storage areas are used only as storage and are usually accessible from the garage via a retractable staircase.
Do you like this plan but want it to be modified to suit your needs?
To add a garage, another bedroom, finish the basement or any other modification, click here and let us know about your desired changes and to get your free quote for the modification of your plan.
Conditions of use
Important copyright notice! Please take note of these copyright conditions before printing:
By printing this house plan, cottage or garage or the floorplan(s), you confirm being informed that every house plan on this website is the exclusive property of Drummond House
Plans and is protected by Canadian copyright law. You are aware that these prints cannot be used to build or even obtain a building permit. The graphic representations of these
models are offered by Drummond House Plans for the sole purpose of allowing you to notate modifications of a model and then take it to one of the Drummond House Plans Canadian dealers for
modification of the plan.
The purchase of a house plan, cottage or garage from Drummond House Plans is mandatory if you wish to build any of our models. The plan purchase allows you to build a single unit; you cannot resell or give your plan to anyone once the house, cottage or garage has been built. If you wish to build the same house, cottage or garage more than once, you need to obtain the licence to this effect. Please contact us for more details.
All plans from Drummond House Plans can only be modified by a licensed Drummond House Plan Canadian dealer. If any other business or individual with no affiliation to Drummond House Plans modifies a Drummond House Plan on your behalf, please ensure this business or individual has a licence to modify this specific plan or you will be subject to prosecution on the same level as the business or individual who modified or reproduced the plan.
For more details, do not hesitate to contact u by e-mail or by phone at 1-800-567-1413.
I agree to respect the conditions above to not reproduce, modify or build a model from Drummond House Plans without previously purchasing a complete house plan.















